








Проект Tamerun строят в селе Прибрежное Сакского района Республики Крым. Запланировано строительство четырех секций высотой до 12 этажей. Девелопер проекта — ГК «Развитие» (Воронеж).
Надежность застройщика
В портфеле компании «Развитие» — более 30 реализованных проектов. География присутствия: Воронеж, Ленинградская область, Москва и Подмосковье, Орёл, Самара, Республика Крым. «Развитие» входит в топ-20 российских застройщиков по объему текущего строительства, а среди застройщиков, работающих в Крыму, — в топ-10 (по данным Единого ресурса застройщиков).
Описание ЖК
Проект бизнес-класса Tamerun строится в селе Прибрежное Лесновского сельского поселения Сакского района Республики Крым, вблизи Симферопольского шоссе, между городами Саки и Евпатория. Поблизости есть остановки автобусов и маршруток, с которых можно доехать до автостанций Саки, Нижнегорский, Феодосия, Черноморское, Армянск, Межводное, Раздольное, Новоозерное и Штормовое, автовокзалов Ялта, Керчь и Евпатория, Северной автостанции, ж/д вокзала в Симферополе.
Сакский район расположен на побережье Каламитского залива Черного моря. На его территории есть озера Сасык с Сасыкским заказником, Кызыл-Яр и Богайлы, часть озера Донузлав, ландшафтно-рекреационный парк Ойбурский на озере Ойбурское. Село Прибрежное, в котором возводится Tamerun, находится между розовым озером Сасык и Каламитским заливом, его пересекает Симферопольское шоссе, переходящее в Евпаторийское шоссе.
Tamerun строят между улицей Набережная и Симферопольским шоссе. В четырех секциях высотой до 12 этажей будет 1 213 лотов. Во дворе-парке появятся игровые и спортивные площадки, бассейны с морской водой, лаундж-зоны, для автомобилей предусмотрены подземный и наземный паркинги.
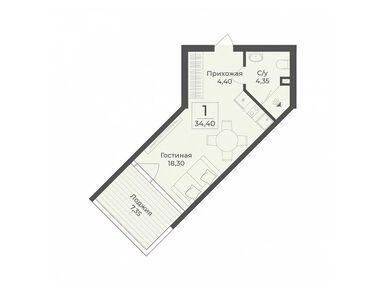
Планировки юнитов — от студий площадью 32,65 кв. м до 3-комнатных площадью более 120 кв. м. Лоты реализуются без отделки, но можно дозаказать чистовой ремонт. Цены по данным на первую декаду августа 2025 года — от 8,8 млн рублей.
Инфраструктура
Резидентам предложен 5-звездочный сервис и насыщенная инфраструктура проекта для отдыха и работы: конференц-зал, переговорная, коворкинг, фитнес-центр, спа-комплекс, собственный песчаный пляж, развлекательный центр, медицинский центр, рестораны, летнее кафе, супермаркет.
Рядом находятся Сасыкский заказник, соленое розовое озеро Сасык-Сиваш и Сакское озеро с лечебными грязями. Поблизости есть детский сад, а вот ближайшие школы находятся в Саки. Ближайшие магазины и рынки есть и в Прибрежном, и в Саки.
Плюсы и минусы
Tamerun — не единственный проект «Развития» в Крыму. Расположенный совсем рядом с морем и крымскими озерами, он подходит как для инвесторов, так и для собственного проживания, в том числе с детьми. К тому же транспортная доступность здесь вполне неплохая — поблизости останавливаются много автобусов и маршруток, рядом проходит Симферопольское шоссе.
Минусом можно назвать небогатую инфраструктуру села Прибрежное — поскольку это курортный район, здесь много гостиниц в окружении частных домов, а вот с социальными и коммерческими объектами дела обстоят пока что не очень хорошо.