


Жилой комплекс Pilot 9-18 строится в центре подмосковных Люберец, примерно в 20 минутах ходьбы от станции метро «Котельники». За то же время можно добраться и до станции Люберцы (будущая МЦД, но уже сейчас электрички курсируют там с частотой 10-15 минут), время в пути до м. «Комсомольская» – 35 минут, однако можно сделать пересадки на МЦК и другие станции метро. В целом транспортную доступность проекта можно оценить как неплохую, хотя автомобилисты могут столкнуться с пробками при выезде в сторону центра. До ТТК можно доехать за 15-20 минут без учета пробок, до Садового кольца – за 25-30 минут.
Сам жилой комплекс представляет собой 22-этажный 5-секционный дом с нежилым первым этажом, который будет отдан под объекты инфраструктуры. Предполагается, что там же будут располагаться консьержные, колясочные, кроме того, здесь планируется открыть школу искусств и медицинский кабинет. Двор новостройки будет закрыт от машин, парковки – наземные, со стороны улицы. Отсутствие подземного паркинга может привести к проблемам с поисками парковочного места, т.к. число квартир в проекте довольно большое – 629.
Соседство у ЖК неоднозначное: с одной стороны, рядом расположены старые здания советской эпохи, в которых обитают различные компании, автосервисы, а также несколько производств; с другой стороны – неподалеку находится Люберецкий парк культуры и отдыха, поэтому ряд квартир в ЖК Pilot 9-18 будут иметь приятные виды на зеленый массив.
Тут же – давно сформировавшиеся городские кварталы старого центра Люберец со всевозможной инфраструктурой, включая кафе, рестораны, фитнес-клубы, отделения банков, аптеки и прочее. Своей «социалки» в ЖК не предусмотрено, однако в радиусе 10 минут ходьбы есть около 10 детских садов и поликлиника, а вот до ближайшей школы – полчаса ходьбы.
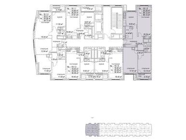
В продаже лоты от студий до 4-комнатных, площади варьируются от 24 до 89 кв. метров. Отделка не предусмотрена. Среди интересных планировочных решений можно отметить квартиры с окнами на 3 стороны света, лоты с двумя санузлами, варианты с высокими потолками до 3,75 метра на последних этажах.
Хотя наличие просторных квартир говорит о том, что проект ориентирован в том числе и на семейную аудиторию, такие покупатели могут столкнуться с дефицитом детской и образовательной инфраструктуры в пешей доступности от дома.