













































































































































Масштабный проект «Люберцы» построен в подмосковном городе Люберцы рядом с озером Черное. Ближайшая станция метро — «Некрасовка».
Надежность застройщика
Застройщик проекта — структура ГК «Самолет» ООО «СЗ Самолет-Девелопмент». Группа «Самолет» основана в 2012 году, в ее портфеле сейчас — более 125 проектов. Девелопер занимает первое место по объему текущего строительства среди российских и подмосковных застройщиков (по версии Единого ресурса застройщиков).
Расположение и транспортная доступность проекта
Жилой комплекс «Люберцы» расположился на территории площадью более 90 га возле озера Черное. До станции метро «Некрасовка» — чуть больше 2 км или около получаса ходьбы. На автобусе можно доехать до метро «Новокосино» и «Выхино», на маршрутке — до станций Люберцы и Ухтомская МЦД-3.
Для автомобилей есть выезд на Южно-Лыткаринскую автодорогу (ЮЛА) и далее на СВХ и МКАД.
Экология и особенности локации
Люберцы — один из самых крупных городов Подмосковья и самый густонаселенный. Экологическая обстановка здесь не из лучших — на качество воздуха влияют промышленные предприятия, а также мусоросжигательный завод №4 в промзоне Руднево и Люберецкая станция аэрации. Хотя географически они расположены в Москве, их запахи долетают и до Люберец.
Основные дороги — Октябрьский проспект, Новорязанское шоссе и Южно-Лыткаринская автодорога, вплотную к городу проходит СВХ. Территорию Люберец пересекает линия МЦД-3.
Архитектура и благоустройство
Квартал «Люберцы» состоит из нескольких десятков монолитных домов высотой 15–17 этажей. Фасады отделаны штукатуркой и кирпичом бежевого, коричневого и оранжевого оттенков.
Во дворах обустроены детские и спортивные площадки, воркаут-зоны с тренажерами, места для отдыха. По территории квартала проходит бульвар с лавочками. Особое место для отдыха — набережная озера Черное с парком, в котором появятся площадки для спорта, развлечений и пикников, кафе и бассейн.
Планировки и типы помещений
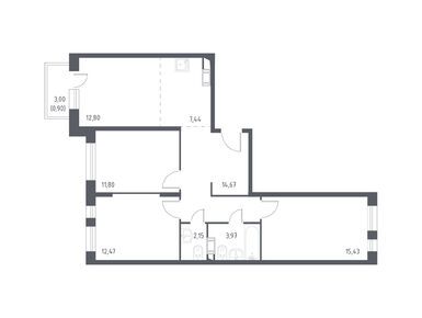
В январе 2026 года для покупки доступны 52 лота площадью от 19 до 67,1 кв. м — от студий до вариантов с двумя спальнями и кухней-гостиной. Помещения передаются с чистовой и предчистовой отделкой, цены — от 5,27 млн рублей. Есть планировки с раздельными санузлами и гардеробными. Купить недвижимость можно в ипотеку.
Для сравнения: по соседству построен ЖК «Некрасовка». Масштабный проект компании «Стройинвест» находится тоже возле Черного озера, но уже в Москве — в районе Некрасовка. Предусмотрена собственная инфраструктура, работают школа и детские сады. Квартиры в продаже еще есть, цены — от 11,68 млн рублей за 1-комнатную квартиру без отделки площадью 36,3 кв. м. В этой квартире — раздельный санузел и лоджия.
Инфраструктура и удобства для жителей
Такой крупный проект как «Люберцы» не может обойтись без собственной инфраструктуры. И она здесь вполне самодостаточна: различные объекты на первых этажах жилых корпусов, шесть детских садов, три школы (одна из которых — инженерно-технологический лицей), поликлиника со станцией скорой помощи, отделение полиции и МФЦ. Ведется строительство еще одной школы. В лобби предусмотрены места для хранения колясок и велосипедов.
Преимущества проекта
1. Хорошая транспортная доступность.
2. Разнообразие планировок, квартиры с отделкой.
3. Насыщенная собственная инфраструктура, продуманное благоустройство.
4. Ключи в день покупки.
Технические параметры
Класс энергоэффективности — не нормируется
Тип остекления — стандартное
Наличие подземного паркинга — есть
Комментарий эксперта
ЖК «Люберцы» — это не Москва, но, пожалуй, это его единственный недостаток (если это вообще можно считать минусом). У него неплохая для Подмосковья доступность до метро, а расположению на берегу озера могут позавидовать многие москвичи. Плюс богатая собственная инфраструктура.
Впрочем, есть еще один минус. Сейчас в продаже представлены не квартиры, а помещения, которые юридически являются нежилыми, — они, конечно, дешевле квартир, но оформить постоянную регистрацию в них не получится. Но зато ключи — в день покупки.
Рекомендовать покупку недвижимости здесь можно тем, кому важна близость к Москве, но не принципиальна столичная прописка.
Метро «Выхино» → Пешком 120 метров (1 минута) → Платформа «Выхино» → Электрички до станции Голутвин, Раменское, Черусти, 47 км (8 минут в пути) → Станция Люберцы 1 → Пешком 290 метров (3 минуты) → Остановка «Станция Люберцы» → Автобусы 31, 31Б, маршрутное такси 527 (Марусино), (14 минут в пути) → Остановка «Самолёт» → Пешком 480 метров (4 минуты)