Рейтинг@Mail.ru
Переверните экран
Новостройки Квартиры Ипотека Новостройки Москвы Новостройки Подмосковья Новостройки Новой Москвы Готовые новостройки Новостройки на карте Акции от застройщиков Коммерческие помещения Продавцы и застройщики Панорамы новостроек Видеообзор новостроек Экспертиза новостроек Экология Москвы и Подмосковья Студии 1-комнатные 2-комнатные 3-комнатные Квартиры на карте Ипотечный калькулятор Семейная ипотека Военная ипотека Банки и программы Медиа Новости недвижимости Мнение эксперта Аналитика рынка Покупателю Экспертиза новостроек Эксперты и авторы О проекте Контакты Реклама на сайте Vk Youtube Telegram Дзен Машиноместа Апартаменты #траншевая ипотека #рассрочка ИТ-ипотека Квартиры со скидками до 40% Видео 360° новостроек Субсидированная застройщиком Rutube Поиск дома в Москве Программа реновации в Москве Новостройки премиум-класса Новостройки бизнес-класса Рассрочка Траншевая ипотека Дома и коттеджи Бизнес-центры Бизнес-центры в Москве Бизнес-центры рядом с метро Строящиеся бизнес-центры Бизнес-центры класса A Бизнес-центры класса B Ипотека со ставкой 0,1%

ЖК «Никитский 6»

Новый проект класса делюкс «Никитский 6» строится в 10 минутах ходьбы от Московского Кремля, рядом с Новым Арбатом и Садовым кольцом. В шаговой доступности есть 3 станции метро: «Арбатская», «Александровский сад» и «Библиотека имени Ленина». Премиальная инфраструктура, отличная транспортная развязка, множество парков и культурных объектов – все это про окружение комплекса «Никитский 6».

Внешне проект представляет собой 8-этажное светлое здание с большим количеством панорамных окон. Уникальный элемент архитектуры – колонны, свойственные неоклассическому стилю. От этажа к этажу узор на колоннах меняется, а объем утончается к верхнему уровню, подчеркивая эксклюзивные пентхаусы.

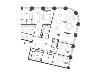
Всего в комплексе представлено 57 квартир площадью 90.4–276.3 м2 и 4 обширных пентхауса 326.9–539.4 м2 с уникальными авторскими интерьерами. Потолки на 2-7 этажах 3.2 м, а в пентхаусах 3.7 м, есть квартиры с большими гостиными, спальнями с собственными гардеробными и санузлами, окнами в санузлах и личными террасами, в пентхаусах предоставлена возможность обустройства дровяных каминов. Квартиры передаются собственникам с чистовой отделкой, включая установку кухонных гарнитуров, сантехники и мебели в ванных, проведение коммуникаций.

Москва, ЦАО, Арбат
от 281 млн до 1.2 млрд
 
Цены за квартиры от 19 марта
по данным официального сайта
Звоните, мы ещё работаем!
Акции в марте
ЖК «Никитский 6» Фотографии
8

Расположение

9.3
Транспортная доступность
5.8
Инфраструктура ЖК
Регион Москва
Округ ЦАО
Район Арбат
Метро
Адрес
Никитский б-р, 6/20
на карте

Как купить

ДДУ с эскроу-счетом (что это?)

Характеристики ЖК «Никитский 6» (корпус 6/20)

Срок сдачи
4 квартал 2026 года корпус 6/20
Презентация
Количество этажей
8
Высота потолка
3.20 — 3.70
Лифт
есть
Грузовой лифт
есть
Отделка
Дизайнерская
Тип кондиционирования
индивидуальное
Рядом парк
да
Рядом водоем
да
Класс новостройки
делюкс
Стадия строительства
отделка фасада
Парковка
подземная вместительность 135, есть выход к парковке из здания

Подробная информация

Новый проект класса делюкс «Никитский 6» строится в 10 минутах ходьбы от Московского Кремля, рядом с Новым Арбатом и Садовым кольцом. В шаговой доступности есть 3 станции метро: «Арбатская», «Александровский сад» и «Библиотека имени Ленина». Премиальная инфраструктура, отличная транспортная развязка, множество парков и культурных объектов – все это про окружение комплекса «Никитский 6».

Внешне проект представляет собой 8-этажное светлое здание с большим количеством панорамных окон. Уникальный элемент архитектуры – колонны, свойственные неоклассическому стилю. От этажа к этажу узор на колоннах меняется, а объем утончается к верхнему уровню, подчеркивая эксклюзивные пентхаусы.

Всего в комплексе представлено 57 квартир площадью 90.4–276.3 м2 и 4 обширных пентхауса 326.9–539.4 м2 с уникальными авторскими интерьерами. Потолки на 2-7 этажах 3.2 м, а в пентхаусах 3.7 м, есть квартиры с большими гостиными, спальнями с собственными гардеробными и санузлами, окнами в санузлах и личными террасами, в пентхаусах предоставлена возможность обустройства дровяных каминов. Квартиры передаются собственникам с чистовой отделкой, включая установку кухонных гарнитуров, сантехники и мебели в ванных, проведение коммуникаций.

Задать вопрос
Выбирайте квартиру в ЖК «Никитский 6» по ценам от застройщика R4S.
2-комн. квартира 100,20 м2 378 154 800
Этаж 5/8
Москва, ЖК «Никитский 6»
Арбатская
5 мин.
Строится
2-комн. квартира 114,00 м2 281 295 000
Этаж 3/8
Москва, ЖК «Никитский 6»
Арбатская
5 мин.
Строится
3-комн. квартира 145,20 м2 379 843 200
Этаж 2/8
Москва, ЖК «Никитский 6»
Арбатская
5 мин.
Строится
3-комн. квартира 160,10 м2 524 247 450
Этаж 5/8
Москва, ЖК «Никитский 6»
Арбатская
5 мин.
Строится
3-комн. квартира 178,00 м2 455 947 000
Этаж 2/8
Москва, ЖК «Никитский 6»
Арбатская
5 мин.
Строится
Этаж 2/8
Москва, ЖК «Никитский 6»
Арбатская
5 мин.
Строится
Посмотреть 11 квартир в ЖК «Никитский 6»
4-комн. квартира 254,10 м2 869 022 000
Этаж 4/8
Москва, ЖК «Никитский 6»
Арбатская
5 мин.
Строится
4-комн. квартира 274,70 м2 1 168 848 500
Этаж 6/8
Москва, ЖК «Никитский 6»
Арбатская
5 мин.
Строится
4-комн. квартира 276,30 м2 737 859 150
Этаж 3/8
Москва, ЖК «Никитский 6»
Арбатская
5 мин.
Строится
ЖК «Никитский 6»Новый проект класса de luxeСтруктура фасада вдохновлена
идеями модернизма, а формирующие образ колонны связывают здание с существующим московским
контекстомДом будет возведен на Никитском бульваре, в одном из самых респектабельных районов столицы, на Арбате.Фасады с колоннами.Вид здания в ночное время.Прилегающая территория.ЖК «Никитский 6»
Рассказать друзьям о ЖК «Никитский 6»
Копировать ссылку

Скидки и акции на новостройки Москвы

Посмотреть все спецпредложения

ЖК «Никитский 6» на карте

Как проехать

Метро «Арбатская» → Пройти пешком 430 метров (5 минут)

Метро «Александровский Сад» → Пройти пешком 570 метров (6 минут)

Метро «Библиотека Им. Ленина» → Пройти пешком 570 метров (6 минут)

Метро «Боровицкая» → Пройти пешком 850 метров (9 минут)

Метро «Кропоткинская» → Пройти пешком 1130 метров (13 минут)

Метро «Охотный Ряд» → Пройти пешком 1120 метров (13 минут)

Инфраструктура

Входные группы дома оформят в нейтральных тонах, витражные окна в пол наполнят помещение естественным светом. Внутренние пространства разделят на функциональные зоны, здесь появится лаунж-зона с книжными стеллажами, уютный уголок для работы, кофе-брейк, почтовые и колясочные комнаты. На подземных этажах расположится паркинг, вмещающий 135 машино-мест, а также 46 кладовых помещений. Будет оборудован пункт зарядки для электрокаров.

Проект «Никитский 6» строится в 10 минутах ходьбы от Московского Кремля, рядом с Новым Арбатом и Садовым кольцом. В шаговой доступности есть 3 станции метро: «Арбатская», «Александровский сад» и «Библиотека имени Ленина».

Придомовое пространство благоустроят: разобьют зеленый газон, посадят деревья, проложат пеший бульвар со скамьями и фонтаном. Различные магазины, детские и спортивные площадки, торговые центры и рестораны высокого класса находятся в пешей доступности.

В окружении «Никитского 6» есть все нужное для комфортной жизни в столице: лучшие университеты, сетевые супермаркеты, учреждения дошкольного образования, частные и областные клиники.

3 минуты пешком – и вы в Гоголевском сквере или у исторического особняка Морозова. По зеленой аллее за 10 минут можно прогуляться до дома-квартиры Максима Горького и музея Лермонтова, с другой стороны располагается Александровский сад, Кремлевская набережная, Большой театр, Храм Василия Блаженного.

Застройщик ООО «СЗ «Третий Рим»

Empty image
Строящихся
объектов
1
Рейтинг
Новострой-М
4
Подробнее о застройщике

Отзывы о ЖК «Никитский 6»

Самый полезный отзыв
К
15 апреля 2025
Оценка
Достоинства
Социальная инфраструктура
Расположение
Квартиры в Никитском сейчас имеют отличный инвестиционный потенциал. Местоположение объекта в историческом центре Москвы с отделкой высокого качества делают эти квартиры привлекательными не только для инвесторов, но и для тех, кто ищет жилье для себя. В долгосрочной перспективе цена на такие объекты будет только расти.
Ответить
Самый новый отзыв
П
25 февраля
Оценка
Дом сдадут с полностью готовой отделкой во всех квартирах, что означает чистоту и тишину с первого дня , а не грохот ремонтных работ у соседей в течение нескольких лет.
Ответить

Оставить отзыв

Добавьте отзыв, заполнив личные данные, или сначала войдите на сайт, тогда информация будет автоматически взята из личного профиля.

Оценка*

Вопросы и ответы о ЖК «Никитский 6»

Задать вопрос

Напишите свой вопрос ниже — заполнив личные данные или войдите на сайт, тогда информация будет автоматически взята из личного профиля.