











































































Жилой квартал «Кутузов Град» расположен в Можайском районе, в 200 м от одноименного шоссе и 2,5 км от МКАД. Проект является второй очередью строительства успешного жилого комплекса на ул. Петра Алексеева.
Надежность застройщика
Застройщик 1 и 2 очередей «Кутузов Град» — компания Ingrad, широко известная в столице. Девелопер реализует проекты в комфорт- и бизнес-сегменте, уделяя внимание архитектуре и созданию комфортной городской среды. В портфеле девелопера более 2 млн кв. м жилья, введенного в эксплуатацию, а также множество престижных наград и премий в области строительства.
Описание ЖК
«Кутузов Град» имеет широкую южную границу вдоль долины реки Сетунь (участок от Рябиновой улицы до ул. Багрицкого). Но такое соседство вряд ли способно обеспечить ему преимущества в виде живописных пейзажей или хорошей экологии. Сетунь в этом районе представляет собой мелкую речку с неблагоустроенными берегами, сразу за которой располагается обширная промышленная зона «Северное Очаково». Её резидентами являются машиностроительный завод, научно-исследовательские предприятия, заводы по производству строительных материалов и асфальта, Московский хладокомбинат №14, а также ТЭЦ-25. И хотя промзона входит в программу реновации, значительных изменений ожидать не стоит: она не будет реорганизована, а лишь облагорожена. Здесь, согласно планам, опубликованным на портале стройкомплекса Москвы, останутся логистические, коммунальные, складские и торговые объекты.
Транспортная доступность у «Кутузов Град» не идеальна. До ближайшей станции метро «Давыдково» не менее получаса пешком, столько же идти до станций БКЛ и МЦД-1 «Кунцевская». Сэкономить силы и время позволит прямой автобус, который всего за 7 мин. доставляет пассажиров от Можайского шоссе до станции метро «Кунцевская».
Основными магистралями для автомобилистов в этой локации являются Можайское и Аминьевское шоссе, Кутузовский проспект и просп. Генерала Дорохова. Выехать на МКАД можно за 10–12 мин., столько же времени займет путь на машине до ТТК. Доехать до центра столицы можно за полчаса на личном автомобиле или такси и за час на общественном транспорте.
«Кутузов Град» — это ЖК, включающий в себя 6 корпусов, которые полностью достроены и частично заселены. Дома были введены в эксплуатацию ещё в 2021 году, но спустя три года здесь на выбор покупателей есть еще около сотни нераспроданных квартир.
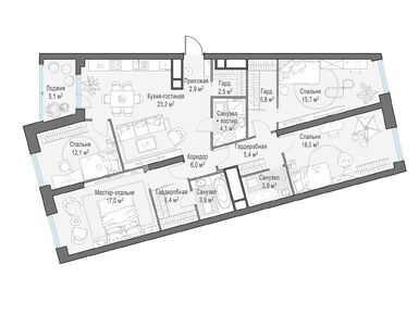
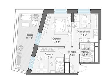
В продаже есть лоты площадью от 37,4 до 136,4 кв. м, среди них:
· просторные однокомнатные квартиры с альковом, который позволяет организовать приватную зону для сна или удобную гардеробную;
· «Евродвушки» и классические двухкомнатные квартиры различной формы, в том числе со скошенными углами, трапециевидные, с квадратными или вытянутыми комнатами;
· Трехкомнатные квартиры распашные, линейные и угловые;
· Четырех- и пятикомнатные квартиры.
Есть варианты с балконами, лоджиями, окнами в ванных, мастер-спальнями, гостевыми санузлами и другими функциональными элементами. Все квартиры реализуются без отделки.
Квартал имеет небольшой, но хорошо спланированный двор, в котором разместились зоны для детей разного возраста, места для спокойного отдыха и работы, воркаут и поле для мини-гольфа. Также на территории комплекса находится объект культурного наследия — производственный корпус Московской шерстоткацкой мануфактуры Софии Сакс. В 2021 году был согласован проект по сохранению исторического здания. После реставрации на его территории разместятся продовольственные магазины и офисы.
Инфраструктура
Инфраструктура новостройки ограничивается подземным паркингом на 415 мест и коммерцией на первых этажах. В пешей доступности есть частные и муниципальные учреждения для школьников и дошколят, за Можайским шоссе находится городская больница с поликлиническим отделением для взрослых.
Плюсы и минусы
Среди плюсов комплекса стоит отметить большой выбор планировочных решений, благоустроенный двор, в центре которого расположен объект культурного наследия, подземный паркинг. Локация интересна с точки зрения инфраструктуры, и несмотря на удаленность метро, отсюда всё же можно довольно быстро добраться как до центра, так и до других столичных районов.
Минусы проекта — недостаточное количество бесплатных парковочных мест на придомовой территории, соседство с промышленной зоной.
Станция метро «Кунцевская» → Пройти пешком 10 метров (1 минута) → Остановка «Метро «Кунцевская» → Автобус № 610, 200, 610к, 612 (7 минут в пути) → Остановка «Улица Петра Алексеева» → Пройти пешком 720 метров (9 минут)