Рейтинг@Mail.ru
Переверните экран
Новостройки Квартиры Ипотека Новостройки Москвы Новостройки Подмосковья Новостройки Новой Москвы Готовые новостройки Новостройки на карте Акции от застройщиков Коммерческие помещения Продавцы и застройщики Панорамы новостроек Видеообзор новостроек Экспертиза новостроек Экология Москвы и Подмосковья Студии 1-комнатные 2-комнатные 3-комнатные Квартиры на карте Ипотечный калькулятор Семейная ипотека Военная ипотека Банки и программы Медиа Новости недвижимости Мнение эксперта Аналитика рынка Покупателю Экспертиза новостроек Эксперты и авторы О проекте Контакты Реклама на сайте Vk Youtube Telegram Дзен Машиноместа Апартаменты #траншевая ипотека #рассрочка IT-ипотека Квартиры со скидками до 40% Видео 360° новостроек Субсидированная застройщиком Rutube Поиск дома в Москве Программа реновации в Москве Новостройки премиум-класса Новостройки бизнес-класса Рассрочка Траншевая ипотека ГАЛС Дома и коттеджи Бизнес-центры Бизнес-центры в Москве Бизнес-центры рядом с метро Строящиеся бизнес-центры Бизнес-центры класса A Бизнес-центры класса B ЛСР

Жилой дом «Светланова ул., д. 11, к. 1»

Новый дом, построенный по Программе реновации, был введен в эксплуатацию в 2023 году.

В корпусе высотой 17 этажей расположены две секции и 161 лотов. Во всех квартирах высота потолка достигает 2,67 м, увеличены оконные проемы, остеклены балконы и лоджии, предусмотрены корзины для кондиционеров. Квартиры сданы с чистовой отделкой под ключ.

Подъезды оборудованы домофонами и пандусами. Предусматриваются помещения для консьержа и колясочные. Установлены современные лифты с видеонаблюдением. Проект обеспечивает доступную среду для перемещения родителей с колясками и маломобильных групп населения. Во дворе размещаются оборудованные детские и спортивная площадки, а также площадки для отдыха.

Первый этаж дома нежилой, с высокими потолками и большой площадью остекления.

Москва, ЗАО, Раменки
от 24 до 25.3 млн
 
Цены за квартиры от 5 декабря
по данным официального сайта
Звоните, мы ещё работаем!
Зафиксировать цену
Фотографии
1

Жилой дом «Светланова ул., д. 11, к. 1» - цены за квартиры от застройщика 5 декабря

1-комнатные
45.50 — 45.80 м2
24 — 25.3  млн руб.

Расположение

Регион Москва
Округ ЗАО
Район Раменки
Метро
Раменки
14 мин.
Адрес
Светланова ул., д. 11, к. 1
на карте

Характеристики Жилой дом «Светланова ул., д. 11, к. 1» (корпус 1)

Застройщик
Срок сдачи
сдан корпус 1
Тип здания
Количество этажей
17
Высота потолка
2.67
Лифт
есть
Тип кондиционирования
индивидуальное
Наличие ком помещений на первых этажах
есть
Класс новостройки
комфорт
Стадия строительства
выдача ключей + заселение

Подробная информация

Новый дом, построенный по Программе реновации, был введен в эксплуатацию в 2023 году.

В корпусе высотой 17 этажей расположены две секции и 161 лотов. Во всех квартирах высота потолка достигает 2,67 м, увеличены оконные проемы, остеклены балконы и лоджии, предусмотрены корзины для кондиционеров. Квартиры сданы с чистовой отделкой под ключ.

Подъезды оборудованы домофонами и пандусами. Предусматриваются помещения для консьержа и колясочные. Установлены современные лифты с видеонаблюдением. Проект обеспечивает доступную среду для перемещения родителей с колясками и маломобильных групп населения. Во дворе размещаются оборудованные детские и спортивная площадки, а также площадки для отдыха.

Первый этаж дома нежилой, с высокими потолками и большой площадью остекления.

сдан
Задать вопрос
Выбирайте квартиру в Жилом доме «Светланова ул., д. 11, к. 1» по ценам от застройщика Фонд реновации.

Квартиры в Жилом доме «Светланова ул., д. 11, к. 1»

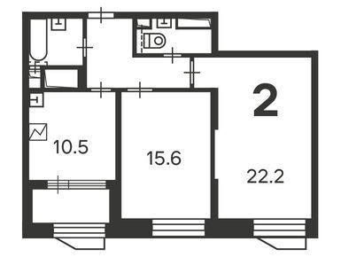
Этаж 16/17
Москва, Жилой дом «Светланова ул., д. 11, к. 1»
Раменки
14 мин.
Сдан
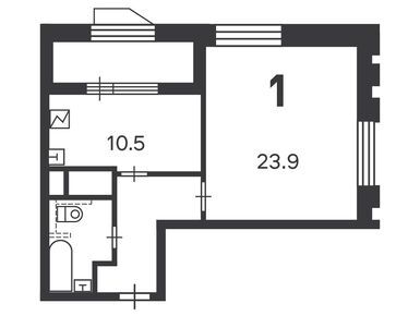
Этаж 12/17
Москва, Жилой дом «Светланова ул., д. 11, к. 1»
Раменки
14 мин.
Сдан
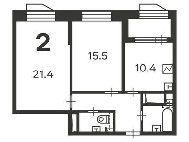
Этаж 13/17
Москва, Жилой дом «Светланова ул., д. 11, к. 1»
Раменки
14 мин.
Сдан
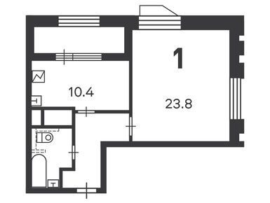
Этаж 17/17
Москва, Жилой дом «Светланова ул., д. 11, к. 1»
Раменки
14 мин.
Сдан
Посмотреть 10 квартир в Жилом доме «Светланова ул., д. 11, к. 1»
Рассказать друзьям о Жилом доме «Светланова ул., д. 11, к. 1»
Копировать ссылку

Скидки и акции на новостройки Москвы

Посмотреть все спецпредложения

Жилой дом «Светланова ул., д. 11, к. 1» на карте

Застройщик Фонд реновации

Сданных
объектов
207
Строящихся
объектов
9
Рейтинг
Новострой-М
4
Сданных
вовремя
100%
Все новостройки застройщика

Отзывы о Жилом доме «Светланова ул., д. 11, к. 1»

Будьте первым, кто оставит отзыв
о Жилой дом «Светланова ул., д. 11, к. 1»
Добавьте отзыв, заполнив личные данные, или сначала войдите на сайт, тогда информация будет автоматически взята из личного профиля.
Оценка*

Вопросы и ответы о Жилом доме «Светланова ул., д. 11, к. 1»

Будьте первым, кто задаст вопрос
Задать вопрос
Напишие свой вопрос ниже — заполнив личные данные или войдите на сайт, тогда информация будет автоматически взята из личного профиля.