Рейтинг@Mail.ru
Переверните экран
Новостройки Квартиры Ипотека Новостройки Москвы Новостройки Подмосковья Новостройки Новой Москвы Готовые новостройки Новостройки на карте Акции от застройщиков Коммерческие помещения Продавцы и застройщики Панорамы новостроек Видеообзор новостроек Экспертиза новостроек Экология Москвы и Подмосковья Студии 1-комнатные 2-комнатные 3-комнатные Квартиры на карте Ипотечный калькулятор Семейная ипотека Военная ипотека Банки и программы Медиа Новости недвижимости Мнение эксперта Аналитика рынка Покупателю Экспертиза новостроек Эксперты и авторы О проекте Контакты Реклама на сайте Vk Youtube Telegram Дзен Машиноместа Апартаменты #траншевая ипотека #рассрочка IT-ипотека Квартиры со скидками до 35% Видео 360° новостроек Субсидированная застройщиком Rutube Поиск дома в Москве Программа реновации в Москве Новостройки премиум-класса Новостройки бизнес-класса Рассрочка Траншевая ипотека Дома и коттеджи Бизнес-центры Бизнес-центры в Москве Бизнес-центры рядом с метро Строящиеся бизнес-центры Бизнес-центры класса A Бизнес-центры класса B

Жилой дом «Пересветов пер., д. 9»

Трехсекционный жилой дом, построенный по Программе реновации, был введен в эксплуатацию в 2023 году.

В доме от 11 до 12 этажей. Участникам Программы реновации передано 161 квартир с остекленными лоджиями, в том числе 65 однокомнатных, 74 двухкомнатных и 22 трехкомнатных. Часть квартир предназначена для маломобильных жильцов, для них ширина коридоров, дверных проемов и оборудование санузлов обеспечивают удобное передвижение на кресле-коляске. Таких лотов будет передано 2 двухкомнатных.

Подъезды оборудованы домофонами и пандусами. Предусматриваются помещения для консьержа и колясочные. Установлены современные лифты с видеонаблюдением. Во дворе размещаются оборудованные детская и спортивная площадки, а также площадка для отдыха. На придомовой территории высаживаются деревья, кустарники, цветники и газоны.

На нижнем этаже дома размещается коммерческая инфраструктура, на подземном этаже находится паркинг на 38 машино-мест.

Москва, ЮАО, Даниловский
от 15.4 до 18.2 млн
 
Цены за квартиры от 5 февраля
по данным официального сайта
Звоните, мы ещё работаем!
Зафиксировать цену
Фотографии
1

Жилой дом «Пересветов пер., д. 9» - цены за квартиры от застройщика 5 февраля

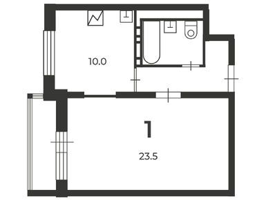
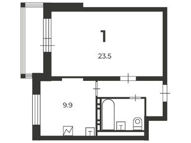
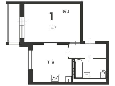
1-комнатные
38.90 — 46.00 м2
15.4 — 18.2  млн руб.

Расположение

Регион Москва
Округ ЮАО
Район Даниловский
Метро
Адрес
Пересветов пер., д. 9
на карте

Характеристики Жилой дом «Пересветов пер., д. 9» (корпус 1)

Застройщик
Срок сдачи
сдан корпус 1
Тип здания
Количество подъездов
3
Количество этажей
11-12
Высота потолка
2.70
Лифт
есть
Тип кондиционирования
индивидуальное
Наличие ком помещений на первых этажах
есть
Класс новостройки
комфорт
Стадия строительства
выдача ключей + заселение

Подробная информация

Трехсекционный жилой дом, построенный по Программе реновации, был введен в эксплуатацию в 2023 году.

В доме от 11 до 12 этажей. Участникам Программы реновации передано 161 квартир с остекленными лоджиями, в том числе 65 однокомнатных, 74 двухкомнатных и 22 трехкомнатных. Часть квартир предназначена для маломобильных жильцов, для них ширина коридоров, дверных проемов и оборудование санузлов обеспечивают удобное передвижение на кресле-коляске. Таких лотов будет передано 2 двухкомнатных.

Подъезды оборудованы домофонами и пандусами. Предусматриваются помещения для консьержа и колясочные. Установлены современные лифты с видеонаблюдением. Во дворе размещаются оборудованные детская и спортивная площадки, а также площадка для отдыха. На придомовой территории высаживаются деревья, кустарники, цветники и газоны.

На нижнем этаже дома размещается коммерческая инфраструктура, на подземном этаже находится паркинг на 38 машино-мест.

сдан
Задать вопрос
Выбирайте квартиру в Жилом доме «Пересветов пер., д. 9» по ценам от застройщика Фонд реновации.

Квартиры в Жилом доме «Пересветов пер., д. 9»

Этаж 2/12
Москва, Жилой дом «Пересветов пер., д. 9»
Автозаводская
8 мин.
Сдан
Этаж 2/12
Москва, Жилой дом «Пересветов пер., д. 9»
Автозаводская
8 мин.
Сдан
Этаж 2/12
Москва, Жилой дом «Пересветов пер., д. 9»
Автозаводская
8 мин.
Сдан
Этаж 12/12
Москва, Жилой дом «Пересветов пер., д. 9»
Автозаводская
8 мин.
Сдан
Посмотреть 8 квартир в Жилом доме «Пересветов пер., д. 9»
Жилой дом «Пересветов пер., д. 9»
Рассказать друзьям о Жилом доме «Пересветов пер., д. 9»
Копировать ссылку

Скидки и акции на новостройки Москвы

Посмотреть все спецпредложения

Жилой дом «Пересветов пер., д. 9» на карте

Застройщик Фонд реновации

Сданных
объектов
236
Строящихся
объектов
13
Рейтинг
Новострой-М
4.1
Сданных
вовремя
100%
Все новостройки застройщика

Отзывы о Жилом доме «Пересветов пер., д. 9»

Будьте первым, кто оставит отзыв
о Жилой дом «Пересветов пер., д. 9»
Добавьте отзыв, заполнив личные данные, или сначала войдите на сайт, тогда информация будет автоматически взята из личного профиля.
Оценка*

Вопросы и ответы о Жилом доме «Пересветов пер., д. 9»

Будьте первым, кто задаст вопрос
Задать вопрос
Напишие свой вопрос ниже — заполнив личные данные или войдите на сайт, тогда информация будет автоматически взята из личного профиля.