
ЖК «Большевик» строится в г. Дмитров, в 56 км от МКАД. Это комплекс из двух 17-этажных домов с благоустроенным двором и многоуровневым паркингом в 2 км от Дмитровского кремля.
Надежность застройщика
Строительство ЖК «Большевик» осуществляет локальный застройщик «Архитектор». На счету компании два успешно введенных в эксплуатацию жилых комплекса в Дмитрове (ЖК «Шоколад» и ЖК «Премьер»). Финансовым партнером проекта выступает ПАО Сбербанк.
Описание ЖК
ЖК «Большевик» расположен в восточной части города Дмитров, рядом с Восточной объездной дорогой, городской больницей и парком Березовая роща. Расстояние до центра города составляет 2 км, поэтому будущие жители комплекса смогут часто прогуливаться по историческим кварталам и отдыхать на территории музея-заповедника «Дмитровский Кремль». За полчаса можно дойти до берега канала им. Москвы, вдоль которого пролегает веломаршрут «Москва - Санкт-Петербург».
Добраться от ЖК «Большевик» до Москвы можно на личном или общественном транспорте. Дорога до МКАД на автомобиле по Дмитровскому шоссе занимает 1 час, а чтобы доехать до центра столицы, потребуется не менее 1 часа 40 мин.
В 3 км от новостройки находится железнодорожная станция Дмитров и автовокзал. Доехать до них можно на прямом автобусе или автомобиле за 10 мин. Электрички из Дмитрова следуют до Белорусского вокзала, время в пути 1 час 34 мин. Также есть прямой автобус до ст. м. «Алтуфьево», дорога занимает 1 час.
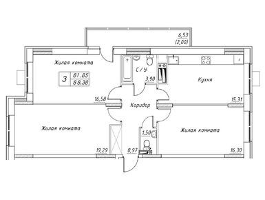
В ЖК «Большевик» началось строительство первого из двух запланированных домов, в нем будет 5 подъездов и 592 квартиры. Жилой фонд включает в себя различные планировки — от студий до трехкомнатных квартир с 15-метровыми кухнями и холодными застекленными лоджиями площадью 6,5 м. Также в ЖК «Большевик» можно купить двухкомнатную квартиру линейного, углового или распашного типа.
Площадь самой маленькой квартиры составляет 27 кв. м, а самой большой — 88,4 кв. м. Все лоты продаются без внутренней отделки.
Купить квартиру в ЖК «Большевик» (г. Дмитров) можно по 100% предоплате, в рассрочку от застройщика на индивидуальных условиях или в ипотеку, в том числе по программам «Семейная ипотека», «Военная ипотека» и «ИТ-ипотека».
Дома образуют закрытый внутренний двор, в котором будет обустроены места для отдыха, занятий спортом и прогулок с детьми. На территории комплекса будет 88 гостевых машино-мест, ещё 410 автомобилей смогут разместиться по внешнему периметру. В будущем застройщик планирует возвести многоуровневый паркинг.
Инфраструктура
В пешей доступности от ЖК «Большевик» есть муниципальные школы, детские сады и поликлиники, а также ФОК и магазины, в которых новоселы смогут купить всё необходимое — от продуктов до строительных материалов. В 10 мин. ходьбы есть плавательный бассейн, а за 18 мин. можно дойти до инженерного пруда, на берегу которого обустроен пляж.
Также рядом находятся Медицинский и Политехнический колледжи, в которых молодые жители новостройки смогут продолжить образование после окончания школы.
Плюсы и минусы
В ЖК «Большевик» могут купить квартиры молодые семьи, в том числе с детьми, у которых нет необходимости ежедневно ездить в Москву на работу или учебу. Здесь есть вся необходимая инфраструктура, начиная от детских садов, школ и больниц, заканчивая многочисленными предприятиями, торговыми и промышленными, позволяющими найти работу специалисту любого профиля.
Среди преимуществ проекта можно отметить большой выбор планировок, наличие в квартирах больших летних помещений, благоустроенный внутренний двор и собственный многоуровневый паркинг.
Единственное, что может вызвать сомнения у покупателей, – это близкое расположение жилых домов к промышленным зонам.
Железнодорожный вокзал → Пройти пешком 147 метров (2 минуты) → Остановка «Автовокзал Дмитров» → Маршрутное такси № 24К, Автобус № 24, 10, 44 (9 минут в пути) → Остановка «Детский Санаторий» → Пройти пешком 300 метров (4 минуты)