Жилой комплекс бизнес-класса «Метрополия» от девелопера MR Group – это 22 дома, объединенных в тематические ансамбли. Концепция проекта – город городов: облик комплекса вдохновлен архитектурой мировых мегаполисов, в честь которых и названа каждая башня. Новострой-М проанализировал новостройку, оценив её сильные и слабые стороны.
Примечание
В статье перечислены только факты о ЖК, собранные из открытых источников. В рубрике «Экспертиза проекта» Новострой-М решил отказаться от оценок и оценочных суждений: право делать выводы из описанных фактов о жилом комплексе мы предоставляем нашим читателям.
Кто строит?
Компания MR Group является одним из лидеров в девелопменте жилой и коммерческой недвижимости. В портфеле компании – 52 проекта, более 9,5 млн кв. м. 13 реализуемых жилых комплексов находятся в Московском регионе. Значительная доля проектов – это объекты бизнес- и комфорт-класса, около 5% – недвижимость премиум-класса.
MR Group неоднократно удостаивался звания «Девелопер года» и попадал в топ-3 рейтинга РБК. Компанию можно считать не только надежным, но и социально ответственным застройщиком, так как она ориентирована на комплексное освоение территории и создание необходимой инфраструктуры для комфортного проживания и работы.
Со всеми проектами MR Group вы можете ознакомиться на нашем сайте.
Что строят?
В состав ЖК «Метрополия» входят 22 дома башенного типа высотой от 7 до 30 этажей с квартирами и апартаментами. Каждый из корпусов носит название крупного города. Дома первой очереди по названию соотносятся с мировыми мегаполисами: Берлин, Токио, Париж, Рим, Москва, Лондон и Нью-Йорк. Во 2-ой очереди возводятся башни Амстердам, Вена, Стокгольм, Санкт-Петербург, Венеция, Афины, Стамбул, Сингапур, Гонконг, Барселона, Флоренция и Копенгаген. К третьей очереди относятся Владивосток, Великий Новгород, Екатеринбург. Какого-то логичного деления на континенты нет, дома объединены в ансамбли, но по соседству вполне могут находиться башни-«европейцы», «азиаты», «австралийцы», однако в третьей очереди акцент сделан на российских городах.
Все строения «сосредоточены» вокруг внутреннего двора, который также имеет свою концепцию, привязанную к теме мегаполисов. В комплексе предусмотрена подземная двухуровневая парковка, правда, количество машино-мест в домах первых двух очередей всего 2279, что, очевидно, не сможет полностью закрыть потребность в размещении личных автомобилей жителей почти 6 тысяч лотов. На уровне подземного паркинга также размещаются келлеры (площадью от 1,5 кв. м): всего 562 шт. в домах первой и второй очередей.
Как строится ЖК, что его окружает – все это вы можете увидеть «вживую» на нашем сайте в разделе «Аэротуры». Также мы посетили стройплощадку в сентябре текущего года, и вы можете оценить ход строительства и облик готовых корпусов.







Архитектура и дизайн
ЖК «Метрополия» возводится по монолитной технологии.
Архитектурный облик жилого комплекса разрабатывался известным бюро СПИЧ. Авторы хотели подчеркнуть масштабность проекта, но при этом уделить внимание деталям. Основным трендом в оформлении домов и территории был выбран «кирпичный экспрессионизм».







Этот стиль представляет собой укладку кирпича в определенные орнаменты. В случае с «Метрополией» на зданиях можно будет увидеть вертикальные и горизонтальные ритмы. Строения, выполненные в такой технике, выглядят живо, ярко и динамично: подтверждением служат уже возведенные башни первой очереди.
Каждая группа домов имеет свой уникальный цвет фасада. В качестве материала отделки использован клинкерный кирпич. В домах большие окна и остекленные лоджии, предусмотрены корзины для кондиционеров, позволяющие устанавливать климатическую технику, не нарушая внешний облик дома.
Каждый дом имеет просторное лобби с высокими потолками до 4,5 м, включающее гостевую зону, зону консьержа и лифтовой холл, колясочную, санузел, помывочную для мытья лап собакам. Разработкой дизайна входных групп занимались сразу 2 дизайнерских бюро: Blank Architects и Leyla Uluhanli interiors. Отделка лобби по стилю и цветовому решению соотносится с тематикой каждого ансамбля: в домах первой очереди это подчеркнутый минимализм, вторая очередь – футуристичный дизайн с необычными формами и контрастными цветами.
Благоустройство
Разработку концепции благоустройства территории комплекса доверили архитектурному бюро UTRO, которое в свое время принимало участие в проектировании и строительстве института «Стрелка» и нескольких объектов на ВДНХ.















Дизайнеры постарались учесть интересы разных категории жителей, создать комфортную среду и наполнить пространство зеленью, которой так не хватает в этом районе. Двор, обращенный внутрь, включает прогулочные зоны, локации для спокойного отдыха и уединения, детские и спортивные площадки. Предусмотрена и площадь для общественных мероприятий.
Разработчики проекта предположили, что родителям будет гораздо комфортнее заниматься своими делами, если дети будут находиться в поле их зрения. Исходя из этого детская инфраструктура расположена рядом с воркаут-площадками и зонами кафе. Само пространство для детей имеет сложную пластику и необычное оснащение, что позволяет задавать множество интересных сценариев для игр.
Спортивная зона включает в себя тренажеры, столы для пинг-понга, площадки для игры в баскетбол, стритбол и петанк.
Озеленение территории планировалось с учетом сочетаемости растений между собой и периодов их цветения таким образом, чтобы территория с весны до осени выглядела живописно.
Безопасность и технологии
В ЖК «Метрополия» особое внимание уделено безопасности и комфорту жильцов. Так, на всей территории комплекса, в паркинге, в местах общего пользования ведется видеонаблюдение. В домах осуществляется круглосуточный контроль доступа: на территорию можно попасть по системе Face ID (распознавание лиц), в подъезд войти также с помощью биометрии, въезд в паркинг – по электронному считывателю номера. Продумана система навигации с ночной подсветкой на всей территории комплекса.
Внедрена система с датчиками охранно-пожарной сигнализации и автоматического пожаротушения, в квартирах устанавливаются датчики защиты от протечек с возможностью интеграции в «умный дом».
В домах устанавливаются скоростные лифты международного производителя OTIS с минимальным уровнем шума и интеллектуальной системой распределения потоков PORT, скорость до 2,5 м/сек, время ожидания не более 50 секунд.
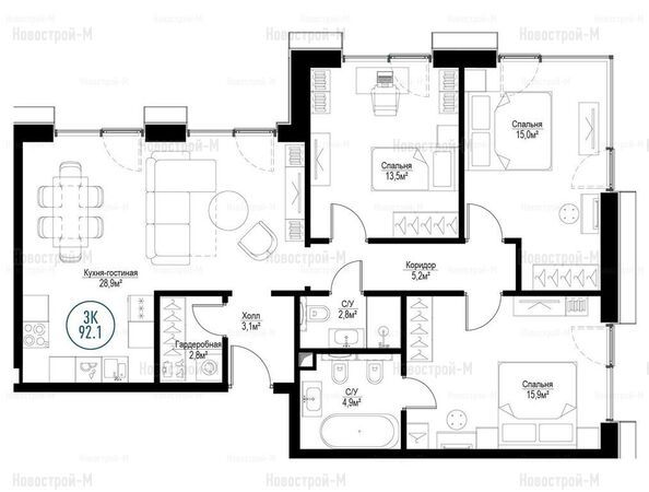
Планировки
В ЖК «Метрополия» покупателям есть из чего выбрать: в продаже представлены и квартиры, и апартаменты.
Апартаменты предлагаются в 7 корпусах 2-й очереди и имеют планировки от студий до 3-спальных лотов, площади в продаже варьируются от 22,5 до 106 кв. м. Квартиры есть во всех корпусах проекта, спроектированы варианты от студий до 4-комнатных, площади в продаже – от 25,2 до 104,4 кв. м. Причем площадь не всегда сопряжена с числом комнат: например, самые просторные лоты – это «двушки», они даже больше 4-комнатных.









Планировки в ЖК разнообразные, при этом планировочные решения для апартаментов и квартир практически не имеют различий: все лоты, кроме компактных студий, довольно просторные, в лотах с 2 и более спальнями имеется по 2-3 санузла, есть гардеробные, а также ниши под встраиваемые шкафы. Совмещенные кухни-гостиные имеют площадь от 11 до 42 квадратных метров в зависимости от общего метража квартиры/апартамента.
Квартиры, которые доступны для приобретения, можно подробно изучить на поэтажных планах ЖК «Метрополия» на сайте Новострой-М. Для этого понадобится выбрать интересующий вас корпус на карте. Кстати, в квартире, которую вы решите посмотреть, можно оценить вид из окон, а также инсоляцию.








Все жилье сдается с отделкой MR Base (она же white box) – то есть с межкомнатными перегородками, грунтовкой, штукатуркой и шпаклевкой стен, напольной стяжкой, скрытой разводкой коммуникаций, розетками и выключателями, подготовкой под кондиционер и электрической подготовкой под установку кухни.
Где строят?
ЖК «Метрополия» расположен в юго-восточном округе Москвы, в Южнопортовом районе. В непосредственной близости от комплекса – ТТК и Волгоградский проспект, обеспечивающие району отличную транспортную доступность. Однако ситуацию осложняют пробки, которые здесь являются скорее нормой, чем исключением.
Расстояние до центра города – 7 км, проехать которые можно менее чем за 10 минут. Но из-за сложной дорожной обстановки время проезда в часы пик может серьезно увеличиться. Заторы скапливаются в основном на ТТК.
Альтернативой автомобильному транспорту всегда является метро: в пешей доступности от ЖК располагаются сразу несколько станций подземки, а также станции МЦК.
Время в пути от ЖК:
Вдоль Волгоградского проспекта и на прилегающих улицах есть несколько остановок наземного транспорта.
До аэропортов «Шереметьево» и «Внуково» дорога без пробок займет около часа. До «Домодедово» – 30-40 минут.
Экология
Экологическая обстановка в Южнопортовом районе согласно рейтингу от компании EcoStandard оценивается как удовлетворительная. Здесь довольно высокая плотность населения, много объектов негативного воздействия – Микояновский мясокомбинат, крупная ТЭЦ, Шинный завод. Рядом с ЖК проходят несколько крупных и сильно загруженных магистралей. ТТК примыкает непосредственно к территории жилого комплекса, развязка с Волгоградским проспектом достигает уровня третьего этажа.
Самой большой проблемой этой части столицы является практически полное отсутствие зеленых насаждений. В пешей доступности нет ни одного крупного парка. Компенсировать недостаток зелени застройщик планирует за счет создания дворов в концепции «жизнь на природе», оборудовав собственные прогулочные зоны, цветники и березовые рощи. Учитывая окружение, этого будет недостаточно, чтобы глобально улучшить обстановку в районе, но этого хватит, чтобы создать комфортное пространство для жителей комплекса. Также в 15 минутах езды на автомобиле находится детский парк Липки и живописный Симонов монастырь.
Инфраструктура
Застройщик ориентирован на создание собственной инфраструктуры. В планах открыть частные образовательные учреждения: детские сады и школу на 650 мест. На первых этажах ЖК в коммерческих помещениях будут располагаться магазины, отделения банков, кафе, бытовые службы.
Частный детский сад «Горница-узорница» на 75 мест открылся в ЖК Метрополия» совсем недавно, осенью 2022 года. Планируется строительство еще одного ДОУ на 185 мест, уже во 2-й очереди строительства. Также детсады и ясли можно найти около метро «Дубровка» («Домовенок», «Искорка», «Лимония», «Цветик-семицветик») и «Росток» ближе к метро «Волгоградский проспект». Время в пути – не менее 20 минут.
Зато довольно быстро (за 6 минут) пешком можно добраться до Московского городского открытого колледжа, Московского архитектурно-строительного института (7 минут) и Московского финансово-юридического университета (тоже 7 минут). В радиусе 20 минут ходьбы расположены подразделения школы им. Маяковского, а также Ломоносовская гимназия.
Из медицинских учреждений в пешей доступности только частная клиника и стоматология. Взрослая городская поликлиника №13 находится примерно в получасе ходьбы от ЖК «Метрополия». Примерно на таком же расстоянии и детская поликлиника №61 – до нее придется ехать на метро или на общественном транспорте с 1 пересадкой.
Зато объектов спортивной инфраструктуры вокруг ЖК «Метрополия» много, они разнообразные, время в пути пешком займет не более 20 минут. Здесь есть фитнес-клуб, центр танцев и йоги, центр капоэйры, сквош-клуб, крупный сетевой картинг-центр и ледовый комплекс «Морозово» с четырьмя ледовыми аренами, школой хоккея для взрослых и детей и сауной. А также спортивный клуб «Территория мяча» с площадками для волейбола, баскетбола, стритбола, футбола, настольного тенниса и бадминтона.
Торговая инфраструктура возле «Метрополии» тоже развита хорошо. В основном она сосредоточена вокруг метро «Дубровка». Там есть одноименный крупный ТЦ, в получасе ходьбы от ЖК находится гипермаркет Metro Cash & Carry. В пяти минутах ходьбы – строительный торговый центр «Метр квадратный».
Безопасность
ЮВАО, где расположен ЖК «Метрополия», можно назвать относительно спокойным районом. Поблизости нет потенциально опасных объектов (вроде вокзалов или тюрем), а общее число преступлений, совершенных в 2021 году – 1053, что на 132 меньше, чем годом ранее. В отчете МВД за прошедший год отмечается снижение числа уличных преступлений и высокий уровень их раскрываемости.
Что касается охраны порядка, то в радиусе 2 км от ЖК находятся 2 участковых пункта полиции и ОВМД по Нижегородскому району, которое работает 24 ч.
Безопасность жителей на территории ЖК обеспечивается круглосуточной системой видеонаблюдения: внешней и внутренней. Въезд машин на территорию двора ограничен. Вход на территорию комплекса и в дома осуществляется по биометрическим считывателям – системе распознавания лиц.
Цены в ЖК «Метрополия»
Продажи квартир в «ЖК «Метрополия» открылись в сентябре 2018. На тот момент цены были одними из самых демократичных в сегменте бизнес-класса: студию можно было приобрести за 3,8 млн рублей. Средняя стоимость 1 кв. метра по проекту составляла около 139 тыс. руб.
К осени 2022 года средняя цена квадратного метра выросла до 329 тыс. руб. Минимальная стоимость студии в строящихся домах второй очереди на сегодняшний день составляет 7,6 млн рублей в формате апартаментов и 9,2 млн руб. в формате квартир.
Цены в ЖК «Метрополия»:
|
Тип жилья |
Метраж, кв. м |
Цена, руб. |
Цена за кв. м, тыс. руб. |
|
1-комнатные |
37.70 — 42.70 |
21 295 929 — 22 422 624 |
509.5 — 576.7 |
|
2-комнатные |
57.20 — 66.00 |
27 680 224 — 30 033 234 |
455 — 491.9 |
|
3-комнатные |
78.10 — 90.60 |
33 396 262 — 39 811 905 |
427.6 — 439.4 |
|
4-комнатные |
99.60 |
43 674 102 |
438.5 |
Квартиры в домах 2-й очереди в ЖК «Метрополия» реализуются с использованием эскроу-счетов.
Комплекс аккредитован многими банками, в их числе Сбербанк, Московский Кредитный Банк, РНКБ БАНК, Россельхозбанк, ВТБ, ДОМ.РФ, Возрождение, СМП, Совкомбанк, ТрансКапитал Банк, Уралсиб, Открытие, Газпромбанк, ВБРР, Райффайзен Банк, АбсолютБанк, Зенит, Альфа-банк.
Наиболее выгодные ставки по программам субсидированной и семейной ипотеки предлагает МКБ – от 0,01% годовых на первые 12 месяцев и с первоначальным взносом от 15%. Со 2 года устанавливается ставка от 5,59%.
Приобретение квартиры в ЖК «Метрополия» также возможно по программе Trade-in: стоимость имеющейся квартиры (по оценке MR Group) идет в зачет при покупке новой.
Провести сделку можно полностью онлайн, без необходимости посещать офис продаж.
Сейчас для покупателей квартир и апартаментов в ЖК «Метрополия» предлагаются скидки до 15%, максимальная выгода может достигать 3,3 млн руб. Минимальный бюджет покупки апартаментов с новогодним дисконтом начинается от 7,5 млн рублей (323,5 тыс. рублей за кв. метр), для квартиры – 8,4 млн рублей (313,7 тыс. рублей за кв. метр). Также скидки действуют и в других проектах MR Group.
Конкуренты
Территории бывших промышленных зон в Южнопортовом районе привлекли внимание и других застройщиков, что позволяет надеяться на скорое преображение этой локации, появление новых объектов социальной инфраструктуры и зеленых островков. Ближайшими конкурентами ЖК «Метрополия» можно считать сразу три строящихся комплекса: «Первый Дубровский» компании ПИК, MYPRIORITY Dubrovka и HighWay девелопера «Гранель». Неподалеку также строится ЖК бизнес-класса Champine от девелоперской компании TOUCH.
Цены в ЖК «Первый Дубровский»:
|
Тип жилья |
Метраж, кв. м |
Цена, руб. |
Цена за кв. м, тыс. руб. |
|
студии |
20.01 — 25.73 |
16 654 352 — 19 112 092 |
719.8 — 848.1 |
|
1-комнатные |
32.11 — 42.68 |
20 245 917 — 23 836 780 |
537.7 — 661.5 |
|
2-комнатные |
45.61 — 58.70 |
23 153 329 — 27 142 230 |
441.4 — 525.6 |
|
3-комнатные |
70.00 — 72.84 |
29 461 810 — 32 165 588 |
411.4 — 441.8 |
Проект компании ПИК – это 4 высотных дома с собственной начальной школой и детским садом. Новостройка привлекательна расположением в непосредственной близости от станции метро «Волгоградский проспект» и демократичными ценами. Квартиру-студию с готовой отделкой можно приобрести по цене от 7,2 млн руб. Ввод в эксплуатацию намечен на II квартал 2025 года.
Цены в апарт-комплексе HighWay:
|
Тип жилья |
Метраж, кв. м |
Цена, руб. |
Цена за кв. м, тыс. руб. |
Нет в продаже | |||
Апарт-комплекс HighWay находится в паре минут ходьбы от станции метро «Волгоградский проспект». Проект предполагает собственную инфраструктуру в виде кафе, магазинов, фитнес-центров и подземного паркинга. Концепция комплекса ориентирована на успешных и амбициозных, но малопривлекательна для семейного проживания. Стоимость студий площадью 20,6 кв. м. здесь начинается от 5,2 млн руб. Срок сдачи первого корпуса – II квартал 2024 года.
Цены в ЖК MYPRIORITY Dubrovka:
|
Тип жилья |
Метраж, кв. м |
Цена, руб. |
Цена за кв. м, тыс. руб. |
|
студии |
29.08 — 29.29 |
15 050 080 — 15 849 106 |
517.5 — 541.1 |
|
1-комнатные |
37.39 — 43.43 |
18 204 907 — 20 751 816 |
462.5 — 513.1 |
|
2-комнатные |
48.50 — 62.95 |
22 978 802 — 28 029 929 |
395.8 — 577.9 |
|
4-комнатные |
86.20 — 93.80 |
37 374 188 — 41 682 639 |
433.6 — 444.4 |
ЖК MYPRIORITY Dubrovka – проект бизнес-класса, включающий в себя высотные монолитные дома с подземным паркингом. Очевидными преимуществами этого проекта являются близость к станции метро «Дубровка» и одноименному торговому комплексу. Цены на квартиры здесь начинаются от 8,7 млн руб. Сдача готового жилья запланирована на II квартал 2025 года.
ЖК бизнес-класса Champine, состоящий из трех корпусов высотой от 6 до 13 этажей, строится также в Южнопортовом районе, между станциями метро «Крестьянская застава» и «Волгоградский проспект». Здесь предлагаются квартиры площадью от 36 до 103 кв. м с полной чистовой отделкой, а также кладовые помещения. Минимальная стоимость жилья намного выше, чем у других проектов в этой локации, – от 15,3 млн руб. – как по причине того, что в стоимость включен ремонт, так и благодаря клубной концепции комплекса.
|
Тип жилья |
Метраж, кв. м |
Цена, руб. |
Цена за кв. м, тыс. руб. |
|
1-комнатные |
45.50 — 49.56 |
34 391 400 — 39 540 000 |
755.9 — 797.8 |
|
2-комнатные |
68.70 |
47 532 300 |
691.9 |
|
3-комнатные |
74.90 — 89.90 |
51 186 000 — 58 729 500 |
653.3 — 727.1 |
|
4-комнатные |
127.77 — 132.70 |
82 460 000 — 90 240 000 |
640.7 — 680 |
Резюме
Плюсы ЖК «Метрополия»:
К минусам проекта можно отнести плохую экологию района, которую в будущем, вероятно, сможет улучшить сам застройщик, занявшись созданием зеленых зон вокруг ЖК.
Близость ТТК и Волгоградского проспекта создает постоянный шумовой фон, что можно нивелировать с помощью премиальных стеклопакетов, однако летом при открытых окнах шум будет слышен.
Удаленность городских объектов социальной инфраструктуры – школ, детских садов, поликлиник – также является существенным недостатком, особенно для семей с детьми и тех, кто нуждается в регулярной медицинской помощи.
Сегодня квартиры здесь привлекательны скорее для инвестирования и последующей сдачи в аренду. Для собственного проживания этот ЖК могут выбрать одиночки, молодые пары без детей либо семьи с собственным автомобилем.
Дата публикации 22 ноября 2022