Жилой комплекс бизнес-класса «НАЗАРÉ» возводится в районе Богородское рядом со станцией метро «Бульвар Рокоссовского» и недалеко от национального парка «Лосиный остров». Шесть высотных корпусов, приятные виды из окон, метро у дома и свой ТРЦ — чем еще интересен новый проект компании «Мангазея», изучил Новострой-М.
Примечание
В статье перечислены только факты о проекте, собранные из открытых источников. В рубрике «Экспертиза проекта» Новострой-М решил отказаться от оценок и оценочных суждений: право делать выводы из описанных фактов мы предоставляем нашим читателям.
Компания «Мангазея» основана в 2012 году, ее специализация — строительство жилой и коммерческой недвижимости сегментов «комфорт», «бизнес» и «премиум». В московском портфеле девелопера — пять сданных жилых комплексов комфорт- и бизнес-класса (более чем на 600 тыс. кв. м) и три строящихся. Также есть перспективный проект на Красноармейской улице в САО Москвы (оайон Аэропорт).
Жилой комплекс «НАЗАРÉ» первоначально был выведен на рынок под зонтичным брендом компании и назывался «Мангазея в Богородском». В октябре 2025 года проект прошел ребрендинг и получил новое имя, под которым реализуется сегодня.
Вместе с новым неймингом в «НАЗАРÉ» была внедрена новая, усовершенствованная концепция благоустройства и общественных пространств. Девелопером было принято решение увеличить площадь озеленения до 13 тыс. кв. м, создать на территории водный объект, арт-объекты и новую зону воркаута. Кроме того, на первом этаже более 200 кв. м будет отведено под общественную гостиную, а в составе ЖК появится собственный торгово-развлекательный центр.
«НАЗАРÉ» — это шесть башен-небоскребов высотой от 24 до 43 этажей и жилой площадью 88,4 тыс. кв. м (при суммарной площади застройки в 180 тыс. кв. м). Строительство ведется в одну очередь, завершить его планируется во II квартале 2028 года. Комплекс относится к бизнес-классу.
ЖК «НАЗАРÉ» в цифрах (по корпусам в продаже):
Архитектурный облик проекта разработан известным бюро СПИЧ. Силуэты зданий отличаются визуальной легкостью и стройностью, ломаными линиями, асимметричными гранями и устремленной вверх динамикой. Самая высокая башня высотой 143,85 м станет новой архитектурной доминантой на востоке Москвы. Здания будут украшены стильной архитектурной подсветкой.
«Перед нами стояла задача спроектировать комплекс, состоящий из нескольких доминант, имеющих разную высоту и вместе образующих запоминающийся архитектурный ансамбль. В основу проекта лег динамизм форм, устремленность ввысь и созвучие современному ритму жизни. Архитектура проекта выражает наше время с его стремлением к активным силуэтным формам и развитым общественным пространствам», — отметил руководитель бюро СПИЧ Сергей Чобан.











Для комфорта резидентов и гостей комплекса спроектированы уютные дизайнерские лобби. Концепцию мультисценарной общественной гостиной, дизайн МОП и детских игровых разработало архитектурное бюро Above. Теплая цветовая гамма, контрастные материалы, стильная мебель в его интерьерах будут полностью соответствовать прогрессивной и яркой архитектуре здания. В отделке лобби будут использованы теплый известняк и травертин, черный базальт, латунные инкрустации, карминовые панно и стальная скульптура. В лобби расположатся зоны для встречи гостей, проведения встреч и коворкинг.
Также стоит отметить, что лобби будут разделены на welcome-зону и кей-пойнт для курьеров, чтобы службы доставки не нарушали приватность резидентов ЖК.
Башни проекта представляют собой аллюзию на горную цепь, а благоустройство территории символизирует образы движущейся воды и мягкой травы. Ландшафтный проект разработан студией DEREVO PARK. Общая площадь двора-парка составит 1,4 гектара. В ландшафтном дизайне появятся силуэты животных и птиц, что отражает близость к «Лосиному острову».




Здесь появятся детские площадки и места для отдыха, зонированные по возрастам, а также площадки для воркаута и стритбола, зона для пинг-понга и коворкинг на свежем воздухе.
Для детей в доме также продумана крытая всесезонная игровая.
Безопасность жителей обеспечат такие базовые для бизнес-класса опции как огороженная территория, круглосуточная охрана и система видеонаблюдения. Высокий уровень комфорта гарантирует система «умный дом». Предусмотрены бесконтактный доступ на территорию по Bluetooth-метке, родительская функция push-уведомлений, датчики противопожарной безопасности в местах общего пользования и квартирах. Двухуровневый подземный паркинг рассчитан на 620 машино-мест с заездом для высоких грузовых автомобилей, также запроектированы 259 келлеров и специальные помещения для хранения велосипедов.
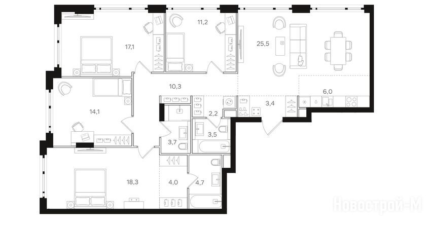
Квартирография ЖК «НАЗАРÉ» представлена вариантами от студий до 4-комнатных, всего продумано 39 видов планировочных решений.
Площадь лотов — от 21,5 до 124 кв. м. Квартиры продаются в основном без отделки, но в одном из шести корпусов будет выполнена отделка white box. Высота потолков для квартир без отделки — от 2,95 м для типовых этажей до 3,25 м для верхнего этажа, для квартир с отделкой — от 2,85 м для типовых этажей до 3,25 м для верхних этажей.
Из окон большинства квартир открываются виды на Лосиный остров и панорамы города.





По данным на начало января 2026 года в реализации представлены все типы квартир, включая студии и 4-комнатные квартиры. В планировки включены кухни-гостиные до 36 кв. м, гардеробные и ванные с окном. Есть варианты квартир с двумя гардеробными (можно организовать постирочную), столовой и с мастер-спальней. Также продуманы планировки квартир с террасами, тремя окнами в гостиной, с угловыми спальнями.
Студии в продаже не много (что плюс для бизнес-класса). Квадратных в плане квартир студийного типа почти нет, в основном типичные «линейки», однако в них предусмотрены варианты либо с двумя узкими окнами, либо с увеличенным оконным пространством. Площади санузлов достигают 5 кв. метров, также предусмотрены прихожие по 3,7-4 кв. м.
1-комнатные квартиры представлены в евроформате — с одной небольшой спальней и просторной кухней-гостиной. Есть варианты с окнами на две стороны света (угловые), с двумя санузлами (где можно организовать постирочную), с гардеробной, с двумя окнами в кухне-гостиной.
2-комнатные лоты (их в квартирографии больше всего, во всяком случае, в выставленном на продажу объеме) тоже запроектированы в евроформате. Особенности таких квартир: по два санузла, окна на две стороны, мастер-спальни. Среди недостатков: есть варианты с узкими коридорами и небольшой прихожей. Однако евроформат здесь «честный»: то есть кухня идет как отдельное помещение, а не подается как дополнительная комната, что часто можно встретить в разных проектах других застройщиков.


3-комнатных квартир в продаже на данный момент всего 12. В таких лотах есть три отдельных комнаты (в том числе большая мастер-спальня), кухня-гостиная и гардеробная, а окна выходят на две стороны света. Есть планировки с тремя окнами в гостиной.
4-комнатных квартир представлено меньше всего. Площади достигают 124 кв. метров, на которых умещаются большая мастер-спальня с собственной гардеробной и 5,5-метровым санузлом, еще одна спальня сопоставимой площади (14,8 кв. м) и две поменьше, еще два санузла (один со стороны прихожей — гостевой, другой с приватной стороны), две гардеробных помимо зоны хранения в прихожей.
ЖК «НАЗАРÉ» возводится в Восточном административном округе Москвы, в районе Богородское, в рамках ТПУ «Открытое шоссе». Совсем рядом с новостройкой расположены станции метро и МЦК «Бульвар Рокоссовского».
Станции метро и МЦК, время в пути от ЖК «НАЗАРÉ»:
Рядом с новостройкой проходят Открытое шоссе и МСД, выезд на СВХ займет 2 минуты, до ТТК — 15 минут, до Садового кольца можно доехать меньше чем за 20 минут.
Экологическая ситуация в Богородском достаточно неплохая для Москвы: эксперты компании EcoStandard присвоили району 5 баллов из 10, это соответствует благоприятной обстановке. Здесь нет слишком загруженных дорог (МСД проходит по окраине района) и промзон. Зато большую часть территории занимает Яузский лесопарк, входящий в состав «Лосиного острова». Также на территории района есть несколько небольших зеленых зон, а по соседству расположен парк Сокольники.
Жилой комплекс «НАЗАРÉ» строится рядом с МСД и в то же время недалеко от национального парка «Лосиный остров».
В рамках собственной инфраструктуры ЖК «НАЗАРÉ» появятся торговый центр «Открытый» с фитнес-клубом и детским игровым центром, детский сад и различные объекты на первых этажах корпусов.
Ближайшие детские сады находятся по другую сторону трамвайной линии. Это дошкольные отделения школы №1080 (7-11 минут пешком) и корпус №17 «Лукоморье» школы №1360 (6 минут пешком). Также поблизости, на Ивантеевской улице, работает центр развития ребенка «Дети в деле».
Поблизости расположены и школьные корпуса этих же школ: отделения №№4 и 6 школы №1080 и корпуса №№3 и 4 школы №1360. До них можно дойти пешком за 9-13 минут. Совсем рядом с жилым комплексом есть медицинский и технологический колледжи.
Ближайшая детская поликлиника находится в 1,8 км или 22 минутах ходьбы от ЖК «НАЗАРÉ», это головное здание поликлиники №28 на бульваре Маршала Рокоссовского, 35. Там же находится и травмпункт этой поликлиники. Дорога на общественном транспорте займет около 20 минут, на автомобиле — 10 минут.
Примерно на таком же расстоянии находится ближайшая взрослая поликлиника — КДЦ-2 на улице Игральная, 8. Там же работает платное отделение. Недалеко от нашей новостройки есть несколько платных клиник и медицинских лабораторий.
Чтобы посмотреть объекты инфраструктуры рядом с ЖК, нажмите соответствующую кнопку под картой.
Ближайшие супермаркеты — «Атак», «ВкусВилл», «Магнит». Кстати, «Атак» находится в ТЦ «Фабрика» на Ивантеевской, 25, это совсем рядом с ЖК «НАЗАРÉ». В этом торговом центре есть различные магазины, школа танцев Street Style Moscow, салоны красоты, аптеки, пункты выдачи заказов, кафе и прочее. Не стоит забывать о том, что свой ТЦ появится и в рамках нашей новостройки.
В радиусе 10 минут ходьбы от ЖК работают три фитнес-клуба: DDX Fitness, MyFitLab и Mamasita, а также студия пилатеса. Это станет неплохим дополнением к собственной спортивной инфраструктуре ЖК «НАЗАРÉ».
Безопасность
Богородское — достаточно безопасный район. Правда, согласно отчету начальника районного ОМВД, в 2023 году число зарегистрированных преступлений на территории района выросло на 4,5% (с 820 до 857). В основном это мошенничества общеуголовной направленности.
Ближайший участковый пункт полиции находится по адресу 5-й проезд Подбельского, 4а корп. 3, а отдел МВД по району Богородское — на улице Бойцовая, 22а. До участкового пункта можно дойти за 7 минут, до ОМВД (который работает круглосуточно) — за 10 минут.
Продажи в ЖК «НАЗАРÉ» начались в декабре 2024 года. Купить квартиру на старте предлагалось от 8,9 млн рублей. Сегодня цены значительно выше стартовых.
Актуальные цены в ЖК «НАЗАРÉ»:
|
Тип жилья |
Метраж, кв. м |
Цена, руб. |
Цена за кв. м, тыс. руб. |
|
студии |
21.60 — 28.10 |
14 745 456 — 18 771 120 |
558.9 — 756.9 |
|
1-комнатные |
31.40 — 57.40 |
19 544 280 — 30 482 580 |
438.8 — 691.7 |
|
2-комнатные |
49.90 — 81.20 |
23 618 169 — 45 147 200 |
367.9 — 586.9 |
|
3-комнатные |
76.90 — 94.60 |
42 664 120 — 54 423 380 |
522.7 — 594.1 |
Купить квартиру можно в ипотеку, в рассрочку до 24 месяцев или по программе trade-in. Ипотеку предоставляют следующие банки: Московский кредитный банк, Сбербанк, Альфа-Банк, Совкомбанк, Дом.рф, Абсолют Банк, Уралсиб, банк «Санкт-Петербург», ВБРР, Примсоцбанк, Севергазбанк, Промсвязьбанк, ВТБ, Металлинвестбанк.
Данные об условиях кредитования действительны на момент публикации статьи. Актуальную информацию вы всегда можете найти в карточке проекта.
Ближайший сосед нашей новостройки — ЖК «Талисман на Рокоссовского». Проект бизнес-класса компании 3S Group построен в районе Богородское недалеко от метро «Бульвар Рокоссовского», это четырехсекционный корпус высотой до 29 этажей. На первом этаже работают продуктовый магазин и пункты выдачи заказов. Квартир в продаже осталось совсем немного, цены — от 13,6 млн рублей за 1-комнатный лот площадью 33,6 кв. м.
Цены в ЖК «Талисман на Рокоссовского»:
|
Тип жилья |
Метраж, кв. м |
Цена, руб. |
Цена за кв. м, тыс. руб. |
|
2-комнатные |
44.30 |
21 999 150 |
496.6 |
|
3-комнатные |
129.70 — 130.10 |
32 990 000 — 40 392 000 |
253.6 — 311.4 |
|
4-комнатные |
108.00 |
34 984 600 |
323.9 |
Еще один проект — «Лосиноостровский парк» от компании ПИК. Квартал комфорт-класса расположен в районе Метрогородок недалеко от нацпарка «Лосиный остров» и станции метро «Бульвар Рокоссовского». Здесь уже построены часть корпусов, заселение еще одного запланировано на февраль 2025 года. Ведется строительство детского сада, также будет построена школа. В начале февраля 2025 года в продаже есть 38 квартир с отделкой по цене от 9,66 млн рублей.
Цены в ЖК «Лосиноостровский парк»:
|
Тип жилья |
Метраж, кв. м |
Цена, руб. |
Цена за кв. м, тыс. руб. |
|
студии |
28.10 — 30.70 |
13 634 120 — 14 487 330 |
471.9 — 485.2 |
|
1-комнатные |
29.00 — 41.00 |
15 323 600 — 17 300 790 |
417.3 — 528.4 |
|
2-комнатные |
46.70 — 72.70 |
19 861 510 — 23 663 850 |
325.5 — 425.3 |
|
3-комнатные |
72.00 — 84.90 |
23 846 400 — 26 098 260 |
306.4 — 334.4 |
Недалеко от «Лосиноостровского парка» возводится ЖК «Сиреневый парк» от компании AFI Development. В проекте комфорт-класса уже построены корпуса трех очередей, два корпуса четвертой очереди будут сданы в начале 2026 года. На первых этажах работают магазины, пункты выдачи заказов, салоны красоты, детский сад и другие объекты. В продаже есть квартиры в готовых и строящихся корпусах, цены — от 11 млн рублей за 29-метровую студию без отделки в сданном доме и от 12,8 млн рублей за студию площадью 23,8 кв. м с отделкой в строящемся корпусе.
Цены в ЖК «Сиреневый парк»:
|
Тип жилья |
Метраж, кв. м |
Цена, руб. |
Цена за кв. м, тыс. руб. |
|
студии |
24.00 — 38.80 |
13 203 856 — 20 703 982 |
473 — 550.2 |
|
1-комнатные |
34.80 — 46.10 |
16 583 718 — 23 853 836 |
415.8 — 685.5 |
|
2-комнатные |
39.90 — 66.00 |
17 086 464 — 28 634 726 |
373.8 — 524 |
|
3-комнатные |
57.90 — 79.20 |
21 718 046 — 32 131 430 |
350 — 465.4 |
|
4-комнатные |
80.60 — 97.20 |
29 650 609 — 40 870 778 |
351.8 — 421.3 |
Также в Метрогородке строится комплекс «Метроном» от компании «Брусника». Здесь будут построены два квартала, подземный паркинг, детский сад и коммерческие павильоны. Квартиры продаются с предчистовой отделкой, цены — от 8,3 млн рублей за студию площадью 17,5 кв. м. Ввод проекта в эксплуатацию запланирован на второе полугодие 2026 года.
Цены в ЖК «Метроном»:
|
Тип жилья |
Метраж, кв. м |
Цена, руб. |
Цена за кв. м, тыс. руб. |
|
студии |
28.30 — 30.00 |
16 550 000 — 18 550 000 |
561 — 633.1 |
|
1-комнатные |
35.80 — 113.60 |
18 650 000 — 34 280 000 |
284 — 571.1 |
|
2-комнатные |
56.00 — 138.90 |
22 530 000 — 40 150 000 |
265.2 — 431.3 |
|
3-комнатные |
115.90 — 150.60 |
30 710 000 — 51 490 000 |
257.5 — 368.6 |
Резюме
Плюсы ЖК «НАЗАРÉ»:
К минусам проекта можно отнести нехватку машино-мест — их предполагается всего 620 на почти 1,9 тыс. квартир. Кроме того, проект строится достаточно близко к МСД и трамвайным и ж/д путям — однако именно это обеспечивает его хорошую транспортную доступность.
Дата публикации 02 января