ЖК «Level Бауманская» — это три монолитных дома в престижном Басманном районе ЦАО. Развитая инфраструктура, набережные и парки – здесь есть всё, что нужно городскому жителю. Главный акцент в проекте сделан на комфорте и приватности: закрытый двор с тематическими «комнатами», квартиры с 6-метровыми потолками и каминами. Чем ещё удивит покупателей очередной проект Level Group, разбирался Новострой-М.
Примечание
В статье перечислены только факты о ЖК, собранные из открытых источников. В рубрике «Экспертиза проекта» Новострой-М решил отказаться от оценок и оценочных суждений: право делать выводы из описанных фактов о жилом комплексе мы предоставляем нашим читателям.
Кто строит?
Проект принадлежит одному из лидеров московского девелопмента — компании Level Group, которая входит в топ-5 застройщиков Москвы с наивысшим рейтингом надежности. В числе приоритетов компании: внимательное отношение к выбору локаций, создание необходимой инфраструктуры для жителей, соблюдение сроков ввода домов. Компания Level Group одновременно реализует 12 проектов, из которых 6 уже сданы. Девелопер работает преимущественно в сегменте бизнес-класса. Финансовыми партнерами строящихся комплексов выступают крупные и надежные банки.
Что строят?
ЖК «Level Бауманская» — это комплекс бизнес-класса, включающий в себя три корпуса высотой 9-21 этажей. Дома возводятся по монолитной технологии. Лаконичная архитектура, вдохновленная эстетикой фабричного прошлого, и строгая геометрия зданий делают этот проект запоминающимся.
Общее число квартир в комплексе — 351, при этом на этаже будет не более 3-7 квартир. Во всех помещениях будут высокие потолки от 3 до 6,3 метра, увеличенные оконные проемы – 2,3х2,4 метра. Эргономичные планировки продуманы с учетом жизненных сценариев разных категорий покупателей. Есть редкие форматы жилья — с возможностью установки камина, с окном в ванной, с окнами на три стороны света.
В проекте предусмотрен благоустроенный двор для спорта, отдыха и детских игр, а также подземный паркинг на 180 машино-мест.
ЖК «Level Бауманская» в цифрах:
|
№ дома |
Лоты |
Энергоэффект. |
Машино-места |
Класс |
Срок ввода |
|
Корпуса А, B, C |
351 |
А |
180 |
Бизнес |
IV кв. 2025 |
Архитектура и дизайн
На месте строящегося комплекса когда-то находился ламповый завод. Его монументальная и лаконичная эстетика вдохновила архитекторов бюро ARCH(E)TYPE, которые разрабатывали этот проект.





Комплекс объединяет три корпуса — А, В, С, в корпусе А будет три секции. Все корпуса имеют разную выостность — 9, 16, 21 этаж. Первые этажи займут арендаторы – магазины, кафе, службы сервиса, а также детский сад.
У домов общая стилистика — строгая геометрия, квадратные окна в пол, аккуратные балконы с ограждениями из металлического профиля, выкрашенного в цвет фасада — темно-серый, бежевый или бордовый. Фасады будут подсвечиваться в вечернее время, большое количество наружных ламп и внимание к освещению на территории комплекса — ещё одна отсылка к историческому прошлому этой локации.
Входные группы будут представлять собой просторные и светлые лобби с потолками высотой более 5 метров, панорамными окнами и дизайнерским интерьером. Основные принципы, на которые опирались дизайнеры при разработке проектов лобби, — геометричность, упорядоченность, монохромность, а также экологичность используемых в отделке материалов. Кроме привычных колясочных и лапомоек, в лобби будут зоны для общения, встречи гостей или работы.
Благоустройство



Благоустроенная территория ЖК займет 0,35 га. Вся эта площадь будет закрыта от посторонних и облагорожена с учетом потребностей разных групп резидентов. Более 50% территории займут деревья, кустарники и цветники. Чтобы двор оставался зеленым круглый год, будут высажены хвойники.
Также во дворе разместятся тематические «комнаты» — функциональные зоны: спортивная площадка с воркаутом, разноуровневая детская площадка и семейный сад для малышей, коворкинг с wi-fi и открытыми беседками, солярий под открытым небом.
Безопасность и технологии
Для комфорта и безопасности жителей территория комплекса будет закрыта от посторонних, в местах общего пользования будет вестись круглосуточное видеонаблюдение. В домах установят современное инженерное оборудование, системы обнаружения и тушения пожара, скоростные бесшумные лифты. В любой точке комплекса будет обеспечен доступ к сети wi-fi, что удобно для тех, кто любит работать за пределами квартиры — в лобби или во дворе.
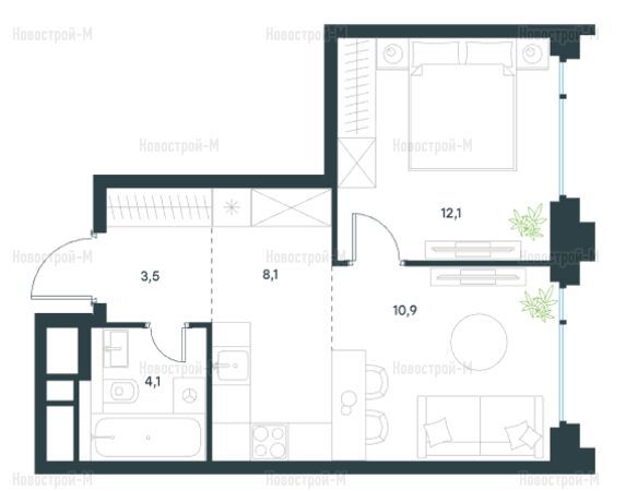
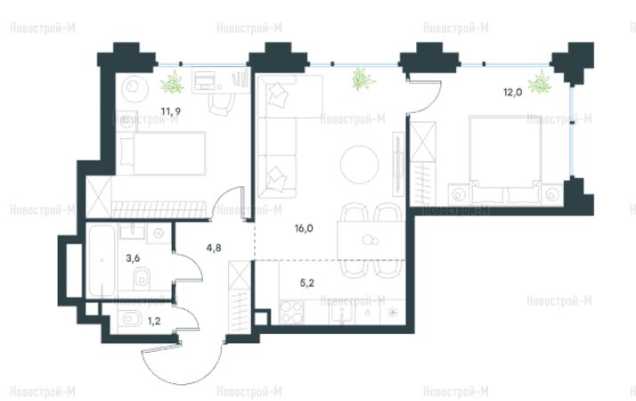
Планировки
В ЖК «Level Бауманская» большой выбор как популярных планировочных решений, так и редких форматов жилья, всего более 20 вариантов. Здесь представлены квартиры с угловой, трехсторонней или линейной планировкой, преимущественно европейского типа — с совмещенной кухней-гостиной. Из окон будут открываться виды во двор или на город. Есть варианты с балконами, гардеробными и мастер-спальнями. Площади в проекте варьируются от 35,5 до 149,2 кв. м.




Самые маленькие квартиры в проекте — однокомнатные. Их площадь — 35,5–36 кв. м, планировка — классическая, с полноценной десятиметровой кухней и большой спальней.
Двухкомнатные квартиры представлены в двух форматах — европейском и классическом с проходной гостиной. Есть варианты с раздельным санузлом или мастер-спальней. В большинстве типов планировок предусмотрен балкон.
Трехкомнатные квартиры также есть в евроформате с проходной кухней-гостиной либо линейные, где вход в каждую комнату осуществляется из коридора. В продаже «трешки» с мастер-спальнями, гостевыми санузлами, гардеробными и постирочными. В трехкомнатных квартирах просторные прихожие площадью 9–10 кв. м, а кухня-гостиная в отдельных лотах достигает 43,5 кв. м.
Четырехкомнатные квартиры имеют меньшую площадь по сравнению с трехкомнатными — 95–97 кв. м. Здесь четыре полноценные спальни, в одной из которых имеется собственный санузел и гардеробная. Проход в комнаты осуществляется через кухню-гостиную. Большинство четырехкомнатных квартир являются угловыми с панорамным остеклением.
В домах ЖК «Level Бауманская» представлены четыре редких формата жилья (в продаже пока представлены не все):
В корпусах В, С, а также секциях 2 и 3 корпуса А жилье будет передаваться владельцам без отделки, с возможностью свободной планировки. Новые хозяева смогут воплотить самые смелые дизайнерские идеи.
В 1 секции корпуса А будет выполнена отделка white box, включающая прокладку коммуникаций, разводку электричества, оштукатуривание стен и стяжку пола. Хозяевам останется сделать только финишные работы. Стоимость отделки white box включена в договор долевого участия — а значит, будет входить в ипотеку.






В корпусе А также будет несколько лотов с отделкой под ключ. Покупателям предложат выбор из двух вариантов дизайна — в стиле Modern (холодные тона) и Classic (нейтральные бежевые оттенки). Чистовая отделка является дополнительной опцией и оплачивается отдельно, но она позволяет сэкономить силы, время и средства на самостоятельном ремонте.
Где строят?
Басманный район — один из престижных и развитых районов столицы, в том числе с точки зрения транспортной доступности. Через его территорию проходит ТТК. Автодорога обеспечивает возможность быстро добраться в соседние районы, а выехать на нее жители нового комплекса смогут всего за 5 минут. Примерно 8-10 минут потребуется, чтобы добраться до Садового кольца, около 15-20 минут — до Кремля.
Рядом с новостройкой есть ещё несколько транспортных артерий, позволяющих не испытывать проблем с перемещением на автомобиле и находить удобные пути объезда в часы пик, в их числе: Рубцовская набережная, ул. Бакунинская, ул. Большая Почтовая. По Большой Семеновской улице, переходящей в Измайловское шоссе, можно выехать на МКАД за 15 минут.
Пешеходы оценят близость станций метро. Рядом с новостройкой их две — «Бауманская» и «Электрозаводская». До любой можно дойти за 15 минут по набережной реки Яузы. Около 22 минут займет путь до метро «Лефортово». В 2023 году планируется запуск движения по МЦД-3.
Экология
Эксперты EcoStandard оценили экологическую обстановку в Басманном районе как приемлемую — на 6 баллов из 10 по степени влияния негативных факторов. Они здесь преимущественно антропогенного характера — среди них высокая плотность населения и загруженные автодороги. Зато крупных промышленных предприятий, загрязняющих воду и воздух, здесь нет.
Басманный район сложно назвать зелёным. Однако здесь есть набережные, скверы и небольшие парки, в которых можно отдохнуть или прогуляться, в том числе с детьми. Крупные парковые ансамбли расположены в соседних районах, но до них можно дойти пешком. Прогулка до Лефортовского парка займет 15 минут, до Семеновского парка — около 20 минут. На велосипеде или самокате можно за 15 минут доехать до сада им. Баумана и Сокольников, а за 20 минут — до Измайловского парка.
Инфраструктура
В Басманном районе отлично развита социальная, торговая и развлекательная инфраструктура. Необходимый минимум — продуктовые магазины, кафе и частный детский центр — будет доступен на первых этажах домов. Все остальное — в пешей доступности, в радиусе 1-2 км.
В соседних кварталах функционирует несколько частных учреждений для дошкольников. Детский центр «Клевер» на Рубцовской набережной — в 450 метрах, 5 минут ходьбы. «Бэби-клуб» на Большой Почтовой — 900 метров, 10 минут пешком. Sun school — частный детский сад с углубленным изучением английского языка — 800 метров, менее 10 минут пешком. Частный детский сад «Мишутка», куда принимают детей от 1,5 лет, находится на расстоянии 1 км, дойти до него можно за 12 минут пешком. Доехать на машине — за 5 минут.
Муниципальный детский сад «Школа на Яузе» находится в 500 метрах — менее 5 минут спокойным шагом. Детский сад при общеобразовательной школе №1429 — 900 метров, 10 минут пешком.
Школьники могут посещать лицей №1581 им. Ивана Бунина, который находится в 700 метрах от нового ЖК — до него 7 минут пешком, или «Школу на Яузе», которая находится в 500 метрах. Расстояние до средней общеобразовательной школы №1429 — 900 метров или 10 минут пешком.
В шаговой доступности работают несколько спортивных школ, в том числе «Школа Олимпийского резерва», где дети могут профессионально заниматься в секции бокса. Спортивная школа и реабилитационный центр «Школа волшебства» находятся в соседнем квартале — до них менее 5 минут ходьбы. За рекой Яузой — школа плавания №1, добраться до нее можно пешком всего за 6 минут по пешеходному мостику. До футбольной школы Андрея Соломонова – 1 км, пешком можно дойти за 11 минут.
Сетевые магазины «Пятерочка», «ВкусВилл», «Магнит», «Азбука вкуса» расположены на расстоянии 600–800 метров от нашей новостройки.
Городская поликлиника №64 филиал №2 (Басманный район) в 1,5 км от новостройки. Добраться до нее на автомобиле можно за 5 минут, пешком — за 15 минут. Примерно столько же займет путь до поликлиники №11. Дойти до консультативно-диагностической поликлиники при Военном госпитале им. Бурденко (за рекой Яузой) можно за 14 минут, доехать на машине — за 4 минуты.
Детская городская поликлиника №104, филиал №3 находится в 1,5 км от комплекса, рядом с м. «Электрозаводская». Пешком дойти можно за 16-20 минут, на машине — за 6-10 минут.
До ближайшего спортивного клуба NRG Fitness 700 метров — это 10 минут пешком и не более 2 минут на машине. За 5 минут можно дойти до школы танцев Sofa Dance, а за 8 минут – до клубов Art of Pilates и Lady Stretch. Путь до Fitness Studio 29 займет 20 минут ходьбы.
Безопасность
Судя по отчетам начальника отдела МВД, за последние три года в Басманном районе отмечается тенденция к улучшению общей криминогенной обстановки. В 2022 году на 25% уменьшилось число тяжких преступлений. Почти на треть сократилось количество мошенничеств. Обстановка в районе оценивается как стабильная.
Ближайший участковый пункт полиции находится на ул. Фридриха Энгельса в 600 метрах (менее 10 минут пешком) от ЖК «Level Бауманская».
Цены и способы покупки
Продажи квартир в ЖК «Level Бауманская» стартовали в марте 2023 года, на данный момент можно приобрести жилье в корпусах В и С. В продаже представлены планировки от одно- до четырехкомнатных вариантов. Самые доступные по цене – однокомнатные лоты, от 15,5 млн руб.
Цены в ЖК «Level Бауманская»:
|
Тип жилья |
Метраж, кв. м |
Цена, руб. |
Цена за кв. м, тыс. руб. |
| апартаменты | |||
|
3-комнатные |
132.00 |
52 100 928 |
394.7 |
|
4-комнатные |
121.50 — 131.70 |
45 473 401 — 54 471 049 |
374.3 — 413.6 |
|
5-комнатные |
185.50 |
62 473 804 |
336.8 |
| квартиры | |||
|
2-комнатные |
40.20 |
33 406 802 |
831 |
|
3-комнатные |
76.40 |
62 515 940 |
818.3 |
|
4-комнатные |
92.40 — 94.60 |
64 289 765 — 77 090 790 |
692 — 814.9 |
|
многокомнатные |
109.40 — 113.90 |
88 378 415 — 97 522 163 |
775.9 — 857.7 |
Получить ипотеку на приобретение жилья в «Level Бауманская» можно в МКБ, ВТБ, Сбербанке, Россельхозбанке, Альфа-банке и других финансовых организациях. Всего предлагается порядка 70 различных вариантов кредитования. Первоначальный взнос для большинства ипотечных программ составляет 15-20 %, срок кредита — до 35 лет.
Доступны программы господдержки, в рамках которых минимальная ставка составит 3,9%, а для IT-специалистов — всего 3% годовых. В качестве первоначального взноса может быть использован материнский капитал.
Дополнительную выгоду можно получить в рамках акции «Берем проценты на себя». Застройщик в течение 5 лет выплачивает проценты по кредиту, полученному в Совкомбанке по программе «Семейная ипотека» или «Ипотека с господдержкой». В этот период покупатель может сосредоточиться на погашении основного долга.
Есть возможность купить квартиру в рассрочку от застройщика. Максимальный срок — 2 года и 9 месяцев. С первоначальным взносом от 40% и ставкой от 11,5 % годовых.
Девелопер предлагает ещё несколько программ, которые позволяют сделать приобретение нового жилья выгоднее и комфортнее. Например, покупатели могут реализовать свое старое жилье через trade-in в счет покупки квартиры в ЖК «Level Бауманская».
Конкуренты
Басманный район, несмотря на высокую плотность застройки, является интересной локацией для девелоперов. Место считается престижным, а жилье здесь всегда пользуется спросом. Поэтому конкурентов у ЖК «Level Бауманская» достаточно. Из ближайших стоит отметить ЖК «Интеллигент» и ЖК MYPRIORITY Basmanny.
ЖК «Интеллигент» — это три монолитных дома высотой по 28 этажей, объединенных общим стилобатом. Новостройка относится к бизнес-классу. Строительство ведется буквально в нескольких метрах от БКЛ метро «Электрозаводская» и Семеновской набережной. Локация характеризуется отличной транспортной доступностью как для автомобилистов, так и для пешеходов, в шаговой доступности объекты социальной инфраструктуры и прогулочные зоны. В числе недостатков можно отметить близость железной дороги. В проекте представлены квартиры разной площади и конфигурации — от 40 до 76 кв. м, в том числе видовые, с увеличенной площадью остекления и балконами. Стоимость жилья в диапазоне 10,3 – 37,3 млн руб., что для престижного Басманного района вполне приемлемо. Ввод в эксплуатацию запланирован на II квартал 2024 года.
Цены в ЖК «Интеллигент»:
|
Тип жилья |
Метраж, кв. м |
Цена, руб. |
Цена за кв. м, тыс. руб. |
|
студии |
27.90 — 28.90 |
18 268 539 — 18 268 771 |
632.1 — 654.8 |
|
1-комнатные |
39.40 |
21 641 446 |
549.3 |
|
2-комнатные |
36.60 — 53.30 |
21 599 727 — 29 610 466 |
522.8 — 729 |
|
3-комнатные |
57.40 — 83.70 |
29 096 165 — 39 695 944 |
434.6 — 594.8 |
|
4-комнатные |
92.10 — 97.70 |
47 756 917 — 54 450 637 |
518.1 — 557.3 |
ЖК MYPRIORITY Basmanny от ГК «Гранель» — это монолитный дом бизнес-класса, состоящий из нескольких разновысотных секций от 9 до 19 этажей. Секции образуют закрытый внутренний двор, где, по замыслу архитекторов, будет создано приватное пространство для отдыха со сложным ландшафтом, перголами, фонтанами, детскими площадками, арт-объектами и дизайнерской подсветкой. На первых этажах разместятся кафе и магазины, под домом – двухуровневый паркинг. В проекте предусмотрены квартиры от студий до многокомнатных с панорамным остеклением, балконами, гардеробными. Высота потолков — 3 метра. Площадь квартир от 28 до 126 кв. м. Стоимость жилья — от 13,5 млн руб. Сдача объекта запланирована на III квартал 2024 года.
Цены в ЖК MYPRIORITY Basmanny:
|
Тип жилья |
Метраж, кв. м |
Цена, руб. |
Цена за кв. м, тыс. руб. |
|
2-комнатные |
60.70 — 61.70 |
34 385 167 — 34 740 391 |
563.1 — 566.5 |
|
3-комнатные |
68.60 — 77.10 |
41 832 106 — 45 476 337 |
589.8 — 609.8 |
Резюме
ЖК «Level Бауманская» — прекрасный вариант как для семейного проживания, так и для инвестиций. Он сочетает в себе преимущества жилья бизнес-класса и удачно выбранной локации:
Главный недостаток проекта — небольшое количество парковочных мест. В центральном округе Москвы эта проблема стоит остро, особенно если учесть плотность застройки в Басманном районе, станет понятно, что у будущих жильцов комплекса почти нет выбора — покупать или не покупать место в паркинге. А те, кому мест не хватит, будут вынуждены искать альтернативу на прилегающих улицах.
Тем не менее, новостройка может быть интересна инвесторам, занимающимся арендой: найти жильцов в новую комфортную квартиру рядом с метро будет легко, а арендные ставки в ЦАО довольно высокие.
Дата публикации 02 мая 2023