ЖК «Город «В лесу» — подмосковный проект комфорт-класса, который строится в 7 км от МКАД в городском округе Красногорск. Дома средней этажности, просторные квартиры, приятное природное окружение и 10 минут езды до метро – чем еще привлекает покупателей квартир эта новостройка, разбирался «Новострой-М».
Примечание
В статье перечислены только факты о ЖК, собранные из открытых источников. В рубрике «Экспертиза проекта» Новострой-М решил отказаться от оценок и оценочных суждений: право делать выводы из описанных фактов о жилом комплексе мы предоставляем нашим читателям.
Кто строит?
Застройщиком выступает компания ООО «СЗ Джевоссет», которая является частью большого холдинга ООО «ПроГород» (входит в ВЭБ.РФ). Это федеральный мастер-девелопер, специализирующийся на комплексном освоении территорий и создании комфортной городской среды. В портфеле материнской компании 1,2 млн кв. м жилой недвижимости в нескольких российских регионах, а также в Москве и Московской области. ООО «ПроГород» реализует проекты по стандартам комплексного развития территорий, разработанным Минстроем России и ДОМ.РФ вместе с КБ «Стрелка». Проекты включают в себя не только жилые дома, но и объекты социальной инфраструктуры, торговые площадки, благоустроенную территорию.
ООО «СЗ Джевоссет» присутствует на подмосковном рынке недвижимости с 2006 года. На сегодняшний день застройщик отвечает за возведение ЖК Город «В лесу», который строится в несколько этапов.
Что строят?
Первоначальное название этого проекта – «Микрогород «В лесу», однако за прошедшие годы квартал разросся, был переименован в «Город «В лесу» и сегодня вполне оправдывает свое название. Комплекс расположен возле лесного массива и объединяет 12 уже построенных домов, школу, детский сад и 4 строящихся корпуса более чем на 2,5 тысячи квартир. Это целый микрорайон с собственной инфраструктурой, которая уже полноценно функционирует. Рядом с ЖК расположен лесопарк площадью 7 га, а кроме торговых и социальных объектов здесь продуманы благоустроенные дворы без машин, прогулочные зоны, площадки work-out и велодорожки.
ЖК в цифрах
|
№ дома |
Лоты |
Класс энергоэффективности |
Машино-места |
Класс |
Срок ввода |
|
Корпус 25 |
545 |
В |
264 |
Комфорт |
I кв. 2023 |
|
Корпус 27 |
561 |
А+ |
359 |
Комфорт |
II кв. 2025 |
|
Корпус 24 |
336 |
А |
205 |
Комфорт |
IV кв. 2026 |
|
Корпус 26 |
955 |
А |
621 |
Комфорт |
IV кв. 2026 |
Архитектура и дизайн
Разработкой концепции «Города «В лесу» занималась международная команда архитектурного бюро SPEECH. Проект совмещает в себе функциональность и яркий внешний облик, который делает его узнаваемым.








Пространство ЖК «Город «В лесу» четко и логично разделено на кварталы. В центральном расположены детский сад, школа и лесопарк. В остальных — жилые дома высотой от 9 до 15 этажей. Здания, выстроенные в форме каре, образуют закрытые приватные дворы, в которых создано безопасное пространство для детских игр и занятий спортом.
В квартирах предусмотрены лоджии и большие окна. В строящихся зданиях будут корзины под кондиционеры.
Фасады у домов выполнены в разных стилях, но перекликаются по цветовой гамме и форме архитектурных элементов, благодаря чему создается ощущение целостности пространства. В отделке использованы материалы: штукатурка, клинкерный кирпич, терракотовые плитки и фиброцементные плиты. На некоторых фасадах присутствуют навесные декоративные элементы. Широкая палитра включает в себя белый, коричневый, жёлтый, розовый, оранжевый цвета и их оттенки. Таким образом кварталы не выглядят серыми и скучными.
Необычные цветовые решения не ограничиваются фасадами, они получают логичное продолжение в интерьерах лобби и мест общего пользования. В холлах выполнено витражное остекление.
Лобби в новостройках не только красивые, но и функциональные: входы выполнены на одном уровне с землей, выделены специальные помещения для хранения спортивного инвентаря и колясок.
Благоустройство
ЖК Город «В лесу» — это не только жилые дома, но и благоустроенная территория, на которой есть всё необходимое для отдыха и спорта. Главная особенность проекта, из которой и выросла вся его концепция — наличие собственного лесопарка. Зеленый участок площадью в 7 га бережно сохранили и облагородили. В лесном массиве появились дорожки, зоны для активного времяпрепровождения для детей и взрослых, огороженная территория для выгула и тренировки питомцев.







Второй принцип, которого придерживались архитекторы бюро SPEECH, — создание атмосферы безопасности и добрососедства. С этой целью были спроектированы дворы без машин. Их заняли современные площадки с оборудованием для детей разных возрастов. Для взрослых резидентов на первых этажах зданий появились кафе, где можно пообщаться с соседями за чашечкой кофе.
На территории «Города «В лесу» есть несколько зон для занятий спортом: футбольное поле с воротами, площадка с баскетбольными кольцами, work-out с тренажерами и турниками.
Благодаря грамотно организованному уличному освещению пользоваться инфраструктурой микрорайона можно не только днем, но и поздним вечером.
Для всех, кто небезразличен к природе и хочет делать посильный вклад в её сохранение, на территории микрорайона обустроены специальные площадки для раздельного сбора мусора, а в магазине «ВкусВилл» организован приём использованных батареек.
Безопасность и технологии
Во всех домах комплекса имеются выходы на две стороны — в закрытый от автомобилей двор, где можно не переживать за безопасность детей, и на улицу. С обеих сторон установлены видеокамеры, позволяющие в круглосуточном режиме фиксировать всё, что происходит у входной группы.
Быстро подняться на нужный этаж или спуститься в подземный паркинг можно на малошумных грузопассажирских лифтах.
Ещё одним выгодным и технологичным решением для жителей «Города «В лесу» является специальная программа привилегий, которая позволяет пользоваться услугами и сервисами от партнеров со скидкой до 50%. Для этого необходимо зарегистрироваться в системе и получить карту жителя.
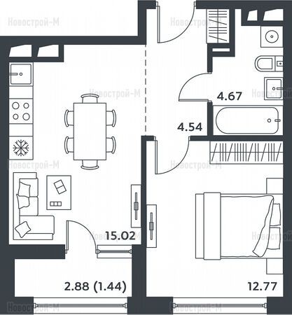
Планировки
В «Городе «В лесу» можно выбрать квартиру площадью от 27,98 кв. м до 101,22 кв. м. Стоит отметить эргономичность представленных планировок. Даже в самой скромной по площади студии есть всё необходимое для комфортного проживания, включая лоджию, кладовку, просторную входную зону, совмещенный санузел площадью 4,5-5 кв. м. Зона кухни в студиях расположена таким образом, что, при желании, будущий хозяин сможет отделить её перегородкой.





Однокомнатные квартиры также имеют выход на лоджию, совмещенный санузел и просторную прихожую. Площадь «однушек» в продаже варьируется от 31 до 44 м².
Квартиры с 2-4 спальнями имеют несколько вариантов планировочных решений, как линейных, так и распашного типа с окнами на противоположные стороны света. Среди двухкомнатных есть квартиры с раздельными ванной и туалетом. В 3-4-комнатных квартирах по два совмещенных санузла. В каждой квартире есть небольшая лоджия.
Высота потолков в жилых помещениях составляет 2,8 м. Квартиры передаются покупателям в предчистовой отделке: с пластиковыми окнами и металлической входной дверью, с оштукатуренными стенами и фиброцементной стяжкой пола, с дополнительной гидроизоляцией в санузлах, с разводкой труб и электрики.
Где строят?
ЖК «Город «В лесу» расположен на расстоянии 8 км от Москвы, благодаря чему его жители могут быстро добираться на работу или учебу в центр, а также пользоваться другими благами столицы. Главной артерией района является Пятницкое шоссе, на которое имеется удобный выезд с территории комплекса. Клеверная развязка с МКАД позволяет продолжить движение в нужном направлении, в том числе выехать на Волоколамское шоссе и доехать до центра Москвы менее чем за 40 минут.
Станции метро, время в пути от ЖК:
В 5 минутах ходьбы от ЖК, находится остановка общественного транспорта. До ближайшей станции метро «Пятницкое шоссе» можно добраться за 5-7 минут на автомобиле или автобусе (4 остановки). В теплое время года преодолеть этот путь можно на велосипеде или самокате за 15 минут или прогуляться пешком — около получаса спокойным шагом.
Экология
Жилой комплекс возводится в пос. Отрадное на территории Красногорского городского округа, который находится к западу от Москвы. Экологическая обстановка здесь оценивается как удовлетворительная. Процент индустриализации в этом районе не более 20%, что на порядок ниже, чем в других городах ближайшего Подмосковья. Отсутствие крупных промышленных предприятий, обилие лесов и удаленность от Москвы способствуют сохранению здесь благоприятного микроклимата. Качество воздуха и воды в Отрадном соответствует установленным нормам, превышения радиоактивного фона не зафиксировано. Не забываем про собственные 7 га леса на территории ЖК и соседство с Захарьинской поймой.
Инфраструктура
Важной особенностью «Города «В лесу» является действительно развитая собственная инфраструктура, которую не нужно ждать новоселам. Она уже создана и прекрасно функционирует, закрывая все ежедневные потребности жителей: продуктовые магазины, школа и детский сад, спортивные клубы, аптеки, кафе, парикмахерские и зоомагазины — просто нужно спуститься на первый этаж или дойти до соседнего здания. Всего на территории ЖК порядка 60 различных торговых и сервисных точек.
Ближайший детский сад является частью инфраструктуры ЖК «Город «В лесу». Это частное образовательное учреждение «Светлые Горы», в котором есть школьное и дошкольное отделения на 1100 и 250 мест соответственно. Путь до него займет не более 5 минут. В детский сад «Светлые Горы» принимаются дети от 2 лет на полный или сокращенный день. Для владельцев квартир в ЖК предусмотрены тарифы со скидкой более 40%.
Родители также могут рассмотреть другие образовательные организации. Детский сад №21 «Отрадушка» находится в 2 км от комплекса. До него можно доехать на машине за 4 минуты, но можно и дойти пешком за 20 минут. Чуть ближе находится частный ясли-сад «Сказка» — около 15 минут пешком. В нем можно оставить ребенка на целый день или на несколько часов, принимаются дети от 8 месяцев. На западной окраине пос. Отрадное находится частный образовательный центр «Отрада», где занимаются с детьми от 0 до 12 лет по системе Монтессори. Дорога до него на автомобиле займет около 6 минут.
Ближайшая государственная средняя школа находится в соседнем селе Ангелово. Идти до нее придется 20-25 минут. Родители, которые планируют возить детей в школу на автомобиле, могут рассмотреть образовательные учреждения и в московском районе Митино — №1358, №1747, №1191 — всего около десятка школ с дошкольными отделениями, доехать до которых можно за 8-15 минут.
Частная клиника «Медси» находится по соседству с новым ЖК. В ней несколько отделений, в том числе для стационарного пребывания детей и взрослых, репродуктивный и онкологический центр, отделение вакцинации.
Также за медицинской помощью можно обратиться в Марьинскую амбулаторию, которая находится в 1 километре от жилого комплекса. Другие государственные медицинские учреждения для взрослых и детей находятся в Митино и Красногорске, ехать до них придется на машине 15-30 минут.
На цокольных этажах новостроек уже разместились арендаторы — универсамы, магазины сетей «ВкусВилл», «Мини Лента», «Бристоль», «Маркет Фрукты», а также аптека и лаборатория Invitro. Всё необходимое есть буквально в 2 минутах ходьбы. За Пятницким шоссе находится торговый парк «Отрада», в котором более сотни магазинов и служб сервиса, а также гипермаркет «Окей» и кафе популярной сети фастфуда. За развлечениями можно отправиться в Crocus City Hall и ТРЦ Vegas — дорога на автомобиле займет около 15 минут.
В «Городе «В лесу» уже функционируют три фитнес-клуба: Capsule bootcamp, Tensegrity, 42club. Чтобы позаниматься на тренажерах или выполнить групповую тренировку, достаточно спуститься на цокольный этаж своего дома или дойти до соседнего — прогулка займет менее 2 минут. До спортивных клубов, расположенных за пределами ЖК, придется ехать на машине.
Безопасность
В населенных пунктах Красногорского округа нет факторов, которые бы способствовали развитию преступности: крупных промышленных зон, рынков и вокзалов. В последнем отчете начальника МВД по Красногорскому округу отмечено снижение общего числа преступлений более чем на 11%. Уменьшилось не только число тяжких преступлений, но и краж. В частности, угонять автомобили здесь стали в 2 раза реже, а раскрываемость преступлений возросла на 5%. Жители могут чувствовать себя в безопасности.
Отрадненский пункт полиции находится в 20 минутах ходьбы от новостройки. Доехать до него на машине можно за 5 минут. Управление МВД находится в г. Красногорск — до него 8 км, путь на машине займет 20-25 минут с учетом пробок.
Цены
На сегодняшний день квартиры от застройщика в ЖК Город «В лесу» реализуются только в корпусе №27, строительство которого уже началось. Можно выбрать жильё — от студии до 4-комнатной квартиры — в любой из 8 секций. Самая доступная квартира-студия обойдется в 7 190 049 руб.
Также в строящемся доме можно приобрести машино-место по цене от 467,5 тыс. руб. и кладовую — от 711,5 тыс. руб.
Цены в ЖК Город «В лесу»:
|
Тип жилья |
Метраж, кв. м |
Цена, руб. |
Цена за кв. м, тыс. руб. |
|
студии |
20.10 — 29.50 |
7 271 453 — 11 572 446 |
333.9 — 397.7 |
|
1-комнатные |
31.80 — 44.60 |
10 947 926 — 17 158 780 |
293.7 — 385.2 |
|
2-комнатные |
55.10 — 77.90 |
17 659 595 — 28 118 317 |
283.2 — 377.5 |
|
3-комнатные |
64.90 — 88.10 |
19 585 185 — 25 560 476 |
261.8 — 322.6 |
|
4-комнатные |
86.80 — 96.60 |
21 054 222 — 27 738 559 |
237.6 — 312.7 |
Конкуренты
У ЖК Город «В лесу» не так уж много конкурентов.
Ближайший «соперник» в пос. Отрадное – ЖК «Отрада», который состоит из четырнадцати 16-этажных корпусов. Большинство домов уже построены, еще два – строятся. В продаже представлены квартиры площадью от 21 до 91,8 кв. м. Большинство лотов продаются без отделки, минимальная цена – 5,4 млн руб.
Цены в ЖК «Отрада»:
|
Тип жилья |
Метраж, кв. м |
Цена, руб. |
Цена за кв. м, тыс. руб. |
Нет в продаже | |||
Также конкуренцию «Городу «В лесу» составляют новостройки в столичном районе Митино. Они отличаются более близким расположением метро и наличием московской прописки.
В ЖК «Митинский лес», расположенном за одноименным лесопарком, можно приобрести квартиру комфорт-класса по цене от 4,9 млн руб. Компания ПИК возводит этот проект в несколько очередей. Первые несколько домов уже сданы и активно заселяются, срок сдачи следующих домов запланирован на II кв. 2024 года и на 2025 год. Здания строятся по монолитной технологии, их высота от 24 до 32 этажей. В продаже представлены квартиры с европланировками — от студий до трёхкомнатных. Важным преимуществом будет возможность субсидирования ипотечной ставки от застройщика.
Цены в ЖК «Митинский лес»:
|
Тип жилья |
Метраж, кв. м |
Цена, руб. |
Цена за кв. м, тыс. руб. |
|
студии |
19.70 — 33.60 |
8 896 260 — 11 400 480 |
316.3 — 475.7 |
|
1-комнатные |
32.20 — 39.70 |
12 242 880 — 14 259 500 |
354.7 — 393.1 |
|
2-комнатные |
47.60 — 72.00 |
15 284 177 — 20 387 760 |
245.1 — 357.1 |
|
3-комнатные |
69.60 — 94.10 |
19 839 830 — 23 764 380 |
225.3 — 306.8 |
|
4-комнатные |
126.80 |
32 029 680 |
252.6 |
Неподалеку строится также ЖК «Аквилон Митино». Это 24-этажные дома комфорт-класса в с. Рождествено, в 15 минутах ходьбы от станции метро «Пятницкое шоссе». Девелопер (Группа «Аквилон») планирует закончить строительство уже во II кв. 2023 года. В продаже имеются квартиры различной площади и планировок. Цены начинаются с 5,9 млн руб. за студию. В стоимость жилья включена отделка white box.
Цены в ЖК «Аквилон Митино»:
|
Тип жилья |
Метраж, кв. м |
Цена, руб. |
Цена за кв. м, тыс. руб. |
|
3-комнатные |
61.99 |
19 148 829 — 19 180 971 |
308.9 — 309.4 |
Резюме
ЖК «Город «В лесу» вырос из формата «микрогорода» в полноценный район, в котором есть необходимая социальная и торговая инфраструктура, большая благоустроенная территория и особая атмосфера. В числе основных преимуществ можно отметить:
В районе с неплохой экологией, высоким уровнем безопасности, развитой инфраструктурой есть один недостаток — отсутствие альтернативы в виде МЦД/электрички вблизи от дома. Однако если учесть, что ЖК расположен в Подмосковье, станция метро находится относительно недалеко. Похвастаться подобным преимуществом могут разве что новостройки Котельников и Люберец, но там совсем иная экологическая обстановка.
Сам жилой комплекс является примером комплексного освоения территории с учетом потребностей разных категорий жителей. ЖК отлично подходит для семейного проживания, а также в качестве инвестиции. Квартиры здесь востребованы, комплекс уже обжит, а значит спрос на аренду и покупку готового жилья тоже будет высоким.
Дата публикации 28 февраля 2023