


Проект Скай Вью находится в Пресненском районе рядом со станцией метро «Краснопресненская».
Надежность застройщика
Застройщик проекта — АО «СЗ «Киноцентр». О нем известно, что он образован в 1992 году и специализируется на гостиницах. Скай Вью — сейчас единственный проект застройщика.
Описание ЖК
Проект премиум-класса Скай Вью построен на Дружинниковской улице в Пресненском районе (ЦАО) возле станции метро «Краснопресненская».
Экологическая обстановка в Пресненском районе является удовлетворительной. Проблемы района типичны для центра: загруженные дороги и дефицит зеленых насаждений. На территории района расположены промзоны «Звенигородское шоссе» и «Грузинский Вал», проходят ТТК, Звенигородское шоссе, Садовое кольцо и другие оживленные магистрали. Среди зеленых зон следует отметить парки Красная Пресня, Красногвардейские пруды и Декабрьского восстания, Ботанический сад Первого МГМУ, Пресненский детский парк.
«Скай Вью» — это четыре 20-этажных корпуса, возведенных на месте кинотеатра «Соловей» в пешей доступности от станций метро «Краснопресненская» и «Баррикадная». Для автомобилистов есть выезд на Звенигородское шоссе.
Здания объединены стилобатом. Во дворе имеются детские площадки и места для отдыха. Для автомобилей — трехуровневый подземный паркинг на 381 машино-место с автомойкой и зарядками для Тесла.
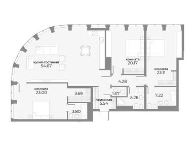
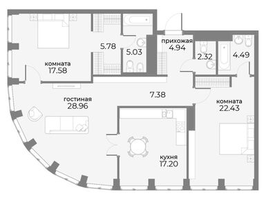
Проект сдан в эксплуатацию в 2024 году. В середине января 2025 года в продаже имеются 65 лотов площадью от 45,2 кв. м до 413,96 кв. м, это варианты от евродвушек до многокомнатных пентхаусов. Цены — от 42,5 млн рублей.
Инфраструктура
Собственная инфраструктура проекта впечатляет: фитнес-зал с тренажерами и бассейном, спа-салон, рестораны, кинозалы, террасы на кровле третьего этажа стилобата. Кроме того, резидентам доступен круглосуточный консьерж-сервис.
В окружении новостройки также есть всё необходимое — это исторический центр, что означает наличие богатой насыщенной инфраструктуры. Неподалеку находятся Московский зоопарк, Пресненские пруды, различные музеи и исторические памятники.
Плюсы и минусы
Скай Вью отличается хорошим расположением — в центре Москвы, но в то же время на некотором отдалении от шумных трасс. В окружении проекта есть всё необходимое, для резидентов предусмотрена собственная инфраструктура.
Среди минусов можно отметить высокие цены, это оправдано расположением комплекса. Кроме того, его формат подходит не всем — юридически это нежилые помещения.
Станция метро «Краснопресненская» → Пройти 200 м (3 минуты)
Комплекс находится в Пресненском районе ЦАО Москвы.Расстояние до ТТК → 4 км, до Садового кольца → 600 м.