Жилой комплекс бизнес-класса «Селигер Сити» возводится в САО Москвы, в районе Западное Дегунино. Этот проект MR Group по-настоящему масштабный: 8 монолитных домов от 8 до 45 этажей с собственной инфраструктурой. Шесть корпусов проекта были введены в эксплуатацию точно в срок. Новострой-М разобрался в плюсах и минусах этого ЖК.
Примечание
В статье перечислены только факты о ЖК, собранные из открытых источников. В рубрике «Экспертиза проекта» Новострой-М решил отказаться от оценок и оценочных суждений: право делать выводы из описанных фактов о жилом комплексе мы предоставляем нашим читателям.
Кто строит
MR Group работает на российском рынке недвижимости с 2003 года и входит в десятку крупнейших застройщиков страны, является лауреатом премий RREF Awards, Urban Awards, CRE Awards, Move Realty Awards и «Рекорды рынка недвижимости». В портфеле компании — 52 объекта в Московском регионе и Сочи.
В Москве MR Group строит проекты преимущественно бизнес- и премиум-классов: жилые и апарт-комплексы. 14 из них введены в эксплуатацию, в 4 строящихся новостройках есть сданные корпуса. Пять новых проектов готовятся выйти на рынок. Узнать больше о компании можно на сайте Новострой-М.
Что строят
ЖК «Селигер Сити» – жилой комплекс из 8 монолитных зданий с собственной инфраструктурой в САО Москвы, в районе Западное Дегунино. Точный адрес новостройки: Ильменский проезд, 14.
Стройка и ввод в эксплуатацию осуществляются в 3 этапа. В настоящее время завершается последний из них: в III квартале 2023 года в эксплуатацию введут 2 корпуса третьей очереди – высотные дома «Ван Гог» и «Кандинский».
Шесть корпусов (камерные «Баренц», «Беринг», «Брюллов», «Рубенс» и высотные «Рембрандт», «Репин») уже построены.






Архитектура и дизайн. ЖК «Селигер Сити» – пример современного городского квартала, который, с одной стороны, благодаря собственной инфраструктуре, является абсолютно автономным, а с другой – гармонично вписывается в окружение.
Корпуса комплекса названы в честь известных российских и европейских художников и путешественников: «Рембрант», «Баренц», «Рубенс», «Брюллов», «Беринг», «Репин», «Ван Гог», «Кандинский».
Высотные постройки будут «обрамлять» территорию ЖК, создавая уютное пространство внутри, в котором расположатся низкоэтажные корпуса и двор.






«Селигер Сити» возводят по монолитной технологии, отделка зданий – клинкерная плитка. Оконные проемы в квартирах увеличены – остекление будет панорамным. Лоджии отсутствуют, но в некоторых лотах есть французские балконы.
За архитектурную концепцию отвечает голландское бюро MLA+.
Придомовая территория. Это, несомненно, сильная сторона «Селигер Сити». Территория комплекса будет огорожена и зонирована. Здесь расположится зеленый парк с собственным водоемом и зонами для пикника, теннисный корт, беговые дорожки, детские и спортивные площадки, кафе с летними террасами.












Ландшафтным дизайном комплекса занимается известное бюро Wowhaus, которое работало над благоустройством набережной на Воробьевых горах, а также над множеством проектов для территорий Парка Горького и ВДНХ.
Безопасность. Как уже было сказано выше, на территории ЖК реализована концепция «двор без машин». Ведется круглосуточное виденаблюдения, вход в подъезд – по отпечатку пальца.
Нежилые метры. На первых этажах ЖК будут открыты магазины, аптеки и кафе. Что касается «детской» инфраструктуры», то в «Селигер Сити» откроют 2 детских сада с углубленным изучением английского языка – каждый из них на 75 мест. И собственную школу с интерактивными классами.
Для автомобилистов будет доступен паркинг. Правда, по меркам квартала, не такой уж большой: 1694 машино-места. Напомним, что в рамках только I очереди сдано 2 корпуса на 1294 квартиры. Всего в комплексе спроектировано 3594 лота.
Квартиры и планировки
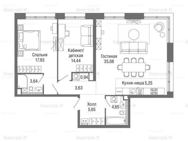
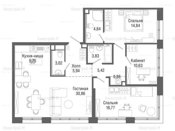
В ЖК «Селигер Сити» покупателям доступны квартиры от 26 до 108 кв. м в 2 строящихся и в 1 готовом корпусе. Это студии, «однушки», 2-, 3-комнатные лоты. Высота потолков – 3 метра.
В продаже есть линейные и угловые варианты, а также «распашонки». Планировки как обыкновенные, так и европейские, кухня и гостиная в которых объединены.
Все комнаты изолированные, просторные, «бесполезных» метров практически нет. Большой плюс – наличие гардеробных.
Все доступные квартиры вы можете увидеть в карточке проекта на сайте Новострой-М.




Что касается отделки, то застройщик предлагает покупателям 2 варианта. Первый – отделка MR Base, которая включает в себя возведение межкомнатных перегородок, грунтовку, штукатурку и шпаклевку стен, напольную стяжку, скрытую разводку инженерных коммуникаций, установку выключателей и розеток, инженерную подготовку под кондиционер и электрическую подготовку под кухню.
Второй вариант – отделка MR Ready с готовым ремонтом в двух видах: «Стандарт» и «Премиум».




Где строят
ЖК «Селигер Сити» расположен В ЗАО Москвы, в районе Западное Дегунино. Траспортная доступность здесь по московским меркам неплохая. В первую очередь стоит отметить, что до метро «Селигерская» идти от комплекса всего 5 минут. Путь до метро «Верхние Лихоборы» займет порядка 12 минут. До железнодорожной платформы Моссельмаш (будущая МЦД) – 16 минут. Отсюда можно за 20 минут доехать до Ленинградского вокзала.
Возле новостройки проходит Дмитровское шоссе, по нему до ТТК – 9 км, это около 15 минут без пробок. Чуть дальше (еще плюс 2 км) находится Садовое кольцо. У автомобилистов могут возникнуть проблемы из-за пробок только в традиционные часы пик: с 8 до 10 утра и с 18 до 20 часов.
Экология
Согласно экологическому рейтингу от EcoStandard, у района Западное Дегунино 7 баллов из 10 возможных. Другими словами, экологическая обстановка здесь удовлетворительная.
Удивительного в этом ничего нет: сам ЖК «Селигер Сити» строится на территории бывшей промышленной зоны №48 «Дегунино-Лихоборы», также рядом проходит железная дорога и располагается промзона №45 «Автомоторная» (тоже в будушем подлежит рекультивации).
Ситуацию смягчает наличие поблизости парка имени Святослава Федорова, Дегунинский пруд и экологический парк «Лихоборка». Также не стоит забывать о том, что на территории самого ЖК уже создана полноценная зеленая зона с собственным водоемом.
Инфраструктура
Благодаря внутренней инфраструктуре комплекса, которая будет представлена магазинами, аптеками, спортивными объектами и кафе, жители «Селигер Сити» смогут не беспокоиться о том, что им придется далеко ходить за покупками и развлечениями.
Однако вопросы (как всегда) вызывает социальная инфраструктура. Двух небольших детских садов и одной школы будет явно недостаточно.
Но здесь на помощь придут районные учреждения. Поблизости есть несколько школ. Время в пути пешком до них составит от 10 до 20 минут.
Школы
Детских садов меньше, но они тоже есть. Идти придется недолго: около 10 минут.
Детские сады
Медицинские учреждения тоже практически «под боком». До взрослой поликлиники пешком 15 минут, до детской – 7.
Что касается покупок, то в 4 минутах ходьбы от ЖК находится крупный торговый центр XL с кинотеатром и различными детскими активностями. Помимо него, в районе много небольших магазинов и супермаркетов.
Если говорить о спортивной инфраструктуре, то и она в районе развита очень хорошо. В радиусе 1 км вокруг «Селигер Сити» есть более 5 спортивных клубов, включая специализированный для мам и малышей.
Безопасность
САО с начала года стал антилидером по росту числа правонарушений за 8 месяцев текущего года (+9%). Однако непосредственно Западное Дегунино в криминальных сводках фигурирует редко. Летом здесь фиксировали несколько пожаров и один угон автомобиля.
Что касается охраны порядка, в 20 минутах ходьбы от комплекса находится отдел МВД по Району Бескудниковский и несколько участковых пунктов полиции.
Цены
Продажи в ЖК «Селигер Сити» стартовали в конце апреля 2017 года. Тогда самый недорогой лот здесь можно было приобрести за 3,9 млн рублей. Сейчас цены в комплексе начинаются от 12,78 млн рублей за студию площадью 32,85 кв. м с отделкой под ключ.
Цены в ЖК «Селигер Сити»
|
Тип жилья |
Метраж, кв. м |
Цена, руб. |
Цена за кв. м, тыс. руб. |
|
студии |
25.47 — 35.84 |
16 683 665 — 21 492 253 |
521.6 — 682.4 |
|
1-комнатные |
38.05 — 54.42 |
22 357 156 — 28 811 461 |
503.9 — 616.6 |
|
2-комнатные |
57.70 — 85.23 |
30 214 820 — 40 289 482 |
413.8 — 539.7 |
|
3-комнатные |
89.19 — 109.90 |
36 561 274 — 52 508 572 |
384.4 — 477.8 |
Проект аккредитован многими крупными банками, действуют и программы субсидированной ипотеки от застройщика. Одно из наиболее выгодных предложений у Сбербанка: семейная программа, ставка от 0,1% на первые три года, с дальнейшим повышением до 5,7%. IT-ипотеку со ставкой от 4,4% предлагает ГПБ. Классическая ипотека от Райффайзенбанка предлагается со ставкой от 9,69%.
Конкуренты
Среди прямых конкурентов «Селигер Сити» – сразу несколько жилых комплексов. Ближайший сосед – ЖК «Level Селигерская» от девелопера Level Group.
ЖК «Level Селигерская» — новый проект Level Group, девелопер получил разрешение на строительство в июне 2022 года. Новостройка комфорт-класса представляет собой два корпуса высотой 11-30 этажей на 570 квартир, количество машино-мест в подземном паркинге — 176. На первом этаже одного из корпусов предусмотрен детский сад.
Отделка квартир не преполагается, планировки — от студий до больших семейных вариантов, классические и евроформат. Цены — от 7 млн рублей. Ввод проекта в эксплуатацию запланирован на II квартал 2025 года.
Цены в ЖК «Level Селигерская»
|
Тип жилья |
Метраж, кв. м |
Цена, руб. |
Цена за кв. м, тыс. руб. |
|
1-комнатные |
33.60 — 48.30 |
16 995 486 — 19 761 147 |
403.1 — 510.5 |
|
2-комнатные |
40.10 — 66.10 |
17 813 193 — 25 638 753 |
354.7 — 444.2 |
|
3-комнатные |
60.40 — 76.80 |
23 583 751 — 29 796 505 |
376.4 — 418.6 |
Недавно в продажу в этой локации поступили также квартиры в ЖК «Дмитровское небо» (подробную экспертизу этого проекта вы можете увидеть здесь). Цены на квартиры в нем стартуют с 7,6 млн руб., жилье будет передаваться новоселам без отделки. Ввод в эксплуатацию первой очереди намечен на III квартал 2025 года.
Цены в ЖК «Дмитровское небо»
|
Тип жилья |
Метраж, кв. м |
Цена, руб. |
Цена за кв. м, тыс. руб. |
|
студии |
22.22 — 31.12 |
11 106 105 — 20 460 448 |
497.8 — 783.3 |
|
1-комнатные |
35.42 — 45.82 |
16 546 915 — 25 014 917 |
411 — 659.2 |
|
2-комнатные |
54.72 — 69.62 |
23 804 133 — 34 657 441 |
416.7 — 520.2 |
|
3-комнатные |
67.32 — 78.62 |
27 974 549 — 41 223 656 |
390.6 — 605.3 |
ЖК Kinetik — первый проект застройщика из Ижевска UDS в Москве. Компания основана в 2007 году, в портфеле девелопера — 23 построенных дома и 12 строящихся. Kinetik также относится к комфорт-классу, реализация началась в феврале этого года, завершить строительство планируется во II квартале 2024 года.
В двух монолитных корпусах высотой 23 и 31 этаж разместятся 564 квартиры, от студий до 4-комнатных евроформата, двухуровневый подземный паркинг рассчитан на 150 машино-мест. Чистовая отделка предусмотрена в квартирах на третьем, четвертом и пятом этажах, остальное жилье реализуется без отделки. Цены — от 8,6 млн рублей.
Цены в ЖК Kinetik
|
Тип жилья |
Метраж, кв. м |
Цена, руб. |
Цена за кв. м, тыс. руб. |
|
2-комнатные |
38.32 — 38.64 |
18 873 165 — 18 895 886 |
489 — 492.5 |
Также по соседству с ЖК «Селигер Сити» возводятся еще четыре различных новостройки. При этом наиболее низкие цены предлагаются только на апартаменты в ЖК «Любовь и голуби» (корпус 2), квартиры же (корпус 5а) существенно дороже.
Цены в ЖК «Любовь и голуби»
|
Тип жилья |
Метраж, кв. м |
Цена, руб. |
Цена за кв. м, тыс. руб. |
Нет в продаже | |||
Два проекта в ближайшем окружении полностью построены (это «Талисман на Дмитровском» и «Ильменский 17»). ЖК «Тринити-2» планируется к вводу в III квартале 2023 года, однако цены здесь достаточно высоки (от 9 млн руб.) даже по сравнению с уже сданными проектами, что, вероятно, объясняется близостью метро, до которого пара минут ходьбы.
Цены в ЖК «Тринити-2»
|
Тип жилья |
Метраж, кв. м |
Цена, руб. |
Цена за кв. м, тыс. руб. |
|
3-комнатные |
— |
от 26 124 304 |
|
|
4-комнатные |
— |
от 22 711 339 |
|
Резюме
Плюсы ЖК «Селигер Сити»:
Минус у новостройки, пожалуй, один – экологическая обстановка в районе Западное Дегунино. Однако близлежащие промзоны постепенно рекультивируются и застраиваются новым жильем и полезной инфраструктурой.
Дата публикации 27 сентября 2022