Видовые квартиры и апартаменты, свой детский сад, благоустроенный двор и озелененная кровля – это далеко не полный список преимуществ нового жилого комплекса MOD от MR Group. Чем еще привлекает покупателей премиальный проект у метро «Марьина Роща», выяснил Новострой-М.
Примечание
В статье перечислены только факты о ЖК, собранные из открытых источников. В рубрике «Экспертиза проекта» Новострой-М решил отказаться от оценок и оценочных суждений: право делать выводы из описанных фактов о жилом комплексе мы предоставляем нашим читателям.
Кто строит
Девелопер ЖК MOD – MR Group. Компания работает на рынке недвижимости с 2003 года. В настоящее время у нее 13 реализуемых проектов в Москве, среди которых жилые дома, комплексы с апартаментами и резиденциями. А весь портфель застройщика включает 52 объекта (9,5 млн кв. м), расположенных в Москве, Подмосковье и Сочи.
Что строят
Комплекс MOD состоит из трех башен по 44-55 этажей (Mod.D, Mod.C, Mod.M) и двух клубных домов по 9 этажей (Mod.R, Mod.S), многофункционального образовательного центра с детским садом, коммерческих объектов на первых этажах и двухуровневого подземного паркинга с кладовыми помещениями.
Нейминг ЖК MOD происходит от слова «модернизм». Отсюда и корпуса, названные по фамилиям выдающихся писателей-модернистов: высотки «Манн», «Драйзер», «Камю» и девятиэтажки – «Стайн» и «Рэнд». Разрешение на строительство выдано 19 марта 2021 г. Плановый срок завершения проекта – IV квартал 2024 г.
|
Лоты |
Энергоэф. |
Машино-места |
Класс |
Срок сдачи |
|
2148 |
В |
739 |
Премиум |
IV кв. 2024 |
Архитектура и дизайн
Проект для ЖК MOD разработало российское архитектурное бюро Kleinewelt Architekten. Компания, созданная в 2012 году, сотрудничала со многими столичными девелоперами, а также с «Почтой России», «Ингосстрахом», Парком Горького, Правительством Москвы. Среди проектов последних лет – комплекс Allegoria Mosca, ЖК Symphony 34, транспортно-пересадочный узел «Ростокино» и др.
















Для ЖК MOD архитекторы предложили интересное решение комплекса зданий в стиле минималистического модернизма. В высотках нет сложных деталей, но есть свои акценты, которые привлекают внимание – это светящаяся стеклянная «корона» с ламелями, которая венчает силуэты каждой из трех монолитных башен, а натуральный камень и анодированный алюминий в отделке придают зданиям солидный облик.
Два девятиэтажных дома располагаются на трехэтажном стилобате, но каждый из них имеет свою индивидуальную архитектуру – фасады сложной формы в медном и золотом оттенках. В домах продуманы панорамное остекление, французские балконы. Натуральный камень также используется в дизайнерской отделке лобби, которые спроектированы как продолжение внешней архитектуры.
Из особенностей общественных помещений можно выделить: высоту потолков более 6 м, настенные фонтаны-водопады, художественное освещение МОП, зоны отдыха с мягкой мебелью, наличие гостевых санузлов, лапомоек и др.
Придомовая территория
Оригинальное решение предложено для закрытой двухуровневой озелененной дворовой территории. Первый уровень – это территория двора, а второй – озелененная крыша стилобата.


















Такое зонирование позволило разделить двор на пространства разной активности: спокойное, где можно заняться чтением книг, отдохнуть в гамаке или поработать; многофункциональное спортивное и детское с малыми архитектурными формами и качелями. Точкой притяжения станет центральная площадь, где будут устраиваться разные мероприятия, проходить выставки, ярмарки. Украшением двора станут фонтаны, искусственные водоемы с подсветкой, клумбы, лужайки, парящие мосты и многое другое.
Безопасность и технологии
В комплексе будет установлена современная система видеонаблюдения, охватывающая всю дворовую территорию, паркинг и общественные зоны. Доступ в корпуса – по отпечаткам пальцев (биометрический контроль). Предусмотрен круглосуточный консьерж-сервис. Будет установлена современная система пожаротушения.
Нежилые метры
Нежилые помещения разместятся в трехэтажной стилобатной части башен. Это коммерческие площади, где откроются кафе, рестораны и магазины, а также многофункциональный образовательный центр с детским садом, джаз-гостиная и многое другое. В ЖК предусмотрено 739 машино-мест (от 13,25 до 21,6 кв.м) и 433 кладовки площадью от 1,78 до 11,11 кв.м.
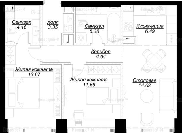
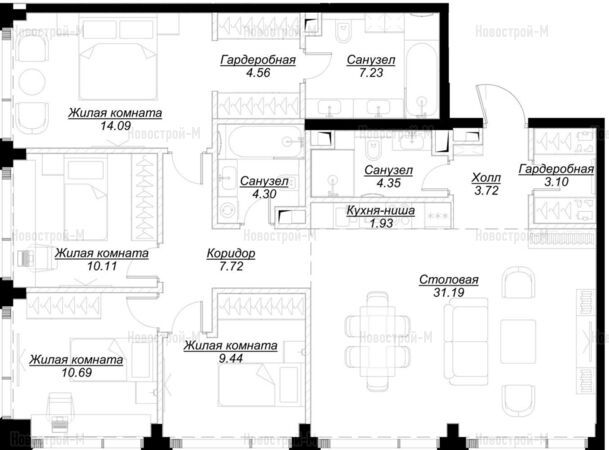
Квартиры и планировки
Всего в ЖК MOD спроектировано 2104 квартиры и 44 апартамента. В продажу выведена недвижимость в двух корпусах первой очереди – М и D. Квартирография реализуемых корпусов состоит из студий и одно-четырехкомнатных лотов площадью от 28 до 112 кв.м. Высота потолков – от 3 м. В формате апартаментов продаются только студии и 1-спальные лоты.







Верхние шесть этажей 55-этажных башен занимают пентхаусы с потолками высотой до 4,8 м. Благодаря значительной высотности корпусов в этом проекте много квартир, из окон которых открываются панорамные виды на Останкино, ВДНХ, Сокольники и другие достопримечательности столицы. До 21 этажа в квартирах будут французские балконы, на более высоких этажах балконы не предусмотрены.
В самых компактных студиях гостиная совмещена с кухней (евроформат), есть просторный совмещенный санузел и вместительный холл. В однокомнатных лотах есть гардеробные комнаты, в двухкомнатных – кухня-столовая, два санузла, а в трехкомнатных есть и три санузла, и гардеробная комната рядом с хозяйской мастер-спальней.
Все квартиры сдаются с отделкой MR Base (предчистовая отделка, или white box). Это предполагает установку надежной входной двери, выровненные и подготовленные под покраску или оклейку обоями стены, стяжку пола, возведенные межкомнатные перегородки, разводку электрики, смонтированные выключатели, розетки и внутрипольные конвекторы, оборудование для «Умного дома».
Где строят
ЖК MOD стоят по адресу: 4-ая ул. Марьиной Рощи, вл.12/1 (район Марьина Роща, СВАО). Преимущество местоположения – близость станции метро, удобные транспортные развязки, что позволяет сэкономить время на дорогу в любую точку Москвы. Пешком дойти до станции метро «Марьина Роща» можно за 5 минут, а всего за 3 минуты – до БКЛ «Марьина роща» (открытие ожидается до конца 2022 г.).
Время в пути до метро:
На автомобиле до ТТК – 3 минуты езды, до Садового кольца – 8 минут, а доехать в самый центр города до Красной площади можно за 15 минут. Еще одно удобство – близость аэропорта Шереметьево: до него можно доехать, если не попасть в затор, за 30 минут. До Рижского железнодорожного вокзала 10 минут езды.
Экология
Экологическая обстановка в районе Марьина Роща, согласно рейтингу компании EcoStandard, оценивается в 6 баллов и считается «приемлемой». Отрицательное влияние на состояние воздуха оказывают близость ТТК, а также наличие на территории района различных производств – это Комбинат твердых сплавов, лакокрасочный завод «Оливеста», промзона вдоль железнодорожных путей и др. Больших зеленых массивов в районе нет, но зато в 1,5 км к востоку от ЖК расположен обширный парк Сокольники.
Инфраструктура
Жилой комплекс строится в старом московском районе со сложившейся инфраструктурой. Ближайшая общеобразовательная школа – ГБОУ «Марьина Роща» им. В.Ф.Фролова. Она состоит из нескольких зданий, и ближайшее находится в 250 м от нашей новостройки – это около 4 минут ходьбы. До второго здания этой же школы – 390 м, или около 5 минут пешком, а до третьего – около 600 м, или 7 минут ходьбы.
При школах также открыты детские отделения – детские сады. До детского сада «Горница-Узорница» 1,4 км – это примерно 20 минут пешком или 5 минут на автомобиле. До частной школы и детского сада «Мир интеллекта» – 2,2 км – это 8 минут на автомобиле.
До детской городской поликлиники №99 (филиал №3) – 760 м, или около 9 минут пешком. Поблизости находится и поликлиника для взрослого населения №12 (филиал №5) – до нее чуть больше 800 м, или 10 минут ходьбы. В 1,1 км от ЖК располагается коммерческая стоматологическая клиника «Мудрый зуб» – это 11 минут пешком; 350 м – до ветеринарной клиники «Веста».
В районе нет недостатка в торговых точках. Крупный ТРЦ «Райкин плаза», где открыт «Перекресток», находится в 750 м от ЖК – это около 7 минут пешком. До продуктового магазина «Пятерочка» – 430 м, или 5 минут ходьбы, а до «Магнолии» – 460 м, и этот путь можно пройти за 5-6 минут. За 7 минут на автомобиле можно также доехать до Рижского рынка.
Поблизости находится крупный многофункциональный спортивный центр – «Академия льда», до него 1,1 км – это 12 минут пешком или 5 минут на автомобиле. В 280 м от ЖК MOD располагается спортивный комплекс «Марьина Роща», где работает детский футбольный клуб «Триумф» и школа «Футболика» (3-4 минуты пешком). В радиусе 12 минут ходьбы от ЖК также можно найти четыре фитнес-клуба, в том числе одну школу танцев.
В пешей доступности можно найти и другую полезную инфраструктуру. Центр госуслуг «Мои документы» находится по адресу: 17-й проезд Марьиной Рощи, д. 4, корп. 1 – это почти 3 км от дома и 10 минут езды на автомобиле или 18 минут на общественном транспорте.
Ближайшие зоны отдыха – Фестивальный парк, куда можно дойти за 8 минут, и Екатерининский парк – в 20 минутах ходьбы от дома. На автомобиле до ВДНХ, Ботанического сада и до парка «Сокольники» примерно 10 минут езды.
Безопасность
В районе Марьина Роща с безопасностью ситуация далека от идеальной. Однако если сравнивать с началом ХХ века, когда этот район даже называли «бандитским», сейчас все обстоит гораздо лучше. Как следует из отчета отдела МВД России по району Марьина Роща г. Москвы, за 12 месяцев 2021 г. на территории района зарегистрировано 697 преступлений (это на 9,2% меньше аналогичного периода прошлого года). На 17,3% уменьшилось число преступлений небольшой тяжести, на 9,4 % – тяжелых и на 47,4 % особо тяжких. Также с 14 до 3 снизилось количество грабежей.
Участковый пункт отделения полиции находится по адресу: 3-й проезд Марьиной рощи, д. 5 – это 400 м от ЖК и не более 5 минут пешком.
Цены
Цены в ЖК MOD растут по менее продвижения строительства. На старте продаж в июле 2021 г. средняя цена квадратного метра на объекте составила 298 тыс. руб. за 1 кв. м, а цена лота – от 11,8 млн руб. По состоянию на первую декаду октября 2022 г. диапазон цен: от 14,1 млн руб. до 44,8 млн руб. По минимальной цене продаются студии общей площадью от 28 кв.м. Уровень цен на апартаменты в корпусе Mod.D ниже – студия общей площадью 28,16 кв. м стоит 11,4 млн руб.
Цены в ЖК MOD:
|
Тип жилья |
Метраж, кв. м |
Цена, руб. |
Цена за кв. м, тыс. руб. |
|
студии |
30.33 — 30.80 |
20 131 626 — 21 531 074 |
654.9 — 703.4 |
|
1-комнатные |
40.43 — 44.34 |
25 527 392 — 33 051 485 |
602.9 — 756.5 |
|
2-комнатные |
61.78 — 84.98 |
32 792 641 — 54 622 210 |
500.7 — 727.8 |
|
3-комнатные |
85.19 — 105.77 |
43 847 293 — 58 037 642 |
514.7 — 597.8 |
|
4-комнатные |
111.63 — 112.09 |
58 621 949 — 61 452 315 |
523 — 550.5 |
Жилье можно приобрести в рассрочку, по программе trade in или в ипотеку. Покупатели могут подобрать для себя самую выгодную схему. Если остановиться на ипотеке, то выбирать можно исходя из условий нескольких банков. Самые выгодные, когда кредит берется на срок до 30 лет, при первом взносе от 15%, предлагает банк ДОМ.РФ – 0,1-4,5% годовых, в Сбербанке – от 0,1 до 5,7%, в МКБ от 0,01 до 5,59%, в Альфа-банке – 6%.
Мы посетили стройплощадку ЖК в августе 2022 года, и вы можете посмотреть фотографии, чтобы оценить ход строительства.






Конкуренты
По соседству с ЖК MOD возводится три жилых комплекса, однако все они отличаются от нашей новостройки или классом недвижимости, или форматом.
На ул. Складочная, вл. 6 строится ЖК «Шереметьевский» от компании ПИК. Это Бутырский район Москвы, и до станции метро «Савеловская» – 10 минут ходьбы. Всего в комплексе класса «комфорт» 15 корпусов, большинство из них уже сданы в эксплуатацию в 2021 г. В IV квартале 2022 г. будут сданы корп. №№ 8, 9 и 10. В составе ЖК три детских сада, школа, поликлиника. Первые этажи отведены под кафе, магазины, предприятия бытового обслуживания населения, аптеки, отделения банков и др. На первичном рынке в продаже несколько квартир в корп. 2 и одно-двух-и трехкомнатные квартиры в корп. №8. Квартиры сдаются с чистовой отделкой.
Цены в ЖК «Шереметьевский»:
|
Тип жилья |
Метраж, кв. м |
Цена, руб. |
Цена за кв. м, тыс. руб. |
Нет в продаже | |||
Комплекс апартаментов лофт-квартал Studio #12 располагается на ул. 12-й проезд Марьиной Рощи, вл. 8 – это 10 минут пешком от станции метро «Марьина роща». Девелопер – KR Properties. Всего в комплексе четыре здания. Проект реализован по концепции соединения жилого и офисного пространства: здесь можно жить и работать. Здесь 142 лофт-апартамента площадью от 40 до 300 кв.м, включая двухуровневые и мансардные лоты, а также офисные и торговые помещения. Комплекс сдан в III квартале 2019 г. В первичной продаже осталось несколько предложений. Апартамент общей площадью 61,5 кв.м продается за 18,38 млн руб., а трехкомнатные площадью 312 кв.м (их можно использовать как офис или мастерскую) стоят 80 млн руб.
Цены в лофт-квартале Studio #12:
|
Тип жилья |
Метраж, кв. м |
Цена, руб. |
Цена за кв. м, тыс. руб. |
Нет в продаже | |||
Сити-комплекс «MirrorЗдание» – новый проект ГК МИЦ. Строительство начато на ул. Октябрьская, вл. 98 – это в четырех минутах ходьбы от станции метро «Марьина Роща». Объект бизнес-класса состоит из корпуса переменной этажности, от 13 до 24 этажей. Первые этажи отведены под размещение коммерческих объектов – запланировано открытие гастромаркета и ресторана. На нижнем уровне предусмотрен подземный паркинг. Всего в комплексе 645 апартаментов, от студий до четырехкомнатных. Минимальная площадь в продаже – у апартаментов-студий, от 17,3 кв. м. Их стоимость – от 8,35 млн руб. Площадь двухкомнатных евро-апартаментов – от 32,6 кв. м, а цена – от 9,8 млн руб., трехкомнатных – от 60 кв. м стоимостью от 15,2 млн руб. Апартаменты будут сдаваться без отделки. Срок ввода – 2024 г.
Цены в сити-комплексе «MirrorЗдание»:
|
Тип жилья |
Метраж, кв. м |
Цена, руб. |
Цена за кв. м, тыс. руб. |
|
студии |
от 17.31 |
от 11 168 448 |
|
|
1-комнатные |
от 42.44 |
от 16 661 618 |
|
|
2-комнатные |
от 48.54 |
от 20 069 718 |
|
|
3-комнатные |
от 94.46 |
от 37 555 654 |
|
Резюме
ЖК MOD не потеряется на фоне других новостроек района, так как это самый высотный проект на данной территории.
У него много и других преимуществ:
Одно из преимуществ ЖК – а именно расположение в центре Москвы – можно оценить и как недостаток по причине загрязнения воздуха и шума. Однако установка качественных стеклопакетов в доме премиум-класса все-таки сглаживает эти недочеты.
В целом жилой комплекс подойдет всем, кто ценит современную архитектуру, высокое качество строительства и комфорт проживания в центре Москвы. Благодаря сочетанию разных форматов недвижимости, здесь каждый сможет подобрать что-то свое.
Дата публикации 18 октября 2022