«Level Войковская» — это современный ЖК бизнес-класса рядом с метро, МЦК и торговым центром «Метрополис», который является одним из самых крупных в Москве. Проект включает в себя три башни высотой от 20 до 26 этажей, а также инфраструктуру для работы, отдыха и занятий спортом. Из окон квартир откроются захватывающие виды на город, зеленые просторы парков и Химкинское водохранилище. Чем ещё интересен новый проект Level Group, узнал «Новострой-М».
Примечание
В статье перечислены только факты о проекте, собранные из открытых источников. В рубрике «Экспертиза проекта» Новострой-М решил отказаться от оценок и оценочных суждений: право делать выводы из описанных фактов мы предоставляем нашим читателям.
Level Group является одним из лидеров столичного девелопмента. В рейтинге Единого реестра застройщиков компания занимает пятую строчку по объемам строительства на территории Москвы. В портфеле Level Group 10 завершенных и введенных в эксплуатацию проектов в сегментах «Комфорт» и «Бизнес», а также 14 проектов на разных стадиях реализации.
Наряду с многолетним опытом у компании есть и собственная философия, в основе которой ориентация на результат, гибкость и непрерывное развитие, клиентоориентированность, честность и ответственность. И хотя часть проектов были сданы с переносом сроков, задержки не превышали нескольких месяцев. В целом, у Level Group сложилась репутация надежного застройщика с высоким уровнем сервиса. Со всеми проектами компании можно ознакомиться по ссылке.
ЖК «Level Войковская» занимает небольшой участок в Войковском районе — 1,15 га. В составе проекта три башни, размещенные на стилобате, а также благоустроенный зеленый двор. Над архитектурным и ландшафтным проектом работали известные бюро — АПМ Фефелова В. В. и «Правда», а также бюро BLANK, которое разрабатывало дизайн для лобби и общественных пространств.
Всего в проекте 539 квартир площадью от 29 до 120 кв. м. и увеличенной высотой потолков — от 3,02 – 5,42 м. Высота оконных проемов достигает 2,3 м., а ширина — 1,8 м.
Завершение основных строительных работ запланировано на III квартал 2028 года.
ЖК «Level Войковская» в цифрах:
Архитектурная концепция проекта включает в себя три башни в современном стиле: со строгой геометрией, светлыми фасадами, большими окнами. Для внешней отделки будут применены алюмокомпозитные и алюминиевые кассеты белого и серого цветов. Чередование вертикалей и горизонталей оконных проемов придает облику динамики и позволяет проекту стать гармоничным продолжением городского пейзажа.






Узнаваемым облик башен делают надстройки над последними этажами, напоминающие по форме паруса. По замыслу архитекторов, здания должны подобно яхтам «плыть» на фоне водохранилища. В темное время суток выразительную архитектуру комплекса подчеркнет дизайнерская подсветка.
Современный стиль нашел продолжение и в интерьере лобби. Для резидентов комплекса и их гостей будут созданы светлые уютные пространства с высокими потолками (6,45 м.) и мягким освещением.



Теплые оттенки, натуральные материалы, дизайнерская мебель позволят чувствовать себя дома ещё до того, как жители попадут в свои квартиры. Важные функциональные зоны будут гармонично включены в интерьер, например: почтовые ящики станут частью декоративного стеллажа, в зоне ожидания разместятся диваны и кресла, а стильная и лаконичная стойка ресепшн будет напоминать арт-объект.
В лифтовом холле появится зеркальная тонированная стена, которая визуально расширит пространство, а также позволит жителям ещё раз окинуть себя взглядом перед выходом на работу или важную встречу.
Двор жилого комплекса будет огорожен по периметру. Здесь жители смогут заниматься спортом на площадках с современными уличными тренажерами, турниками и снарядами, а также безопасным резиновым покрытием, играть в петанк или практиковать йогу.



Отдохнуть и поработать можно будет в уютных зонах с навесами, перголами, удобными креслами и цветниками. Дети разных возрастов смогут проводить время на игровых площадках.
В проекте применены современные технологии и решения, которые позволят сделать проживание комфортным и безопасным, сэкономить время и другие ресурсы.
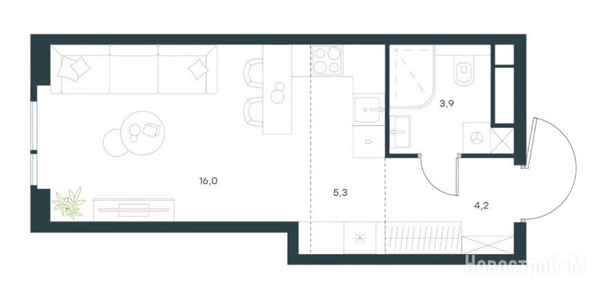
Квартирография проекта включает в себя более 20 различных планировок — от функциональных студий до семейных лотов с мастер-спальнями, постирочной и просторной гостиной.
Самые маленькие квартиры в проекте имеют площадь 29 кв. м. Они отличаются прямоугольной формой, что расширяет возможности зонирования. Просторная прихожая позволяет организовать зону хранения, в санузле для экономии места предполагается установка душевой кабины вместо классической ванны.
Площадь однокомнатных квартир в проекте начинается от 40,9 кв. м. Вопрос хранения здесь решается за счет гардеробной комнаты, вход в которую осуществляется из прихожей. Площадь санузла позволяет установить ванну, раковину и стиральную машину.
Чуть больше половины лотов приходится на квартиры с 2-3 изолированными комнатами. Среди них есть варианты с классическими планировками (кухня меньше жилых комнат), а также квартиры евроформата с просторной кухней-гостиной. В некоторых квартирах есть гостевой санузел и отдельная комната для хранения и стирки одежды.
Самые просторные лоты — четырехкомнатные. Их площадь варьируется от 99 до 120,5 кв. м. В таких квартирах будет 1 или 2 мастер-спальни, три санузла, семейная гостиная и постирочная.





Кроме того, в корпусе 5 на втором этаже расположены квартиры с потолками 5,42 м., в которых при желании можно будет обустроить антресольный этаж. Из редких форматов также заявлены три квартиры с открытыми террасами площадью от 5 до 16 кв. м.
Во всех квартирах удобно разделены гостевые и приватные зоны, выделено достаточное мест для хранения, предусмотрены технические и вспомогательные помещения.
Покупатели могут выбрать квартиры с видом на парк, город или двор. Для удобства поиска на официальном сайте ЖК «Level Войковская» есть готовые подборки квартир для семей с детьми, для инвестиций, с готовым ремонтом.
В корпусах 3 и 5 все квартиры продаются без отделки. Владельцы смогут самостоятельно спланировать пространство, разводку электричества и другие опции, а также реализовать индивидуальный дизайн-проект.
В 4-ом корпусе приобрести квартиру можно с отделкой white box. В такой квартире останется лишь выполнить финишные работы: уложить напольное покрытие, покрасить или оклеить обоями стены, смонтировать потолок. Стоимость предчистовой отделки будет включена в договор долевого участия — её можно оформить в ипотеку. В качестве дополнительной опции можно заказать готовый дизайнерский ремонт в одном из двух стилей — Modern или Classic.




Жилой комплекс строится в Войковском районе (САО), в 500 метрах от Ленинградского шоссе. Выехать на эту автомагистраль жители новостройки смогут за 5 мин. Дорога на машине до пересечения Ленинградки с ТТК займет около 15 мин., а до Садового кольца — 20 мин. при среднем дневном трафике.
Доехать до Кремля, парка Зарядье и других популярных мест в историческом центре столицы можно за полчаса. Самый короткий путь до главного делового кластера «Москва-Сити» пролегает через ул. Народного ополчения и занимает 20-25 мин. Чтобы добраться до аэропорта Шереметьево (19 км), понадобится около 25 мин.
В локации есть разные виды общественного транспорта. В 620 м. от ЖК расположен вход на станцию МЦК «Балтийская», дойти до него пешком можно за 7 мин. В 12 мин. ходьбы находится станция метро «Войковская» (Замоскворецкой линии). Рядом есть несколько автобусных остановок — на Старопетровском и Новопетровском проездах, а также на Ленинградском шоссе. Большой выбор маршрутов позволяет удобно спланировать путь до нужной точки с минимальным количеством пересадок.
Станции МЦК и метро, время в пути от ЖК «Level Войковская»:
Войковский район расположен в северной части Москвы. Он имеет небольшую площадь, которая занята преимущественно жилыми кварталами. Ключевой магистралью в этой локации является Ленинградское шоссе, также через территорию района проходит железная дорога — эти факторы оказывают влияние на местную экологию. В целом, ситуация здесь оценивается как «приемлемая» — 6 баллов в рейтинге EcoStandard.
В самом Войковском районе нет крупных парков, зато в соседних — расположены парк Покровское-Стрешнево и Тимирязевский парк, что позволяет нивелировать негативное влияние промышленности и других техногенных факторов.
Для ежедневных прогулок жители строящегося комплекса «Level Войковская» смогут отправиться в Старопетровский сквер или парк им. Воровского, расположенные в 10 мин. ходьбы. Чтобы дойти до ближайшего входа на территорию парка Покровское-Стрешнево, новоселам потребуется около 13-15 мин. Дойти до Березовского парка и берега Химкинского водохранилища можно за 20 мин. Путь до Тимирязевского парка займет полчаса.
Собственная инфраструктура жилого комплекса будет включать в себя магазины, салоны красоты, прачечные, кафе и пекарни на первом этаже. Всё остальное жители новостройки смогут найти в соседних кварталах.
Детские сады
В пешей доступности от строящегося ЖК работают частные детские центры, а также муниципальные детские сады. Ближайшие из них: дошкольное отделение школы №201 — 990 м., дошкольное отделение школы №717 — 1,5 км, «Бэби-клуб» — 780 м., Sun School — 1,3 км, детский сад «Звездный» — 1,7 км.
Школы
В Войковском районе большой выбор школ, до многих из которых маленькие жители нового комплекса смогут дойти пешком. Например, дорога до школы № 90 имени Героя Советского Союза Е. Г. Ларикова и школы № 201 Ордена Трудового Красного Знамени имени Героев Советского Союза Зои и Александра Космодемьянских займет 8-9 мин. Дойти до школы №717 (1 и 2 корпуса) можно за 15-17 мин. Примерно столько же времени понадобится, чтобы дойти до школы №224. В 20 мин. ходьбы расположена школа №1679.
Супермаркеты
В 700 м. от новостройки находится один из наиболее крупных торгово-развлекательных центров Москвы «Метрополис». Его площадь более 200 тыс. кв. м. Здесь расположены бутики известных брендов одежды, обуви и украшений, салоны мобильной связи, магазины техники, салоны красоты и барбер-шопы, супермаркет «Перекрёсток», кинотеатр с 12 залами Cinema Park DeLUXE, караоке-бар и боулинг, а также семейный развлекательный парк Funky World с аттракционами, игровой площадкой и детской развивающей зоной. Дойти до ТРЦ пешком можно за 7 мин.
Рядом с «Метрополисом» находится ТРЦ Baby Store, на территории которого находятся фитнес-центр, студия йоги, мебельные магазины, туристические агентства, зоомагазины, клуб виртуальной реальности, а также большой супермаркет «Пятерочка». Дойти до торгового центра от ЖК «Level Войковская» можно за 5 мин.
Поликлиники
Взрослые жители ЖК «Level Войковская» смогут пройти обследования и получить консультации врачей в городской поликлинике №45, расположенной по адресу: 1-я Радиаторская ул., 5. Дойти до поликлиники можно за 16 мин. А вот до детской поликлиники удобнее доехать на машине или метро, так как расположена она в 2,7 км от новостройки, по адресу: Головинское ш., 6А. Дорога займет около 25-30 мин.
Пройди диагностику и проконсультироваться с врачами узкого профиля также можно в частной клинике «СМ-Клиник», которая находится в 5 мин. ходьбы от нового ЖК.
Чтобы увидеть объекты, нажмите на соответствующую кнопку внизу карты.
Фитнес-центры
Войковский район предлагает широкие возможности для занятий спортом. В пешей 10-минутной доступности у резидентов «Level Войковская» будет несколько фитнес-клубов известных сетей: World Class, Spirit Fitness, Nova, Fit-n-Go, а также студия пилатеса Nebrevno Studio, спортивный клуб Hawaii Fitboxing, оздоровительный центр «Точка движения».
Безопасность
Войковский район не входит в число наиболее опасных локаций столицы, криминогенная ситуация здесь стабильная. По итогам 2024 года отмечено незначительное снижение обращений граждан в полицию (-1,3%), также уменьшилось количество общеуголовных преступлений (-4,1%).
В целом, жители новостройки будут чувствовать себя в безопасности, а при необходимости смогут обратиться в отделение полиции, расположенное всего в 730 м. от ЖК (по адресу: Старопетровский пр., 2). Немного дальше, в 1,4 км, расположен Участковый пункт №29, дойти до которого новоселы смогут за 16 мин. Ещё один участковый пункт находится в 3-ем Новоподмосковном пер., 6, дойти до него можно за 18 мин.
Продажи квартир в ЖК «Level Войковская» стартовали в июне 2025 года, за прошедшие несколько месяцев уже отмечен рост цен: однокомнатные квартиры подорожали в среднем на 600-630 тыс. руб., двухкомнатные — на 385 тыс. руб.
В настоящее время (октябрь 2025) приобрести квартиры в проекте можно по следующим ценам:
Актуальные цены в ЖК «Level Войковская»:
|
Тип жилья |
Метраж, кв. м |
Цена, руб. |
Цена за кв. м, тыс. руб. |
|
студии |
28.60 — 29.90 |
16 169 020 — 17 846 058 |
540.8 — 622.8 |
|
1-комнатные |
40.90 — 50.10 |
19 087 793 — 28 653 782 |
428.6 — 658.7 |
|
2-комнатные |
62.10 — 71.50 |
25 750 624 — 39 014 138 |
408.7 — 546.4 |
|
3-комнатные |
87.30 — 94.00 |
34 570 607 — 48 215 579 |
373.7 — 525.2 |
|
4-комнатные |
99.10 — 120.50 |
39 716 530 — 47 635 174 |
364.5 — 417.6 |
Покупателям доступны ипотечные программы от банков-партнеров. Самые привлекательные ставки по программе «Семейная ипотека» — от 3,9% годовых. Минимальная процентная ставка по стандартным несубсидированным программам — 18,49-19,1%, с субсидией на весь срок — от 12,99% годовых (Совкомбанк). Срок кредитования — до 30 лет.
У застройщика также предусмотрена возможность оформления беспроцентной рассрочки, но для «Level Войковская» эта опция в настоящий момент недоступна.
Данные об условиях кредитования действительны на момент публикации статьи. Актуальную информацию вы всегда можете найти в карточке проекта.
Конкуренцию проекту Level Group могут составить строящиеся неподалеку ЖК «Яркий квартал Injoy» от компании «Талан», а также ЖК Moments, застройщиком которого выступает FORMA — дочерняя структура ПИК.
ЖК «Яркий квартал Injoy» находится в 12 мин. ходьбы от станции метро «Водный стадион» и МЦК «Балтийская». Новый комплекс бизнес-класса будет состоять из трех кварталов, которые займут 22 га. Высота секций варьируется от 8 до 35 этажей. Планируемый срок сдачи первой очереди — 1 квартал 2027 года.
Квартирография Injoy представлена лотами различной площади — от 25 до 121. Преобладают двухкомнатные и трехкомнатные квартиры. Есть варианты с мастер-спальнями, угловым остеклением, просторными террасами. Покупателям предлагаются классические планировочные решения и квартиры евро-формата. Отделка не предусмотрена. Стоимость недвижимости — от 15,4 млн руб.
Актуальные цены в ЖК «Яркий квартал Injoy»:
|
Тип жилья |
Метраж, кв. м |
Цена, руб. |
Цена за кв. м, тыс. руб. |
|
1-комнатные |
21.40 — 62.50 |
14 372 150 — 33 720 400 |
434 — 767.9 |
|
2-комнатные |
40.30 — 78.20 |
19 981 762 — 34 962 400 |
386.9 — 620.2 |
|
3-комнатные |
61.40 — 88.50 |
27 064 862 — 45 324 700 |
376.8 — 586.2 |
|
4-комнатные |
86.70 — 158.80 |
39 450 772 — 75 367 900 |
389.4 — 542.7 |
ЖК Moments возводится в развитом и экологически благоприятном районе Щукино, в 5 мин. от парка Покровское-Стрешнево, Щукинского парка и Всехсвятской рощи. Транспортную доступность новостройке обеспечивают станции МЦД и МЦК «Стрешнево», расположенные в 5 мин. ходьбы. На равном удалении от ЖК находятся станции метро «Щукинская» и «Войковская» — до любой можно дойти за 18-20 мин.
Актуальные цены в ЖК Moments:
|
Тип жилья |
Метраж, кв. м |
Цена, руб. |
Цена за кв. м, тыс. руб. |
|
студии |
26.40 — 28.10 |
19 901 646 — 25 354 630 |
733.1 — 910.2 |
|
1-комнатные |
36.20 — 44.60 |
23 703 477 — 34 007 580 |
560.7 — 877.4 |
|
2-комнатные |
56.70 — 88.20 |
31 907 839 — 62 992 440 |
500.4 — 736.8 |
|
3-комнатные |
64.60 — 141.10 |
37 628 019 — 114 375 660 |
445.3 — 810.6 |
|
4-комнатные |
93.80 — 113.40 |
42 519 164 — 89 563 320 |
453.3 — 789.8 |
В составе комплекса будет 4 корпуса, первый из которых должен быть сдан до конца 2025 года, остальные — в 1 квартале 2027 года. Высота корпусов — 14-47 этажей. Предусмотрены подземная и гостевая парковки. В настоящее время продажи квартир открыты во всех корпусах. Площадь лотов — от 24 до 129 кв. м. Есть варианты с мастер-спальнями, несколькими санузлами, гардеробными комнатами, балконом, угловым остеклением, увеличенной высотой потолков.
Из большинства квартир открываются виды на парки. Вся недвижимость реализуется с предчистовой отделкой. Самое доступное предложение — студия за 16,4 млн руб., самый дорогой лот — квартира с четырьмя спальнями стоимостью 81,5 млн руб.
Резюме
ЖК «Level Войковская» будет интересен, в первую очередь, для собственного проживания. Он подойдёт людям, которым важна близость к центру, возможность быстро добираться до значимых точек столицы, а также престижность локации. Достаточно комфортно здесь будут чувствовать себя и семьи с детьми, так как рядом есть вся необходимая инфраструктура для образования, развития, занятий спортом, шоппинга.
Главные преимущества проекта:
Проект может отпугнуть инвесторов высокими ценами, рост которых продолжается с каждым месяцем. Ещё одним недостатком ЖК является далёкий срок сдачи — получить ключи от квартир без отделки можно будет только во второй половине 2028 года.
Дата публикации 14 октября 2025