Проект бизнес-класса «Фили Сити» оказался настолько востребованным среди покупателей, что здесь решили возвести вторую очередь, но уже премиум-сегмента. Небоскреб Famous и клубный дом Noble продолжили концепцию «сити» – квартала с собственной инфраструктурой, атмосферой и архитектурным стилем. Кроме них здесь появится «Алый сад» и двухуровневая подземная парковка. Что ещё ждет жителей нового проекта на западе Москвы, узнал Новострой-М.
Примечание
В статье перечислены только факты о ЖК, собранные из открытых источников. В рубрике «Экспертиза проекта» Новострой-М решил отказаться от оценок и оценочных суждений: право делать выводы из описанных фактов о жилом комплексе мы предоставляем нашим читателям.
Кто строит?
Девелопер проекта – MR Group. Компания известна своим комплексным подходом к освоению территории, ответственным отношением к срокам и качеству строительства, щепетильным подходом к выбору архитекторов, дизайнеров и подрядчиков.
Уже несколько лет MR Group занимает лидирующие позиции в рейтингах девелоперов и входит в ТОП-3 крупнейших застройщиков Москвы. В портфеле компании 52 проекта на 9,5 млн кв. м, значительная часть которых относится к сегментам «бизнес» и «премиум». Сейчас застройщик параллельно возводит сразу несколько крупных жилых комплексов: MOD, SLAVA, «Павелецкая Сити», City Bay, «Метрополия», Symphony 34 и «Селигер Сити». Узнать о компании больше вы можете на сайте Новострой-М.
Что строят?
Проект «Фили Сити» включает в себя две очереди строительства. Все дома в комплексе разные, но выдержаны в единой «музыкальной» концепции, что отражено в названиях корпусов, форме и высоте башен, внешней отделке.
Разработкой этого проекта занимались сразу два известных архитектурных бюро – Speech и ADM. Задачей архитекторов было «вписать» комплекс в окружающий ландшафт с учетом его природных особенностей и существующей застройки. Насколько это удалось, сейчас уже может оценить каждый, так как половина корпусов в квартале уже сданы и активно заселяются. Мы посетили стройплощадку этого ЖК совсем недавно, в конце декабря 2022 года, и вы можете посмотреть свежий фотоотчет.










ЖК в цифрах:
|
Корпус |
Лоты |
Класс энергоэффективности |
Машино-места |
Класс |
Срок ввода |
|
Adagio |
150 |
С |
- |
Бизнес |
III кв. 2021 |
|
Andante |
258 |
C |
478 |
Бизнес |
III кв. 2021 |
|
Vivo |
719 |
А |
532 |
Бизнес |
III кв. 2021 |
|
Famous |
500 |
А |
- |
Премиум |
IV кв. 2023 |
|
Noble |
39 |
А |
275 |
Премиум |
IV кв. 2023 |
Архитектура и дизайн
Первая очередь – дома бизнес-класса переменной этажности: Adagio – 31 этаж, Andante – 42 этажа, Vivo – корпус в форме каре из 9 секций высотой от 6 до 41 этажа. Здания отличаются строгой геометрией и лаконичной внешней отделкой. Для облицовки использована клинкерная плитка белого, красного и серого цвета. Окна в пол. Чтобы не нарушался облик фасадов, архитекторы предусмотрели технические помещения под кондиционеры.
















Концепцию лобби и МОП в домах «Фили Сити» разрабатывало бюро Олега Клодта. Отделка выполнена в светлых тонах с яркими акцентами в виде стеновых панелей и мебели. На полу и стенах керамогранит с авторским рисунком. Высокие потолки, панорамные окна и пол на уровне земли. Есть зона ожидания для гостей, небольшая рабочая зона, круглосуточный консьерж-сервис, гостевой санузел, колясочная и помещение для мытья лап домашним животным.
Вторая очередь – небоскреб Famous высотой 58 этажей и клубный 11-этажный дом Noble, которые относятся уже к премиальному сегменту. Эти здания разрабатывались бюро ADM, каждый из них представляет собой уникальное архитектурное решение.
Башня Famous имеет необычную форму, она сужается, а затем снова расширяется в верхней части, создавая эффект «текучести», нижняя ее часть более фактурная – треугольные стеклянные эркеры создают эффект чешуи. Фасад здания полностью стеклянный. Лобби корпуса Famous разрабатывали дизайнеры итальянского бюро А++. Внутреннее оформление продолжает футуристическую концепцию экстерьера. Строгая геометрия, металлические и стеклянные панели на стенах и потолках, динамическая подсветка вместе создают интерьер «из будущего». Его главная особенность в том, что он может меняться, подстраиваясь под время суток и сезон за счет изменения тона и яркости ламп. В лобби этого небоскреба несколько функциональных зон: лаундж с библиотекой и кофе-баром, зона здоровья с бассейном, тренажерным залом, паровой и инфракрасной кабиной, массажным кабинетом, и семейный ресторан. Базовый набор, включающий в себя санузлы, помещения для мытья лап питомцам, также предусмотрен wi-fi в местах общего пользования.
Клубный дом Noble имеет особую структуру и «глубокую пластику» фасада. Он выглядит монументально за счет пилонов и в то же время легко и современно благодаря панорамным окнам. Для внешней отделки будет использован бельгийский кирпич ручной формовки Vandersanden Lima. Он будет уложен особым образом, создавая дополнительный объем и фактурность. Пространство между пилонами тоже задействовано. Установка стеклянных ограждений позволит превратить его в аккуратные балконы. Это самый камерный корпус в ЖК «Фили Сити».
Входную группу клубного дома проектировала команда Лейлы Улуханли. Оформление получилось сдержанным, но благородным. Основные оттенки – белый и светло-коричневый. Высота потолков – 5,1 метра, вход на уровне земли, лаундж-зоны, гостевые санузлы и помещения для мытья лап домашним животным. Много внимания уделили деталям: сочетание геометричной мебели и плавных линий в оформлении стен и пола, дизайнерское освещение, центральным элементом которого является большая белая люстра. В отделке использованы качественные материалы: шпон, декоративная штукатурка, мрамор, латунь. Мебель и предметы интерьера разработаны специально для этого проекта.
Благоустройство
Территория ЖК «Фили Сити» занимает 4 гектара – вся эта площадь максимально задействована и разделена на функциональные зоны с учетом потребностей разных категорий жителей. Здесь есть собственный небольшой парк, дорожки для пробежек, зона для занятий спортом, уличные тренажеры под навесом (есть возможность заниматься с тренером), площадка для командных игр, детская площадка с оборудованием для детей разных возрастов, зоны для тихого отдыха. Запланированы кафе и магазины.

















Вокруг домов второй очереди будет создан уникальный ландшафт с горами, островами, степью, большим прудом и «Алым садом». Благоустройство вокруг клубного дома Noble разработало международное дизайн-бюро MADMA urbanism+landscape под руководством японского архитектора и урбаниста Хироки Мацуура. Вдохновением этого проекта стала японская традиционная культура с её стремлением к спокойствию, гармонии и уединению. Это место для спокойного времяпрепровождения, а все места для спорта и отдыха на территории первой очереди «Фили Сити» будут доступны и для жителей домов Famous и Noble.
Безопасность и технологии
Функциональность и комфорт нового комплекса прослеживаются не только в благоустройстве территории, но и в таких деталях, как круглосуточный консьерж-сервис, вход в дом по биометрии или с помощью BLE/NFC, въезд в паркинг по номеру автомобиля. Доступ к интернету есть на всей территории, включая оба уровня подземной парковки. Для того чтобы связь не пропадала в лифтах и паркинге, установлены усилители сигнала.
Жителям доступна интеллектуальная цифровая экосистема — MR Smart, которая позволяет через мобильное приложение связываться с УК, передавать показания и оплачивать счета в автоматическом режиме, заказывать пропуска гостям.
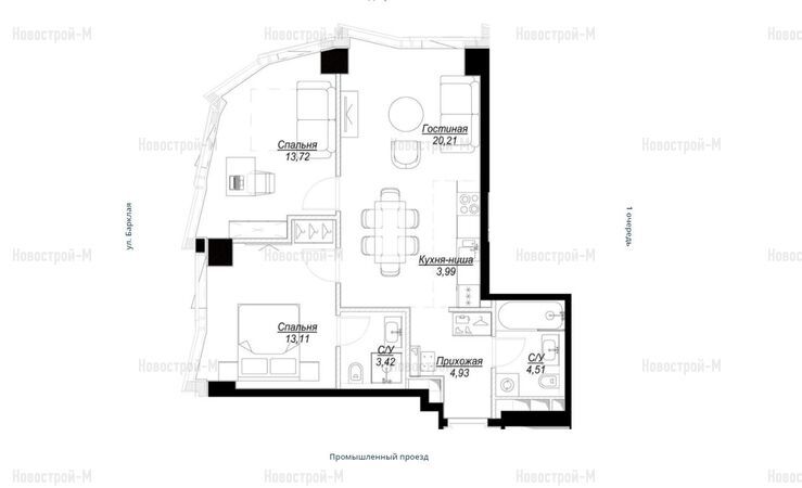
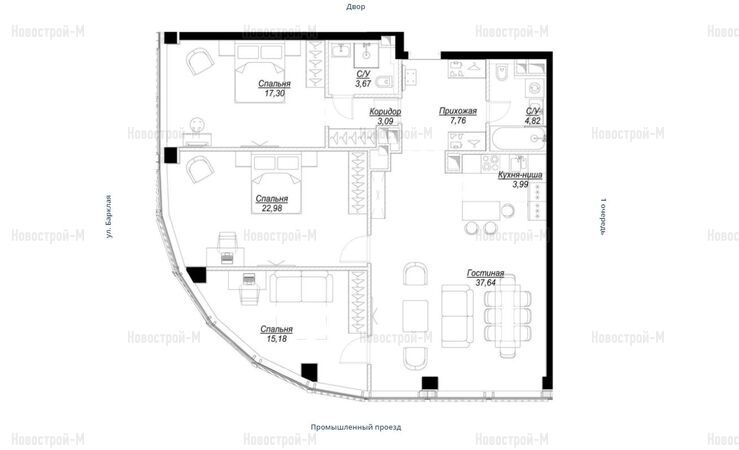
Планировки
Над планировками в проекте трудились специалисты бюро Олега Клодта. Архитекторы ставили перед собой задачу продумать расположение комнат таким образом, чтобы всё было под рукой и при этом было достаточно «воздуха». В «Фили Сити» есть квартиры с классическими решениями и лоты евроформата, где кухня объединена с гостиной зоной. Кроме того, окна большинства квартир, особенно на верхних этажах, предполагают панорамные виды на город — реку, окружающие парки, а также высотки «Москвы-Сити».






В домах первой очереди остались в продаже только трехкомнатные квартиры площадью от 93 до 125 кв. м. Можно выбрать «трёшку» евроформата с двумя спальнями или квартиру с тремя отдельными спальнями, двумя санузлами и гардеробными. В числе оставшихся в продаже лотов также представлены квартиры с большими ванными, в которых есть окна в пол – такой формат все еще редко встречается на рынке жилья бизнес-класса.
Ещё более разнообразный выбор планировок – в премиальных домах второй очереди. В продаже квартиры с 1, 2 или 3 спальнями, несколькими санузлами, гардеробными и кладовыми. В клубном доме Noble во всех квартирах есть балконы, планировки здесь предполагают евроформат: это просторные лоты с 2 или 3 спальнями (соответственно, с тремя или четырьмя комнатами, включая кухню-гостиную).




















Большая часть квартир реализуется в предчистовой отделке (MR Base): сделана разводка электричества и коммуникаций, выполнена стяжка пола, оштукатурены стены. Ремонт в такой квартире займет минимум времени. В клубном доме Noble покупателям предлагается три варианта чистовой отделки (MR Ready): Piano, Calando, Tempo в уникальном авторском дизайне. В небоскребе Famous разработано два варианта дизайнерской отделки квартир: MR Ready Black и MR Ready White, также можно приобрести лоты с предчистовым ремонтом.
Где строят?
Новый квартал возводится на западе Москвы в районе Филевский парк. Транспортную доступность обеспечивают крупные автодороги – ТТК, Кутузовский проспект, ул. Большая Филевская. До Садового кольца около 6,5 км.
Через территорию района проходит «голубая» линия метро, в шаговой доступности от новостройки расположены станции подземки:
Неподалеку от комплекса проходит железная дорога, станция МЦД «Фили» расположена в 600 метрах. Отсюда на электричке можно добраться до Белорусского вокзала всего за 12 минут.
Автомобилисты могут пользоваться выездами в сторону центра как через Кутузовский проспект, так и через Шелепихинский мост. Время в пути до ТТК составит 5-8 минут, до Садового кольца – 12-15 минут.
Экология
Экологическая обстановка в районе Филевский Парк оценивается как удовлетворительная. По оценке экспертов компании EcoStandard район получил 7 балов из 10 возможных по степени влияния негативных факторов. Здесь высокая плотность населения, много действующих промышленных предприятий, оказывающих влияние на качество воды и воздуха, крупный железнодорожный узел.
Зеленые зоны в районе тоже есть, и их немало: парк Фили, Ворошиловский парк, Солдатенковский парк, Суворовский парк, Филевская пойма. Также в соседнем районе находятся парк на Поклонной горе, Матвеевский лес, природный заказник Долина реки Сетунь.
Инфраструктура
Район Филёвский Парк, в котором возводится ЖК «Фили Сити», хорошо развит с точки зрения социальной и коммерческой инфраструктуры. Всё необходимое для комфортной жизни есть в радиусе 1-2 км.
На расстоянии менее 1 км находятся дошкольные отделения государственных образовательных центров «Интеграл» и «Протон», которые входят в ТОП-100 Московских школ. Дойти до них можно за 8-10 минут.
Вокруг нашей новостройки больше десятка частных учреждений для дошкольников, в том числе с углубленным изучением иностранных языков (Discovery, Smile fish). Самым ближайшим, но не самым бюджетным вариантом будет частный детский сад и начальная школа «Смарт скул», расположенный прямо в доме – на втором этаже корпуса Andante.
В округе большой выбор средних школ: сразу три школьных отделения образовательного центра «Интеграл» в 1-2 км от нового квартала, школа №67 в 1,5 км в сторону Кутузовского проспекта (около 15 минут пешком), школа «Протон» недалеко от м. «Багратионовская» (около 2 км – 20 минут пешком). На расстоянии пары километров также есть шахматная и музыкальная школы.
Ближайший торговый центр «Филион» расположен непосредственно рядом с ЖК «Фили Сити». Это не самый новый и современный ТЦ, но в нем есть большой продовольственный гипермаркет, магазины одежды и хозяйственных товаров, кинотеатр. С ним соседствует ещё одна торговая площадка – «Горбушкин Двор». Здесь есть магазины техники, сервисные центры, пункт выдачи СДЭК, а также фитнес-клуб с бассейном Fusion fitness. На другом берегу Москвы-реки находится «Афимолл-Сити» – путь до него на машине займет чуть более 5 минут.
Ближайшая детская поликлиника №128 находится в получасе ходьбы. Доехать до нее на машине можно за 6 минут. Взрослая центральная поликлиника находится в 1,5 км – это 15 минут спокойным шагом.
Сразу три фитнес-клуба находятся в ТЦ «Филион» в нескольких минутах ходьбы от ЖК: это Alex Fitness, Fitness Trainer Pro и «Небо спорт». Чуть дальше, в 10-15 минутах ходьбы, работают «X-Fit Парк Победы», Fusion Fitness и Stretch&Soul. Кроме того, в самом небоскребе Famous будет располагаться велнесс-центр с бассейном и тренажерным залом.
Безопасность
Общая криминогенная обстановка в районе оценивается как не самая благополучная. Сказывается близость промзон и железной дороги. Тем не менее, в отчёте МВД за 2021 год отмечается снижение числа преступлений и повышение процента их раскрываемости.
Ближайший участковый пункт полиции №34 находится в 14 минутах ходьбы от ЖК «Фили Сити».
Цены на квартиры
Проект реализуется не один год: старт продаж корпусов первой очереди состоялся в январе 2018 года с минимальным бюджетом 7,9 млн руб., к данному времени весь объем здесь практически полностью распродан. Сейчас к покупке доступны несколько трехкомнатных квартир по цене от 38,4 млн руб.
Квартиры в корпусах второй очереди, стартовавшие в феврале 2021 года, относятся к категории высокобюджетного жилья, уровень комфорта и сервиса здесь ещё выше, что не может не сказаться на цене. Минимальная стоимость предложения в доме Noble – 42,7 млн руб., в небоскребе Famous – 20,9 млн руб.
Цены в ЖК «Фили Сити»:
|
Тип жилья |
Метраж, кв. м |
Цена, руб. |
Цена за кв. м, тыс. руб. |
Нет в продаже | |||
Цены в доме Noble:
|
Тип жилья |
Метраж, кв. м |
Цена, руб. |
Цена за кв. м, тыс. руб. |
Нет в продаже | |||
Цены в корпусе Famous:
|
Тип жилья |
Метраж, кв. м |
Цена, руб. |
Цена за кв. м, тыс. руб. |
|
1-комнатные |
38.27 — 56.77 |
27 860 943 — 54 632 670 |
652.5 — 999.5 |
|
2-комнатные |
57.97 — 83.89 |
37 340 216 — 82 728 615 |
643.5 — 999.5 |
|
3-комнатные |
82.36 — 116.52 |
51 923 862 — 77 130 414 |
610.6 — 693 |
|
4-комнатные |
110.58 — 113.89 |
71 337 370 — 72 714 209 |
638.5 — 645.1 |
Приобрести квартиры в ЖК «Фили Сити» можно с привлечением заёмных средств. Ипотеку на срок до 30 лет с первоначальным взносом от 15% готовы предложить несколько крупных банков: ВТБ, МКБ, Сбербанк, Совкомбанк, Альфа-банк и другие.
На данный объект распространяется действие программы господдержки «Семейная ипотека», но стоит учитывать ограничения по сумме кредита в 12 млн руб. Если нужна большая сумма, то можно приобрести жильё по следующей схеме: 12 млн руб. получить под 6% в рамках госпрограммы, остальную сумму под обычный процент, который предложит банк (ставки начинаются от 9,69%). Также есть возможность получить субсидированную ставку на первые 12 месяцев – 0,01%. Действует и программа IT-ипотеки со сниженной ставкой от 0,1% на 1 год с повышением ставки до 4,5% на оставшийся период.
В небоскребе Famous также можно приобрести недвижимость в рассрочку под 0% до конца срока строительства – 30.09.2024 года.
Конкуренты
Запад Москвы – привлекательная локация для покупателей жилья, поэтому у «Фили Сити» немало конкурентов в сегментах «бизнес» и «премиум».
Ближайший сосед – ЖК «Барклая 6» от компании ПИК. Проект бизнес-класса, строящийся в 8 минутах ходьбы от метро «Багратионовская», состоит из 8 корпусов высотой от 12 до 24 этажей. В продаже представлены квартиры от студий до 4-комнатных. Несмотря на высокий класс жилья, площади лотов начинаются с 22,9 кв. метров. В стоимость включена предчистовая или готовая отделка на выбор покупателя. В составе собственной инфраструктуры ЖК предусмотрено строительство детского сада и школы.
Цены в ЖК «Барклая 6»:
|
Тип жилья |
Метраж, кв. м |
Цена, руб. |
Цена за кв. м, тыс. руб. |
|
студии |
26.60 — 27.60 |
18 662 560 — 19 504 920 |
701.6 — 706.7 |
|
1-комнатные |
36.10 — 46.50 |
23 569 690 — 26 332 950 |
566.3 — 652.9 |
|
2-комнатные |
52.40 — 88.30 |
28 400 800 — 37 633 460 |
417.1 — 542 |
Еще один проект ПИК по соседству – ЖК «Западный порт». На набережной Москвы-реки появятся 12 монолитных башен высотой 14-20 этажей (4 корпуса уже построены), объектов инфраструктуры, благоустроенных зон для отдыха и прогулок. Здесь можно будет приобрести квартиры от студий до четырехкомнатных с отделкой white box или без неё. Стоимость жилья в уже сданных корпусах – от 15,6 до 50,7 млн рублей.
Цены в ЖК «Западный порт»:
|
Тип жилья |
Метраж, кв. м |
Цена, руб. |
Цена за кв. м, тыс. руб. |
Нет в продаже | |||
ЖК премиум-класса «River Park Towers Кутузовский» возводится на набережной Москвы-реки в районе Дорогомилово. Это пять башен высотой 45-46 этажей, размещенных на общем стилобате. Здесь можно приобрести квартиры площадью от 21 кв. м до 166 кв. м в состоянии white box или с готовым ремонтом. Есть квартиры с эркерами, балконами, панорамным остеклением. В проекте предусмотрены благоустроенные, закрытые от машин дворы со всей необходимой инфраструктурой для спорта, отдыха и детских игр. Планируется строительство школы и детского сада. Стоимость квартир от 19.9 до 106 млн руб., но готовы они будут не раньше III квартала 2026 года.
Цены в ЖК «River Park Towers Кутузовский»:
|
Тип жилья |
Метраж, кв. м |
Цена, руб. |
Цена за кв. м, тыс. руб. |
|
студии |
21.30 — 46.20 |
27 793 812 — 48 818 041 |
757.1 — 1318.9 |
|
1-комнатные |
40.40 — 56.60 |
33 134 474 — 64 947 308 |
746.9 — 1201.3 |
|
2-комнатные |
56.50 — 104.20 |
48 970 147 — 130 868 376 |
761.6 — 1416.8 |
|
3-комнатные |
83.30 — 112.60 |
72 654 817 — 146 764 821 |
784.6 — 1444.8 |
|
4-комнатные |
130.70 — 151.60 |
158 204 456 — 288 040 000 |
1205.8 — 1900 |
Резюме
Жилой комплекс «Фили Сити» будет привлекательным вариантом прежде всего тех, кто выбирает жилье для себя и своей семьи на долгосрочную перспективу. «Фили Сити» это:
Район Филевский Парк активно застраивается новыми жилыми комплексами. В северной части района завершается строительство Национального космического центра, который повысит престиж данной локации. Соседство с парком, возможность приобрести жилье с видом на реку, наличие рядом с домом метро и всей необходимой инфраструктуры прежде всего оценят те, кто ищет новую квартиру неподалеку от центра Москвы с целью собственного проживания.
Дата публикации 11 января 2023