Рейтинг@Mail.ru
Переверните экран
Новостройки Квартиры Ипотека Новостройки Москвы Новостройки Подмосковья Новостройки Новой Москвы Готовые новостройки Новостройки на карте Акции от застройщиков Коммерческие помещения Продавцы и застройщики Панорамы новостроек Видеообзор новостроек Экспертиза новостроек Экология Москвы и Подмосковья Студии 1-комнатные 2-комнатные 3-комнатные Квартиры на карте Ипотечный калькулятор Семейная ипотека Военная ипотека Банки и программы Медиа Новости недвижимости Мнение эксперта Аналитика рынка Покупателю Экспертиза новостроек Эксперты и авторы О проекте Контакты Реклама на сайте Vk Youtube Telegram Дзен Машиноместа Апартаменты #траншевая ипотека #рассрочка IT-ипотека Квартиры со скидками до 35% Видео 360° новостроек Субсидированная застройщиком Rutube Поиск дома в Москве Программа реновации в Москве Новостройки премиум-класса Новостройки бизнес-класса Рассрочка Траншевая ипотека Дома и коттеджи Бизнес-центры Бизнес-центры в Москве Бизнес-центры рядом с метро Строящиеся бизнес-центры Бизнес-центры класса A Бизнес-центры класса B

ЖК «TITUL на Трубной»

«TITUL на Трубной» расположен в историческом районе Москвы. Проект представляет собой отреставрированный особняк с двухуровневыми квартирами, террасами и мансардой. Александр Асадов искусно вписал современность в исторический облик проекта. Со стороны Трубной улицы фасад сохранил свою классическую архитектуру, а внутренний фасад здания обрел актуальный вид.

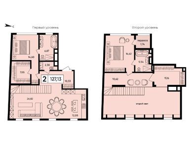
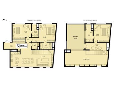
Четыре двухуровневые квартиры имеют два вида окон: классические выходят на тихую улицу, что позволяет поддерживать атмосферу приватности. Окна со стороны двора спроектированы в пол, это позволяет наполнить пространство естественным светом.

Все квартиры реализованы.

Москва, ЦАО, Мещанский
от 134 до 249 млн
 
Цены за квартиры от 5 февраля
по данным официального сайта
Звоните, мы ещё работаем!
Зафиксировать цену
ЖК «TITUL на Трубной» Фотографии
5

ЖК «TITUL на Трубной» - цены за квартиры от застройщика 5 февраля

1-комнатные
82.90 м2
134.8 млн руб.
2-комнатные
116.70 — 127.13 м2
173.3 — 196.9  млн руб.
3-комнатные
160.65 м2
249.8 млн руб.

Расположение

Регион Москва
Округ ЦАО
Район Мещанский
Метро
Адрес
ул. Трубная, д. 33/1
на карте

Способы оплаты

Рассрочка
есть

Как купить

ДДУ с эскроу-счетом (что это?)

Характеристики ЖК «TITUL на Трубной» (корпус 1)

Срок сдачи
сдан корпус 1
Тип здания
Количество этажей
3
Высота потолка
3.29 — 5.90
Тип кондиционирования
индивидуальное
Рядом парк
да
Малоэтажка
да
Класс новостройки
премиум
Стадия строительства
выдача ключей + заселение

Подробная информация

«TITUL на Трубной» расположен в историческом районе Москвы. Проект представляет собой отреставрированный особняк с двухуровневыми квартирами, террасами и мансардой. Александр Асадов искусно вписал современность в исторический облик проекта. Со стороны Трубной улицы фасад сохранил свою классическую архитектуру, а внутренний фасад здания обрел актуальный вид.

Четыре двухуровневые квартиры имеют два вида окон: классические выходят на тихую улицу, что позволяет поддерживать атмосферу приватности. Окна со стороны двора спроектированы в пол, это позволяет наполнить пространство естественным светом.

Все квартиры реализованы.

сдан
Задать вопрос
Выбирайте квартиру в ЖК «TITUL на Трубной» по ценам от застройщика АО «Центр-Инвест».
Этаж 2/3
Москва, ЖК «TITUL на Трубной»
Цветной Бульвар
7 мин.
Сдан
Этаж 2/3
Москва, ЖК «TITUL на Трубной»
Цветной Бульвар
7 мин.
Сдан
Этаж 3/3
Москва, ЖК «TITUL на Трубной»
Цветной Бульвар
7 мин.
Сдан
Этаж 3/3
Москва, ЖК «TITUL на Трубной»
Цветной Бульвар
7 мин.
Сдан
ЖК «TITUL на Трубной»ЖК «TITUL на Трубной» со стороны Трубной улицы.Входные группыПереступив порог дома, вы попадаете в приватное, роскошное лобби с элегантной зоной ресепшн.Лобби
Рассказать друзьям о ЖК «TITUL на Трубной»
Копировать ссылку

Скидки и акции на новостройки Москвы

Посмотреть все спецпредложения

ЖК «TITUL на Трубной» на карте

Как проехать

Метро «Цветной бульвар» → Пройти 560 м (7 минут)

Метро «Сухаревская» → Пройти 660 м (8 минут)

Инфраструктура

TITUL окружен доходными домами конца XIX века. В пешей доступности от особняка расположен «Цветной бульвар, сад «Эрмитаж», «Екатерининский парк», старейший ботанический сад России «Аптекарский огород». ЖК находится в районе с развитой инфраструктурой. Недалеко от него расположены две станции метро, школы, гимназия, детские сады, разнообразные магазины, культурные объекты.

Застройщик АО «Центр-Инвест»

Сданных
объектов
11
Строящихся
объектов
4
Рейтинг
Новострой-М
4.2
Сданных
вовремя
92%
Все новостройки застройщика

Отзывы о ЖК «TITUL на Трубной»

Будьте первым, кто оставит отзыв
о ЖК «TITUL на Трубной»
Добавьте отзыв, заполнив личные данные, или сначала войдите на сайт, тогда информация будет автоматически взята из личного профиля.
Оценка*

Вопросы и ответы о ЖК «TITUL на Трубной»

E
Ekaterina
06 марта 2025
Хотела бы получить актуальную стоимость на проект титул на трубной
Ответить
ЭН
Эксперт Новострой-М
11 марта 2025
Ekaterina, добрый день, в открытом доступе данных нет, Вам смогут помочь только в офисе продаж
Самый ценный ответ
Полезный ответ?
Задать вопрос
Напишие свой вопрос ниже — заполнив личные данные или войдите на сайт, тогда информация будет автоматически взята из личного профиля.