










































ЖК «Садовническая 69» строится в районе Замоскворечье на Садовнической набережной.
Надежность застройщика
Застройщик проекта — Balchug Development.
Описание ЖК
Элитный клубный квартал «Садовническая 69» строится на Садовнической набережной примерно в 15 минутах ходьбы от станций метро «Павелецкая» и «Новокузнецкая». Дорога на автомобиле до Кремля займет пару минут, до «Москва-Сити» — 10 минут, до парка Зарядье можно добраться всего за минуту.
Экологическую ситуацию в Замоскворечье нельзя назвать благоприятной, она оценивается как удовлетворительная. В районе нет крупных парков, негативное влияние оказывают загруженные дороги, также по территории района проходит железная дорога.
ЖК «Садовническая набережная 69» состоит из четырех среднеэтажных корпусов, они носят названия «Антарес» (на первой береговой линии), «Сириус» (двухэтажные урбан-виллы), «Альтаир» и «Арктур».
На первых этажах разместятся лобби с ресепшеном и лаунж-зонами, предусмотрены переговорные и подземный паркинг с комнатой для водителей. Во внутренней части квартала появятся плодовый сад, детская и спортивная площадки, с внешней стороны комплекса — бульвар, выходящий к набережной и торговой галерее.
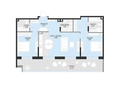
В проекте представлены квартиры, пентхаусы и урбан-виллы площадью от 60 до 380 кв. м, есть варианты с патио, приватным входом, дровяными каминами и террасами. Высота потолков — от 3 до 6,9 м. Ввод проекта запланирован во II квартале 2028 года.
Инфраструктура
В этом квартале не будет коммерческих помещений на первых этажах. Приватная инфраструктура включает бьюти-зоны и фитнес-зал.
Клубный квартал расположен в центре Москвы, и вся необходимая инфраструктура есть в пешей доступности: от школ и детских садов до ресторанов и бутиков.
Плюсы и минусы
Квартал возводится в центре Москвы рядом с рекой. Покупателям предложены разные варианты жилья: от квартир и пентхаусов до урбан-вилл. Близость к реке обеспечит отличные виды уже начиная с 5 этажа, а отсутствие коммерческих помещений делает проживание в квартале полностью приватным.
Проект расположен в центре Москвы, что означает наличие богатой инфраструктуры поблизости. Однако рядом нет зеленых зон, что, впрочем, частично будет компенсировано плодовым садом на территории квартала.
Станция метро «Новокузнецкая» → пройти пешком 450 метров до пересечения с Садовнической набережной (5 минут в пути) → повернуть направо на Садовническую набережную и пройти пешком 700 метров (8 минут в пути)
Станция метро «Павелецкая» → пройти пешком по улице Зацепский Вал 480 метров до пересечения с Садовнической набережной (5 минут в пути) → повернуть налево на Садовническую набережную и пройти пешком 620 метров (7 минут в пути)