В начале марта 2019 года компания «Донстрой» вывела на рынок жилой комплекс «Событие». Квартал возводится в районе Раменки (ЗАО) недалеко от станции метро «Аминьевская» и входит в топ-10 по продажам в Москве в бизнес-классе. Дома средней этажности и небоскребы, престижный район, собственная инфраструктура, большой парк у реки — чем еще интересен ЖК «Событие», изучил Новострой-М.
Примечание
В статье перечислены только факты о ЖК, собранные из открытых источников. В рубрике «Экспертиза проекта» Новострой-М решил отказаться от оценок и оценочных суждений: право делать выводы из описанных фактов о жилом комплексе мы предоставляем нашим читателям.
Кто строит
«Донстрой» — один из ведущих девелоперов столицы, на рынке присутствует с 1994 года. В портфеле компании — 8,4 млн кв. м площадей (из них 5,2 млн жилье), это проекты сегментов «бизнес», «премиум» и «де люкс». Сейчас «Донстрой» реализует в Москве семь проектов, изучить их можно на сайте Новострой-М.
Что строят
Жилой комплекс бизнес-класса «Событие» — часть масштабного проекта «Донстроя» в Раменках, который возводится на участке между Мичуринским проспектом, улицей Лобачевского и южным дублером Кутузовского проспекта.
ЖК состоит из пяти кварталов, высота корпусов варьируется от 13 до 50 этажей. Предусмотрены многоуровневые подземные паркинги, различные общественные пространства, школы и детские сады. Дома в первом квартале уже введены в эксплуатацию.
ЖК «Событие» в цифрах:
|
Объект |
Квартиры |
Энерго-эффективность |
Класс |
Машино-места |
Срок сдачи |
|
Событие-1, объект 1 |
396 |
А |
бизнес |
245 |
IV кв. 2021 г. |
|
Событие-1, объект 2 |
640 |
А |
бизнес |
465 |
I кв.2022 г. |
|
Событие-2 |
498 |
А |
бизнес |
309 |
IV кв. 2023 г. |
|
Событие-3 |
774 |
А |
бизнес |
461 |
IV кв. 2024 г. |
|
Событие-4, объект 1 |
531 |
А |
бизнес |
- |
III кв. 2025 г. |
|
Событие-4, объект 2 |
579 |
А |
бизнес |
675 |
III кв. 2025 г. |
|
Событие-5 |
569 |
А |
бизнес |
357 |
I кв. 2025 г. |
Архитектура и дизайн
Архитектурную концепцию проекта разработали в британских бюро LDA Design и UHA London. Каждый квартал «События» уникален: так, в составе четвертого квартала возводится первый в Москве небоскреб со sky-парком на высоте 170 м и sky-мостами между башнями, пятый квартал представляет собой две башни в стиле ар-деко с атриумом, среди других интересных решений — видовые лифты, футуристичный дом с террасами на крышах и дом в геометрическом стиле.










Особенности кварталов:
• «Событие-2»: террасный сквер с площадкой для командных спортивных игр, молодежным пространством и зоной отдыха с видом на парк; двухуровневые квартиры; детский сад и школа рядом с домом;
• «Событие-3»: дом рядом с парком, панорамные лифты, террасы на крышах; много квартир с угловым остеклением, на этаже — по 4-6 квартир; часть лотов — с готовой отделкой; парящие биокамины в лобби;
• «Событие-4»: sky-мосты с лаунжами и коворкингами; sky-парк с тренажерами, беговыми и прогулочными дорожками, лаунж-зонами; в квартирах все окна – в пол;
• «Событие-5»: дом рядом с парком, детским садом и школой; верхний и нижний дворы-сады; атриум с панорамным лифтом; квартиры с несколькими террасами.
Придомовая территория
Концепция благоустройства территории «События» принадлежит известному бюро Wowhaus. 24 га — больше половины территории жилого комплекса — займет парк. Здесь высадят более 30 тыс. растений: деревья, цветы, кустарники. Планируется сохранение краснокнижной флоры.










Общественные пространства представлены бульваром, сквером, событийной площадью, «фабрикой молодежи», смотровыми площадками. Предусмотрены зарядки для гаджетов.
Для посещения уже открыт природный парк в долине реки Раменки, его площадь — 12,4 га. Здесь имеются места для тихого отдыха, детские площадки «Лес» и «Луг», уличные тренажеры, беговые дорожки, велодорожки и другие возможности для занятий спортом, лекторий, летняя школа с огородом, площадки для выгула собак, для прогулок — семейные пешие маршруты. В природный парк ведет пешеходный мост с обзорной площадкой.
Во дворах найдутся занятия для жителей всех возрастов: детские развивающие площадки, зоны воркаут, площади для праздников и общения с соседями, места для спокойного отдыха: беседки и «городские гостиные». Рядом с детскими площадками будут скамейки с подогревом и места для «парковки» колясок.
Для гостевых автомобилей запланированы специальные парковочные места.
Безопасность и технологии
Территория ЖК «Событие» будет огорожена и свободна от автомобилей, попасть на нее можно по пропуску или смартфону. Предусмотрены системы видеонаблюдения — как внешнего, так и в паркингах и вестибюлях; автоматическая система пожаротушения и учета электроэнергии. В парке встроены зарядки для гаджетов. Лифты оборудованы системами управления трафиком.
Нежилые метры
На первых этажах корпусов откроются магазины, салоны красоты, кофейни и другие объекты инфраструктуры.












В двусветных лобби с авторскими интерьерами разместятся стойки ресепшн, мягкие зоны ожидания, биокамины, пикпойнты и цифровые почтовые ящики, колясочные, гостевые санузлы, помещения для мытья лап домашним животным после прогулок.
Также жителям «События» будут доступны коворкинги и фитнес-румы, лаунж-зоны, спортивные и детские клубы, букшеринг, кафе с террасами.
В подземных паркингах предусмотрена возможность установки системы зарядки электромобилей, есть автомойки и кладовые.
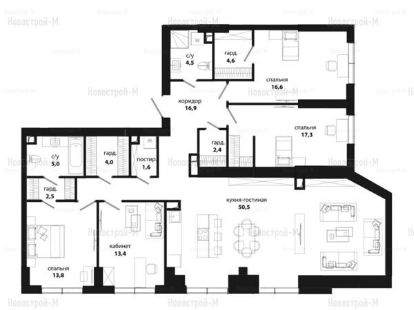
Квартиры и планировки
Покупателям предложены десятки планировочных решений, в экспозиции представлены варианты от студий площадью 22,5 кв. м до 5-комнатных площадью 170,1 кв. м. Часть квартир в корпусе 7 «События-3» реализуется с отделкой, остальные — без отделки. В лотах с дизайнерским ремонтом используются премиальные отделочные материалы, итальянские кухни со встроенной бытовой техникой.
Среди необычных форматов: пентхаусы, двухуровневые квартиры, лоты с террасами, с окнами в ванной, купольными окнами в пол, каминами в гостиных. Высота потолков в жилых помещениях на типовых этажах — 3,1 м, на верхних этажах — до 3,55 м, в пентхаусах – до 4,3 метра. Высота окон — от 3 метров. В большинстве квартир — две ванные комнаты.






Студии достаточно типовые, их площадь — от 22,9 до 31,8 кв. м, они различаются только площадью, вариантов с двумя окнами нет.
1-комнатные лоты в продаже по факту являются евродвушками со спальней и кухней-гостиной, но в вариантах меньшей площади метраж кухни-гостиной может быть небольшим для евроформата — от 14,5 кв. м. Есть варианты с гардеробными в спальне, угловыми окнами эркерного типа.
В квартирах с двумя комнатами и кухней-гостиной имеются мастер-спальни с санузлом и гардеробной, есть отдельные гардеробные. Планировки — линейные и угловые. Площадь таких квартир — от 60,6 до 98,4 кв. м.
3-комнатные квартиры также представлены в евроформате. Их отличия: одна или две мастер-спальни, гардеробные, угловые закругленные окна, в некоторых планировках, помимо двух спален и кухни-гостиной, предусмотрен кабинет.
В квартирах с большим количеством комнат запроектировано по несколько санузлов и гардеробных, а площадь кухни-гостиной превышает 30 кв. м. В ряде планировок имеются постирочные и кабинеты.





Из большинства квартир открываются виды на Лужники, МГУ, Воробьевы горы, Поклонную гору, «Москва-Сити» и другие достопримечательности столицы.
Где строят
ЖК «Событие» строится в одном из самых престижных и экологически благоприятных районов Москвы — Раменки (ЗАО).
Ближайшая станция метро — «Аминьевская» БКЛ, до нее 550 м, дойти можно за 7 минут, расстояние учитывается от ближних к этой станции корпусов.
Станции метро, время в пути от ЖК «Событие»:
К корпусам пятой очереди «События» ближе других находится станция метро «Мичуринский проспект»:
Также на улице Лобачевского есть несколько автобусных остановок, дойти до них можно за 10-15 минут.
Для автомобилистов есть выезды на Аминьевское шоссе и проспект Генерала Дорохова. До ТТК и «Москва Сити» можно доехать за 10 минут, до Садового кольца — за 15 минут, до аэропорта Внуково — за 25 минут.
Экология
В экологическом рейтинге от EcoStandard у района Раменки 4 балла из 10, экологическая обстановка здесь оценивается как благоприятная. В Раменках нет промышленных предприятий, товарных ж/д станций и сильно загруженных автодорог. При этом здесь много скверов и парков — Воробьевы горы, Ботанический сад МГУ, парк им. 50-летия Октября, долины рек Сетунь и Раменки.
Больше половины территории жилого комплекса займет собственный парк — 24 га. Для посещения уже открыты 12,4 га природного парка возле реки Раменка.
Инфраструктура
Собственная образовательная инфраструктура «События» включает детские сады и школы, такие учреждения есть и в окружении новостройки.
В одном из корпусов в ЖК «Огни» готовится к открытию частный билингвальный детский сад «Космо Кидс», для жителей соседних жилых комплексов, включая «Событие», предлагаются специальные условия. Дорога пешком до этого садика от нашей новостройки займет 10 минут.
В 1,2 км от ЖК «Событие» работает Классический пансион МГУ им. Ломоносова, принципом которого является непрерывный процесс поэтапного образования — от дошкольного до высшего. Также на базе пансиона открыт центр раннего развития.
На улице Большая Очаковская находятся два здания школы №2025, дойти до них можно за 20 минут, дорога на автобусе займет такое же время. Доехать от «События» до этой школы на машине можно за 5 минут.
Школа №97 на Очаковском шоссе находится в 1,8 км от ЖК «Событие», пешком это расстояние можно пройти за 22 минуты, дорога на автобусе займет 27 минут, на машине — 6 минут.
Немного дальше расположена школа №38 на Мичуринском проспекте — 32 минуты пешком или на транспорте (причем ехать придется с пересадками), 10 минут на автомобиле.
Кроме того, в Раменках и соседних районах расположены ведущие вузы страны: МГУ, МГИМО, РАНХиГС, РУДН, РГУ нефти и газа им. Губкина.
В составе ЖК «Событие» будут открыты собственные медицинские центры — это очень кстати, поскольку сейчас ближайшим платным медицинским учреждением является центр «Медси» в ЖК «Небо» на Мичуринском проспекте. До него около 3 км пешком, на автомобиле — примерно 4,7 км.
Филиал №4 детской поликлиники №30 на Веерной (бывшая ДГП №47) находится в 2,7 км от нашей новостройки, дорога пешком или на общественном транспорте займет больше получаса, на автомобиле — 9-10 минут. До детской поликлиники №131 на улице Раменки — 3 км (почти 40 минут пешком, примерно 35 минут на общественном транспорте, 10 минут на машине).
В соседнем здании с детской поликлиникой на улице Раменки находится и поликлиника для взрослых №209 — это ближайшая городская клиника от нашей новостройки.
Центр госуслуг (МФЦ) района Раменки расположен на Мичуринском проспекте недалеко от метро «Раменки», на автомобиле можно доехать за 12 минут, на общественном транспорте — за полчаса.
Продуктовые магазины в окружении ЖК представлены сетевыми супермаркетами «Дикси», «Азбука вкуса», «Красное и белое», небольшими магазинами и пекарнями формата «у дома».
В одном из корпусов соседнего ЖК «Лобачевский» работает фитнес-студия Indoorfit, идеально подходящая для индивидуальных тренировок. Залы оснащены оборудованием для занятий боксом, пилатес, растяжкой, аэростретчингом, функциональным тренингом. Дорога на тренировки из ближних корпусов «События» займет 15 минут пешком.
В ЖК «Мичурино» на Лобачевского, 43 открыта студия персонального тренинга Sunrise trainings, тренировки в которой проходят в формате мини-групп. Направления: йога (в том числе для мам с малышами), пилатес, стретчинг, силовые интервальные тренировки, боди памп, замба, латина. Расстояние до ЖК «Событие» — 1,5 км, или 17 минут ходьбы, а на велосипеде или самокате можно доехать в два раза быстрее. До спорткомплекса Олимпийской деревни можно доехать на машине за 9-10 минут или за 30 минут на общественном транспорте.
Безопасность
Раменки — один из самых безопасных районов Москвы, на социальную обстановку благоприятно влияет расположение на территории района МГУ и посольского квартала и отсутствие промзон. Недалеко от ЖК «Событие» находится управление МВД по ЗАО Москвы, оно работает круглосуточно.
Цены
Продажи жилья в ЖК «Событие» начались в марте 2019 года, минимальная стоимость на старте продаж составляла 9,5 млн рублей за квартиру евроформата площадью 44 кв. м. В третьей декаде октября 2022 года самый недорогой лот оценивается в 13,4 млн рублей — это стоимость студии площадью 22,5 кв. м без отделки.
Цены в ЖК «Событие»:
|
Тип жилья |
Метраж, кв. м |
Цена, руб. |
Цена за кв. м, тыс. руб. |
|
студии |
31.50 — 37.30 |
24 564 276 — 28 791 124 |
718.5 — 870.3 |
|
1-комнатные |
38.30 — 59.10 |
25 294 572 — 36 736 704 |
550.2 — 766.4 |
|
2-комнатные |
59.80 — 78.80 |
33 239 232 — 50 321 700 |
518.9 — 716.7 |
|
3-комнатные |
75.40 — 114.20 |
44 602 704 — 65 923 704 |
485.8 — 638.5 |
|
4-комнатные |
120.70 — 132.80 |
64 405 520 — 96 030 336 |
515.2 — 723.1 |
Ипотеку предоставляет банк ВТБ, ставки — от 0,1% по господдержке, семейной ипотеке и IT-ипотеке.
Мы посетили стройплощадку ЖК «Событие» в августе 2022 года, и вы можете оценить ход и масштаб строительства.






Конкуренты
В начале сентября в Раменках появился Кинематографический квартал — 11 улиц названы в честь знаменитых актеров и режиссеров. Именно в этом квартале строится ЖК «Событие», здесь же находятся и два других проекта «Донстроя» — почти готовый ЖК «Огни», в котором в продаже нет квартир от застройщика, и клубный дом «Река», цены на квартиры в котором начинаются от 42 млн рублей.
Ближайшим конкурентом можно назвать ЖК бизнес-класса «Крылья» от Группы «Эталон». Три башни-трилистника недалеко от метро «Аминьевская» уже достроены, в продаже осталось 10 квартир от застройщика, большинство из них забронированы. Самый бюджетный забронированный вариант — 1-комнатная квартира площадью 47,6 кв. м за 20,3 млн рублей (с учетом скидки), самый недорогой незабронированный лот — 3-комнатная квартира площадью 89,5 кв. м за 38,2 млн рублей.
Цены в ЖК «Крылья»:
|
Тип жилья |
Метраж, кв. м |
Цена, руб. |
Цена за кв. м, тыс. руб. |
Нет в продаже | |||
Другие конкурирующие проекты возводятся на отдалении от Кинематографического квартала. Так, ЖК комфорт-класса «Вестердам» от компании «Интеко» находится в районе Очаково-Матвеевское недалеко от станции метро «Аминьевская». Все корпуса уже достроены, предусмотрены подземный паркинг, детский сад и инфраструктура на первых этажах корпусов, «фишкой» благоустройства является яблоневый сад. В продаже — немногим более 200 квартир, цены — от 14,1 млн рублей за «евродвушку» площадью 36,7 кв. м без отделки, цена указана с учетом скидки, в октябре девелопер предоставляет дисконт до 25%.
Цены в ЖК «Вестердам»:
|
Тип жилья |
Метраж, кв. м |
Цена, руб. |
Цена за кв. м, тыс. руб. |
Нет в продаже | |||
Еще одна новостройка — ЖК «Level Мичуринский» от Level Group. Жилой комплекс в Очаково-Матвеевском рядом с метро «Мичуринский проспект» выведен в продажу в ноябре 2021 года, сейчас проект входит в топ-10 по продажам в бизнес-классе. Строительство 11 корпусов высотой 20-54 этажа ведется в две очереди, собственная инфраструктура включает детский сад, школу и различные объекты на первых этажах, а также трехуровневый подземный паркинг. Цены — от 9,1 млн рублей за студию площадью 22,5 кв. м, жилье реализуется в трех вариантах: без ремонта, с предчистовой или чистовой отделкой. Действует акция: скидка 30% при покупке в рассрочку или по 100% оплате, ипотека от 0,01% на весь срок кредита.
Цены в ЖК «Level Мичуринский»:
|
Тип жилья |
Метраж, кв. м |
Цена, руб. |
Цена за кв. м, тыс. руб. |
|
студии |
18.40 — 28.30 |
15 493 661 — 21 385 692 |
632.4 — 954.7 |
|
1-комнатные |
29.20 — 40.70 |
19 061 030 — 23 480 426 |
535.3 — 680.2 |
|
2-комнатные |
34.60 — 57.40 |
19 968 129 — 36 285 958 |
500.7 — 715.7 |
|
3-комнатные |
53.00 — 81.10 |
28 065 675 — 45 722 183 |
471.7 — 780.1 |
|
4-комнатные |
72.60 — 115.10 |
44 783 187 — 69 055 504 |
526.7 — 669 |
|
многокомнатные |
124.00 — 254.70 |
73 462 841 — 163 618 000 |
556.8 — 783.7 |
Резюме
ЖК «Событие» — одна из самых продаваемых новостроек бизнес-класса в «старой» Москве. Проект признан лучшим строящимся комплексом в этом сегменте по версии Urban Awards 2021, концепция территории названа лучшей на Urban Awards 2019.
Плюсы ЖК «Событие»:
- надежный застройщик;
- престижный район, хорошая экологическая обстановка, транспортная доступность;
- уникальная архитектура, разнообразные планировки квартир; отличные видовые характеристики;
- насыщенная собственная инфраструктура, большой парк с выходом к реке.
Минусом можно назвать разве что стоимость квартир — от 13,4 млн рублей за небольшую студию без отделки. Но, несмотря на это, «Событие» пользуется спросом у покупателей: в сентябре новостройка стала седьмой в топ-10 по продажам в бизнес-классе, улучшив августовский показатель на три позиции.
Удачное расположение относительно транспортных артерий, общественного транспорта и зеленых зон, развитая инфраструктура района и богатая собственная инфраструктура, разнообразные планировки — ЖК «Событие» представляет интерес как для покупателей без пары, так и больших семей с детьми. Для инвесторов проект мог быть интересен на старте, сейчас цены ощутимо выросли, к тому же в большинстве квартир не предусмотрена отделка.
Дата публикации 08 ноября 2022