В начале лета 2022 года компания Forma анонсировала строительство своего второго проекта — ЖК Republic на Пресне. Новостройка появится на месте бывших вагоноремонтных мастерских Московско-Александровской железной дороги, четыре сохранившихся цеха будут реконструированы. Центр Москвы, современные высотки рядом с историческими зданиями, функциональные планировки — что еще известно о новом проекте Forma, изучал Новострой-М.
Примечание
В статье перечислены только факты о ЖК, собранные из открытых источников. В рубрике «Экспертиза проекта» Новострой-М решил отказаться от оценочных суждений: право делать выводы из описанных фактов о жилом комплексе мы предоставляем нашим читателям.
Кто строит
Forma основана в 2021 году в рамках развития технологической компании ПИК для строительства в Москве проектов сегментов «бизнес» и выше. Первый проект от Forma — ЖК Først — был запущен в 2021 году. Republic станет вторым в портфеле девелопера.
Что строят
Republic позиционируется как архитектурный проект, жилой квартал премиум-класса, объединяющий современную архитектуру с историей Москвы.
Новостройка в Пресненском районе (ЦАО) включает 10 жилых корпусов (2651 квартира) высотой 24-45 этажей с двухуровневым подземным паркингом (1687 мест), а также офисный центр.
Застройщик получил разрешение на строительство первой очереди — двух 26-этажных башен REDS на 389 квартир с двухуровневым подземным паркингом на 353 машино-места и двухэтажного административного здания. Ввести первую очередь в эксплуатацию планируется в III квартале 2025 года.
ЖК Republic в цифрах:
|
№ |
Квартиры |
Энергоэффективность |
Класс |
Машино-места |
Срок сдачи |
|
1 |
389 |
А++ |
премиум |
353 |
III квартал 2025 года |
Архитектура и дизайн
Башни-близнецы REDS спроектировал лондонский архитектор Стив Браун, они будут построены по монолитно-каркасной технологии. Здания, выполненные в стилистике голландской архитектуры, созвучны историческим краснокирпичным цехам, которые сохранились в этом квартале.




Авторы проектов других зданий: российские бюро «Меганом» и Wall, Макс Дудлер (Швейцария), бюро Simpson&Haugh (Великобритания), Эйдан Поттер (Великобритания).
Так, в конце июня главный архитектор Москвы Сергей Кузнецов рассказал о корпусе, который спроектировали британские архитекторы из бюро Simpson&Haugh: это будет 34-этажное здание с разными фасадами. Южный фасад будет плоским и образует зимний сад с теплыми лоджиями на всю длину, а северная сторона задана в волнообразном ритме, который формируется за счет эркерных окон. Конструкция восточного и западного фасадов будет рельефной, из окон со смещенным углом откроются обзорные ракурсы. Нижний уровень башни оформлен красным кирпичом, этажи выше облицованы белыми керамическими панелями.
Исторические строения будут восстановлены — их реставрацией занимаются 100 специалистов.
Придомовая территория




Концепцию благоустройства разработало британское бюро ландшафтной архитектуры Gillespies. Благоустроенная территория займет 6 гектара, из них 4 гектара — приватный парк с дворами, бульварами и арт-галереей, еще на 2 гектарах разместятся городские пространства — площади и аллеи. Об исторической реке Пресне напомнит детский маршрут с водными локациями. Площадь общественных пространств составит 65 тыс. кв. метров.
Безопасность
Дворы будут закрыты и свободны от машин, предусмотрены системы видеонаблюдения и контроля доступа.
Нежилые метры
Первые два корпуса будут объединены лобби, в которое входят зоны ресепшн и ожидания, колясочная, постаматы, гостевой туалет, лапомойка. На крыше лобби разместится терраса для отдыха, попасть на нее можно будет на лифте.
В исторических зданиях (совокупный объем почти 9 тыс. кв. м) разместятся гастрономический центр, шопинг-аллея и объекты детской инфраструктуры, в том числе инклюзивные игровые площадки и термы.
Резиденты также смогут приобрести кладовые помещения, которые будут оборудованы как на уровне подземного паркинга, так и на жилых этажах.
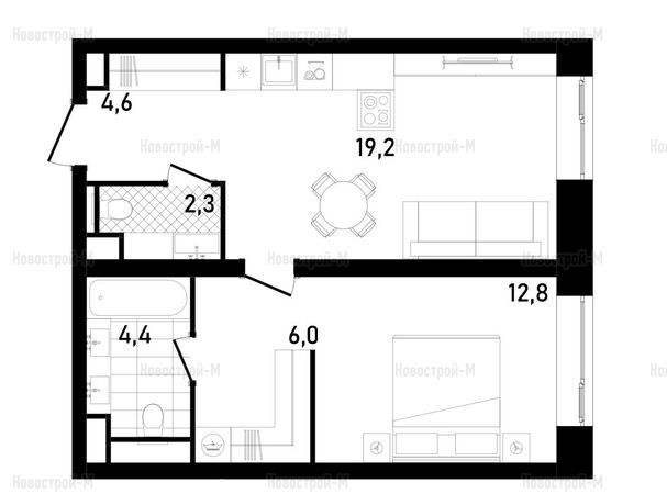
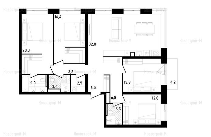
Квартиры и планировки
Квартирография корпусов первой очереди представлена вариантами площадью 26-141 кв. м, от студий до пентхаусов, без отделки и с предчистовой отделкой (white box). Квартиры в основном просторные, с европланировками: так, площади 2-комнатных лотов начинаются с 62,39 кв. м, трехкомнатных — от 75,16 кв. м. Площади «однушек» достигают 53,16 кв. м.
Квартиры-студии — классической формы, с одним окном. В «евродвушках» имеются кладовые, балконы, лоджии, есть варианты с тремя окнами, мастер-спальнями.





«Евротрешки» представлены угловыми и линейными планировками. В них также есть мастер-спальни, помещения под кладовую или гардеробную, балконы.
В квартирах с тремя комнатами и кухней-гостиной встречается интересный формат: одна из комнат представляет собой гостиную, не отделенную от прихожей перегородкой. Имеются варианты с мастер-спальнями, с балконами, с увеличенным количеством окон на кухней-гостиной.
Квартиры с четырьмя спальнями и кухней-гостиной — угловые. В них также есть мастер-спальни, кладовые и балконы.
Все квартиры в ЖК Republic правильной формы, без непрямых углов. Отличительная особенность лотов – высокие потолки: до 3,1 метра в квартирах и до 4,25 метра в пентхаусах.
Где строят
ЖК Republic будет построен на улице Пресненский Вал, на территории бывших вагоноремонтных мастерских.
В Пресненском районе работают семь станций метро («Баррикадная», «Краснопресненская», «Улица 1905 года», «Выставочная», «Международная», «Деловой центр» и «Шелепиха»), четыре ж/д платформы (МЦК и МЦД-1).
Рядом с границами района находятся станции метро «Беговая», «Тверская», «Арбатская» и «Белорусская», неподалеку расположен Белорусский вокзалс остановкой аэроэкспрессов до аэропорта «Шереметьево».
Ближе всех к ЖК Republic находится станция метро «Белорусская» – дойти до нее можно за 10-15 минут, в перспективе от ЖК к ней будет проложен бульвар. Поскольку проект занимает довольно большой участок, от разных корпусов время в пути до метро будет разным, мы приводим средние значения.
Станции метро и МЦК, время в пути от ЖК Republic:
Недалеко от ЖК есть автобусная остановка, можно доехать до Рижского вокзала и ММДЦ «Москва-Сити».
Дорога до ТТК займет 4 минуты на автомобиле, до Садового кольца — 8 минут. Пробки наблюдаются на Ленинградском проспекте и примыкающих к нему улицах.
Экология
В рейтинге от компании EcoStandard Пресненский район набрал 6 баллов из 10 возможных, экологическая обстановка здесь оценивается как приемлемая. Основная проблема ЦАО — сильная загазованность, большая часть вредных веществ попадают в воздух с автомобильными выхлопами.
На территории района есть несколько парков: Красная Пресня, Декабрьского восстания, детский парк «Пресненский». К другим зеленым зонам можно отнести Тверской бульвар и сквер на Патриарших прудах.
ЖК Republic будет построен между улицей Пресненский Вал и ж/д путями. Вблизи новостройки нет обширных зеленых насаждений, однако территорию проекта благоустроят, здесь появится ландшафтный парк площадью в 5 футбольных полей.
Инфраструктура
Собственная инфраструктура проекта состоит из гастроцентра, торговой аллеи, водно-термального комплекса с бассейнами и банями, детского сада и различных общественных пространств, часть объектов разместятся в исторических зданиях.
В окружении новостройки достаточно много муниципальных и частных детских садов. Так, до садиков Sun School в Среднем Тишинском переулке и Smile Fish на Малой Грузинской — не более 800 м, дойти до них можно за 9-10 минут. Детский сад «Синяя птица» на Грузинском Валу находится в 1 км от нашей новостройки, это 13-18 минут пешком.
Дошкольное отделение №6 «Улыбка» Романовской школы в Большом Кондратьевском переулке расположено в 1,1 км от ЖК Republic, дошкольное отделение школы №1241 «На Красной Пресне» на улице Зоологическая — в 1,5 км.
Начальное отделение Романовской школы в Среднем Кондратьевском переулке находится в 720 м от нашей новостройки, пройти это расстояние можно за 9 минут. Еще одно начальное отделение, на улице Климашкина, расположено в 1,1 км от ЖК. До школьного отделения того же учебного заведения в Большом Кондратьевском — тоже 1,1 км (13 минут пешком).
Расстояние до школы №1950 на улице Красина — 1,55 км, до отделения той же школы на Зоологической — 1,76 км, до школы №1574 на Тверской-Ямской — 1,72 км. Кадетская школа №1784 с дошкольным отделением на улице Верхняя расположена почти в 2 км от Republic.
Ближайшая детская городская поликлиника — это поликлиническое отделение детской Филатовской больницы на Зоологической улице. Оно находится в 1,7 км от ЖК Republic (20 минут пешком или общественным транспортом, 9 минут на автомобиле).
Практически на таком же расстоянии находится медцентр АВС на улице 1905 года — здесь принимают и детей, и взрослых.
Филиал №3 городской поликлиники №220 в Расторгуевском переулке находится в 1,4 км от Republic (17 минут пешком, 14 минут общественным транспортом, 6 минут на машине). Основное здание поликлиники расположено на улице Заморенова, это почти 2 км от нашей новостройки.
До КДЦ «Медси» на Белорусской — 880 м, это самый ближний медцентр к ЖК Republic.
Ближайшие продуктовые магазины представлены магазинами в формате «у дома», сетями «Пятерочка», «Мираторг», «Магнолия», «Вкусвилл» и «Перекресток».
Неподалеку от ЖК Republic находится ТВК «Тишинка», легендарный «блошиный рынок», где проходят различные мероприятия. Дойти до него можно всего за 15 минут.
У резидентов Republic будет большой выбор для занятий спортом — в 10 минутах ходьбы работает школа танцев «Пилония», до фитнес-клуба Inshape Fitness в МФК «Пресня Сити» или школы танцев для девушек Ladies Dance&Mind также можно дойти за 10 минут.
В 13 минутах ходьбы расположен премиальный фитнес-клуб World Class с тренажерами, аквазоной, зонами боевых искусств и функционального тренинга, также в этом клубе могут заниматься дети. На таком же расстоянии находится студия экспресс-коррекции фигуры «Красотка Я». До фитнес-студии Let`s Go можно дойти за 20 минут — или доехать на авто за 6 минут.
Также можно отметить близость Центрального дома Союза кинематографистов (1,34 км), Московского зоопарка (около 2 км) и Центрального ипподрома (2,75 км).
Безопасность района
ЦАО является одним из самых небезопасных округов столицы, весной 2021 года лидерами по абсолютному числу зарегистрированных преступлений были названы Тверской и Пресненский районы.
В Пресненском районе самыми опасными считаются улицы Красная Пресня и Садовая-Кудринская, Шмитовский проезд, Краснопресненская набережная и Пресненский Вал — здесь часто фиксируются квартирные кражи и грабежи, незаконный оборот наркотиков.
Кроме того, Пресненский район фигурирует в сводках МВД из-за большого числа офисных краж и правонарушений в барах и ресторанах.
Ближайший участковый пункт полиции находится на Малой Грузинской улице, в 790 м от ЖК Republic. До пункта на Грузинском Валу — 880 м, на Тишинской площади — 1 км. Ближайшее круглосуточное отделение МВД расположено на улице Скаковая (2,5 км от нашей новостройки), это ОМВД по Беговому району. ОМВД по Пресненскому району находится в 3 км от ЖК.
Цены в ЖК Republic
Cтарт продаж ЖК Republic состоялся в начале июля 2022 года, сегодня цены в проекте начинаются с 18,7 млн рублей. Продажи ведутся по ДДУ с применением эскроу. Комплекс аккредитован в ряде крупнейших банков, среди которых – ВТБ, Сбербанк, Банк Дом.рф, Росбанк Дом, Альфа-Банк, Райффайзенбанк, Открытие, Газпромбанк и другие. Минимальная ставка составляет 9,5%, однако застройщик готов обсуждать с покупателями условия кредитования на индивидуальных условиях.
|
Тип жилья |
Метраж, кв. м |
Цена, руб. |
Цена за кв. м, тыс. руб. |
|
студии |
26.86 — 31.47 |
27 339 400 — 42 221 800 |
999.2 — 1391.8 |
|
1-комнатные |
33.46 — 53.01 |
31 983 400 — 61 655 800 |
955.9 — 1163.1 |
|
2-комнатные |
32.03 — 65.16 |
30 521 400 — 65 673 800 |
855.2 — 1295.2 |
|
3-комнатные |
60.05 — 110.58 |
52 709 400 — 105 607 800 |
754.2 — 1245.8 |
|
4-комнатные |
78.24 — 138.57 |
68 189 400 — 218 111 800 |
747.1 — 1593.9 |
|
многокомнатные |
116.63 — 140.49 |
111 017 400 — 205 975 800 |
918.6 — 1493.9 |
Конкуренты
Ближайшим конкурентом ЖК Republic можно назвать апарт-комплекс SLAVA от MR Group. Проект премиум-класса строят в Беговом районе рядом со станцией метро «Белорусская», на месте бывшего часового завода «Слава». Ввод в эксплуатацию запланирован на I квартал 2023 года.
Высота корпусов — от 8 до 17 этажей, первые три этажа отданы под объекты инфраструктуры. В апартаментах будет выполнена предчистовая отделка, цены начинаются от 19,1 млн рублей за студию площадью 23,8 кв. м с двумя окнами и кладовой.
Цены в МФК SLAVA:
|
Тип жилья |
Метраж, кв. м |
Цена, руб. |
Цена за кв. м, тыс. руб. |
|
студии |
28.10 — 34.40 |
26 958 870 — 33 326 558 |
894.3 — 1112.9 |
|
1-комнатные |
36.40 — 57.90 |
37 171 680 — 53 177 831 |
871.8 — 1231.9 |
|
2-комнатные |
60.80 — 86.40 |
54 518 832 — 86 974 923 |
837.1 — 1068.5 |
|
3-комнатные |
86.70 — 113.40 |
84 898 962 — 107 802 389 |
822.1 — 1101.1 |
|
4-комнатные |
125.20 — 127.30 |
103 043 606 — 124 599 712 |
823 — 978.8 |
|
многокомнатные |
201.00 |
136 138 104 — 136 526 436 |
677.3 — 679.2 |
Неподалеку также находится элитный ЖК «Дом на Тишинке». Два корпуса в нем уже построены, в реализации осталось всего несколько квартир с минимальной стоимостью 74,8 млн рублей.
Цены в ЖК «Дом на Тишинке»:
|
Тип жилья |
Метраж, кв. м |
Цена, руб. |
Цена за кв. м, тыс. руб. |
Нет в продаже | |||
Кроме того, в пешей доступности от м. «Белорусская» строится клубный дом премиум-класса GloraX Aura. Проект переменной этажности (12-21 этаж) планируется к вводу в 3 квартале 2024 года. Здесь предлагаются апартаменты от студий до 4-комнатных, которые будут передаваться покупателям с предчистовой отделкой. Цены начинаются с 20,2 млн рублей.
Цены в GloraX Aura Belorusskaya:
|
Тип жилья |
Метраж, кв. м |
Цена, руб. |
Цена за кв. м, тыс. руб. |
|
студии |
35.20 |
23 099 999 |
656.2 |
|
1-комнатные |
52.60 — 53.40 |
29 749 999 — 30 779 999 |
565.6 — 576.4 |
|
2-комнатные |
67.80 — 97.00 |
38 049 999 — 54 569 999 |
501.9 — 666.8 |
|
3-комнатные |
89.90 — 97.00 |
45 619 999 — 56 909 999 |
504.1 — 601.2 |
Резюме
Строительство ЖК Republic стартовало в июле.
Плюсы ЖК Republic:
Один из минусов расположения новостройки — близость железной дороги, из-за которой часть объектов инфраструктуры оказываются менее доступны, чтобы дойти до них, придется идти вдоль улицы Грузинский Вал до метро «Белорусская», поскольку пешеходного моста через ж/д пути в этой локации нет. Также железная дорога — это еще и шум.
Кроме того, сейчас рядом с будущим жилым комплексом находятся различные старые строения с офисами, автосервисами и автомойками. Но, скорее всего, в процессе освоения участка они будут ликвидированы.
Собственных образовательных объектов недостаточно, в то же время класс новостройки предполагает, что родители будут выбирать детсады и школы не по месту прописки. Машино-мест также может не хватить — их почти на 1 тыс. меньше, чем квартир.
Расположение в центре Москвы и разнообразные планировки делают ЖК Republic интересным для любой категории покупателей с достаточным бюджетом — как с семьями, так и без пары. Инвесторам следует учитывать высокий ценник и дополнительные расходы на ремонт, если предполагается покупка с целью дальнейшей сдачи в аренду.
Дата публикации 16 августа 2022