Жилой комплекс комфорт-класса «Новая Рига» находится в деревне Глухово городского округа Красногорск. Среднеэтажный квартал со всей необходимой инфраструктурой в 11 км от МКАД по Новорижскому шоссе — чем интересен этот проект ГК «Гранель», в чем его плюсы и минусы, изучил Новострой-М.
Архитектура, дизайн, благоустройство
Примечание
В статье перечислены только факты о проекте, собранные из открытых источников. В рубрике «Экспертиза проекта» Новострой-М решил отказаться от оценок и оценочных суждений: право делать выводы из описанных фактов мы предоставляем нашим читателям.
ГК «Гранель» образована в 1992 году, входит в перечень системообразующих организаций РФ. Девелопер является одним из лидеров среди крупнейших застройщиков Московской области, в 2019 году компания вышла на рынок «старой» Москвы.
В портфеле группы компаний — 31 проект в Москве и Подмосковье. Анонсирован выход двух новых проектов в центре и на юго-востоке столицы.
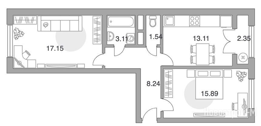
ЖК «Новая Рига» является проектом комплексного освоения территории, он расположен на участке площадью 37,6 га. Квартал включает девять многосекционных корпусов высотой 5-8 этажей, восемь из них уже введены в эксплуатацию, последний корпус будет сдан в III квартале 2025 года. Для автомобилей предусмотрен многоуровневый паркинг.
ЖК «Новая Рига» в цифрах:
В основе концепции архитектурного облика квартала — сочетание европейского загородного стиля и функциональности зданий с благоустроенными общественными пространствами.






Форма всех корпусов лаконична, а цветовая гамма у каждого здания своя, при этом она сочетается с соседними домами. В отделке фасадов использована разноцветная клинкерная плитка.
На территории квартала расположены детские и спортивные площадки, места для отдыха, пешеходные бульвары, велопарковки.





В ЖК предусмотрены системы охраны входов, оповещения о пожарной опасности, дымоудаления.
Квартирография проекта включает более 40 разнообразных планировок — от студий до 3-комнатных. В июле 2025 года в продаже есть 19 квартир площадью от 23,49 кв. м до 69,26 кв. м. Жилье продается без отделки, в некоторых квартирах есть лоджии и гардеробные.




ЖК «Новая Рига» расположен в деревне Глухово городского округа Красногорск. Станции метро и МЦД находятся достаточно далеко от новостройки, однако прямо на территории ЖК останавливаются автобусы и маршрутки, они довезут до метро «Строгино», «Тушинская» и «Крылатское», станций МЦД Павшино и Пенягино. В перспективе неподалеку откроется станция «Ильинская» Рублево-Архангельской линии метро. Для автомобилистов есть выезды на Ильинское и Новорижское шоссе.
Красногорск — один из самых загрязненных городов Московской области. На экологическую обстановку влияют промышленные производства и автомагистрали.
Деревня Глухово, в которой находится наша новостройка, расположена на Ильинском шоссе на берегу старицы Москвы-реки. Рядом есть Юсуповский парк и заповедник «Лохин остров».
На первых этажах корпусов работают магазины, пункты выдачи заказов, салоны красоты и прочие объекты полезной инфраструктуры. Рядом с домами открыты детский сад на 320 мест и школа на 1 150 мест, планируется строительство еще одного детсада на 230 мест, поликлиники на 150 посещений в смену и физкультурно-оздоровительного комплекса.
Рядом с жилым комплексом есть еще несколько детских садов — в деревне Глухово и соседнем поселке Ильинское-Усово. В Ильинском-Усове работают две школы.
С медицинскими учреждениями сложнее — ближайшая поликлиника для взрослых находится в селе Петрово-Дальнее, в 5 км от ЖК «Новая Рига», быстрее всего до нее можно добраться на машине (примерно за 10 минут). Для детей и взрослых работает врачебная амбулатория в поселке Барвиха, до нее почти 8 км или около 15 минут на машине.
Впрочем, медцентры есть и в Глухово (рядом с «Новой Ригой»), и в Ильинском-Усове, а в Глухово работает круглосуточная Ильинская больница.
В «Новой Риге» работают супермаркеты «Пятерочка» и «ВкусВилл» и несколько продуктовых магазинов, так что у жителей нет необходимости покидать ЖК для покупки продуктов. Но если захочется разнообразия — магазины есть и в соседних жилых комплексах в Глухово и Ильинском-Усове. Неподалеку есть торговые центры «Ильинский», «Балтия» и Major.
Чтобы увидеть объекты, нажмите на соответствующую кнопку внизу карты.
В одном из корпусов «Новой Риги» есть джампинг-студия (тренировки на батутах), студия растяжки и хореографии «Гравитация». Заняться спортом можно и в других фитнес-клубах, которые есть в Глухово и Ильинском-Усове.
Безопасность локации
В 2024 году в городском округе Красногорск было зарегистрировано более 133,5 тыс. сообщений о преступлениях и административных происшествиях, что на 9,3% больше, чем в 2023 году. Это один из самых высоких показателей в Подмосковье, говорится в информационно-аналитической справке к отчету начальника УМВД по городскому округу Красногорск за 2024 год.
В Глухово работает одно отделение полиции, оно находится в одном из корпусов ЖК «Новая Рига».
В июле 2025 года в ЖК «Новая Рига» продается всего 19 квартир, все они без отделки, цены — от 5 млн рублей за студию площадью 23,49 кв. м до 12,8 млн рублей за лот с тремя комнатами и кухней-гостиной площадью 69,26 кв. м в готовом корпусе.
Актуальные цены в ЖК «Новая Рига»:
|
Тип жилья |
Метраж, кв. м |
Цена, руб. |
Цена за кв. м, тыс. руб. |
|
1-комнатные |
34.43 |
8 888 180 |
258.2 |
|
2-комнатные |
54.49 |
10 334 097 |
189.7 |
|
3-комнатные |
69.26 |
13 135 247 |
189.7 |
Купить квартиру можно в ипотеку, ее предоставляют Новикомбанк, Банк «Россия», Абсолют Банк, Банк «Санкт-Петербург», ВБРР, банк Дом.ру, Металлинвестбанк, Совкомбанк, Сбербанк, ВТБ, Уралсиб, Московский кредитный банк, Альфа-Банк, Дом.рф, Азиатско-Тихоокеанский банк, Примсоцбанк, Промсвязьбанк, СНГБ, Севергазбанк, МТС Банк.
Доступны программы семейной ипотеки от 5,4%, субсидированной ипотеки от 5,75%, а также стандартная ипотека от 21% и траншевая ипотека от 27,2%.
Данные об условиях кредитования действительны на момент публикации статьи. Актуальную информацию вы всегда можете найти в карточке проекта.
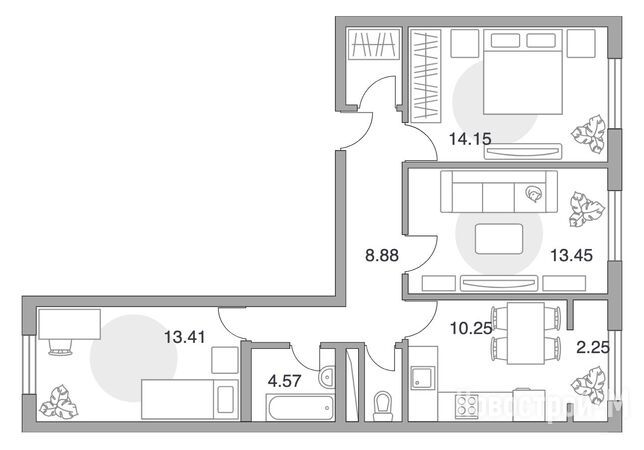
Соседи «Новой Риги» по локации — это ЖК «Ильинские луга» и ЖК Riga Hills.
«Ильинские луга» — масштабный проект комфорт-класса от компании ПИК. В его составе — несколько десятков 9-этажных домов, а также девять детских садов, четыре школы и муниципальная поликлиника. Три детских сада и одна школа уже работают, на первых этажах корпусов открыты множество объектов инфраструктуры.
Квартиры в «Ильинских лугах» продаются с чистовой и предчистовой отделкой, цены — от 4,7 млн рублей за 18-метровую студию с отделкой white box до 19,7 млн рублей за вариант с тремя спальнями и кухней-гостиной площадью 88,7 кв. м.
Актуальные цены в ЖК «Ильинские луга»:
|
Тип жилья |
Метраж, кв. м |
Цена, руб. |
Цена за кв. м, тыс. руб. |
|
студии |
18.70 — 29.00 |
6 475 810 — 9 219 050 |
274.2 — 392.3 |
|
1-комнатные |
30.60 — 46.43 |
8 763 300 — 13 460 040 |
230.8 — 343.5 |
|
2-комнатные |
41.60 — 68.66 |
11 360 386 — 19 339 320 |
216.1 — 303.6 |
|
3-комнатные |
60.57 — 89.20 |
15 798 360 — 24 889 260 |
202.9 — 295.4 |
Еще один проект, который может заинтересовать потенциальных покупателей жилья в этой локации, — ЖК Riga Hills в деревне Бузланово рядом с Новорижским шоссе. Это бизнес-класс, девелопер проекта — ГК Union. Здесь строят дома высотой 5-9 этажей, первые два корпуса планируется ввести в эксплуатацию в IV квартале 2025 года.
Актуальные цены в ЖК Riga Hills:
|
Тип жилья |
Метраж, кв. м |
Цена, руб. |
Цена за кв. м, тыс. руб. |
|
студии |
31.28 — 35.63 |
9 887 342 — 12 117 365 |
300.1 — 385.4 |
|
1-комнатные |
40.26 — 53.57 |
12 869 516 — 32 056 856 |
271.1 — 713 |
|
2-комнатные |
64.70 — 102.32 |
14 490 630 — 34 641 581 |
195.9 — 383.9 |
|
3-комнатные |
90.74 — 110.57 |
20 964 694 — 31 759 221 |
201.3 — 350 |
Квартиры продаются без отделки и с предчистовой отделкой, цены — от 6,1 млн рублей за студию без ремонта площадью 31,28 кв. м до 24,3 млн рублей за лот с тремя комнатами и кухней-гостиной площадью 115,89 кв. м, эта квартира также продается без отделки.
Резюме
Проект «Новая Рига» находится на одном из самых престижных направлений, Новорижском шоссе. Жилой квартал практически построен, последний корпус уже готовят к вводу в эксплуатацию.
Плюсы:
Минусы:
«Новая Рига» — крупный квартал, в котором есть практически вся нужная инфраструктура. Он подойдет тем, кому хочется жить рядом с природой, но при этом недалеко от города. Тем более что цены на жилье здесь ниже, чем в Москве.
Дата публикации 22 июля