В Балашихе строится семейный жилой комплекс комфорт-класса — «Квартал Светлый». Именно так позиционирует его застройщик, который планирует открыть здесь встроенный детский сад, школу, обеспечить наземную и подземную парковку, благоустроенные дворы и магазины на первых этажах — все это рядом с лесом. Чем ещё примечательна новостройка от ГК «Сетьстрой», выяснял Новострой-М.
Примечание
В статье перечислены только факты о ЖК, собранные из открытых источников. В рубрике «Экспертиза проекта» Новострой-М решил отказаться от оценок и оценочных суждений: право делать выводы из описанных фактов о жилом комплексе мы предоставляем нашим читателям.
Кто строит?
Комплекс возводится силами компании «Сетьстрой». Застройщик имеет 20-летнюю историю и опыт реализации проектов различной сложности и назначения. В портфолио компании: участие в проектировании и строительстве зданий для аэропорта Внуково (центр управления полетами), банка UniСredit (штаб-квартира), Mercedes-Benz (автоцентр «Авилон»), «РЖД» (административное здание).
В настоящее время приоритетным направлением для ГК «Сетьстрой» является девелопмент жилых и коммерческих объектов недвижимости.
Что строят?
ЖК «Квартал Светлый» возводится в Балашихе. Проект включает в себя 4 жилых дома комфорт-класса высотой 17 этажей. Дома возводятся в две очереди. В рамках первого этапа будут построены корпуса №№3 и 4 и встроенный детский сад — ориентировочный срок сдачи обозначен как III кв. 2024 года. Вторым этапом будет строительство корпусов №1 и №2 на общем стилобате, в котором разместятся коммерческие помещения и паркинг, а также школы.
ЖК «Квартал Светлый» в цифрах:
|
№ дома |
Лоты |
Энергоэффект. |
Этажность* |
Класс |
Срок ввода |
|
3 |
300 |
В |
18 |
Комфорт |
III кв. 2024 |
|
4 |
320 |
В |
18 |
Комфорт |
III кв. 2024 |
*с учетом подземных уровней
Архитектура и дизайн
Дома в ЖК «Квартал Светлый» возводятся по монолитной технологии и имеют типовую архитектуру. Чтобы обыграть особенности рельефа участка, проектировщики разместили два корпуса на общем стилобате. Сверху, на стилобатной части, будет зеленая зона, а также откроются торговые и офисные помещения. В подземной части стилобата будет парковка.









На первом этаже одного из корпусов первой очереди появится встроенный детский сад. Такое решение гарантирует покупателям, что детское учреждение будет сдано в эксплуатацию вместе с квартирами.
Фасады домов будут отделаны светлыми плитками, основания – контрастным серым материалом «под кирпич».
Благоустройство





Площадь комплекса – 2,4 га, значительную ее часть займут здания. Остальная территория, включая эксплуатируемую кровлю стилобата, будет благоустроена и озеленена. Здесь появятся детские площадки с песочницами и игровым оборудованием, зоны для занятий спортом, пешеходные дорожки для прогулок и лавочки для отдыха.
Нежилые метры
На территории комплекса появится несколько зон для парковки, наземных и подземных. Всего в проекте 1091 машиноместо, что на 30% больше норматива для проектов комфорт-класса (735 машиномест), но на 15% меньше общего числа квартир (всего их 1238).
В продаже также представлены кладовые помещения площадью от 3 до 6,2 кв. м, минимальная стоимость предложения – 315 тыс. руб. за лот.
Планировки
В каждом доме будет по два жилых блока с отдельными входами (подъездами). В каждом блоке установят по одному пассажирскому и одному грузовому лифту. На каждом этаже одного блока разместится по 10 квартир.
Всего в ЖК «Квартал Светлый» предусмотрено 1238 квартир, среди которых студии, однокомнатные и двухкомнатные, в том числе евроформата, а также небольшое количество трехкомнатных лотов.






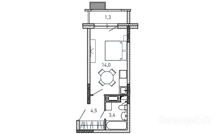
Студии в проекте имеют площадь от 23,2 до 25,4 кв. м. В каждой предусмотрена возможность установить полноценную ванну, есть лоджия и место под встраиваемый шкаф в прихожей.
Площадь однокомнатных квартир от 29,5 до 35 кв. м. Важным преимуществом является наличие в маленьких «однушках» кладовок и лоджий, которые также могут быть использованы для хранения вещей или под другие нужды. Наиболее эргономичные планировки у однокомнатных евроформата: здесь полноценная кухня-гостиная с широкими возможностями для зонирования, просторная спальня и санузел с возможностью установки ванны.
Планировка двухкомнатных квартир учитывает потребности семей с детьми. Здесь две изолированные спальни, раздельный санузел, кладовое помещение и широкий коридор с местом под шкафы или стеллажи. Во всех квартирах есть лоджии. Площадь «двушек» — от 48,6 до 54,8 кв. м.
На момент публикации этой статьи в продаже также имелась в наличии одна 3-комнатная квартира общей площадью 60,8 кв. м. В ней предусмотрено два санузла (один с ванной, другой – более компактный), а также лоджия площадью 1,3 кв. м.
Все лоты в ЖК «Квартал Светлый» реализуются без отделки.
Где строят?
ЖК «Квартал Светлый» возводится в подмосковной Балашихе, в 9 км от МКАД по шоссе Энтузиастов. Доехать на личном автомобиле в отсутствие пробок до Москвы можно за 15 минут. Клеверная развязка с МКАД позволяет продолжить движение нужном направлении – как в область, так и в центр.
Добраться до Москвы без автомобиля можно на автобусе или электричке. Автостанция «Южная», от которой следует транспорт до метро «Новогиреево», «Партизанская» и «Щёлковская», расположена в 1,2 км от новостройки. Примерно на таком же расстоянии находится автостанция «Балашиха-3», откуда отправляются маршрутки до метро «Новогиреево», МЦД «Кучино» и др.
Рядом с самим комплексом также есть остановка, от которой следуют внутренние маршруты по Балашихе, автобус до Железнодорожного и станции МЦД-4, а также прямой автобус до Москвы (м. «Перово»). Так как остановка рядом с ЖК является конечной, у его жителей будет возможность садиться в ещё не заполненный транспорт.
Станции метро и МЦД, время в пути от ЖК:
Ещё одна остановка есть на шоссе Энтузиастов, в 1,5 км от комплекса. Большой выбор маршрутов позволяет выбрать оптимальный по времени путь до точки назначения в Москве или Балашихе. Но придется потратить около 18 минут, чтобы дойти до остановки пешком.
Железнодорожная станция Балашиха находится в 6 км от места строительства. Доехать до нее на машине можно за 15 минут, на общественном транспорте за 30-40 минут. В теплое время года можно использовать самокат или велосипед — время в пути составит 25 минут.
Экология
Экологическая обстановка в районе застройки неоднозначная. С одной стороны, здесь много лесов — они занимают до 40% территории г. о. Балашиха, с другой — производственные предприятия и загруженные дороги негативно влияют на экологические показатели.
Локация, выбранная для возведения «Квартала Светлого», граничит с Кучинским лесопарком. Благодаря чему у жителей будет возможность наслаждаться природой, не тратя много времени на дорогу до парков. С другой стороны, всего в 130 метрах пролегает шоссе Энтузиастов, пыль и выхлопные газы от которого будут ощущаться в районе застройки.
Вблизи ЖК «Квартал Светлый» есть еще несколько зеленых зон:
Инфраструктура
ЖК «Квартал Светлый» организован по принципу «город в городе», что позволит его жителям иметь все необходимое в шаговой доступности от дома: детский сад и школу, аптеки и продовольственные магазины, парикмахерские и салоны цветов. По подсчетам застройщика, в квартале будет создано до 875 рабочих мест, что позволит многим его жителям работать в пяти минутах от места постоянного проживания.
Комплекс возводится в районе с уже существующей инфраструктурой, которой также смогут пользоваться жители новостройки.
Расстояние до ближайшего здания детского сада №36 всего 600 м или 8 мин. пешком. Дойти до других филиалов этого садика можно за 10–12 мин. На расстоянии 920 м находится детский сад компенсирующего вида «Березка» — 11 минут в пути. Столько же займет дорога до дошкольного отделения «Калейдоскоп» школы № 22.
Ближайший частный садик «Детская страна» находится в 4 мин. ходьбы в соседнем ЖК — до него 295 м. Здесь проводятся занятия с логопедом и обучают английскому языку. В этом же здании, на Твардовского, 40, есть частный сад «Спарта».
За шоссе Энтузиастов находятся дошкольное отделение школы №11 (1 км) и детский сад №8 «Крепыш» (1,1 км) — до них можно дойти за 11 – 13 минут.
Школьники из ЖК «Квартал Светлый» смогут посещать как школы с общеобразовательной программой, так и с углубленным изучением отдельных предметов. В пешей доступности находятся:
Частная школа «Елизаветинский лицей» находится в 950 м от новостройки.
Рядом с комплексом находится гипермаркет «Лента» (ТЦ «МаксСити»), идти до него около 5 минут пешком. По другую сторону улицы Твардовского, в 100 метрах от новостройки работает «Пятерочка». А в соседнем квартале — супермаркеты «Магнит» и «Дикси». Помимо продуктовых магазинов, в ТЦ «МаксСити» (1-5 минут ходьбы) работают отделения банков, аптеки, гипермаркет электроники, цветочные магазины, салоны связи, кафе и многое другое.
В шаговой доступности находится несколько поликлиник для детей и взрослых:
Ближайший частный медицинский центр «Эмма-Мед» находится на расстоянии 1,3 км, дойти до него можно за 15 мин.
Сразу несколько спортивных клубов различной направленности работают в 150 метрах от ЖК «Квартал Светлый»: EMS, Go. Na. Sport, Lider, «Jumping. Йога», растяжка, прыжки, тренажеры или групповые программы. В 870 м находится клуб «Физика», где кроме спортивных залов есть ещё и плавательный бассейн. Поплавать также можно в спортивном клубе «СССР». Он находится за шоссе Энтузиастов, но, с учетом перехода через магистраль, дорога до него займет около 15 минут.
Безопасность
Обстановка с безопасностью в Балашихе достаточно благоприятная, если сравнивать с другими районами Подмосковья. За первую половину 2023 года здесь было совершено 2069 преступлений различной направленности, что на 1,6% меньше, чем в аналогичном периоде предыдущего года. А раскрываемость по отдельным статьям достигает 100%.
Ближайшее отделение полиции находится также на ул. Твардовского, как и ЖК «Квартал Светлый» – до него 1 км или 5 минут езды на авто.
Еще один пункт защиты правопорядка – управление МВД Балашихинского района (участковый пункт №6) – работает на проспекте Ленина, 34а, до него можно доехать за 11 мин. или дойти пешком за 18 мин.
Цены и способы покупки
Цены на недвижимость в проекте «Квартал Светлый» начинаются от 4,38 млн руб. за студию. С момента старта продаж в апреле 2023 года рост цен составил около 8%.
Цены в ЖК «Квартал Светлый»:
|
Тип жилья |
Метраж, кв. м |
Цена, руб. |
Цена за кв. м, тыс. руб. |
|
студии |
23.10 — 24.90 |
5 413 463 — 7 432 650 |
223.9 — 301.4 |
|
1-комнатные |
29.50 — 35.20 |
7 024 048 — 9 724 000 |
220.5 — 279 |
|
2-комнатные |
48.60 — 54.30 |
11 210 344 — 14 378 640 |
211.8 — 269 |
Квартиры в строящемся комплексе «Квартал Светлый» приобретаются по договору долевого участия с эскроу-счетом. Оплата возможна как собственными средствами, так и заёмными. Проект аккредитован Сбербанком, Банком Дом.рф, ВТБ, Россельхозбанком, Промсвязьбанком, Газпромбанком, Сургутнефтегазбанком, Тинькофф-банком. Оформить ипотеку в этих банках можно на срок до 30 лет, с первоначальным взносом от 20%.
Процентная ставка по стандартным программам кредитования составляет от 14%. Снизить переплату позволяют программы государственной поддержки: льготная ипотека от 7,8%, семейная ипотека от 5,8%, IT-ипотека от 4,8%, военная ипотека от 5,8%. Также есть возможность получить ипотеку с субсидией от застройщика. Ставки по такому кредиту начинаются от 3%.
При покупке квартиры по 100 % предоплате застройщик предлагает специальные условия на приобретение машиноместа или второй квартиры в проекте.
Застройщик также готов предоставить рассрочку:
Если покупатель хочет обменять имеющуюся недвижимость на квартиру в ЖК «Квартал Светлый», то может воспользоваться программой Trade-in.
Данные об условиях кредитования действительны на момент публикации статьи. Актуальную информацию вы всегда можете найти в карточке проекта.
Конкуренты
Балашиха привлекательна своей близостью к Москве и налаженным сообщением с мегаполисом. Несколько новостроек возводятся или уже сданы неподалеку от ЖК «Квартал Светлый» и вполне могут составить ему конкуренцию.
ЖК «28 микрорайон» от застройщика «ДМ Холдинг» — это 3 монолитно-кирпичных дома, из которых два уже активно заселяются, а третий на финальной стадии строительства. Комплекс расположен на шоссе Энтузиастов в окружении всей необходимой торговой и социальной инфраструктуры. До школ, садиков и больниц можно дойти пешком, а доехать до Москвы – по прямой на автобусе. ЖК «28 микрорайон» предлагает большой выбор планировочных решений — от однокомнатных площадью 35 кв. м до трехкомнатных площадью 98,7 кв. м.
Цены в ЖК «28 микрорайон»:
|
Тип жилья |
Метраж, кв. м |
Цена, руб. |
Цена за кв. м, тыс. руб. |
|
1-комнатные |
37.50 — 98.20 |
6 601 538 — 14 933 470 |
152.1 — 176 |
|
2-комнатные |
56.60 — 69.90 |
9 310 813 — 11 126 263 |
158 — 164.5 |
|
3-комнатные |
84.70 — 98.70 |
13 134 514 — 15 006 033 |
147.7 — 155.1 |
ЖК «Квартал Авиаторов» от ГК «Самолет» находится в центре Балашихи, прямо напротив Горенского лесопарка. Однако у локации с прекрасными видовыми характеристиками есть и существенный минус в виде большой промзоны сразу за территорией ЖК. Проект предусматривает возведение 17-этажных корпусов в два этапа. В первой очереди будет три корпуса, объединенных общим стилобатом. Срок сдачи — III квартал 2025 года. Ещё три корпуса будут закончены в I квартале 2026 года. В проекте есть квартиры для любого образа жизни и состава семьи: от компактных студий для студентов и холостяков до квартир с 4 изолированными спальнями, в которых комфортно разместятся семьи с несколькими детьми.
Цены в ЖК «Квартал Авиаторов»:
|
Тип жилья |
Метраж, кв. м |
Цена, руб. |
Цена за кв. м, тыс. руб. |
|
студии |
22.28 — 28.10 |
5 516 399 — 8 393 418 |
222.3 — 311.9 |
|
1-комнатные |
31.86 — 55.00 |
7 022 083 — 14 645 290 |
172.8 — 281.3 |
|
2-комнатные |
52.57 — 62.30 |
10 781 299 — 16 386 453 |
198.3 — 266.3 |
|
3-комнатные |
68.98 — 86.82 |
18 350 197 — 21 058 007 |
224.9 — 270.9 |
ЖК «Пехра» возводит в Балашихе крупный застройщик – ГК «Гранель». Квартал из 11 домов высотой 17–25 этажей расположен на Трубецкой улице недалеко от выезда на Щелковское шоссе и автостанции «Звездная». 6 домов уже введены в эксплуатацию, еще три строятся. В продаже квартиры от студий до 3-комнатных, все лоты спроектированы с лоджиями или балконами и предлагаются без отделки.
Цены в ЖК «Пехра»:
|
Тип жилья |
Метраж, кв. м |
Цена, руб. |
Цена за кв. м, тыс. руб. |
|
студии |
22.58 — 32.62 |
4 789 436 — 6 738 754 |
179.4 — 256.9 |
|
1-комнатные |
32.68 — 40.35 |
6 538 953 — 8 872 995 |
182.2 — 232 |
|
2-комнатные |
51.67 — 62.73 |
9 886 252 — 13 654 604 |
178.5 — 227 |
|
3-комнатные |
69.55 — 72.75 |
12 476 932 — 14 054 506 |
179.4 — 193.2 |
Резюме
ЖК «Квартал Светлый» — отличный вариант для тех, кто покупает свою первую квартиру. В этом проекте много плюсов, которые оценят молодые и активные покупатели:
Но у комплекса есть и недостатки. Первый — большое число квартир на лестничных клетках и всего по два лифта в каждой секции. К лифтам могут возникать очереди, что будет проблемой для всех, кто выберет квартиру выше пятого этажа.
Другой недостаток больше относится к локации — всего 130 метров от домов до оживленного шоссе Энтузиастов, которое не затихает ни днем, ни ночью. В то же время автомагистраль обеспечивает жителям транспортную доступность, а дома отделены от шоссе зданием торгового центра. Так что это вопрос приоритетов: те, кому важно быть мобильными, будут считать шоссе плюсом. Те, кто ценят прежде всего экологию, тишину и отсутствие пыли, смогут выбрать квартиры с видом на лес, в максимально отдаленных от шоссе корпусах и секциях.
Дата публикации 23 января 2024