Дом «Достижение» расположен на северо-востоке столицы в окружении парков. Разнообразные планировки, пентхаусы с террасами и каминами, огромный ландшафтный двор-парк с фонтаном и прудом, собственная инфраструктура. Обо всех особенностях проекта, его достоинствах и недостатках расскажет Новострой-М.
Примечание
В статье перечислены только факты о проекте, собранные из открытых источников. В рубрике «Экспертиза проекта» Новострой-М решил отказаться от оценок и оценочных суждений: право делать выводы из описанных фактов мы предоставляем нашим читателям.
Дом «Достижение» – жилой комплекс от девелоперской компании Sminex, которая работает на рынке 24 года. За это время были реализованы более 100 проектов общей площадью 11,8 млн кв. м.
Согласно данным «Единого ресурса застройщиков», Sminex занимает пятое место по объему ввода жилья в Москве (все данные в статье актуальны на середину июня 2025 года) и 15-е по объему текущего строительства. Со всеми проектами девелопера вы можете ознакомиться по ссылке.
Дом «Достижение» располагается в районе Марфино СВАО Москвы, в 800 м от Останкинской телебашни. Жилой комплекс состоит из шести секций высотой от 22 до 29 этажей, два подземных этажа занимают паркинг и келлеры. В отдельном здании расположен Clubhouse с инфраструктурой только для жителей: клубная гостиная, детская игровая комната, бесплатный фитнес.
Эту элитную новостройку ввели в эксплуатацию в феврале 2025 года.
ЖК в цифрах:
Архитектура дома выполнена в стиле ар‑деко: стремящиеся ввысь пики, декоративные элементы балконов, арки, карнизы и ризалиты. Стиль должна подчеркнуть архитектурная подсветка фасада, которая приглушается в ночное время.







Элементы внутреннего оформления дома – от лобби до паркинга – продолжают стиль оформления фасадов. В лобби есть камин, ресепшен, зона отдыха с диванами и креслами, санузел, колясочная с автоматической дверью. Отделка стен и лифтовых холлов выполнена с применением декоративных элементов из латуни. В оформлении используются темные акцентные элементы, которые сочетаются с дизайнерской мебелью, камином и освещением.





Ландшафтный двор-парк с фонтаном и прудом расположился на площади в 1,7 га. Он разделен на зоны для активного и спокойного отдыха с зелеными уголками для любителей тишины, которые находятся на удалении от детской площадки.
Развивающая детская площадка занимает площадь 910 кв. м. Она имеет сложную геометрию, напоминающую по форме каньон, и сочетает разнообразные элементы для активного отдыха и развития детей всех возрастов – от горок и веревочных лабиринтов, качелей и скалодрома до уникальных сенсорных и звуковых механизмов.
Рядом с игровой площадкой и детской комнатой расположена клубная гостиная гостиная с террасой.





Для любителей спорта во дворе установлена многофункциональная спортивная площадка для игр в баскетбол, мини–футбол, волейбол и бадминтон. Рядом с ней – зона для функционального тренинга с турниками, брусьями, рукоходами, платформами и шведской стенкой. Также во дворе есть отдельная зона с элементами паркура.
Ландшафтный двор-парк закрыт от посторонних, в нем нет машин, на постах круглосуточно дежурят сотрудники охраны. На всей территории комплекса работает Wi-Fi, также на территории двора и в местах общего пользования установлено видеонаблюдение, жители могут удаленно подключиться к системам видеонаблюдения за детской площадкой.
В доме установлены системы фильтрации и вентиляции воздуха, а также центральная система очистки воды до уровня питьевой.
В подъездах установлены скоростные лифты, на которых можно спуститься в лобби или подземный паркинг. Также в каждом подъезде дома предусмотрен грузовой лифт.
Заезд в паркинг организован с помощью бесконтактной системы контроля управления доступом.
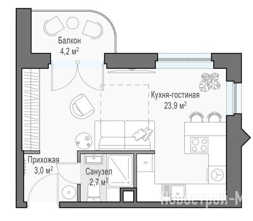
В ЖК представлены 115 вариантов планировочных решений для квартир площадью от 24 до 173 кв. м. Есть студии, квартиры с одной, двумя, тремя спальнями. Большая половина квартир – с балконами: французскими, обычными (площадью 0,8 кв. м) и большими (площадью от 2,7 до 6,6 кв. м). Есть варианты с дровяными каминами, с окнами в ванной и гардеробной, есть квартиры с эркером и видовые пентхаусы с террасами и потолками 6,5 м.




Сейчас в продаже представлены 50 квартир: студии, квартиры с одной, двумя и тремя спальнями, а также пять пентхаусов площадью от 64 кв. м до 121 кв. м. Среди последних есть варианты с террасами и местом под дровяной камин.
Площадь квартир в имеющемся предложении:
Дом «Достижение» расположен на северо-востоке столицы в районе Марфино. В 800 метрах от комплекса находится Останкинская телебашня.
Доехать от ЖК до МКАД на машине можно за 20-25 минут, до Садового кольца – минут за 15. В зависимости от загруженности дорог время в пути может увеличиваться.
Стания МЦД-3 Останкино находится всего в 300 метрах от дома. До станции монорельса «Телецентр» можно дойти за 10 минут, чуть больше времени потребуется, чтобы дойти до станции «Улица Милашенкова».
Путь пешком до станции метро «Бутырская» займет около 12 минут, до метро «Фонвизинская» – 15 минут.
Станции метро, МЦД и монорельса, время в пути от дома «Достижение»:
В рейтинге компании EcoStandard локация получила 7 баллов из 10 возможных. Специалисты называют экологическую обстановку в районе Марфино «приемлемой». Там нет парков, но они есть в избытке в шаговой доступности: в 400 метрах от комплекса расположен парк «Дубовая роща», в 800 – парк «Останкино», дойти до него можно за 8 минут. Чуть дальше расположен «Главный ботанический сад им. Н.В. Цицина РАН», путь до него займет около 19 минут пешком.
Около 20 минут займет дорога пешком до Гончаровского парка, полчаса – до парка «Дубки», около 40 минут – до парка имени Тимирязева.
Во дворе дома есть частный детский сад с собственной зоной для прогулок, беседками, горками, домиками и качелями, огороженными деревянным забором. На первом этаже дома расположен фитнес-зал для жителей и запроектировано помещение под супермаркет.
Детские сады
Рядом с ЖК расположено несколько детских садов. За 10-15 минут можно дойти до дошкольных отделений школы №1236 им. С.В. Милашенкова по адресам: Огородный проезд, 19Б и улица Фонвизина, 14 к1, до детского сада при школе №1494 (улица Академика Королева, 30а), корпусов дошкольного отделения школы №1494 (Ботаническая улица, 5а) и (Ботаническая улица, 5а ст1).
Есть несколько частных детских садов. Например, Prokids (улица Кашенкин Луг, 6 к2), «Венда» (Прудовой проезд, 9) и Smile Fish (улица Милашенкова, 1).
Школы
Путь до школы №1494 займет около 7 минут (Ботаническая улица, 9а и Ботаническая улица, 11а), до школы №1236 им. С.В. Милашенкова (улица Добролюбова, 14) – 17 минут. Около 20 минут займет путь до еще двух корпусов школы №1236 им. С.В. Милашенкова (улица Гончарова, 15а и улица Гончарова, 15Б). Недалеко от ЖК также расположена частная коррекционная школа «Подсолнух» (улица Добролюбова, 21а к Б) и частная школа Top IT School (улица Яблочкова, 8а).
Супермаркеты
С супермаркетами поблизости тоже нет проблем. Меньше пяти минут займет путь до «Дикси» (улица Академика Королева, 28 к1 и улица Академика Королева, 14). Там же расположен магазин «Красное&Белое» (улица Академика Королева, 28 к1). Поблизости также есть супермаркеты сетей «ВкусВилл» (улица Фонвизина, 18) и «Пятерочка» (улица Гончарова, 19).
Поликлиники
Ближайшая к жилому комплексу взрослая поликлиника расположена по адресу: улица Академика Комарова, 5 к1. Дойти до нее можно за 16 минут, путь на машине займет 5 минут. Рядом расположена и детская поликлиника №99 (улица Академика Комарова, 1г).
Чтобы увидеть объекты, нажмите на соответствующую кнопку внизу карты.
Фитнес-клубы
Если фитнес-зала в доме будет недостаточно, рядом есть несколько спорт-клубов. Например, «Олфит» (улица Добролюбова, 18), до которого можно дойти от ЖК за 18 минут. Или студия фитнеса Frontfit (улица Кашенкин Луг, 8 к3). Неподалеку также расположен спортивно-игровой центр Arena play (Ботаническая улица, 2 ст1) со спортзалами, хоккейной и школой фигурного катания.
Безопасность
Свежих данных о криминогенной обстановке в Марфино на сайте ГУ МВД России по Москве и УВД по СВАО нет. Однако район не фигурировал в списке проблемных, несколько раз его даже называли самым спокойным в столице.
Ближайший участковый пункт полиции находится по адресу: улица Фонвизина, 13. Путь до него пешком займет около 17 минут.
Продажи квартир в доме «Достижение» стартовали еще в феврале 2021 года. Сейчас в продаже имеется всего 50 квартир. Цены начинаются от 22,5 млн рублей. За эти деньги в новостройке можно купить студию площадью 25,2 кв. м. Все жилье передается собственникам без отделки.
Самый дорогой вариант в имеющемся предложении – пентхаус площадью 121 кв. м. В его планировке есть спальня, мастер-спальня, кухня-гостиная площадью 38,1 кв. м и возможностью установки камина, две гардеробные, два санузла. На втором этаже расположены кабинет площадью 18 кв. м и терраса площадью 46,5 кв. м. Стоит этот лот 100,5 млн рублей.
Актуальные цены в доме «Достижение»:
|
Тип жилья |
Метраж, кв. м |
Цена, руб. |
Цена за кв. м, тыс. руб. |
|
студии |
25.20 |
22 400 000 |
888.9 |
|
1-комнатные |
35.90 — 63.50 |
27 560 000 — 61 530 000 |
641.2 — 998.9 |
|
2-комнатные |
60.30 — 120.80 |
35 930 000 — 102 190 000 |
595.9 — 960.8 |
|
3-комнатные |
79.10 — 98.10 |
47 890 000 — 65 130 000 |
573.5 — 666 |
|
4-комнатные |
125.90 |
91 910 000 |
730 |
Приобрести квартиры можно в ипотеку, в том числе «семейную». Также застройщик предлагает беспроцентную рассрочку сроком до 12 месяцев.
Данные об условиях кредитования действительны на момент публикации статьи. Актуальную информацию вы всегда можете найти в карточке проекта.
Рядом с «Достижением» нет других элитных новостроек, но неподалеку сейчас возводятся два проекта класса «бизнес». Первый – квартал небоскребов Upside Towers – проект компании Upside Development. Здесь будут построены пять небоскребов высотой от 19 до 58 этажей. На стилобате между корпусами разместится открытая терраса с баром и зоной для барбекю, а на 47 этаже одной из башен будет открыт видовой спа-центр с джакузи, сауной и залом для йоги.
Цены в этом проекте стартуют от 16 млн рублей. За эти деньги можно купить студию с отделкой white box площадью 22,77 кв. м.
Актуальные цены в ЖК Upside Towers:
|
Тип жилья |
Метраж, кв. м |
Цена, руб. |
Цена за кв. м, тыс. руб. |
|
студии |
22.99 — 40.83 |
18 145 844 — 30 345 975 |
574.5 — 904.6 |
|
1-комнатные |
37.04 — 46.95 |
23 040 889 — 32 150 859 |
544.4 — 747.5 |
|
2-комнатные |
57.16 — 98.40 |
31 454 789 — 103 558 545 |
506.5 — 1052.4 |
|
3-комнатные |
85.36 — 113.89 |
43 568 089 — 86 433 374 |
475.1 — 829.5 |
|
4-комнатные |
149.90 — 161.40 |
140 800 010 — 169 339 576 |
939.3 — 1049.2 |
Еще один проект, который строится поблизости – квартал «МОНС». Его возводит девелопер «Брусника». Он будет состоять из пяти домов высотой от 5 до 45 этажей. Также в ЖК появятся несколько бульваров, городской сквер, офисно-деловой и торговый центры.
Актуальные цены в квартале «МОНС»:
|
Тип жилья |
Метраж, кв. м |
Цена, руб. |
Цена за кв. м, тыс. руб. |
|
студии |
35.40 — 44.10 |
23 080 000 — 25 610 000 |
559 — 652 |
|
1-комнатные |
45.00 — 85.50 |
26 120 000 — 35 740 000 |
413.5 — 635.1 |
|
2-комнатные |
70.80 — 181.20 |
34 060 000 — 87 320 000 |
374.3 — 494.1 |
|
3-комнатные |
108.60 — 207.50 |
41 820 000 — 100 860 000 |
385.1 — 486.1 |
|
4-комнатные |
124.10 — 310.30 |
52 020 000 — 157 610 000 |
419.2 — 508.2 |
Цены в этом проекте начинаются от 15 млн рублей. Столько стоит студия площадью 23,7 кв. м. Сдается она с предчистовой отделкой.
Резюме
Дом «Достижение» – плюсы:
Минусы:
Расположение дома «Достижение» во многом определяет его плюсы – недалеко от центра Москвы, а значит – хорошая транспортная доступность и развитая инфраструктура. При этом район богат на лесопарковые зоны.
Дом «Достижение» в первую очередь будет интересен семейным покупателям. Вокруг много зеленых зон и объектов социальной инфраструктуры. Да и в самом проекте большое внимание уделено детям: игровая комната, детские площадки под присмотром и изолированный внутренний двор. Кроме того, в самом ЖК есть собственный частный детский сад.
Дата публикации 24 июня