










































Проект с непростой судьбой, когда-то начинавшийся как одна из амбициозных строек Urban Group. В 2018 году продажи здесь были остановлены, как и строительство корпусов, прежний застройщик был признан банкротом, а жилой комплекс был передан госкомпании «Дом.рф» (Фонду развития территорий). Тогда же был утвержден график достройки домов. Все 12 корпусов уже находятся на завершающей стадии строительства – там ведутся внутренние работы и отделка фасадов. Планируемый срок ввода корпусов – I квартал 2023 года.
Комплекс возводится в престижной локации Подмосковья – недалеко от Рублевского шоссе, рядом с Подушкинским лесом. Организован комфортный выезд на платную трассу (обход Одинцово), по которой до МКАД можно доехать за 11 минут. Для пешеходов ЖК не столь удобен: до ж/д станции (она же платформа МЦД «Одинцово») нужно добираться транспортом (10-15 минут). До метро «Молодежная» также около получаса езды. Сами остановки автобусов тоже расположены вдали от ЖК – хотя не исключено, что будут оборудованы новые, когда комплекс начнет заселяться.
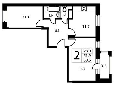
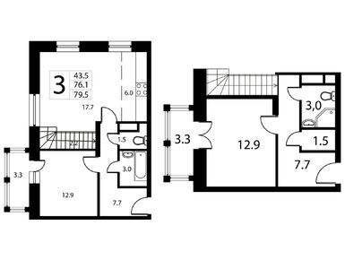
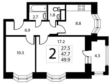
Часть корпусов ЖК относятся к комфорт-классу, часть – к бизнесу. Невысокие цены (от 4,3 млн руб. за студию по состоянию на январь 2023 года), средняя этажность (12 этажей) и расположение в экологически чистом месте позволяют поддерживать высокий спрос в проекте: он входит в топ-10 по продажам в своем классе в Московской области, по данным Росреестра. Здесь большой выбор планировочных решений – от студий (причем не слишком компактных, от 33 кв. м) до многокомнатных лотов. Действует льготная ипотека от 5% годовых.
Город-событие «Лайково» обладает хорошим транспортным расположением. В шаговой доступности от новостройки располагаются остановки автобусов до станции «Одинцово», откуда на электричке можно доехать до Москвы. Весь путь на общественном транспорте от дома до станции метро «Молодежная» составит 30 минут. За пятнадцать минут автомобилисты смогут добраться до МКАД.