Рейтинг@Mail.ru
Переверните экран
Новостройки Квартиры Ипотека Новостройки Москвы Новостройки Подмосковья Новостройки Новой Москвы Готовые новостройки Новостройки на карте Акции от застройщиков Коммерческие помещения Продавцы и застройщики Панорамы новостроек Видеообзор новостроек Экспертиза новостроек Экология Москвы и Подмосковья Студии 1-комнатные 2-комнатные 3-комнатные Квартиры на карте Ипотечный калькулятор Семейная ипотека Военная ипотека Банки и программы Медиа Новости недвижимости Мнение эксперта Аналитика рынка Покупателю Экспертиза новостроек Эксперты и авторы О проекте Контакты Реклама на сайте Vk Youtube Telegram Дзен Машиноместа Апартаменты #траншевая ипотека #рассрочка IT-ипотека Квартиры со скидками до 40% Видео 360° новостроек Субсидированная застройщиком Rutube Поиск дома в Москве Программа реновации в Москве Новостройки премиум-класса Новостройки бизнес-класса Рассрочка Траншевая ипотека ГАЛС Дома и коттеджи Бизнес-центры Бизнес-центры в Москве Бизнес-центры рядом с метро Строящиеся бизнес-центры Бизнес-центры класса A Бизнес-центры класса B ЛСР

ЖК «Базаева 11»

Жилой комплекс комфорт-класса «Базаева 11» будет возведен в городском округе Шаховская, в окружении благоустроенных парков и лесных массивов западного Подмосковья. Завершение строительства проекта запланировано на 2 квартал 2027 года, его возведением занимается группа компаний «Садовое кольцо». Камерный жилой квартал расположится в 10 минутах ходьбы от автостанции «Шаховская», здесь же находится одноименная железнодорожная станция. Для удобства жителей, использующих общественный транспорт, также предусмотрена автобусная остановка в минуте пешком. Автовладельцы смогут легко выехать к МКАД по Новорижскому шоссе. Дорога до Москвы займет полтора часа на автомобиле.

Внешне жилой комплекс представляет собой 5-этажное здание, оформленное в белых и серых тонах. Для отделки фасада используют кирпич и декоративную штукатурку. Современность архитектуре придают террасы, остекленные балконы, а также гармонично вписанные в экстерьер корзины под кондиционеры.

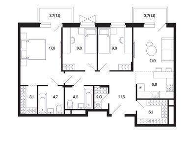
На выбор представлено 95 квартир различных планировок: форматы «евро» с большими кухнями-гостиными, лоты с просторными мастер-спальнями с приватной душевой и гардеробной, семейные квартиры с террасами, двумя личными балконами и раздельными санузлами. Площадь лотов в проекте варьируется от 29 до 93 кв. м, есть студии, одно-, двух- и трехкомнатные.

Квартиры в комплексе «Базаева 11» продаются без отделки: в них нет перегородок, что дает возможность для реализации любых нестандартных интерьерных идей. Высота потолков в лотах достигает 4,22 метра.

Возможна покупка в ипотеку.

Московская область, Шаховская ПГТ
от 5.6 до 13.1 млн
 
Цены за квартиры от 5 декабря
по данным официального сайта
Звоните, мы ещё работаем!
Зафиксировать цену
ЖК «Базаева 11» Фотографии
5

Расположение

Регион Московская область
Район Шаховская городской округ
Локация Шаховская ПГТ
Ж/Д-станция
Шоссе Новорижское 129 км от МКАД
Адрес
ул. Базаева, 11
на карте

Как купить

ДДУ с эскроу-счетом (что это?)

Характеристики ЖК «Базаева 11» (корпус 1)

Срок сдачи
2 квартал 2027 года корпус 1
Количество подъездов
3
Количество этажей
5
Высота потолка
2.72 — 4.22
Лифт
есть
Тип кондиционирования
индивидуальное
Детская площадка
есть
Спортивная площадка
есть
Малоэтажка
да
Наличие ком помещений на первых этажах
есть
Класс новостройки
комфорт
Стадия строительства
котлован/фундамент
Парковка
наземная вместительность 81
гостевая вместительность 8

Подробная информация

Жилой комплекс комфорт-класса «Базаева 11» будет возведен в городском округе Шаховская, в окружении благоустроенных парков и лесных массивов западного Подмосковья. Завершение строительства проекта запланировано на 2 квартал 2027 года, его возведением занимается группа компаний «Садовое кольцо». Камерный жилой квартал расположится в 10 минутах ходьбы от автостанции «Шаховская», здесь же находится одноименная железнодорожная станция. Для удобства жителей, использующих общественный транспорт, также предусмотрена автобусная остановка в минуте пешком. Автовладельцы смогут легко выехать к МКАД по Новорижскому шоссе. Дорога до Москвы займет полтора часа на автомобиле.

Внешне жилой комплекс представляет собой 5-этажное здание, оформленное в белых и серых тонах. Для отделки фасада используют кирпич и декоративную штукатурку. Современность архитектуре придают террасы, остекленные балконы, а также гармонично вписанные в экстерьер корзины под кондиционеры.

На выбор представлено 95 квартир различных планировок: форматы «евро» с большими кухнями-гостиными, лоты с просторными мастер-спальнями с приватной душевой и гардеробной, семейные квартиры с террасами, двумя личными балконами и раздельными санузлами. Площадь лотов в проекте варьируется от 29 до 93 кв. м, есть студии, одно-, двух- и трехкомнатные.

Квартиры в комплексе «Базаева 11» продаются без отделки: в них нет перегородок, что дает возможность для реализации любых нестандартных интерьерных идей. Высота потолков в лотах достигает 4,22 метра.

Возможна покупка в ипотеку.

Задать вопрос
Выбирайте квартиру в ЖК «Базаева 11» по ценам от застройщика ГК «Садовое кольцо».
Этаж 3/5
МО, ЖК «Базаева 11»
Шаховская (ж/д)
10 мин.
Строится
Этаж 3/5
МО, ЖК «Базаева 11»
Шаховская (ж/д)
10 мин.
Строится
Этаж 3/5
МО, ЖК «Базаева 11»
Шаховская (ж/д)
10 мин.
Строится
Этаж 3/5
МО, ЖК «Базаева 11»
Шаховская (ж/д)
10 мин.
Строится
Этаж 1/5
МО, ЖК «Базаева 11»
Шаховская (ж/д)
10 мин.
Строится
Посмотреть 13 квартир в ЖК «Базаева 11»
Этаж 3/5
МО, ЖК «Базаева 11»
Шаховская (ж/д)
10 мин.
Строится
Этаж 3/5
МО, ЖК «Базаева 11»
Шаховская (ж/д)
10 мин.
Строится
Этаж 3/5
МО, ЖК «Базаева 11»
Шаховская (ж/д)
10 мин.
Строится
Этаж 3/5
МО, ЖК «Базаева 11»
Шаховская (ж/д)
10 мин.
Строится
Посмотреть 21 квартира в ЖК «Базаева 11»
Этаж 3/5
МО, ЖК «Базаева 11»
Шаховская (ж/д)
10 мин.
Строится
Этаж 3/5
МО, ЖК «Базаева 11»
Шаховская (ж/д)
10 мин.
Строится
Этаж 3/5
МО, ЖК «Базаева 11»
Шаховская (ж/д)
10 мин.
Строится
Этаж 3/5
МО, ЖК «Базаева 11»
Шаховская (ж/д)
10 мин.
Строится
Посмотреть 13 квартир в ЖК «Базаева 11»
ЖК «Базаева 11»Генеральный планДетская площадка, рассчитанная на детей всех возрастовШирокий выбор планировокВходные группы
Рассказать друзьям о ЖК «Базаева 11»
Копировать ссылку

Скидки и акции на новостройки Подмосковья

Посмотреть все спецпредложения

ЖК «Базаева 11» на карте

Как проехать

Метро «Волоколамская» → Пройти пешком 500 метров до станции (6 минут) → Станция Волоколамская → Электрички до Шаховской (2 часа 28 минут в пути) → Станция Шаховская → Пройти пешком 1,01 километр (12 минут).

Инфраструктура

Внутри дома спроектировано 3 подъезда. Каждая входная группа расположится на одном уровне с тротуаром, что удобно как для маломобильных жителей, так и для родителей с колясками или пожилых людей. С внешней стороны подъездов установят скамьи, проложат пешеходный бульвар, выделят места для парковки велосипедов, а также на прилегающей к дому территории будет озеленение: газоны, деревья, цветочные клумбы.

Отдельный участок отведен под двор: это просторная площадка с игровым оборудованием для детей и подростков, брусьями и турниками для спортсменов, местами для отдыха родителей. Здесь обустроят песочницы, качели, канатные игровые комплексы, поставят столы для пинг-понга, главным украшением ландшафта станет ограда из кустарников. Двор будет огорожен от проезжей части. Для автовладельцев предусмотрен наземный паркинг на 81 машино-место.

Рядом с комплексом «Базаева 11» уже сформирована инфраструктура. В шаговой доступности есть 3 детских сада, школы и гимназии, супермаркет, торговый центр и большой теннисный клуб. В трех минутах ходьбы находится городской парк аттракционов, граничащий с еще двумя парковыми зонами: сквер «Прибрежный» и Рижский сквер. В пределах 10 минут пешком расположен историко-краеведческий музей, Шаховской Дом культуры, благоустроенная Аллея героев и Античный сквер.

Застройщик ГК «Садовое кольцо»

Сданных
объектов
3
Строящихся
объектов
2
Рейтинг
Новострой-М
4.2
Сданных
вовремя
80%
Все новостройки застройщика

Отзывы о ЖК «Базаева 11»

Самый полезный отзыв
В
24 октября
Оценка:
Планировки
Способы покупки
Двор, окружение
Расположение
Интересный ЖК - присмотрюсь, ждать долго, зато ценник нормальный
Ответить
Полезный отзыв?
Самый новый отзыв
Р
26 ноября
Оценка:
Неплохо так, своя парковка, коммерция на первом этаже, планировки нормальные. По стоимости пока думаем, немного выше нашего бюджета, но жк понравился.
Ответить
Полезный отзыв?
Добавьте отзыв, заполнив личные данные, или сначала войдите на сайт, тогда информация будет автоматически взята из личного профиля.
Оценка*

Вопросы и ответы о ЖК «Базаева 11»

Будьте первым, кто задаст вопрос
Задать вопрос
Напишие свой вопрос ниже — заполнив личные данные или войдите на сайт, тогда информация будет автоматически взята из личного профиля.