Жилой комплекс бизнес-класса «Павелецкая Сити» в Даниловском районе (ЮАО) претендует на звание новой архитектурной доминанты в своей локации. Это 15 домов в стиле нью-йоркских небоскребов с панорамным остеклением, подземными паркингами и дизайнерскими лобби. Чем ещё интересен комплекс, который реализуют сразу два крупных застройщика, разбирался Новострой-М.
Примечание
В статье перечислены только факты о ЖК, собранные из открытых источников. В рубрике «Экспертиза проекта» Новострой-М решил отказаться от оценок и оценочных суждений: право делать выводы из описанных фактов о жилом комплексе мы предоставляем нашим читателям.
Проект изначально реализуется силами двух девелоперских компаний: MR Group и Level Group.
MR Group успешно работает с 2003 года, занимается жилой и коммерческой недвижимостью. В портфеле компании 52 проекта – 11,8 млн квадратных метров. MR Group реализует в Московском регионе сразу 18 различных проектов, в основном, это жилые комплексы бизнес- и премиум-класса.
Level Group также зарекомендовала себя как ответственный застройщик. Level Group входит в топ-5 девелоперов «старой» Москвы по объему выручки. Продажи недвижимости ведутся в 13 проектах компании. Девелопер также обладает опытом строительства бизнес-центров и клубных домов.
1 марта 2025 года партнеры объявили о том, что проект «Павелецкая Сити» будет передан под управление Level Group.
«Павелецкая Сити» – жилой комплекс бизнес-класса в стиле нью-йоркской архитектуры, включающий в себя 15 корпусов разной этажности – от 9 до 63 этажей и подземные автостоянки. Все дома – именные и названы в основном в честь мировых звезд кинематографа («Марлон», «Чарли», «Ингрид» и др.). Дома IV очереди названы «Контраст», «Импульс» и «Горизонт».
В этом проекте предусмотрена необходимая инфраструктура в стилобате зданий и на первых этажах: кафе и супермаркет, детский центр раннего развития, а во дворах будут зоны отдыха и спортивные площадки, игровые пространства для детей.
Первая очередь ЖК, состоящая из 5 корпусов, а также три корпуса первого этапа второй очереди уже введены в эксплуатацию. В III кв. 2025 года ожидается ввод домов второго этапа второй очереди. Полное завершение строительства намечено на I кв. 2028 года.
ЖК «Павелецкая Сити» в цифрах:
Облик нового жилого комплекса разработан дизайнерским бюро СПИЧ. За основу взят строгий стиль нью-йоркской архитектуры. В отделке фасадов в разной комбинации применяются сочетания натурального камня и клинкерной плитки с прозрачными поверхностями. Для каждого корпуса разработан собственный рельефный профиль и разные оттенки облицовочного материала. Каждый дом имеет свой дизайн, но перекликается с другими объектами комплекса, создавая гармоничную картину.








Дизайн лобби и зон общего пользования разработан бюро Oleg Klodt Architecture&design. Отделка будет выполнена в светлых и теплых тонах, входные группы будут отличаться большими площадями и высокими потолками. В лобби запланированы библиотеки и лаундж-зоны, общие колясочные, санузлы, лапомойки для собак. Каждое лобби будет сочетаться с названием корпуса и отсылать к классическим фильмам «золотой эпохи» Голливуда.
Разработкой проекта благоустройства территории этого жилого квартала занимается бюро ADM. В своем проекте дизайнеры постарались учесть потребности и интересы разных категорий жителей: на огороженной территории будут игровые комплексы для детей разных возрастов, зоны тихого отдыха, спортивные площадки, тропа здоровья, многофункциональные площадки для командных видов спорта.





Само пространство будет разноуровневым. Архитектурное бюро ADM известно своим экологичным подходом к вопросам благоустройства, поэтому на территории комплекса будет много зелени, деревьев и цветников.
Территория жилого комплекса будет находиться под круглосуточной охраной с функцией быстрого реагирования. Постороннему пройти в здание незамеченным не удастся: всё происходящее в общих зонах будут фиксировать камеры видеонаблюдения, в лобби будет находиться консьерж, а на входе установят системы считывания биометрических данных. Въезд в подземный паркинг обеспечит система распознавания номерных знаков.
Пожарную безопасность обеспечат системы оповещения и автоматического пожаротушения.
В комплексе также будут применены современные инженерные решения: окна с функцией шумопоглощения и энергоэффективным стеклом, высокоскоростные лифты с режимом ожидания не более 50 секунд (2-4 лифта в каждом корпусе), wi‑fi на всей территории, технические лоджии для размещения внешних блоков кондиционеров.
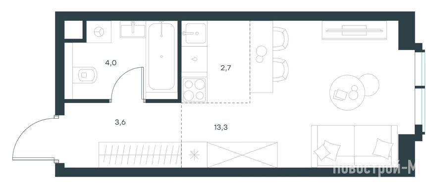
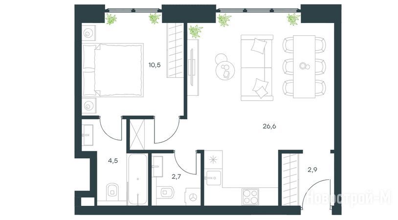
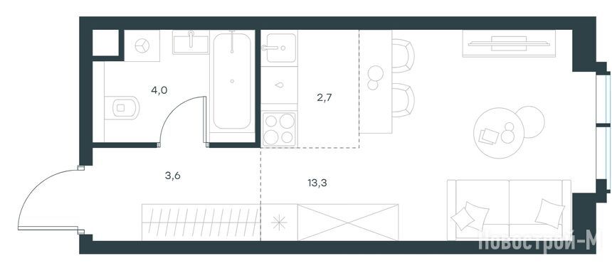
В ЖК «Павелецкая Сити» можно выбрать квартиры с классическими и европланировками, а также редкие форматы жилья. Это могут быть привычные «распашонки» или «линейки», с полностью изолированными комнатами или проходными гостиными. Площади, представленные в продаже, в мае 2025 года варьируются от компактных 23,6 кв. м до 158,9 кв. м.






Есть квартиры с полноценными гардеробными или нишами для встроенных шкафов. Санузлы раздельные и совмещенные, в квартирах с двумя и более спальнями предусмотрено по 2 санузла, один из которых может быть приватным – относиться к конкретной мастер-спальне. Также есть варианты 1-комнатных евроквартир с двумя раздельными санузлами. В ряде квартир предусмотрены кладовые и постирочные, просторные холлы.
Среди вариантов с редкими форматами планировочных решений представлены: лоты с террасами, квартиры с потолками до 3,6 метра (в корпусах 13 и 14), а также пентхаусы с высотой потолка до 6,55 м (в корпусах 7 и 15).
Жилье сдается как в черновом варианте, так и в отделке MR Base (white box) – это предчистовая отделка с готовой электрической разводкой, выводами под розетки, сантехнику и интернет, оштукатуренными стенами.





В квартирах будут установлены панорамные окна в пол, из которых откроется вид на исторический центр Москвы, сталинские высотки, Шуховскую башню, ММДЦ «Москва-Сити», деловой район Павелецкой, набережные Москвы-реки и окружающие парки.
Жилой комплекс «Павелецкая Сити» строится в Даниловском районе Москвы, на границе с Замоскворечьем (ЦАО). Это бывший промышленный район, который сейчас активно застраивается жилыми комплексами бизнес- и премиум-класса, постепенно превращаясь в ещё одну респектабельную и перспективную с точки зрения инвестиций локацию. Этому способствует и близость к центру, и хорошо развитая социальная и транспортная инфраструктура.
Через территорию района проходят несколько крупных транспортных артерий: ТТК, улицы Люсиновская и Велозаводская. Эти магистрали обеспечивают возможность проезда в любую часть столицы. В часы пик они бывают сильно загружены.
Подъезд к жилому комплексу возможен только со стороны ул. Дубининской, по которой проложены трамвайные пути, что также может усугублять и без того непростую дорожную обстановку в ближайших к ЖК кварталах.
С другой стороны, для тех, кто передвигается без автомобиля, расположение остановки общественного транспорта в двух минутах от дома будет скорее преимуществом.
Время в пути до станций метро от ближайших корпусов квартала:
В пешей доступности Павелецкий вокзал, откуда можно быстро добраться до аэропорта Домодедово на аэроэкспрессах.
Экологическая обстановка в Даниловском районе остается удовлетворительной (эксперты EcoStandard оценили ее на 8 баллов из 10). При относительно невысокой плотности населения здесь всегда высокая загруженность транспортных магистралей. Площадь зеленых насаждений незначительна, зато достаточно промышленных предприятий, оказывающих серьезное негативное воздействие на качество воды и воздуха.
Однако стоит помнить, что площадь района велика, и он располагается по обе стороны Москвы-реки. ЖК «Павелецкая Сити» расположен всего в 600 метрах от района Замоскворечье, где есть парки и скверы.
И все-таки зеленых зон вблизи нашей новостройки практически нет, если не считать нескольких скверов, наиболее крупным из которых является сквер Чингиза Айтматова. Дойти до него жители комплекса «Павелецкая Сити» смогут за 5-7 минут. Ближайшие крупные зеленые массивы – Парк Горького и Нескучный сад – расположены на расстоянии около 3,5 км, чтобы добраться до них на машине потребуется около 10 минут, пешая прогулка вдоль Крымского Вала займет не меньше 40 минут.
Даниловский район отличается развитой социальной инфраструктурой, но распределение образовательных и медицинских учреждений по территории района неравномерное.
Детские сады
Ближайшая к ЖК «Павелецкая Сити» школа с дошкольным отделением №1257 находится в 600 метрах, это около 7 минут пешком. На расстоянии около 2 км находится детский сад №630 – 6 минут на машине с учетом пробок или 20-25 минут пешком. Школа №627 с дошкольным отделением – в 10 минутах ходьбы (около 1 км). В радиусе пары километров есть еще несколько частных детских садов, в том числе с углубленным изучением иностранных языков.
Школы
До ближайшей общеобразовательной школы №627 на Дубининской, 42 всего 700 метров. Менее 15 минут потребуется, чтобы пешком дойти до школы №1257, находящейся на ул. Павловской, 8а. Дорога до школы №630 займет около получаса.
В пешей доступности находятся несколько колледжей, в том числе медицинский, колледж программирования и кибербезопасности, Институт дизайна.
Торговля
Ближайший торгово-развлекательный центр «Павелецкая Плаза» расположен рядом с одноименной станцией метро, дойти до него пешком можно за 20 минут. Примерно столько же займет прогулка до другой крупной и популярной торговой площадки – Даниловского рынка. В шаговой доступности работают несколько сетевых супермаркетов, в числе которых «Азбука Вкуса», Eurospar, «Перекресток» и «ВкусВилл».
Поликлиники
Детская поликлиника №83 расположена в 15 минутах ходьбы от новостройки. Чуть больше 20 минут займет пешая прогулка до детской поликлиники №91, или 5 минут на машине. Ближайшая взрослая поликлиника №68 находится в 15 минутах ходьбы, правда относится она уже к району Замоскворечье. Примерно столько же займет путь до ГКБ №4, при которой тоже есть поликлиническое отделение и травмпункт. Около получаса придется идти до поликлиники №67 Даниловского района, путь к ней преграждают железнодорожные пути, которые необходимо будет обойти.
Чтобы увидеть объекты, нажмите на соответствующую кнопку внизу карты.
В пешей доступности несколько спортивных заведений, в том числе Aquastar с крытым бассейном на 5 дорожек, школа йоги в Партийном переулке, фитнес-студия на Павловской, 21. Рядом с комплексом находится ледовая арена «Клюшка», но пройти к ней напрямую не получится, нужно будет обойти пару кварталов.
Безопасность
Криминогенная ситуация в Даниловском районе по итогам 2024 года оставалась в целом стабильной (рост числа преступлений по итогам года +0,6%), что следует из . информационно-аналитической записки начальника отдела МВД по Даниловскому району. Ближайшее участковое отделение полиции №7 находится на ул. Люсиновской, 66 к1 – это около 15 минут пешком. Также районные отделения МВД работают в Серпуховском переулке и на Малой Тульской улице.
Продажи жилья в этом проекте стартовали в марте 2020 года, тогда минимальный бюджет покупки находился на отметке 7,5 млн руб. В мае 2025 года цены на квартиры в ЖК «Павелецкая сити» начинаются от 15,1 млн руб. За эту стоимость можно приобрести квартиру-студию без отделки в доме, который будет сдан уже в конце 2027 года. Минимальная стоимость квартиры с отделкой white box – 18,8 млн руб. Стоимость студий с предчистовой отделкой в сданных корпусах стартует с 21,8 млн рублей.
Актуальные цены в ЖК «Павелецкая Сити»:
|
Тип жилья |
Метраж, кв. м |
Цена, руб. |
Цена за кв. м, тыс. руб. |
|
студии |
23.60 — 29.00 |
19 198 968 — 24 345 680 |
704.5 — 839.5 |
|
1-комнатные |
31.10 — 41.50 |
22 755 527 — 29 337 086 |
596.8 — 778.2 |
|
2-комнатные |
40.50 — 50.00 |
23 725 100 — 33 079 237 |
553.7 — 672.5 |
|
3-комнатные |
56.80 — 74.40 |
31 670 078 — 58 631 759 |
551.5 — 799.9 |
|
4-комнатные |
83.40 — 94.90 |
46 596 461 — 86 237 112 |
542.6 — 945.6 |
|
многокомнатные |
91.70 — 114.50 |
52 589 866 — 95 789 281 |
550.2 — 933.6 |
Покупатели недвижимости в ЖК «Павелецкая Сити» могут воспользоваться ипотечными программами. Кредит готовы предоставить десятки банков, в числе которых МКБ, Т-Банк, ВТБ, Сбербанк, Россельхозбанк, Совкомбанк и др. Недвижимость подходит под ряд государственных программ, в том числе «Семейная ипотека» с субсидированной ставкой от 3,8% на весь срок кредитования. В зачет стоимости покупки можно направить материнский капитал. Доступна программа «Trade-In от застройщика», предлагается ипотека на кладовые помещения.
В Даниловском районе ведется активная застройка бывших промышленных зон. Поэтому покупатели могут выбирать из большого числа объектов, среди которых значительная часть недвижимости приходится именно на бизнес-класс.
Ближайшие конкуренты нашей новостройки – это проекты «Дом А» и «MYPRIORITY Павелецкая».
«Дом А» – проект компании «Брусника», который вышел в продажу в июне 2024 года. Он возводится в непосредственной близости от башен «Чарли» и «Фрэнк» комплекса «Павелецкая Сити» и расположен ближе к метро. Здесь также предусмотрены редкие форматы жилья, включая квартиры с террасами, двухуровневые лоты, пентхаусы, а также таунхаусы с отдельным входом. В здании продумано двухсветное лобби, сквозные подъезды с гостиными и грязезащитой. Квартиры сдаются без отделки или с white box. Срок ввода – IV кв. 2027 года.
Актуальные цены в «Дом А»:
|
Тип жилья |
Метраж, кв. м |
Цена, руб. |
Цена за кв. м, тыс. руб. |
|
студии |
26.40 — 29.70 |
22 770 000 — 24 580 000 |
777.1 — 931.1 |
|
1-комнатные |
36.60 — 52.30 |
28 550 000 — 36 870 000 |
687 — 811.7 |
|
2-комнатные |
60.60 — 124.50 |
41 680 000 — 96 670 000 |
623.4 — 798.3 |
|
3-комнатные |
84.50 — 188.80 |
56 400 000 — 128 900 000 |
560.1 — 682.7 |
|
4-комнатные |
106.90 — 177.40 |
73 330 000 — 111 490 000 |
628.5 — 686 |
«MYPRIORITY Павелецкая» реализует ГК «Гранель». Продажи в этом ЖК стартовали в сентябре 2023 года. Помимо жилья, в проекте предусмотрен подземный паркинг, коммерция на первых этажах и собственный детский сад. Сейчас в продаже осталось совсем немного квартир (площади от 30 до 104 кв. м), все они сдаются без отделки. Срок ввода намечен на IV кв. 2026 года.
Актуальные цены в «MYPRIORITY Павелецкая»:
|
Тип жилья |
Метраж, кв. м |
Цена, руб. |
Цена за кв. м, тыс. руб. |
|
студии |
30.23 — 35.85 |
24 990 103 — 28 707 949 |
697.1 — 880.7 |
|
1-комнатные |
38.02 — 58.29 |
28 725 106 — 38 514 914 |
606.2 — 776.3 |
|
2-комнатные |
66.15 — 92.75 |
39 412 048 — 57 085 037 |
547.8 — 641.7 |
|
3-комнатные |
70.23 — 90.17 |
43 690 087 — 56 510 382 |
562.8 — 636.8 |
|
4-комнатные |
103.30 |
56 592 754 — 60 187 426 |
547.8 — 582.6 |
Резюме
Жилой комплекс «Павелецкая Сити» имеет ряд преимуществ, среди которых:
Из недостатков можно отметить сложную дорожную обстановку, характерную для центра Москвы. Путь до метро не самый близкий: прогулка длиной 15-20 минут доставит удовольствие в теплое время года, но вряд ли порадует зимой и осенью. Соседство с железной дорогой тоже создает определенные неудобства.
Данный ЖК хорошо подходит для инвестиций. Здесь можно приобрести жилье бизнес-класса с целью последующей перепродажи или сдачи в аренду. И в целом Даниловский район, в частности ЖК «Павелецкая Сити», можно рекомендовать всем, кто ценит комфорт проживания в центре Москвы. В районе уже есть необходимая инфраструктура и, учитывая темпы его обновления и застройки, в скором времени локация обретет более презентабельный статус.
Дата публикации 20 мая 2025