«Зелёный парк» – это проект комплексной жилой застройки в Зеленограде. В ближайшие годы здесь построят целый микрорайон со своей инфраструктурой, бульварами и зонами отдыха. Несколько корпусов застройщик уже сдал, в ближайшие годы появятся еще несколько домов, а также детский сад и школа. Какими плюсами и минусами обладает проект, чем отличается от конкурентов и на что стоит обратить внимание – все это в экспертизе от Новострой-М.
Примечание
В статье перечислены только факты о ЖК, собранные из открытых источников. В рубрике «Экспертиза проекта» Новострой-М решил отказаться от оценок и оценочных суждений: право делать выводы из описанных фактов о жилом комплексе мы предоставляем нашим читателям.
Кто строит?
Строительством ЖК «Зелёный парк» занимается АО «Специализированный застройщик “Зеленоградский”», который входит в группу компаний ПИК. Строительный холдинг включен в перечень системообразующих организаций России. По итогам 2023 года он занял первое место в стране по объему ввода жилья – около 2,7 млн кв. м (по данным Единого реестра застройщиков). По данным на 1 марта 2024 года, ПИК занимает второе место в России по объему строящегося жилья (4,5 млн кв. м).
У девелопера есть проекты в Москве, Санкт-Петербурге, Екатеринбурге, Казани, Новороссийске, Владивостоке, Ростове-на-Дону, Тюмени и других городах (строительство ведется в 17 регионах страны).
Что строят?
Жилой квартал «Зелёный парк» строится в Зеленограде на территории бывшей промзоны Центра информатики и электроники. Застройщику одобрили проект комплексной жилой застройки площадью 75 га. На этом участке ПИК планирует возвести 847,9 тыс. кв. м недвижимости, включая социальные объекты, паркинги и общественную торгово-офисную застройку. Также в этой локации на участке 8,7 га девелопер создаст промышленный парк площадью 46 тыс. кв. м.
Сейчас «Зелёный парк» состоит из трех домов (11 корпусов) высотой от 11 до 25 этажей. Жилая часть корпусов выполнена из трехслойных панелей, облицованных бетонной плиткой в заводских условиях.
Первые два дома застройщик сдал в IV квартале 2023 года и I квартале 2024 года. Последнюю очередь, состоящую из трех корпусов, планируется ввести в эксплуатацию во II квартале 2026 года.
ЖК «Зелёный парк» в цифрах:
|
№ дома |
Лоты |
Энергоэффект. |
Машино-места* |
Класс |
Срок ввода |
|
1.1, 1.2, 1.3, 1.4 |
964 |
А, А+ (корпус 1.4) |
47 |
Комфорт |
Введены |
|
2.1, 2.2, 2.3, 2.4 |
964 |
А, А+ (корпусы 2.2 и 2.4) |
47 |
Комфорт |
Введены |
|
6.2, 6.3, 6.4 |
769 |
А |
12 |
Комфорт |
II кв. 2026 года |
* На придомовой территории
Архитектура и дизайн
Дома в ЖК «Зелёный парк» разной высоты (от 11 до 25 этажей). Это создает визуальное разнообразие, архитектурный ритм и позволяет легче ориентироваться в кварталах. А балконы, террасы, окна в пол и разноуровневые парапеты добавляют определенные акценты внешнему виду комплекса.










В отделке фасадов используется бетонная плитка спокойных тонов, которая гармонично вписывает проект в окружающую локацию.
Все подъезды домов просторные, с высокими потолками и стеклянными дверьми. Они имеют два выхода – во внутренний двор и на улицу. У входных зон нет ступеней, порогов и пандусов, что облегчает перемещение маломобильных лиц и мам с колясками.
Благоустройство
Дома ЖК образуют кварталы, внутри которых находятся закрытые от машин и посторонних дворы. В этом внутреннем пространстве разместятся места для отдыха – застройщик планирует уделить большое внимание озеленению территории – и детские площадки.





Площадки для шумных видов спорта, например баскетбола или футбола, расположены с внешней стороны корпусов. У каждого дома будут установлены турники, брусья, ступени для кроссфита и скамьи для пресса.
Безопасность и технологии
На внутреннюю территорию дома можно попасть только из самого корпуса или с помощью специального магнитного ключа. На подъездах установлены IP-домофоны, которыми можно управлять с помощью смартфона. Благодаря камере домофона можно увидеть, кто пришел, а открыть дверь получится отовсюду, где есть интернет.
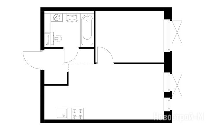
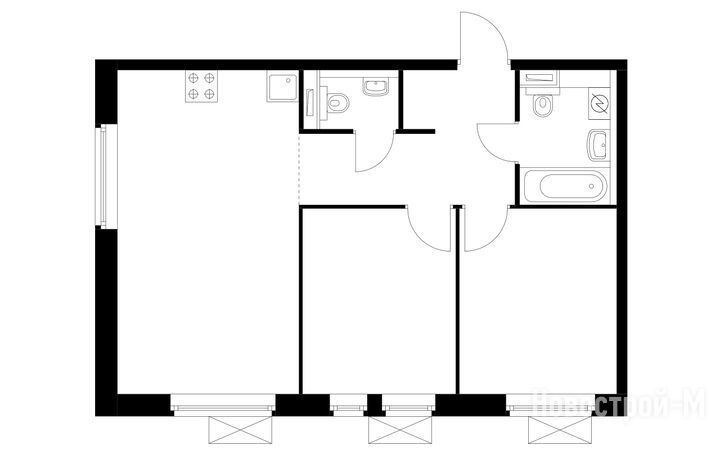
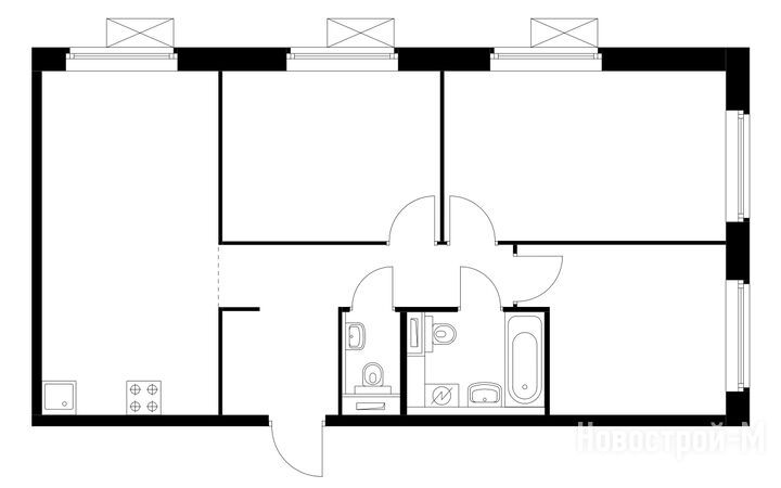
Планировки
Сейчас (данные на конец марта 2024 года) в продаже представлены 289 квартир в девяти из одиннадцати корпусов ЖК, в корпусах 1.3 и 2.1 квартир от застройщика в продаже нет. В конце декабря 2023 года ПИК вывел на рынок часть квартир в новых корпусах проекта (6.2, 6.3 и 6.4).




В квартирографии ЖК «Зелёный парк» есть студии, одно-, двух- и трехкомнатные варианты. Все они сдаются с готовой отделкой.
Площади квартир в имеющемся предложении:
Среди планировок есть варианты со сквозными или несколькими санузлами, с мастер-спальнями, с гардеробными и постирочными комнатами. В корпусе 6.2 представлены варианты с высокими окнами в пол. В комплексе также продаются квартиры с балконами: как обычными, так и угловыми. Из уникального предложения — квартира с террасой.
Где строят?
«Зелёный парк» расположен у южной границы Зеленограда, в районе Крюково. До МКАД отсюда можно добраться на машине по Ленинградскому шоссе за 44 минуты. В зависимости от ситуации на дорогах путь может занять больше времени. До аэропорта Шереметьево на автомобиле можно добраться чуть более чем за полчаса.
Путь до станции МЦД-3 Зеленоград-Крюково на машине займет около 8 минут. От остановки общественного транспорта «Кутузовская слобода» (она находится в 10 минутах пешком от ЖК) примерно за час можно доехать до станции метро «Пятницкое шоссе» или за 10-15 минут до станции электричек. Рядом с комплексом находится еще одна остановка – «Овражная». От нее также можно доехать до метро «Пятницкое шоссе» или до станции МЦД. Время в пути займет около 70 минут. На автомобиле до метро можно доехать минут за 40, если не будет серьезных пробок.
Экология
Согласно рейтингу компании EcoStandard экологическая обстановка в районе оценивается как благоприятная. Крюково по итогам 2023 года набирает 5 баллов (из 10 возможных). Из благоприятных факторов эксперты называют, например, низкую загруженность дорог в этой локации. А из негативных – небольшую площадь зеленых насаждений.
Тут нужно отметить, что в самом районе расположены несколько парков – Старокрюковский, парк у Михайловского пруда, парк «Зелёный бор». Дойти до них можно менее чем за 20 минут. А примерно в километре к югу от комплекса находится зеленый массив, правда он уже территориально относится к Московской области.
Инфраструктура
Кроме жилья девелопер сейчас строит в комплексе детский сад на 250 мест и школу на 550 учащихся. После ввода в эксплуатацию (сдать объекты планируется до конца 2024 года) они будут переданы в собственность города. Позже планируется строительство еще одного муниципального детского сада и еще одной школы на столько же мест. Эти два объекта должны быть сданы до 2028 года.
С детской инфраструктурой в районе все довольно неплохо. Примерно за 20 минут можно дойти до двух корпусов детского сада при школе №1150 им. дважды Героя Советского Союза К.К. Рокоссовского (Георгиевский проспект, 37а и Георгиевский проспект, 37Б). В том же ЖК находится частный детский сад Binny (Георгиевский проспект, 33 к4). Примерно на таком же расстоянии (но на противоположной стороне Георгиевского проспекта) находятся еще несколько корпусов детсада при этой школе и несколько – детского сада средней общеобразовательной школы №2045.
Кроме школ, которые будут открыты в самом комплексе, в радиусе 1,5 км находятся более 10 корпусов разных общеобразовательных школ. До ближайшей можно дойти за 17 минут, это все та же школа № 1150 (Георгиевский проспект, 33Б). В противоположной стороне, в 20 минутах пешком находятся два корпуса средней школы №2045.
На первых этажах корпусов комплекса предусмотрены коммерческие помещения, в которых позже откроются магазины, кафе и различные сервисы. В 11 минутах пути ходьбы, недалеко от остановки «Кутузовская слобода», расположен торговый центр «Столица». В нем есть несколько сетевых продуктовых магазинов, среди которых «Перекресток», «ВкусВилл», «Чижик» и другие. В этом же ТЦ расположены «Магнит Косметик» и кафе сети «Вкусно и точка».
В соседнем ЖК (15 минут в противоположную сторону от «Столицы») также уже работают около 10 различных магазинов: от крупных сетевых, до небольших магазинов фермерских продуктов. Там же расположен гипермаркет Selgros cash&carry.
А вот медучреждений рядом с ЖК не хватает. До ближайшей городской клинической больницы М.П. Кончаловского ДЗМ пешком придется идти около получаса. Детская городская поликлиника №105 находится еще дальше. Однако в округе есть частные медицинские центры.
Одним из преимуществ комплекса застройщик называет лыжероллерную трассу, которая проходит в километре от комплекса. Рядом с ЖК расположены зеленоградский BMX-велодром и спорткомплекс «Космос» со скалодромом, батутным центром и картингом.
Вообще со спортивными центрами вокруг нет проблем. В ТЦ «Столица» есть фитнес-клуб Sport Energy, в соседнем доме – студия пилатеса Pilates by Milatsa. На ул. Заречная, 19 расположен фитнес-клуб с бассейном «Территория фитнеса». В радиусе 1,5 км находятся еще несколько фитнес-центров, спортивных секций и клубов единоборств. Минут за 20 можно дойти от ЖК до ледового центра «Платинум» (Зеленоград, корп. 2045).
Безопасность
Согласно данным прокуратуры Москвы в Зеленограде в 2023 году было совершено меньше всего преступлений в сравнении с другими округами столицы. При этом Зеленоград продемонстрировал один из лучших показателей по снижению количества преступлений.
Ближайший от комплекса участковый пункт полиции находится по адресу: Зеленоград, корп. 2010. Время в пути пешком – около 20 минут, на машине – около 8 минут.
Цены и способы покупки
В конце 2023 года стартовали продажи квартир в трех новых корпусах комплекса «Зелёный парк». До конца марта 2024 года действуют специальные цены и скидки.
Цены в ЖК «Зелёный парк»:
|
Тип жилья |
Метраж, кв. м |
Цена, руб. |
Цена за кв. м, тыс. руб. |
|
студии |
28.00 — 29.70 |
9 615 030 — 10 184 130 |
332.7 — 358.3 |
|
1-комнатные |
30.60 — 44.10 |
10 498 860 — 15 805 440 |
312.7 — 396.1 |
|
2-комнатные |
49.60 — 66.70 |
15 361 120 — 23 837 520 |
285.5 — 405.4 |
|
3-комнатные |
65.30 — 95.10 |
19 509 140 — 30 698 280 |
287.9 — 351.6 |
Застройщик предлагает различные ипотечные программы, в том числе и льготные: IT-ипотеку, семейную, военную, ипотеку с господдержкой. Есть несколько вариантов от самого застройщика, в том числе программы с низким первоначальным взносом (от 15,01%).
Данные об условиях кредитования действительны на момент публикации статьи. Актуальную информацию вы всегда можете найти в карточке проекта.
Конкуренты
В радиусе пяти километров от «Зелёного парка» расположены не менее четырех новостроек, однако почти все они административно относятся не к ЗелАО, а к Солнечногорскому району Подмосковья.
Так, рядом с «Зелёным парком» строится подмосковный ЖК комфорт-класса «Андреевка Life» от компании «Капитал-Инвест». Комплекс включает в себя восемь 17-этажных монолитно-кирпичных зданий. Цены здесь стартуют от 5,3 млн рублей за студию площадью 28,2 кв. м. В стоимость входит отделка white box. Срок сдачи корпусов – II квартал 2025 года.
Цены в ЖК «Андреевка Life»:
|
Тип жилья |
Метраж, кв. м |
Цена, руб. |
Цена за кв. м, тыс. руб. |
|
студии |
28.00 — 28.30 |
6 800 600 — 7 418 200 |
241.2 — 262.1 |
|
1-комнатные |
35.50 — 40.20 |
8 856 500 — 10 079 000 |
233.8 — 250.7 |
|
2-комнатные |
55.30 — 71.90 |
12 939 500 — 15 777 500 |
217.3 — 242.1 |
|
3-комнатные |
72.70 |
16 005 900 — 16 224 000 |
220.2 — 223.2 |
Другой проект поблизости уже сдан – это ЖК комфорт-класса «MySpace в Зеленограде» в 15 минутах ходьбы от платформы Зеленоград-Крюково. Это проект капитального ремонта 9-этажного жилого дома, в нем есть только студии и однокомнатные квартиры. Цены начинаются от 4,5 млн рублей за студию площадью 14,2 кв. м с готовой чистовой отделкой.
Цены в ЖК «MySpace в Зеленограде»:
|
Тип жилья |
Метраж, кв. м |
Цена, руб. |
Цена за кв. м, тыс. руб. |
Нет в продаже | |||
Еще один проект комфорт-класса, строящийся по соседству, называется «Новый Зеленоград» и располагается в поселке Рузино Солнечногорского района Московской области. Здесь цены начинаются от 3,9 млн рублей (со скидкой) за студию площадью 23,5 кв. м.
Цены в ЖК «Новый Зеленоград»:
|
Тип жилья |
Метраж, кв. м |
Цена, руб. |
Цена за кв. м, тыс. руб. |
|
студии |
23.50 — 25.80 |
4 305 719 — 7 184 755 |
183.2 — 278.5 |
|
1-комнатные |
37.80 — 42.10 |
6 555 940 — 10 184 650 |
169.5 — 262.3 |
|
2-комнатные |
50.90 — 59.90 |
9 859 408 — 14 784 696 |
192.1 — 269.3 |
Дальше всего от «Зелёного парка» расположен ЖК «Первый Зеленоградский» от ГК «Сибпромстрой». Новостройка административно относится к Московской области. Это масштабный проект комфорт-класса, где все 17-этажные панельные корпуса введены в эксплуатацию. В продаже осталось несколько 1-комнатных квартир.
Цены в ЖК «Первый Зеленоградский»:
|
Тип жилья |
Метраж, кв. м |
Цена, руб. |
Цена за кв. м, тыс. руб. |
|
1-комнатные |
28.70 — 32.30 |
4 530 000 — 5 400 000 |
149.5 — 188.2 |
Резюме
ЖК «Зелёный парк» – это неплохой вариант для семейных пар с детьми. Закрытые дворы без машин, свои школы и детские сады. Рядом ледовая арена и бассейн, есть различные спортивные секции. С экологией в районе все довольно неплохо, а рядом – зеленая зона с лыжными трассами и местами для пикника.
Плюсы проекта:
Минусы проекта: