Жилой комплекс бизнес-класса «UNO.Соколиная гора» возводится в районе Соколиная Гора на востоке Москвы. Жилой комплекс рядом с Измайловским лесопарком, квартиры евроформата, благоустроенный двор-сад, хорошая транспортная доступность — эти и другие плюсы нового проекта линейки UNO изучил Новострой-М.
Примечание
В статье перечислены только факты о проекте, собранные из открытых источников. В рубрике «Экспертиза проекта» Новострой-М решил отказаться от оценок и оценочных суждений: право делать выводы из описанных фактов мы предоставляем нашим читателям.
Кто строит
Девелопер проекта — ГК «Основа». Компания работает с 2016 года, основные направления ее деятельности: девелопмент в формате «умный дом», управление объектами коммерческой недвижимости, инвестиции в развитие семейной досуговой инфраструктуры, инвестиции в высокотехнологичные проекты и инновации. В рейтинге Единого ресурса застройщиков «Основа» входит в топ-15 московских застройщиков по объему текущего строительства. В портфеле девелопера — 20 жилых проектов в Московском регионе.
Под брендом монодомов UNO уже реализован «UNO.Старокоптевский», готовится к вводу «UNO.Головинские пруды», а также планируется к старту новый ЖК «UNO.Горбунова».
Что строят
Жилой комплекс «UNO.Соколиная гора» — это два корпуса высотой 17–21 этаж на стилобате со со встроенно-пристроенными коммерческими помещениями. Предусмотрен подземный паркинг. Всего в комплексе запроектировано 642 квартиры с потолками до 2,9 метра, жилой площадью 29,7 тыс. кв. м. Общая площадь ЖК — почти 42 тыс. кв. м.
ЖК «UNO.Соколиная гора» в цифрах*:
|
№ |
Квартиры |
Энергоэффект. |
Количество машино-мест |
Класс |
Срок ввода |
|
1 |
642 |
А |
129 |
бизнес |
II кв. 2027 г. |
*Данные из проектной декларации
Архитектура и дизайн
Архитектурный облик зданий является своеобразной отсылкой к истории района — в XVII веке здесь находился царский Потешный соколиный двор. Фасады золотого и серебряного оттенков напомнят перья птиц, блестящие на солнце. Сами здания станут новой архитектурной доминантой района.






В лобби предусмотрены лаундж-зоны с диванами, помещения охраны, колясочные, комнаты матери и ребенка. На первых этажах расположится зона ретейла. Подземный паркинг рассчитан на 129 машино-мест, включая зависимые места и места для пользования инвалидами и другими маломобильными жильцами. Также на подземном уровне разместятся кладовые помещения.
Квартиры будут оборудованы системами «Умный дом».
Придомовая территория
Во дворе обустроят детскую и спортивную площадки, беседки, газоны для пикников, площадки для йоги, места для работы с ноутбуком, также на территории разместится гостевая парковка на 26 машино-мест.


Ландшафтное озеленение сочетает в себе черты московских палисадников и уютных частных садов. Будут высажены деревья и кустарники: клены, каштан, пихта, сирень, кизильник, спирея.
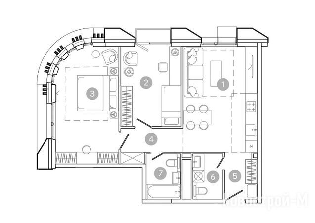
Квартиры и планировки
В жилом комплексе «UNO.Соколиная гора» будет 642 квартиры — от студий до вариантов с тремя спальнями и кухней-гостиной. Есть лоты с частными патио на кровле стилобата. Все квартиры продаются без отделки и со свободной планировкой, что характерно для всей линейки бренда UNO. Высота потолков в большинстве квартир составит 2,9 метра, на высоких этажах — до 3,4 метра в чистовой отделке.
В середине апреля 2025 года для покупки доступны 193 квартиры в обоих корпусах, это варианты от студий площадью 20,8 кв. м до лотов площадью 107,2 кв. м. Все планировки — евроформата.




Планировки студий достаточно однообразны, такие квартиры отличаются только площадью. В «евродвушках» (с одной спальней и кухней-гостиной) есть ниши в прихожей, планировки таких квартир — линейные и угловые, причем углы — закругленные.
В «евротрешках» имеются два санузла и ниша в прихожей. В квартирах с тремя спальнями и кухней-гостиной также предусмотрены по два санузла, есть мастер-спальни. Планировки — линейные и угловые с закругленными углами.




Где строят
ЖК «UNO.Соколиная гора» строят на участке площадью 0,9 га на 8-й улице Соколиной Горы в районе Соколиная Гора на востоке Москвы. Локация еще не избавилась от промышленного прошлого: рядом с новостройкой пока что находятся гаражи и склады.
Район Соколиная Гора хорошо обеспечен транспортом: здесь есть станции метро «Соколиная Гора», «Семеновская», «Электрозаводская» и «Шоссе Энтузиастов», МЦК «Шоссе Энтузиастов», «Соколиная Гора» и «Измайлово», МЦД-3 Сортировочная. На границе с районом Лефортово находится станция метро «Авиамоторная».
В шаговой доступности от нашей новостройки расположена станция МЦК «Соколиная Гора».
Станции метро и МЦК, время в пути от ЖК «UNO.Соколиная гора»:
Рядом с ЖК есть автобусные остановки «Больница Соколиной горы» и «МЦК Соколиная Гора» (можно доехать до метро «Бульвар Рокоссовского»).
Для автомобилистов есть выезд на Московский скоростной диаметр — он проходит совсем недалеко от новостройки.
Экология
Район Соколиная Гора пока что остается одним из наиболее экологически неблагополучных в Москве. В рейтинге компании EcoStandard у района — 10 баллов из 10, экологическая обстановка здесь оценивается как неблагоприятная.
Основные недостатки: нехватка зеленых насаждений (на территории района есть только небольшие Семеновский парк и Семеновский сквер) и загруженность автодорог (по границам района проходят МСД и шоссе Энтузиастов, по территории — проспект Буденного), НПЦ «Салют» и ТЭЦ-11. Ситуацию сглаживает соседство с Измайловским лесопарком — именно рядом с ним строится ЖК «UNO.Соколиная гора». Правда, между парком и новостройкой расположены МСД и ж/д пути.
Инфраструктура
Собственная инфраструктура проекта предусматривает различные коммерческие объекты на первых этажах, но детского сада и школы среди них нет. Будущим жителям будет полезно знать об окружении ЖК — что есть рядом.
Детские сады:
Школы:
С детскими поликлиниками ситуация сложнее: ближайшая расположена на улице Зверинецкая, 15, это головное здание поликлиники №52. До нее 2,55 км или полчаса пешком. Дорога на общественном транспорте займет 26 минут, на машине — 8 минут.
Поликлиники для взрослых тоже не в шаговой доступности:
При этом рядом с ЖК «UNO.Соколиная гора» находится целый больничный городок: диспансер №9, инфекционная больница №2, роддом, клиника НИИ медицины труда (здесь оказывают в том числе платные медицинские услуги).
Зато с продуктовыми магазинами в локации всё хорошо: недалеко от новостройки есть супермаркеты «Пятерочка», «ВкусВилл», «Магнит», «Лента» и различные небольшие магазинчики.
Чтобы увидеть объекты, нажмите на соответствующую кнопку внизу карты:
За здоровым образом жизни с физическими нагрузками жители «UNO.Соколиная гора» могут отправиться в фитнес-клубы Nkfit на Вольной, 35 стр. 8 (1,6 км) и Soul Harmony Studio на проспекте Буденного, 51 корп. 1 (1,5 км). Также не стоит забывать, что совсем рядом с новостройкой расположен большой парк, где можно заняться спортом на свежем воздухе.
Безопасность района
Восточный административный округ — один из самых небезопасных в Москве. По данным столичной прокуратуры, по итогам 11 месяцев 2024 года ВАО занял второе место по числу совершенных преступлений после ЮВАО. Район Соколиная Гора, к сожалению, тоже не может похвалиться безопасностью.
В 700 метрах от ЖК «UNO.Соколиная гора», на 5-й улице Соколиной Горы, 25А, находится общественный пункт охраны порядка.
Цены и способы покупки
Продажи в ЖК «UNO.Соколиная Гора» стартовали в октябре 2024 года, минимальный ценник тогда составлял 8,92 млн рублей. В середине апреля купить самую недорогую квартиру предлагается за 9,13 млн рублей.
Актуальные цены в ЖК «UNO.Соколиная Гора»:
|
Тип жилья |
Метраж, кв. м |
Цена, руб. |
Цена за кв. м, тыс. руб. |
|
студии |
23.60 — 28.40 |
13 947 600 — 16 216 400 |
571 — 596 |
|
2-комнатные |
40.50 — 61.00 |
19 579 138 — 28 426 000 |
406.2 — 537 |
|
3-комнатные |
61.50 — 85.10 |
27 183 000 — 37 807 200 |
432 — 502 |
|
4-комнатные |
93.00 — 107.20 |
47 895 000 — 53 921 600 |
503 — 515 |
Способы покупки: ипотека, в том числе по программе семейной ипотеки, беспроцентная рассрочка с первоначальным взносом 30%, 50% или 70%. Ипотеку предоставляют Сбербанк, ВТБ, Альфа-Банк, Московский кредитный банк.
Данные об условиях кредитования действительны на момент публикации статьи. Актуальную информацию вы всегда можете найти в карточке проекта.
Конкуренты
Ближайший сосед ЖК «UNO.Соколиная гора» — ЖК «Семеновский парк 2» от компании «РГ-Девелопмент». Это один четырехсекционный корпус высотой 12–26 этажей с подземным паркингом, детским садом и муниципальной начальной школой. Проект планируется ввести в эксплуатацию в III квартале 2025 года, в продаже осталось 145 квартир без отделки — от 24-метровых студий до евротрешек площадью 102,1 кв. м. Цены с учетом скидки — от 10 млн рублей.
Актуальные цены в ЖК «Семеновский парк 2»:
|
Тип жилья |
Метраж, кв. м |
Цена, руб. |
Цена за кв. м, тыс. руб. |
|
студии |
23.70 — 34.50 |
14 741 353 — 18 339 165 |
525.4 — 622 |
|
1-комнатные |
37.60 — 47.20 |
19 149 379 — 21 895 918 |
436.1 — 528.3 |
|
2-комнатные |
47.00 — 102.80 |
20 963 410 — 39 222 929 |
356.8 — 466.7 |
|
3-комнатные |
78.00 — 95.30 |
32 896 428 — 40 903 141 |
406.6 — 431.3 |
Также относительно недалеко ведется строительство проекта «Evopark Измайлово» — в районе Перово, в пешей доступности от станции метро «Шоссе Энтузиастов» и Измайловского парка. Это также проект ГК «Основа», 18-этажный корпус будет сдан к концу 2025 года. Здание рассчитано на 289 лотов, в середине апреля 2025 года в продаже есть 56 помещений: от студий площадью 30,87 кв. м до евродвушек площадью 51 кв. м. Недвижимость реализуется без отделки, цены — от 9,1 млн рублей.
Актуальные цены в «Evopark Измайлово»:
|
Тип жилья |
Метраж, кв. м |
Цена, руб. |
Цена за кв. м, тыс. руб. |
|
студии |
20.99 — 32.34 |
9 235 600 — 12 711 240 |
341.6 — 452 |
|
2-комнатные |
39.66 — 51.09 |
14 244 672 — 18 390 000 |
289.4 — 415 |
|
3-комнатные |
47.81 — 48.52 |
15 696 979 — 19 171 810 |
328.3 — 401 |
Резюме
Плюсы ЖК «UNO.Соколиная гора»:
Минусы:
«UNO Соколиная гора» строится в достаточно спорном для бизнес-класса месте на востоке Москвы. Однако недостатки локации сглаживаются близостью большого парка и видами на него из окон квартир. Кроме того, это одна из немногих новостроек, которые сейчас возводятся в районе Соколиная Гора.
Дата публикации 15 апреля 2025