В мае 2022 года стартовали продажи нового проекта ГК МИЦ — ЖК «МелиСад». Новостройка будет возведена в поселении Мосрентген (Новая Москва), возле деревни Дудкино. Четыре корпуса переменной этажности в 2 км от МКАД по Киевскому шоссе, школа и детский сад, две станции метро в пешей доступности — чем привлекателен новый проект в ТиНАО, изучил Новострой-М.
Примечание
В статье перечислены только факты о ЖК, собранные из открытых источников. В рубрике «Экспертиза проекта» Новострой-М решил отказаться от оценочных суждений: право делать выводы из описанных фактов о жилом комплексе мы предоставляем нашим читателям.
Кто строит
ГК МИЦ — один из лидеров строительной отрасли в Московском регионе, девелопер работает на рынке с 2001 года. В 2019 году компания стала первой, полностью перешедшей на проектное финансирование, тогда же вошла в рейтинг Forbes как одна из самых надежных российских девелоперских компаний.
Сегодня в портфеле активов ГК МИЦ — более 5 млн кв. м жилья. В Москве, Новой Москве и Подмосковье девелопер возводит 10 проектов, познакомиться с ними можно на сайте Новострой-М.
Что строят
ЖК «МелиСад» — жилой комплекс комфорт-класса в поселении Мосрентген рядом с деревней Дудкино (Новомосковский административный округ). Девелопер построит четыре корпуса переменной этажности (от 9 до 24 этажей) и учебно-воспитательный комплекс. Общая жилая площадь проекта – свыше 165 тыс. кв. метров.
ЖК «МелиСад» в цифрах
|
№ объекта |
Квартиры |
Энергоэффективность |
Класс |
Подземный паркинг |
Срок сдачи |
|
1 |
566 |
В |
комфорт |
- |
III квартал 2024 года |
Архитектура и дизайн
Монолитные разноэтажные корпуса (9-20-24 этажа) будут выполнены в едином лаконичном стиле, облицовка фасадов — кирпич и керамическая плитка сдержанных естественных оттенков.
Придомовая территория
Проект предусматривает двухуровневое благоустройство территории. Разреженную застройку объединят в парковое пространство с мостом, все дома будут обращены на центральную аллею.






Дворы будут закрыты от машин, в них обустроят детские площадки для разных возрастов, места для занятий спортом и отдыха, сделают пешеходные аллеи. Растения на цветниках будут подобраны таким образом, чтобы они постоянно цвели, сменяя друг друга. Также озеленение включает высадку деревьев и кустарников.
Безопасность
Территория новостройки будет находиться под круглосуточным видеонаблюдением, закрыта от машин.
Нежилые метры
Учебно-воспитательный комплекс включает детский сад на 200 малышей и школу на 475 учеников. Первые этажи корпусов будут нежилыми, здесь откроются различные коммерческие объекты: магазины, аптеки, кафе и пр. Для автомобилей предусмотрены паркинги. Кроме того, на подземном уровне разместятся кладовые.
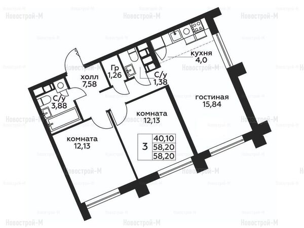
Квартиры и планировки
В ЖК «МелиСад» покупатели смогут выбрать студии, 1-, 2-, 3- и 4-комнатные квартиры. Эксклюзивные форматы представлены лотами с увеличенной высотой потолка и панорамным остеклением, квартирами с окном в ванной комнате. Предусмотрена предчистовая или чистовая отделка.





Площадь комнаты в 1-комнатных квартирах практически одинакова с площадью кухни, то есть комнаты в «однушках» маленькие — не больше 12 кв. м. В то же время имеются отдельные гардеробные площадью до 3,4 кв. м.
2-комнатные квартиры предложены в классическом и евроформате, спальни также отличаются компактностью, в некоторых планировках есть гардеробные. В «двушках» со стандартными планировками — большие кухни (15-16 кв. м) и холлы (около 10,5 кв. м), имеется второй санузел. В угловых «двушках» обе спальни примыкают к кухне.
3-комнатные лоты представлены в евроформате, в каждой такой квартире есть гардеробная и два санузла. Все предложенные «трешки» являются угловыми, с двумя окнами в кухне-гостиной.
Где строят
Жилой комплекс «МелиСад» строят в поселении Мосрентген Новомосковского административного округа. До МКАД — 2 км по Киевскому шоссе.
Ближайшая станция метро, согласно Яндекс.Картам, — «Саларьево» Сокольнической линии, до нее 1,4 км, или 17 минут пешком. Дорога на велосипеде или самокате займет 7-8 минут.
Станции метро, время в пути от ЖК «МелиСад»
• станция метро «Саларьево» — 17 минут пешком, 17-20 минут на общественном транспорте, 7 минут на автомобиле.
• станция метро «Румянцево» — 20 минут пешком, 12-20 минут на общественном транспорте, 7 минут на автомобиле.
Рядом с новостройкой есть автобусная остановка «Саларьево-2», а в перспективе в пос. Мосрентген откроется станция «Тютчевская» Троицкой линии метро. Запуск движения по первому участку этой линии (от МЦК до «Коммунарки») запланирован на 2024 год, к тому времени должны быть введены и корпуса ЖК «МелиСад», поэтому новоселы смогут сразу пользоваться новым метро.
Для автомобилистов есть прямой выезд с Киевского шоссе, доехать до центра Москвы можно за полчаса. Рядом с ЖК проходит улица Адмирала Корнилова, по которой постоянно ездят грузовики — нагрузку создают строительные рынки, автосервисы и различные склады в этой локации. Киевское шоссе тоже всё чаще стоит в пробках.
Экология
В рейтинге от компании EcoStandard поселение Мосрентген получило 3 балла из 10, экологическая обстановка оценивается как благоприятная.
Административный центр поселения — поселок завода Мосрентген — получил название в честь завода, на котором производилась медицинская техника. В 2014 году здесь были проведены работы по рекультивации почвы, а на месте завода планировалось построить технопарк.
Поселение с трех сторон окружено дорогами — МКАД, Киевское и Калужское шоссе. На территории поселения находится Троицкий лесопарк, по соседству — Тропаревский и Бутовский лесопарки, Говоровский лес, заказник Теплый Стан.
Ближе других к ЖК «МелиСад» расположен Тропаревский лесопарк, до него можно дойти пешком за полчаса. До ландшафтного заказника Теплый Стан можно доехать на автомобиле за 10 минут, дорога на общественном транспорте займет 34 минуты.
Инфраструктура
Собственная инфраструктура ЖК «МелиСад» включает учебно-воспитательный комплекс на 675 мест, паркинги, велнесс-коворкинг и коммерческие помещения на первых этажах корпусов. Ближайший детский сад находится в 1,7 км от нашей новостройки — это частное учреждение «Аленушка» в Румянцево, дорога пешком займет 21 минуту. Также в Румянцево расположен частный детский сад Ummaland — 2,23 км от ЖК «МелиСад», 27 минут пешком.
Дошкольное отделение школы №2094 в поселке завода Мосрентген и частный детский центр «Вверх» с детским садом находятся в 2,5 км от ЖК «МелиСад». Несколько детских садов есть в поселении Московский рядом со станцией метро «Саларьево» — отделения школы №2094, частные Rybakov Playschool, Big Boss и «Голливуд», до каждого из них — не больше 3 км от нашей новостройки.
Отделения школы №2094 имеются в поселке завода Мосрентген и поселении Московский, до них не больше 3 км и около 30 минут пешком. Расстояние до школы в ЖК homecity (Румянцево) — 2,5 км.
Филиал №2 детской поликлиники №81 на улице Профсоюзная в районе Теплый Стан расположен в 4,7 км от ЖК «МелиСад».
Ближайшая взрослая поликлиника находится в 2,8 км от нашей новостройки, в поселке завода Мосрентген, она входит в состав филиала №3 городской больницы г. Московский (амбулатория Мосрентген). Еще одна поликлиника расположена в 4 км от ЖК «МелиСад» — филиал №3 ГП №134 на улице Теплый Стан.
На улице Академика Бакулева находится филиал №4 диагностического клинического центра №1 с детской и взрослой поликлиниками. Расстояние от ЖК «МелиСад» — 4,6 км.
Также относительно недалеко имеются медицинские лаборатории и центры, стоматологические клиники находятся в деревне Дудкино и поселке Мосрентген.
До 2024 года в ТиНАО за счет инвесторов планируется построить 8 поликлиник, но все они расположатся на большем расстоянии от ЖК «МелиСад», чем уже работающие.
В пешей доступности от ЖК «МелиСад» есть несколько небольших продуктовых магазинов, ближайший супермаркет «Пятерочка» находится на Киевском шоссе в поселении Московский, до него менее 600 м. ТЦ «Саларьево» расположен в 450 м от новостройки, рынок «Славянский мир» — в 670 м, ТРЦ «Саларис» с кинотеатром — в 1,4 км. До ТЦ Vnukovo Outlet Village — 24 минуты на автомобиле, до «Фуд Сити» и МЕГА на Калужском шоссе — 11-12 минут.
Для занятий спортом в ТРЦ «Саларис» имеется фитнес-клуб DDX Fitness (1,4 км от ЖК «МелиСад»). Спортивный зал Mygym также расположен в БЦ «Комсити», а по соседству с ним есть фитнес-клуб «Зарядка» (до каждого около 20 минут ходьбы).
Безопасность
Новая Москва становится уже не такой безопасной, какой была до присоединения к столице. В новостройки на новых территориях едут в основном молодые покупатели из регионов, которые не могут позволить себе квартиру в «старой» Москве.
Что касается ЖК «МелиСад», то определенное беспокойство может доставить близость рынка «Славянский мир». Поэтому усиленные меры безопасности в самом ЖК (закрытая территория и видеонаблюдение) будут кстати.
Участковый пункт полиции по поселению Мосрентген находится в 2,7 км от новостройки.
Цены в ЖК «МелиСад»
Старт продаж ЖК «МелиСад» был объявлен в мае 2022 года, купить студию с отделкой площадью 22,5 кв. м можно за 6,1 млн рублей. Финансирование строительства осуществляет банк Дом.рф.
Приобрести квартиру в ЖК «МелиСад» можно в ипотеку, в том числе по льготным программам. Новостройка аккредитована в нескольких банках: Сбербанк, ВТБ, Дом.рф, Совкомбанк, Росбанк, Уралсиб и Зенит.
Минимальные ставки предлагает банк Дом.рф: от 5,1% по семейной ипотеке и от 8,1% по программе «Господдержка-2020».
Цены В ЖК «МелиСад»:
|
Тип жилья |
Метраж, кв. м |
Цена, руб. |
Цена за кв. м, тыс. руб. |
|
студии |
22.51 |
14 041 860 |
623.8 |
|
1-комнатные |
46.59 |
19 520 095 |
419 |
|
2-комнатные |
47.92 — 68.41 |
19 531 060 — 24 525 351 |
333.4 — 414.1 |
Конкуренты
Ближайший сосед ЖК «МелиСад» — ЖК «Румянцево-Парк». Это один из немногих проектов бизнес-класса в Новой Москве, два корпуса уже достроены, третий планируется сдать к концу этого года. Новостройка от Lexion Development расположена далеко от метро, однако несомненным плюсом ЖК «Румянцево-Парк» является богатая собственная инфраструктура: два детских сада и школа, различные магазины и сервисы на первых этажах. Цены на квартиры начинаются от 10,4 млн рублей за 1-комнатную квартиру площадью 34,7 кв. м (со скидкой — от 10,1 млн рублей).
Цены в ЖК «Румянцево-Парк»:
|
Тип жилья |
Метраж, кв. м |
Цена, руб. |
Цена за кв. м, тыс. руб. |
Нет в продаже | |||
Более бюджетный вариант — ЖК «Саларьево парк». Масштабный проект комфорт-класса от компании ПИК строится рядом со станцией метро «Филатов Луг», большинство корпусов уже введены в эксплуатацию. Здесь уже работают школа и четыре детских сада. Квартиры реализуются с отделкой, самый доступный вариант — студия площадью 19,7 кв. м за 6,8 млн рублей.
Цены в ЖК «Саларьево парк»:
|
Тип жилья |
Метраж, кв. м |
Цена, руб. |
Цена за кв. м, тыс. руб. |
|
студии |
21.80 — 33.20 |
10 445 100 — 15 355 000 |
391.1 — 488.2 |
|
1-комнатные |
30.50 — 45.40 |
12 955 070 — 17 772 480 |
335.7 — 484.5 |
|
2-комнатные |
44.20 — 74.10 |
16 311 490 — 26 335 140 |
314.4 — 425 |
|
3-комнатные |
60.30 — 91.30 |
20 580 390 — 32 434 260 |
301.7 — 397.5 |
Также неподалеку расположен ЖК homecity от компании «Дельтаком». Комплекс бизнес-класса уже достраивается (ввод запланирован на III квартал текущего года), поэтому цены довольно высокие – от 9,9 млн рублей. Проект отличается небольшой этажностью (максимум 9 этажей) и пешей доступностью метро «Румянцево» – до него 12 минут ходьбы.
Цены в ЖК homecity:
|
Тип жилья |
Метраж, кв. м |
Цена, руб. |
Цена за кв. м, тыс. руб. |
Нет в продаже | |||
Резюме
ЖК «МелиСад» будет построен в 17 квартале поселения Мосрентген, на территории бывшего строительного рынка «Строймастер».
Плюсы ЖК «МелиСад»:
- перспективная локация: открытие станции метро рядом с домом;
- московская прописка;
- различные планировки,
- возможность выбрать квартиру с чистовой или предчистовой отделкой;
- детский сад и школа на территории ЖК;
- продуманное благоустройство.
Минус — неважная доступность метро. Если до станции «Саларьево» есть пешеходная дорожка, то к «Румянцево» часть пути проходит вдоль улицы Корнилова и Киевского шоссе, где нет пешеходной тропы. Путь до метро сократится только после открытия перспективной станции «Тютчевская».
Кроме того, по соседству с будущим ЖК находятся различные автосервисы и склады. Пока не понятно, будут ли эти предприятия перенесены в другую локацию, сейчас они являются скорее неприятным фактором при принятии решения о покупке жилья поблизости.
Негативное влияние оказывают улица Адмирала Корнилова и развязка с Киевским шоссе — шум и автомобильные выхлопы, дорожные заторы.
Эксперты называют поселение Мосрентген перспективной локацией — близость к «старой» Москве, продолжающееся развитие территорий позволяют прогнозировать, что к моменту сдачи новостройки в эксплуатацию ее транспортная доступность и окружение улучшатся, и проект существенно вырастет в цене.
Разнообразие планировок и наличие отделки в квартирах делают ЖК «МелиСад» привлекательным для покупателей, которые не хотят тратить дополнительные средства на ремонт. Семьям с детьми понравится наличие детского сада и школы, а продуманное благоустройство оценят все жители жилого комплекса.
Дата публикации 08 июня 2022