Премиальный клубный квартал «Крылатская 33» возводится в районе Крылатское на западе Москвы. Жилой комплекс в окружении парков и спортивных (в том числе олимпийских) объектов, насыщенная собственная и районная инфраструктура, разнообразные планировки квартир, живописные виды из окон — эти и другие плюсы нового проекта изучил Новострой-М.
Примечание
В статье перечислены только факты о ЖК, собранные из открытых источников. В рубрике «Экспертиза проекта» Новострой-М решил отказаться от оценок и оценочных суждений: право делать выводы из описанных фактов о жилом комплексе мы предоставляем нашим читателям.
Кто строит
Застройщиком квартала выступает ООО «СЗ «Сияние», относящееся к компании «Строй «Сервис». В настоящее время «Крылатская 33» — единственный проект девелопера.
Что строят
Квартал «Крылатская 33» состоит из семи разноэтажных секций: от малоэтажных высотой до 42 метров до небоскреба высотой 150 метров. Для автомобилей предусмотрен двухуровневый подземный паркинг и гостевые парковки. Ввод жилого комплекса в эксплуатацию запланирован на II квартал 2027 года.
ЖК «Крылатская 33» в цифрах*:
|
№ объекта |
Квартиры |
Энергоэффективность |
Машино-места |
Класс |
Срок сдачи |
|
1 |
755 |
А |
271 |
премиум |
II квартал 2027 г. |
*данные из проектной декларации
Архитектура и дизайн
Над проектом работали архитекторы известного бюро «Остоженка». Секции переменной высоты создадут запоминающийся силуэт, а небоскреб станет новой архитектурной доминантой района.







Благоустройство
На придомовой территории разместятся детский плейхаб, спортивные зоны, гипоаллергенный сад, медитативные и водные пространства.
Нежилые метры
Резидентам будут доступны келлеры для хранения вещей, лапомойки, колясочные, зоны для сушки гидрокостюмов и горнолыжной экипировки, помещение для мойки велосипедов и самокатов.
Безопасность и технологии
Общественные пространства будут оснащены видеонаблюдением, вход на территорию квартала производится по Face ID или гостевой карте. Предусмотрена система пожаротушения.
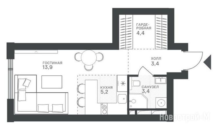
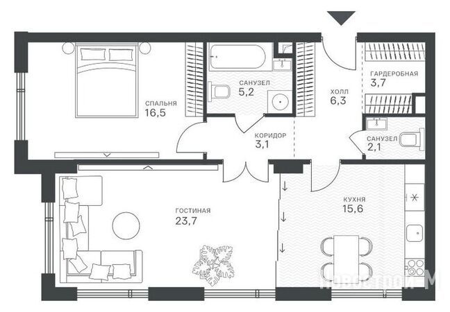
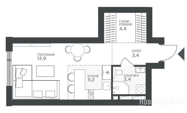
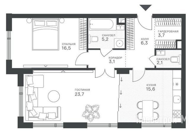
Квартиры и планировки
В ЖК «Крылатская 33» представлены разнообразные планировки квартир: от студий площадью 28,1 кв. м до пентхауса. Есть варианты евроформата и с патио-террасами. Все квартиры продаются без отделки. Из окон на верхних этажах откроются виды на Москву-реку, Живописный мост, Ермогеновский храм и городские пейзажи.
В конце марта 2025 года в продаже имеются варианты от студий площадью 28,1 кв. м до 4-комнатных площадью 137,6 кв. м.
Планировки студий достаточно типовые, однако в некоторых таких квартирах есть гардеробные. В большинстве 1-комнатных тоже есть гардеробные и уже встречаются мастер-спальни, а также варианты с двумя санузлами. Планировки студий — линейные, однушек — линейные и угловые.





2-комнатные квартиры предложены в евроформате — с двумя спальнями и кухней-гостиной. В них предусмотрено в основном по два санузла, есть лоты с отдельной гардеробной, с мастер-спальней и постирочной. Планировки — линейные, угловые и «распашонки». 3-комнатные квартиры предлагаются в классическом и евроформате, с несколькими санузлами и мастер-спальнями. Планировки — линейные, угловые и «распашонки».
В 4-комнатных квартирах также есть несколько санузлов, гардеробные и мастер-спальни. Окна таких квартир выходят на две или три стороны света.
Где строят
ЖК «Крылатская 33» строят на территории площадью 1,4 га на месте открытой парковки на пересечении улиц Крылатская и Осенняя в районе Крылатское на западе Москвы. Ближайшая станция метро — «Крылатская» — расположена в 1,5 км от новостройки, дойти до нее можно за 15-18 минут.
Станции метро, расстояние от ЖК «Крылатская 33»:
• станция метро «Крылатская» — 15-18 минут пешком.
Недалеко от жилого комплекса есть остановки общественного транспорта, на автобусе можно доехать до станций метро «Молодежная», «Краснопресненская» и «Полежаевская».
Для автомобилистов есть выезд на проспект Маршала Жукова, по которому можно добраться как в центр Москвы, так и за пределы МКАД. Так, дорога до Садового кольца и «Москва-Сити» займет 15 минут, до аэропорта Внуково — 20-30 минут, до аэропорта Шереметьево — 30-40 минут.
Экология
Район Крылатское является одним из самых экологически чистых не только на западе столицы, но и во всей Москве — эксперты компании EcoStandard присвоили ему 2 балла из 10, что соответствует оптимальной экологической обстановке. На территории Крылатского нет промзон, а самая крупная трасса — Рублевское шоссе — проходит по окраине района. В самом районе и по соседству много больших зеленых зон: природно-исторический парк Москворецкий, Серебряный бор, Ромашковский лес, парк Крылатские Холмы, Ботанический сад Сеченовского университета и пр.
Рядом с нашей новостройкой есть несколько зеленых зон, в том числе Крылатский парк, Парк Звезд и набережная Москвы-реки (до них можно дойти за 5-7 минут), немного дальше расположены Серебряный бор и природно-исторический парк Москворецкий.
Инфраструктура
В ЖК «Крылатская 33» предусмотрена довольно насыщенная собственная инфраструктура. На первых этажах домов откроются магазины, пункты выдачи заказов, аптека, химчистка, салон красоты. Общественные пространства включают коворкинг с кофе-баром, welness-центр с фитнес-залом и массажными кабинетами, friend`s lab для проведения мероприятий, ресторан с панорамным остеклением. Также появится частный детский сад.
В окружении новостройки также есть вся необходимая инфраструктура. Так, несколько детских садов работают в ЖК «Долина грез»: частные учреждения Ng Kids и Petit, одно из дошкольных отделений школы №1440. Дорога пешком до них займет не больше 15 минут. Правда, идти нужно вдоль Крылатской улицы — прямой дороги нет.
На улице Крылатские Холмы, 30 корп. 6 и 28 корп. 2 и 3 находятся дошкольные группы школы №1593, до них 9-12 минут ходьбы, причем часть пути — через Крылатский парк. На этой же улице есть детсад «Вин-Вид Кидс», до него 9 минут ходьбы.
Что касается школ, то ближе других к новостройке расположены здания №№1 и 2 школы №1593 и два корпуса школы №1371 «Крылатское». Дорога пешком до них займет от 8 до 20 минут.
Ближайшая детская поликлиника находится на Осеннем бульваре, 19, это филиал №1 поликлиники №130. До него чуть больше 1 км, пройти это расстояние можно за 13 минут. На улице Крылатские Холмы находятся головное здание поликлиники для взрослых №195 и платное отделение женского здоровья и планирования семьи той же поликлиники. Это около 1 км от нашей новостройки или порядка 12 минут пешком. Кроме того, в пешей доступности от ЖК «Крылатская 33» есть частные клиники (в том числе стоматологические) и лаборатории.
С продуктовыми магазинами в локации всё хорошо: недалеко от нашей новостройки есть сетевые супермаркеты «Верный», «ВкусВилл», «Пятерочка» и «Перекресток».
Что касается возможностей для занятий спортом, то жителям ЖК «Крылатская 33» можно позавидовать: совсем рядом есть спортклуб Titanbjj, специализирующийся на бразильском джиу-джитсу, школа танцев Art Force Crew и студия растяжки и хореографии. Кроме того, неподалеку функционируют стадион, множество спорткомплексов, велотрек, гребной канал с бассейном и всесезонный горнолыжный комплекс «Лата Трек». Часть объектов была построена к Олимпиаде 1980 года.
Чтобы увидеть объекты, нажмите на соответствующую кнопку внизу карты:
Безопасность локации
Крылатское сложно назвать одним из самых криминальных районов Москвы, однако, судя по отчету начальника районного отдела МВД за 2024 год, в прошлом году число зарегистрированных преступлений выросло на 24,5% по сравнению с 2023 годом и составило 878. При этом число правонарушений, совершенных в общественных местах, за год сократилось со 183 до 175.
В 4 минутах ходьбы от ЖК «Крылатская 33» расположен участковый пункт полиции (ул. Крылатская, 31 корп. 2), до отдела МВД по району Крылатское на ул. Осенняя, 15 — 11 минут пешком.
Цены и способы покупки
Продажи квартир в ЖК «Крылатская 33» стартовали в конце 2024 года. В конце марта 2025 года самое доступное предложение — студия без отделки площадью 30,1 кв. м за 16,1 млн рублей.
Цены в ЖК «Крылатская 33»:
|
Тип жилья |
Метраж, кв. м |
Цена, руб. |
Цена за кв. м, тыс. руб. |
|
студии |
28.50 — 35.00 |
21 778 988 — 26 854 800 |
736 — 790.3 |
|
1-комнатные |
48.50 — 66.80 |
34 583 375 — 51 836 250 |
580 — 862.5 |
|
2-комнатные |
42.16 — 104.30 |
44 470 320 — 96 952 574 |
580 — 1822.1 |
|
3-комнатные |
64.38 — 118.30 |
59 162 900 — 124 889 310 |
667 — 1754.5 |
|
4-комнатные |
110.70 — 146.60 |
79 988 278 — 146 167 530 |
720.2 — 1053.4 |
|
многокомнатные |
388.24 |
457 440 675 |
1178.2 |
Купить квартиру можно в рассрочку под 0% на два года, а также в ипотеку, ее предоставляют банки Уралсиб, Дом.рф, Московский кредитный банк, Металлинвестбанк, Совкомбанк, Сбербанк, Абсолют Банк, МТС Банк, Т-Банк, Сургутнефтегазбанк, Альфа-Банк, АТБ, ВТБ, Россельхозбанк, ТрансКапиталБанк, Ак Барс Банк.
Данные об условиях кредитования действительны на момент публикации статьи. Актуальную информацию вы всегда можете найти в карточке проекта.
Конкуренты
В Крылатском, помимо ЖК «Крылатская 33», сейчас ведется строительство только одного жилого комплекса — «Дом Горизонтов». Также анонсирован скорый старт проекта на Крылатских Холмах.
«Дом Горизонтов» — это проект девелопера Touch. Клубный дом премиум-класса возводится недалеко от ЖК «Крылатская 33», он состоит из одного корпуса на 135 квартир и 7 пентхаусов, ввод в эксплуатацию запланирован на IV квартал 2027 года.
Цены в ЖК «Дом Горизонтов»:
|
Тип жилья |
Метраж, кв. м |
Цена, руб. |
Цена за кв. м, тыс. руб. |
|
1-комнатные |
44.14 — 54.02 |
37 790 000 — 84 970 000 |
815.8 — 1572.9 |
|
2-комнатные |
65.91 — 95.91 |
52 330 000 — 143 330 000 |
786.2 — 1494.4 |
|
3-комнатные |
88.68 — 127.37 |
76 620 000 — 190 400 000 |
791.6 — 1494.9 |
|
4-комнатные |
138.14 — 227.03 |
127 160 000 — 339 300 000 |
920.5 — 1494.6 |
На сайте проекта цены предлагается узнать по запросу, а по данным ЕИСЖС средняя цена «квадрата» здесь составляет 679 тыс. рублей (в ЖК «Крылатская 33» — 495,5 тыс. рублей).
Резюме
ЖК «Крылатская 33» строится в престижном районе, в котором сейчас мало новостроек. Это шанс для тех, кто хочет жить в новом доме в Крылатском.
Плюсы ЖК «Крылатская 33»:
• экологически чистый район, множество зеленых зон по соседству;
• собственная инфраструктура и благоустроенная территория;
• различные объекты инфраструктуры в окружении, в том числе спортивные;
• разнообразные планировки квартир, приятные виды из окон.
Среди недостатков проекта можно отметить отдаленность от метро и малое количество мест в подземном паркинге: всего 271 на 755 квартир.
Дата публикации 01 апреля 2025