В конце марта 2024 года компания October Group вывела на рынок жилой комплекс King & Sons. Премиальный клубный дом строят на Мосфильмовской улице в Раменках. Уютный обжитой район, близость парков, панорамные виды, камерность и приватность — эти и другие особенности проекта изучил Новострой-М.
Примечание
В статье перечислены только факты о проекте, собранные из открытых источников. В рубрике «Экспертиза новостройки» Новострой-М решил отказаться от оценок и оценочных суждений: право делать выводы из описанных фактов мы предоставляем нашим читателям.
Кто строит
October Group — один из самых молодых девелоперов Москвы, компания была создана в 2020 году специалистами с многолетним опытом работы. Сейчас в портфеле October Group два проекта, оба — в Раменках. Это комплексы «Stories на Мосфильмовской» и King & Sons. Сооснователь компании Марина Маловик рассказала в интервью РБК, что в мае у девелопера появился третий проект, самый сложный — многофункциональный комплекс с Музыкальным театром будущего им. И. Д. Кобзона. На данный момент у October Group нет полностью реализованных проектов, поэтому судить о надежности и пунктуальности девелопера можно будет после ввода первых домов.
Что строят
Клубный дом King & Sons позиционируется как фамильная ценность, квартиры в котором передаются по наследству — как бриллианты или произведения искусства. Большинство квартир в 15-этажном здании имеют панорамные окна, что обеспечит отличные виды на высотку МГУ и Ботанический сад, посольский квартал и парки, небоскребы «Москва-Сити». Для автомобилей есть одноуровневый подземный паркинг (соотношение числа мест к количеству квартир — почти 1:1), коммерческих помещений под ретейл не предусмотрено.
ЖК King & Sons в цифрах*:
|
Объект |
Квартиры |
Энергоэффект. |
Класс |
Машино-места |
Срок сдачи |
|
1 |
117 |
В |
премиум |
110 |
I кв. 2027 г. |
*По данным из проектной декларации
Архитектура и дизайн
Архитектурный облик дома разработали в бюро Nikken, штаб-квартира которого находится в Японии. Идея концепции проекта — искусство оригами, способное передать красоту, скрытую в складках бумаги.












Облик дома напоминает открытый японский веер, что позволило увеличить число видовых лотов. Премиальную выразительность проекта подчеркивают фасады из натурального светлого камня, мягкие формы здания, максимально открытое моллированное остекление.
Премиальные решения общественных пространств вдохновлены японской культурой shinrin-yoku (дословно: «искусство гулять по лесу»). На первом этаже будет создано специальное пространство – секретный сад, наполненный экзотическими растениями и вечнозелеными деревьями.
Зимний сад появится также и в центральном лобби, где интерьер будет оформлен в японском стиле.
Предполагается, что на первых этажах здания не будет привычных коммерческих помещений. Однако будет инфраструктура, доступная только резидентам: спортзал, кинотеатр и место для йоги на крыше. На подземных уровнях разместятся паркинг и кладовые.




Площадь внутреннего двора — 0,45 га. Здесь разместятся несколько террас с детскими и спортивными площадками, местами для медитации и уединения.
Безопасность и технологии
Территория ЖК King & Sons будет закрыта от посторонних, для резидентов и гостей — автоматический въезд. Предусмотрены системы охранной безопасности и контроля доступа, система пожаротушения.
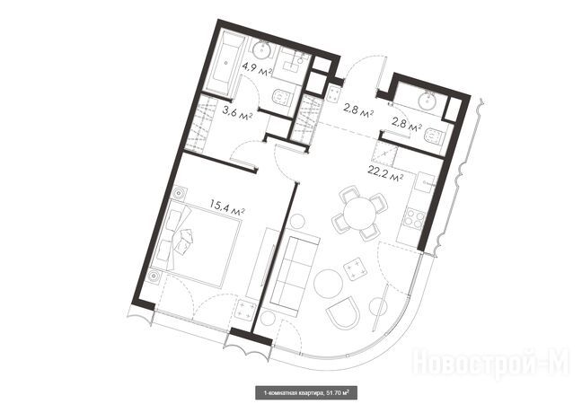
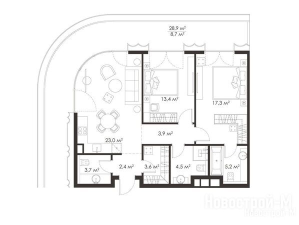
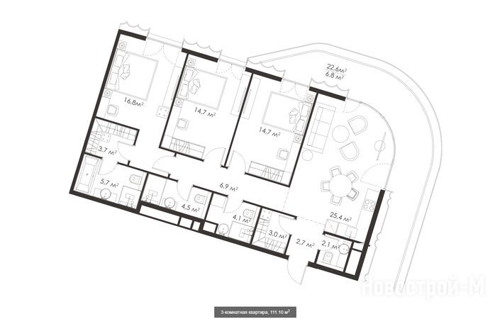
Квартиры и планировки
В King & Sons будет всего 117 квартир, включая варианты с террасами (на них приходится 70% предложения), патио и пентхаусы. Высота потолков — от 3,2 м до 4,7 м в квартирах с патио.
Планировки с патио предусмотрены на первых этажах, где также будет организован отдельный собственный выход во двор.



Сейчас (июнь 2024 года) для покупки доступны квартиры на нескольких средних этажах, в продаже есть лоты площадью от 50,1 до 111,1 кв. м, это варианты от 1- до 3-комнатных. В каждой квартире есть мастер-спальня и кухня-гостиная, в ряде планировок имеются ниши под гардероб или отдельные гардеробные, балконы или террасы. Планировки — линейные и угловые.
Квартиры в основном правильной формы, но есть и варианты с непрямыми углами.




Где строят
ЖК King & Sons строится в одном из самых престижных районов на западе Москвы — Раменки.
Ближайшая станция метро — «Ломоносовский проспект» Солнцевской линии. Она расположена в 850 м или 10 минутах ходьбы от нашей новостройки.
Станции метро, время в пути от ЖК King & Sons:
Однако премиальный статус жилого комплекса предполагает, что ее резиденты скорее будут пользоваться личным автотранспортом или такси.
Для автомобилистов появятся выезды на Мосфильмовскую улицу. Неизбежны пробки на пересечении улиц Мосфильмовская и Минская, а также утренние и вечерние заторы при выезде на ТТК. В обычное время выезд на ТТК займет около 8 минут, путь до Садового кольца – порядка 15 минут.
Экология
В экологическом рейтинге от EcoStandard Раменкам присвоено 6 баллов из 10, экологическая обстановка здесь оценивается как приемлемая. В Раменках нет промышленных предприятий и товарных ж/д станций, основное негативное влияние на атмосферу оказывает загруженность автодорог. При этом здесь много зеленых зон — Воробьевы горы, Ботанический сад МГУ, парк им. 50-летия Октября, долины рек Сетунь и Раменки.
King & Sons строится прямо возле парка перед посольством КНР, также неподалеку расположены Ботанический сад и Большой газон МГУ, Воробьевы горы.
Инфраструктура
Собственная инфраструктура King & Sons включает спортзал, сад на первом этаже и кинотеатр на крыше. Проект расположен в развитой обжитой локации, в окружении есть всё необходимое.
Совсем рядом находится детский сад №82 МГУ, однако получить путевку в него сложно: сюда принимают в первую очередь детей сотрудников и студентов университета.
Рядом с этим детским садом работает дошкольное отделение школы №1586 — на улице Дружбы, 4 к.3. До него 510 м или 6 минут пешком. Учебные корпуса №№1 и 2 этой же школы тоже совсем рядом — до корпуса №1 на улице Дружбы, 8 можно дойти за 6 минут, до корпуса №2 на улице Мосфильмовская, 21 — за 5 минут.
На улице Мосфильмовская, 27а работает филиал №2 детской поликлиники №131, в соседнем здании (Мосфильмовская, 29а) — филиал №2 поликлиники для взрослых №209. До обеих — 3-5 минут пешком.
В окружении ЖК King & Sons работают супермаркеты «Дикси», «ВкусВилл», «Мираторг», в том числе круглосуточные, а также продуктовые магазины «Авокадо» и другие.
В одном из соседних домов (Мосфильмовская, 25) работает фитнес-студия Proart-Fit, ее особенность — индивидуальные тренировки. Дойти до нее от ЖК King & Sons можно меньше чем за 5 минут. Также по соседству открыт спортивный комплекс «Мосфильмовский», каток «Лед» и теннисный клуб MF41. Московский городской гольф-клуб на улице Довженко расположен в 2 км от King & Sons — 23 минуты пешком или 6 минут на автомобиле. До World Class на Мосфильмовской – 5 минут езды.
Безопасность района
Раменки — один из самых благополучных районов Москвы, на социальную обстановку благоприятно влияет расположение на территории района МГУ и посольского квартала, а также отсутствие промзон.
Ближайший к King & Sons участковый пункт полиции расположен на Университетском проспекте, 21к3, в 8 минутах ходьбы от нашей новостройки.
Цены и способы покупки
Продажи квартир в ЖК King & Sons начались в конце марта 2024 года. На официальном сайте проекта цену большинства лотов, которые сейчас в экспозиции, предлагается узнать по запросу. На некоторые квартиры цены указаны — от 50,8 млн рублей за 1-комнатную квартиру площадью 57,1 кв. м.
Цены в ЖК King & Sons:
|
Тип жилья |
Метраж, кв. м |
Цена, руб. |
Цена за кв. м, тыс. руб. |
|
1-комнатные |
51.20 — 60.20 |
74 240 000 — 93 155 000 |
1400 — 1550 |
|
2-комнатные |
80.20 |
116 290 000 |
1450 |
|
3-комнатные |
108.50 — 111.40 |
159 065 000 — 180 127 315 |
1450 — 1616.9 |
Способы покупки на данный момент не уточняются.
Данные об условиях приобретения недвижимости действительны на момент публикации статьи. Актуальную информацию вы всегда можете найти в карточке проекта.
Конкуренты
В Раменках сегодня строится много жилья, большинство проектов относятся к классам «бизнес» и «премиум».
Ближайший конкурент ЖК King & Sons – элитный ЖК «Вишневый сад», расположенный также на Мосфильмовской улице, в 1 километре от нашей новостройки. Часть корпусов здесь уже введены в эксплуатацию, еще три дома последней (третьей) очереди будут сданы в конце 2024 года. Этот проект отличается небольшой этажностью (8–12 этажей), наличием собственной инфраструктуры (спа-комплекс, два фитнес-клуба, ресторан, центр развития ребенка и др.), просторным паркингом (460 мест на 209 квартир), ряд квартир имеют прямой вид на парк. Стоимость жилья здесь также предлагается узнавать по запросу.
Цены в ЖК «Вишневый сад»:
|
Тип жилья |
Метраж, кв. м |
Цена, руб. |
Цена за кв. м, тыс. руб. |
|
1-комнатные |
79.00 |
125 119 900 |
1583.8 |
|
2-комнатные |
117.00 — 166.00 |
175 770 000 — 294 448 350 |
1502.3 — 1974.1 |
|
4-комнатные |
150.00 |
281 072 850 — 295 006 950 |
1873.8 — 1966.7 |
|
многокомнатные |
200.00 — 524.00 |
246 204 000 — 1 460 348 700 |
1201 — 2786.9 |
Еще один конкурент в Раменках — дом Legacy. Премиальный проект компании Tashir Development на Мичуринском проспекте рядом с метро «Раменки» скоро будет введен в эксплуатацию. Legacy — это 9 секций высотой от 9 до 16 этажей с внутренним двором-сквером. Как и в King & Sons, здесь нет магазинов на первых этажах. Сейчас в продаже квартиры от евродвушек площадью 40,2 кв. м до 127-метровых лотов с тремя спальнями и кухней-гостиной, с отделкой white box или без отделки. Цены — от 27 млн рублей за 2-комнатную квартиру площадью 43,3 кв. м.
Цены в ЖК Legacy:
|
Тип жилья |
Метраж, кв. м |
Цена, руб. |
Цена за кв. м, тыс. руб. |
|
2-комнатные |
44.00 — 71.60 |
36 777 569 — 59 661 344 |
699.2 — 862.1 |
|
3-комнатные |
77.00 — 123.00 |
53 376 708 — 116 293 548 |
645.8 — 945.5 |
|
4-комнатные |
108.40 — 200.53 |
72 062 500 — 234 600 649 |
609 — 1169.9 |
Элитный комплекс клубного формата «Река» компания «Донстрой» возводит недалеко от метро «Мичуринский проспект» рядом с парком «Событие». В трех корпусах высотой 6–12 этажей предлагаются квартиры с потолками до 4,5 метра, из окон большинства лотов открываются виды на парк. В продаже представлены варианты площадью от 54,7 до 275,6 кв. м, в основном без отделки.
Цены в доме «Река»:
|
Тип жилья |
Метраж, кв. м |
Цена, руб. |
Цена за кв. м, тыс. руб. |
|
1-комнатные |
52.10 — 65.00 |
57 775 300 — 75 205 000 |
991 — 1157 |
|
2-комнатные |
81.00 — 96.60 |
76 302 000 — 95 472 000 |
863 — 1020 |
|
3-комнатные |
108.90 — 213.30 |
95 520 800 — 359 623 800 |
844 — 1686 |
|
4-комнатные |
150.50 — 255.40 |
128 978 500 — 367 265 200 |
847 — 1765 |
|
многокомнатные |
178.90 — 252.50 |
177 425 864 — 251 558 800 |
897.9 — 1402.2 |
Более бюджетный вариант — ЖК Will Towers от компании «Минские холмы». Жилой комплекс бизнес-класса расположен на пересечении улицы Мосфильмовская и проспекта Генерала Дорохова, он позиционируется как семейный, здесь предусмотрены коммерческие помещения на первых этажах, детский сад и прогулочная набережная. Три небоскреба первой очереди также скоро будут сданы в эксплуатацию. В продаже имеются варианты от студий площадью 25,5 кв. м до 2-комнатных пентхаусов с террасой площадью 115,4 кв. м. Цены — от 14,2 млн рублей.
Цены в ЖК Will Towers:
|
Тип жилья |
Метраж, кв. м |
Цена, руб. |
Цена за кв. м, тыс. руб. |
|
2-комнатные |
51.30 — 80.60 |
27 999 351 — 42 216 140 |
482.9 — 584.9 |
|
3-комнатные |
72.80 — 86.00 |
37 303 377 — 44 664 898 |
471.6 — 521 |
|
4-комнатные |
111.30 — 116.20 |
49 527 815 — 55 444 237 |
443.4 — 498.2 |
Готовую квартиру можно купить в Собрании клубных домов West Garden от компании Sminex. Дома премиум-класса построены на проспекте Генерала Дорохова рядом с Матвеевским лесом, долинами рек Сетунь и Раменки, Мосфильмовским прудом. Высота зданий не превышает 14 этажей, есть несколько детских площадок и детская игровая комната, спортивные площадки и фитнес-центр. Для покупки доступны варианты от 27-метровых студий до пентхаусов площадью больше 190 кв. м, цены — от 17 млн рублей.
Цены в ЖК West Garden:
|
Тип жилья |
Метраж, кв. м |
Цена, руб. |
Цена за кв. м, тыс. руб. |
|
1-комнатные |
27.00 — 52.40 |
23 500 000 — 49 430 000 |
870.4 — 1033.1 |
|
2-комнатные |
68.40 — 77.40 |
56 520 000 — 67 860 000 |
802.7 — 930.9 |
|
3-комнатные |
91.70 — 100.00 |
65 600 000 — 102 930 000 |
711.5 — 1029.3 |
|
4-комнатные |
125.60 — 152.40 |
122 570 000 — 152 360 000 |
851.2 — 1043.9 |
Еще один сданный проект — ЖК «Настоящее» на Винницкой улице рядом с метро «Раменки». Жилой комплекс бизнес-класса от «Центр-Инвест» состоит из четырех корпусов высотой от 8 до 28 этажей, на первых этажах работают магазины, кафе, аптеки и другие объекты инфраструктуры. В продаже есть варианты от студий площадью 35,1 кв. м до 5-комнатных евроформата площадью 126,5 кв. м. Цены — от 21,6 млн рублей.
Цены в ЖК «Настоящее»:
|
Тип жилья |
Метраж, кв. м |
Цена, руб. |
Цена за кв. м, тыс. руб. |
Нет в продаже | |||
Резюме
Похоже, что у ЖК King & Sons нет серьезных недостатков — за исключением высокой стоимости квартир и отсутствия коммерции на первых этажах. Однако это полностью оправдывается высоким классом и камерностью проекта — тем, кто может позволить себе покупку квартиру в King & Sons, намного важнее приватность.
Клубный дом будет построен в престижном зеленом районе в окружении парков и малоэтажных домов. Отсутствие привычного ретейла на первом этаже делает его еще более безопасным, здесь точно не будет посторонних.
Проект подойдет тем, кто готов вложиться в квартиру как в семейную реликвию, которую можно передавать по наследству. В King & Sons нет студий, в то же время планировки позволяют приобретать здесь жилье не только для семейного проживания, но и для человека без пары.
Дата публикации 18 июня 2024