ЖК «Аникеевский» – это малоэтажный квартал комфорт-класса, объединивший преимущества жизни за городом и удобство городских квартир. Комплекс из 10 домов расположен в центре зеленого массива в 12 км от МКАД в окружении реликтового леса и при этом недалеко от станции МЦД. Чем интересны проект и его локация, разбирался Новострой-М.
Примечание
В статье перечислены только факты о ЖК, собранные из открытых источников. В рубрике «Экспертиза проекта» Новострой-М решил отказаться от оценок и оценочных суждений: право делать выводы из описанных фактов о жилом комплексе мы предоставляем нашим читателям.
ГК «Гранель» — одна из крупнейших девелоперских компаний России, которая специализируется на строительстве жилых комплексов, а также коммерческой недвижимости. В портфеле компании 6,5 млн кв. метров недвижимости, 2,2 млн кв. метров жилья для 50 тысяч семей уже построено, также возведено 100 тыс. кв. метров социальной инфраструктуры.
По объему текущего строительства компания входит в топ-10 по России и в топ-5 по Московской области. Компания включена в список системообразующих организаций России.
ГК «Гранель» выполняет не только свои обязательства перед потребителем, но и берется за достройку объектов недобросовестных застройщиков. В числе законченных проектов: ЖК «Квартал Лукино», ЖК «Малина», ЖК «Эстет», ЖК на Тарасовской 14, ЖК «Квартал Европа», ЖК «Новокосино-2», «Опалиха Парк» и ЖК «Высокие Жаворонки».
Жилой комплекс «Аникеевский» – это жилые дома высотой 4-14 этажей, с благоустроенными дворами, закрытыми от машин, спортивными и детскими площадками. Продажи квартир на данный момент ведутся в 10 корпусах двух очередей. На первых этажах зданий разместятся магазины, службы сервиса, кафе, аптеки, банки. Для автомобилей предусмотрены наземные парковки.
Застройщик также планирует возведение объектов социальной инфраструктуры: школы, детского сада и поликлинического отделения.
ЖК «Аникеевский» в цифрах:
ЖК «Аникеевский» – это дома переменной этажности, высотой не более 14 этажей, выстроенные в форме приватных кварталов. Каждый дом имеет закрытое внутреннее пространство без машин, с благоустроенными зонами для отдыха и детских игр. Получается уютный и безопасный двор, который полностью просматривается из окон квартир.






Все фасады комплекса будут оформлены в едином стиле и цветовой гамме. Для отделки выбраны бежевые, песочные и коричневые тона, которые, по мнению архитекторов проекта, наиболее гармонично впишутся в природный ландшафт.
На фасадах предусмотрены корзины под кондиционеры.
Комплекс отличается невысокой плотностью застройки. Вся территория вокруг домов, а также внутри дворов будет благоустроена с учетом потребностей разных категорий жителей. Здесь будут оборудованы пешеходные дорожки для прогулок, зоны с лавочками для спокойного отдыха, спортивные и детские площадки.



Ландшафтный дизайн территории перекликается с окружающим хвойным лесом. Для того, чтобы комплекс гармонично вписался в природный ландшафт, при озеленении будут высажены вечнозеленые деревья и кустарники: сосны, ели и можжевельник.
В ЖК предусмотрена возможность подключения к высокоскоростному интернету и кабельному телевидению. Территория будет закрыта от доступа посторонних и въезда автомобилей.
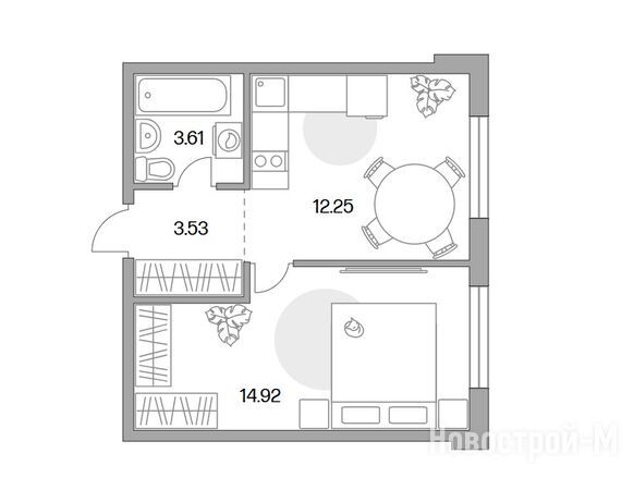
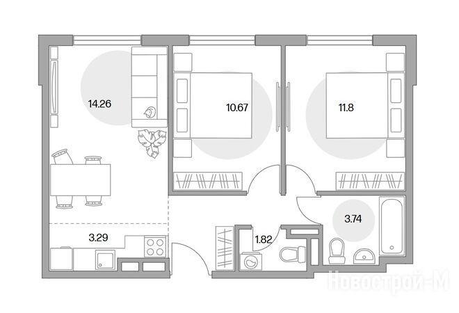
В проекте предлагаются квартиры-студии, однокомнатные, двух- и трехкомнатные квартиры евроформата площадью от 21 до 64 кв. м. Здесь стоит отметить, что количество комнат в данном жилом комплексе исчисляется с учетом кухни-гостиной, по евростандарту. Приобретая «двухкомнатную» квартиру, покупатель получает только одну изолированную спальню и одну кухню-гостиную, которая может быть разделена на два самостоятельных помещения посредством возведения перегородок (это остается на усмотрение владельца и выполняется его силами). В то же время есть и варианты классических «однушек», но их немного.




Санузлы в студиях и «двушках» в основном совмещенные, в 3-комнатных лотах – раздельные. Есть также варианты «двушек» с раздельным санузлом. «Трёшки» спроектированы как с распашной, так и с линейной планировкой. Окна выходят на две стороны. Балконов и лоджий в квартирах не предусмотрено. Высота потолков – 2,7 - 2,8 м в зависимости от корпуса.






Жилье реализуется в основном без отделки, за исключением корпуса 13, в котором застройщик выполнит ремонт под ключ. Покупатели могут выбрать один из двух вариантов чистовой отделки: в светлых или темных тонах.
Жилой комплекс возводится недалеко от деревни Николо-Урюпино городского округа Красногорск – это Новорижское и Волоколамское направление. Рядом располагаются два крупных поселка с развитой инфраструктурой – Нахабино и Опалиха, две крупные транспортные магистрали – Волоколамское и Новорижское шоссе.
Расстояние до МКАД – 12 км, дорога на машине займет около 20 минут без учета пробок. Примерно столько же времени потребуется, чтобы доехать до ближайшей станции метро «Строгино». Путь до станций «Мякинино», «Волоколамская», «Тушинская» займет около получаса. В час пик время в пути может увеличиться вдвое.
Станции метро, время в пути от ЖК:
После масштабной реконструкции развязок и подъездов пробок на Волоколамском шоссе стало меньше, но общая загруженность дорог как в направлении Москвы, так и на выезд остается высокой.
Альтернативой личному транспорту может стать МЦД-2. В шаговой доступности от новостройки находится станция Аникеевка (около 25 минут пешком или 8 минут на авто от корпусов первой очереди и 12-15 минут ходьбы от корпусов второй очереди). Поезда курсируют каждые 5 минут, на них можно с комфортом доехать до станций метро «Волоколамская» и «Тушинская». Линия МЦД-2 позволяет пересесть на 13 станций метро, 2 станции МЦК и 7 станций радиальных направлений МЖД.
В перспективе на Новорижском шоссе откроется станция метро «Ильинская» Рублево-Архангельской ветки, и добираться до ЖК «Аникеевский» будет еще удобнее (правда, до метро будет транспортная доступность). Ветка пройдет через московские районы Строгино и Хорошево-Мневники до станции метро и БКЛ «Шелепиха». По официальным данным, возведение новой линии метро планируется завершить к 2029 году.
Экологическую обстановку в Красногорском городском округе можно оценить как удовлетворительную. Здесь функционирует несколько крупных предприятий («Красногорский завод им. С.А. Зверева», «Кнауф Гипс», два полиграфических комплекса, «Биомед им. И. И. Мечникова», «Красногорсклексредства»), но они не оказывают серьезного негативного воздействия на экологию района. Благодаря удачной розе ветров сюда практически не попадают загрязненные воздушные массы Москвы. Кроме того, в радиусе 2 км от ЖК «Аникеевский» производств нет, ближайшие из них находятся в Нахабино.
Главным негативным фактором являются крупные автомобильные магистрали.
Значительную площадь округа занимают смешанные и сосновые леса, что положительно сказывается на экологии. ЖК «Аникеевский» как раз расположен в центре лесного массива, в очень живописном месте, рядом с рекой Липкой. Ближайшая застройка в окружении квартала также в основном малоэтажная, дачная.
ЖК «Аникеевский» расположен в отдалении от уже существующих населенных пунктов. С одной стороны, это гарантирует уединение и тишину, с другой – означает удаленность объектов социальной инфраструктуры, торговли и развлечений. Застройщик планирует создать в микрорайоне собственную школу и детский сад, а нежилые помещения отдать под торговлю и услуги, чтобы всё необходимое было прямо возле дома.
Но на сегодняшний день действующая инфраструктура находится в Нахабино, Опалихе или Николо-Урюпине, а это – 3-4 км пути, хоть и без пробок. Стоит отметить, что все эти поселки являются хорошо развитыми: кроме общеобразовательных школ, там есть лицеи и гимназии, частные детские сады, в том числе с углубленным изучением иностранных языков. В них также есть магазины, спортивные и развлекательные объекты.
Чтобы увидеть объекты, нажмите на соответствующую кнопку внизу карты:
Детские сады
Недалеко от станции Аникеевка есть частный детский сад Beehive – около 30 минут пешком. Немного больше времени потребуется, чтобы добраться до муниципального детского сада №13 в п. Нахабино – 35 минут пешком. Путь до дошкольного отделения Опалиховской средней школы составит около 50 минут пешком или 14 минут на машине.
Школы
Ближайшая школа №2 находится неподалеку от железнодорожной станции Нахабино. Добраться до неё можно за 8 минут на машине или за 40-45 минут пешком. Чуть дальше расположен Лицей №1 и Нахабинская школа №3 с углубленным изучением отдельных предметов – 10 минут на автомобиле или час пешком. В 20 минутах езды на авто, в деревне Веледниково, находится частная «Павловская гимназия». Можно рассмотреть школу и гимназию также в поселке Опалиха – время в пути на машине будет чуть больше, так как придется пересекать ж/д переезд, пешком – чуть больше часа. Дорога до Николо-Урюпинской школы займет 40 минут, на машине в объезд можно добраться за 15 минут.
Магазины
Ближайшие торговые центры находятся на Волоколамском шоссе, в Опалихе и Нахабино. Добраться до любого из них на машине можно за 5 минут. Меньше чем за полчаса можно доехать до ТРЦ Vegas с концертным залом Crocus City Hall. Дорога до ТРЦ «Рига Молл» на Новорижском шоссе займет около 15 мин.
Магазины с товарами первой необходимости есть в пешей доступности неподалеку от железнодорожной станции Аникеевка – 25 минут пешком. Сетевые супермаркеты «Пятерочка», «Дикси», «ВкусВилл», «Магнит» также есть в ближайших поселках в радиусе 4-5 км.
Поликлиники
До открытия собственной поликлиники жители нового ЖК смогут получать медицинские услуги в Красногорске либо в филиале Красногорской больницы в Нахабино. До ближайшей детской поликлиники можно доехать на машине меньше чем за 5 минут. Столько же времени займет путь до взрослой поликлиники №4. Взрослое поликлиническое отделение также есть в соседней Опалихе – на расстоянии 4 км.
Фитнес-клубы
Ближайший спорткомплекс находится неподалеку от станции Опалиха: это студия йоги и фитнеса Sansara, но до него удобнее всего будет добираться жителям корпусов второй очереди (15 минут езды на автомобиле). До World Class в Новинках – около 20 минут езды.
Безопасность
Общая криминогенная обстановка в районе спокойная. В своем отчете за 2024 год начальник УМВД по Красногорскому округу отмечает снижение числа зарегистрированных происшествий на 2,9%, увеличилось общее количество раскрытых преступлений на 4,3%, снизился на 1 % общий показатель регистрации тяжких и особо тяжких преступлений.
Ближайший участковый пункт полиции находится на расстоянии примерно 5 км от ЖК «Аникеевский» – это участковый пункт №3 в Опалихе. До него можно доехать за 10-15 минут на автомобиле.
Старт продаж квартир в этом проекте состоялся в феврале 2022 года с отметки в 4 млн руб. за студию. В середине октября 2025 года цены на квартиры в ЖК «Аникеевский» начинаются от 4,1 млн рублей за студию со сроком ввода в IV кв. 2026 года.
Актуальные цены в ЖК «Аникеевский»:
|
Тип жилья |
Метраж, кв. м |
Цена, руб. |
Цена за кв. м, тыс. руб. |
|
студии |
20.51 — 31.73 |
5 045 535 — 7 504 692 |
185.6 — 284.8 |
|
1-комнатные |
34.31 |
7 665 419 — 7 766 502 |
223.4 — 226.4 |
|
2-комнатные |
30.58 — 44.72 |
6 586 779 — 10 073 792 |
185.1 — 265.6 |
|
3-комнатные |
49.01 — 63.85 |
9 946 128 — 14 695 819 |
181.7 — 249.9 |
|
4-комнатные |
73.04 — 73.88 |
14 619 608 — 15 601 049 |
197.9 — 213.6 |
Квартиры в данном комплексе можно приобрести в ипотеку, с использованием материнского капитала или собственных накоплений в качестве первоначального взноса. В зависимости от выбранного банка, минимальный первоначальный взнос от 20%. Срок кредита – до 30 лет. Жильё подходит под государственные программы: семейная ипотека, ипотека для IT-специалистов, ипотека с субсидированной ставкой.
Комплекс аккредитован рядом крупных банков, в числе которых Уралсиб, Сбербанк, Банк ДОМ.РФ, Альфа Банк, ВБРР, ВТБ, Совкомбанк, МКБ и другие.
Данные об условиях кредитования действительны на момент публикации статьи. Актуальную информацию вы всегда можете найти в карточке проекта.
Северо-запад Московской области, особенно участки вдоль Новорижского и Ильинского шоссе – одно из престижных направлений, которое активно развивается и застраивается, да и спрос на недвижимость за пределами столицы в последнее время только растет. Поэтому у нового ЖК есть конкуренты, предлагающие комфортное жилье в этом экологичном и красивом районе.
ЖК «Павлово 3» – малоэтажный комплекс бизнес-класса от девелоперской компании RS Group. Проект расположен в деревне Лобаново, включает семь трехэтажных домов на 444 квартиры площадью от 27 до 128 кв. м. Среди планировок есть варианты с террасами и кабинетами. В составе ЖК планируется создать прогулочную зону с выходом в лесопарк, а также открыть частный детский сад. Срок ввода всех корпусов – II кв. 2027 года.
Актуальные цены в ЖК «Павлово 3»:
|
Тип жилья |
Метраж, кв. м |
Цена, руб. |
Цена за кв. м, тыс. руб. |
|
студии |
26.70 — 29.90 |
7 702 436 — 9 044 094 |
257.6 — 324.1 |
|
1-комнатные |
34.90 — 47.40 |
10 142 897 — 15 124 135 |
280.4 — 357.9 |
|
2-комнатные |
44.50 — 57.60 |
12 717 236 — 17 996 258 |
267.1 — 361.4 |
|
3-комнатные |
60.30 — 87.90 |
17 195 981 — 25 340 587 |
269.3 — 292.7 |
|
4-комнатные |
102.70 |
27 400 071 |
266.8 |
|
многокомнатные |
106.40 — 109.90 |
27 788 550 — 31 445 259 |
261.2 — 286.1 |
Никольский квартал «Отрада» – это комплекс из 14 домов высотой 6-9 этажей, расположенный между двумя станциями МЦД – Аникеевка и Опалиха. Девелопер проекта – ГК «Отрада». В продаже представлены квартиры площадью от 20,9 до 72,6 кв. м. Помимо лотов без отделки также есть выбор вариантов с white box. Наряду с жильем планируется возведение школы, детских садов, незамных парковок. Срок сдачи домов обозначен как IV квартал 2026 и III кв. 2027 года.
Актуальные цены в Никольском квартале «Отрада»:
|
Тип жилья |
Метраж, кв. м |
Цена, руб. |
Цена за кв. м, тыс. руб. |
|
студии |
21.30 — 21.90 |
4 894 346 — 6 112 140 |
227.6 — 286.6 |
|
1-комнатные |
31.20 — 43.50 |
6 602 467 — 9 350 709 |
193.2 — 257.7 |
|
2-комнатные |
44.90 — 51.60 |
9 425 813 — 10 326 844 |
188.8 — 214.5 |
|
3-комнатные |
68.70 — 72.60 |
13 282 935 — 13 435 098 |
185.1 — 193.3 |
Миниполис «Восемь клёнов» – готовый квартал от девелоперской компании «Сити XXI век» в 15 минутах ходьбы от станции Опалиха и рядом с парком. Комплекс состоит из четырех мнолитных домов высотой 4-6 этажей, в которых предлагаются квартиры от 39,6 до 119,3 кв. м (самое просторное предложение среди конкурентов). Жилье передается новоселам без отделки. Есть машино-места в наземном и подземном паркингах. Своей муниципальной социальной инфраструктуры в квартале нет, помимо частного образовательного центра. Городская средняя школа работает через дорогу от ЖК.
Актуальные цены в миниполисе «Восемь клёнов»:
|
Тип жилья |
Метраж, кв. м |
Цена, руб. |
Цена за кв. м, тыс. руб. |
|
1-комнатные |
39.60 — 46.30 |
12 999 659 — 15 892 155 |
311.7 — 372.9 |
|
2-комнатные |
47.80 — 67.10 |
15 662 582 — 20 665 543 |
248.2 — 338.9 |
|
3-комнатные |
70.20 — 91.10 |
19 149 047 — 26 522 215 |
250.8 — 311.4 |
|
4-комнатные |
108.10 — 108.20 |
31 653 713 — 31 682 995 |
292.8 — 292.8 |
|
многокомнатные |
119.30 |
33 211 906 — 33 378 863 |
278.4 — 279.8 |
Резюме
ЖК «Аникеевский» подойдет тем, кто ценит спокойствие и тишину загородной жизни, но не хочет отказываться от городских удобств. Это комфортное место для семей с детьми, для которых важно, чтобы дети могли быть в безопасности дома и на улице.
В числе преимуществ жилого комплекса можно отметить:
Если приобретать здесь жилье, то с целью дальнейшего проживания в нем. Доступные цены, наличие отделки, хорошая экология – эти факторы высоко оценят как молодые семьи с детьми, так и пожилые люди. Наиболее комфортным проживание в этом квартале будет для тех, у кого имеется автомобиль.
Дата публикации 17 октября