Жилой район комфорт-класса ALIA от «новичка» московского рынка новостроек Asterus – масштабный и амбициозный проект, который появится в районе Покровское-Стрешнево, в СЗАО, на берегу Москвы-реки. В составе квартала – 11 монолитных домов, детские сады, школы и поликлиника. Первая очередь – а это 4 дома – запланирована к сдаче в III квартале 2021 года. Новострой-М оценил масштабы строительства, изучил концепцию проекта и рассказывает о том, чем ЖК ALIA привлекателен для покупателей, а что в нем может не понравиться.
Примечание
В статье перечислены только факты о ЖК, собранные из открытых источников. В рубрике «Экспертиза проекта» Новострой-М решил отказаться от оценок и оценочных суждений: право делать выводы из описанных фактов о жилом комплексе мы предоставляем нашим читателям.
Кто строит
Для девелоперской компании Asterus проект ALIA – первый на московском рынке жилой недвижимости. Все, что известно об Asterus – это то, что она была основана в 2018 году международной инвестиционно-промышленной группой Vi Holding. Кстати, в проектной документации застройщиком проекта значится ООО «Ви Холдинг Девелопмент».
Что строят
Жилой квартал ALIA – проект по освоению территорий Тушинского аэродрома. Адрес ЖК: ул. Летная, вл. 95Б. Квартал будет представлен 11 высотными домами (от 11 до 27 этажей), построенными по монолитной технологии. Первая очередь ЖК, в которую входят 4 дома, планируется к сдаче в III квартале 2021 года.
Архитектура и дизайн. Это один из самых интересных аспектов проекта. Все дома, входящие в состав ЖК ALIA, проектировало известное американское бюро Skidmore, Owings and Merrill («Скидмор, Оуингс и Меррилл»), специализирующееся на создании небоскребов. Именно они являются авторами таких «гигантов», как чикагский 108-этажный «Сирс Тауэр» – самое высокое здание на всей территории США, а также всемирно известного «Бурдж-Халифа» в Дубае, высота которого 163 этажа.
Все здания ЖК построены в современном урбанистическом стиле по монолитной технологии. Дома обшиты клинкерной плиткой спокойных, природных оттенков.
Придомовая территория. В квартале будет реализована концепция «двор без машин». В целом, застройщик обещает сделать территорию и среду вокруг домов максимально комфортной и отзывчивой. Появятся общественные пространства, зоны отдыха, спортивные и детские площадки. «Жемчужиной» проекта станет собственный участок набережной Москвы-реки, тоже благоустроенный – с велосипедными дорожками, променадом, парком и местами для выгула собак.










Еще один большой плюс проекта – масштабное озеленение. На территории появится крупный парк, деревьями и растениями засадят почти половину территории комплекса.
Безопасность. В ЖК обещают установить систему «умный дом». Также на всей территории будет вестись круглосуточное видеонаблюдение.
Нежилые метры. Собственная инфраструктура ЖК ALIA будет неплохо развита: первые этажи займут кафе, магазины, салоны красоты. Что касается социальных объектов, то на территории ЖК построят 2 детских сада, 2 школы и поликлинику. Девелопер планирует достроить 1 школу и 1 сад одновременно с первой очередью стройки. Все остальное будет сдано ближе к завершеню строительства всего комплекса целиком.
Для владельцев машин предусмотрен паркинг: 2 одноуровневых объекта на 402 и 289 машино-мест. Есть большая вероятность, что такого количества будет явно недостаточно.
Квартиры и планировки
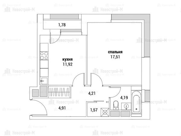
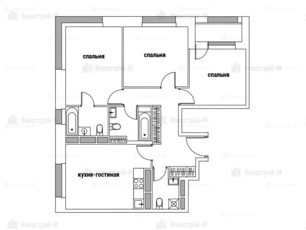
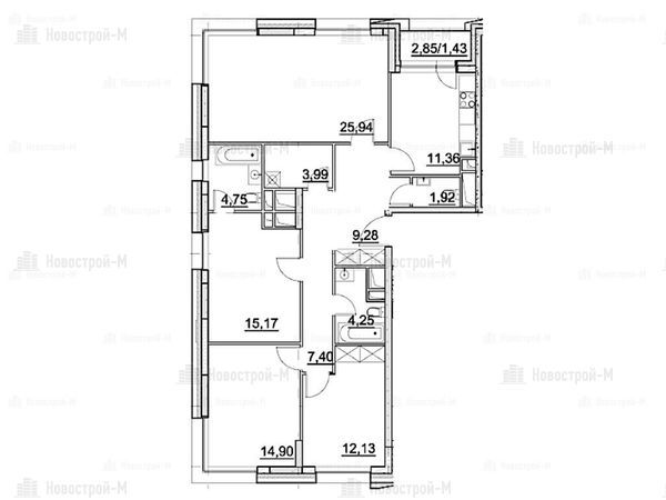
В квартирографии комплекса представлены 1-, 2-, 3-, и 4- комнатные квартиры комфорт- и бизнес-класса. Высота потолков – 3 метра. Лождии есть в каждом лоте. Площади квартир – от 23 до 113 кв. м.
Лоты можно приобрести без отделки или с отделкой white box.




Увидеть все квартиры, доступные для покупки, можно на поэтажных планах на сайте Новострой-М.
Где строят
ЖК ALIA строят в СЗАО Москвы, в районе Покровское-Стрешнево. Транспортная доступность локации заслуживает высокого балла. Отсюда будет легко добираться как автомобилистам, так и тем, кто передвигается на общественном транспорте.
Время в пути до ближайших станций метро и ж/д станций:
метро «Тушинская» – 17 минут пешком;
метро «Спартак» – 16 минут пешком;
ж/д станция «Тушино» (Рижское направление мжд) – 23 минуты пешком.
Рядом с новостройкой проходит Волоколамское шоссе, до центра города без пробок на машине можно доехать за полчаса. До МКАДа на автомобиле – чуть более 5 минут. Ситуация с пробками по московским меркам средняя. Большие скопления машин – в часы пик утром и вечером.
Экология
Экологическая обстановка в локации хорошая. По данным рейтинга от EcoStandard, у района Покровское-Стрешнево 3 балла из 4. ЖК ALIA окружен зелеными зонами буквально со всех сторон: тут и «Серебряный бор», и парк «Покровское-Стрешнево», и ландшафтный парк «Митино».
«Ложкой дегтя» можно назвать лишь промышленную зону «Трикотажная», которая находится в паре километров от комплекса. Но она практически недействующая, там работает всего одно предприятие.
Инфраструктура
Помимо того, что комплекс будет обеспечен собственной инфраструктурой – двумя детскими садами, двумя школами, поликлиникой, в районе уже сейчас есть объекты, которые вполне могут закрыть потребности местных жителей в обучении, развлечениях и различных сервисах.
Если говорить о школах – в окрестностях их действительно много. Минус в том, что пешком до них, увы, не добраться. Ребенка придется возить либо на автомобиле, либо на общественном транспорте.
Школы
Похожая ситуация и с детскими садами – все они находятся довольно далеко от новостройки.
Детские сады
До ближайшей взрослой городской поликлиники также придется ехать на машине или на общественном транспорте, как и до детской. Однако чуть ближе можно найти несколько коммерческих медицинских центров.
Поликлиники
С покупкой продуктов проблем возникнуть не должно: в районе представлены сетевые супермаркеты «Перекресток», «ВкусВилл», «Лента», «Магнолия», EUROSPAR.
Магазины
Для любителей спорта вокруг комплекса расположены более 5 фитнес-клубов. Вот только пешком можно добраться лишь до пары из них.
Безопасность
Район Покровское-Стрешнево можно назвать относительно безопасным местом. По данным московской прокуратуры за прошлый год, он занимал последние строчки рейтинга районов по количеству совершенных преступлений. Тем более, рядом с ЖК ALIA потенциально опасных объектов нет, а плотность населения в локации не самая высокая.
Если говорить об охране порядка, то в пешей доступности от ЖК находится Отдел МВД по району Покровское-Стрешнево и несколько участковых пунктов полиции.
Цены
Старт продаж в ЖК ALIA был объявлен в октябре 2019 года. Тогда квартиру в этом комплексе можно было приобрести за 6,3 млн рублей. Сегодня минимальный бюджет покупки в ALIA составляет уже 8,6 млн рублей.
Цены в ЖК ALIA
|
Тип жилья |
Метраж, кв. м |
Цена, руб. |
Цена за кв. м, тыс. руб. |
|
студии |
22.00 — 31.00 |
16 825 088 — 21 115 840 |
646.3 — 766.7 |
|
1-комнатные |
34.00 — 90.00 |
22 580 340 — 42 419 522 |
471.3 — 775.2 |
|
2-комнатные |
49.00 — 79.90 |
29 398 369 — 49 087 336 |
522.2 — 718 |
|
3-комнатные |
74.00 — 169.00 |
42 564 060 — 99 417 500 |
534 — 930.2 |
|
4-комнатные |
103.00 — 113.00 |
67 096 125 — 73 541 160 |
615.6 — 713.1 |
|
многокомнатные |
141.00 |
90 410 360 |
641.2 |
Жилье продается по новым правилам – через эскроу-счета. Если говорить об ипотеке, ЖК аккредитован крупнейшими российскими банками: Сбербанк, ВТБ, Возрождение, Металлинвестбанк, СМП Банк, Дом РФ, Совкомбанк.
Конкуренты
Прямым конкурентом ЖК ALIA можно назвать построенный по соседству ЖК «Город на реке Тушино-2018». Это также масштабный проект комфорт-класса, возводимый в рамках программы застройки Тушинского аэродрома. Цены здесь стартуют от 9,2 млн рублей.
Цены в ЖК «Город на реке Тушино-2018»
|
Тип жилья |
Метраж, кв. м |
Цена, руб. |
Цена за кв. м, тыс. руб. |
Нет в продаже | |||
Резюме
Плюсы ЖК ALIA:
- его расположение: комплекс строится в зеленом районе, на берегу Москвы-реки, в окружении крупнейших столичных парковых зон;
- у ЖК будет собственная благоустроенная набережная;
- так как комплекс находится у воды, виды из окон обещают быть живописными;
- в проекте принимали участие именитые архитектурные и дизайнерские бюро.
Среди минусов можно отметить разве что наличие неподалеку промышленной зоны «Трикотажная». Однако в ней на сегодняшний день работает всего одно предприятие.
Читайте также:
Дом на взлетной полосе: какие новостройки возводят на территории аэродрома в Тушино
Комментирует Денис Бобков, генеральный директор аналитической и консалтинговой компании «Недвижимость-Профи»
Комплекс-загадка Alia на северо-западе Москвы, на части бывшего Тушинского аэродрома. Почему загадка? Потому что загадочно и происхождение названия, и позиционирование комплекса (чем же конкретным он выделяется среди конкурентов), и даже сайт какой-то загадочный.
Тушинский аэродром и его окрестности начали активно осваивать несколько лет назад – сначала построили комплекс апартаментов Loft River (да-да, тот самый, который должны снести по постановлению суда), потом пошла застройка «Города на реке Тушино-2018», теперь вот наступила очередь Alia. Кстати, «Город на реке Тушино-2018» почему-то самую лакомую часть территории отдал под застройку ГК «ПИК» (проект Holland park вышел с января 2020), так что конкуренции в обозримом будущем здесь хватит на всех. И вот на этом на фоне не совсем понятно, почему нужно сделать выбор в пользу Alia.
Экология, конечно, здесь значительно лучше, чем в большинстве московских районов – открытые пространства, отсутствие промпредприятий в непосредственной близости – это плюс. Наличие собственной набережной и парка в составе проекта – это ещё один плюс. Наличие усадьбы «Покровское-Стрешнево» (пусть и в велосипедной, а не пешеходной доступности) – ещё один плюс. И не нужно опасаться загрязнённой почвы (в отличие от множества комплексных проектов новостроек в Москве на местах бывших промпредприятий). В общем, с экологией всё в порядке, как и у прямых конкурентов по аэродрому.
Транспортная доступность… Не знаю как кому, но в пределах МКАД наличие станции метро более чем в 15-минутной доступности (20 и более) – это уже далеко. Правда, это сейчас. В перспективе же, когда будет достроена вторая очередь «Города на реке Тушино», можно будет уложиться в 15 минут пешком до станции метро «Спартак». Но вот описание на сайте гласит, что «ALIA возводится в 7 минутах пешком от станции метро «Тушинская» - это уже, мягко говоря, не совсем правда. А вот чётко описать транспортную доступность и её планируемое улучшение можно было бы.
В плане инфраструктуры район Тушинского аэродрома можно описать кратко – «всё будет в составе новых ЖК». И это действительно так, потому что воспользоваться сложившейся инфраструктурой с другой стороны Волоколамки сложно – это уже не пешая доступность, тем более с маленькими детьми. Поэтому предусмотрены детские сады и школы в составе самого ЖК Alia, причём первый сад и школа будут сдаваться вместе с первой очередью, что большая редкость для девелопмента – обычно такую «нагрузку» на проект девелоперы стремятся оставить на конец проекта, ну или как минимум строить в середине проекта. Также будут детские сады и школы в составе «Города на реке» и в Holland Park. Поликлиника будет в составе проекта Alia.
Про ритейл в составе ЖК Alia на сайте не написано ничего. То есть концепция Live.Work.Play по сути не раскрыта – есть только очень скупые описания без какой-либо схемы проекта, его генплана с указанием всех важных объектов. Наверняка это всё продумывалось на этапе концепции, но по пути к продажам где-то потерялось.
Архитектура проекта – хороша, не зря постарались именитые зарубежные и отечественные бюро. Не знаю, насколько в этом классе (а у нас сейчас идёт речь о комфорт-классе) оправдано приглашать авторов «Бурдж халифа» (из пушек – по воробьям), но получилось отлично. Жаль только, что на сайте нет раздела «Галерея», где в полной мере можно было бы насладиться рендерами проекта. Помимо архитекторов, в проекте можно отметить участие зарубежного (турецкого) генподрядчика, а, как известно, турки строят хорошо и быстро, если им вовремя платят.
Планировочные решения квартир достаточно разнообразны – сейчас представлены квартиры от студий до 4-комнатных квартир. Правда, в предложении на текущий момент (март 2020) почему-то всего 18 квартир, из них часть забронирована. Ведь явно же большая часть квартир не распродана. Из доступных в продаже предлагается выбрать между студией 24 кв.м (названа однокомнатной квартирой, хотя в фильтре есть отдельная кнопка «Ст», но неактивная) и 4К площадью 113 кв.м. А остальные куда дели? Зачем лишать покупателя возможности выбора? Очень странный ход на старте (по сути) проекта. И возможности посмотреть другие планировки нет – забронированные квартиры не «открываются».
Часть квартир – с отделкой white box, что даёт возможность быстрее выполнить отделку (с выбором своих материалов, цветов и фактур) и сэкономить на наиболее грязном и трудоёмком этапе. Но вот с чистовой отделкой вариантов нет.
Текущая средняя цена по проекту на март 2020 182 тыс. руб./кв.м. Со старта продаж в сентябре 2019 цена выросла… На самом деле, ввиду закрытости информации о предложении, точно рассчитать средневзвешенную цену по проекту сложно. Очевидно, что если бы сейчас в предложении была вся линейка квартир, то средняя цена была бы выше, чем для представленных сейчас в основном 4К квартир. Вот так недостаток информации губит инвестиционную привлекательность проекта – её попросту нельзя посчитать.
Если же серьёзно, приобретение квартиры в этом проекте я бы рекомендовал для собственного проживания – наличие собственной социальной инфраструктуры, парка, набережной оптимально для семейной аудитории. Покупка квартиры под сдачу в аренду – скорее нет, ведь рядом строятся еще несколько конкурентов, в том числе в формате апартаментов. Ну а про инвестиционную составляющую, пока информация по проекту предоставляется в том виде, как сейчас, судить сложно. Проект-загадка!