В июне в Раменках стартовало строительство нового жилого комплекса премиум-класса – hideOUT. Проект удачно расположен вблизи нескольких природных объектов и имеет удобный выезд на ключевые магистрали города. Покупателям предлагаются квартиры с эксклюзивными планировками и видами на столичные достопримечательности, а также неограниченный доступ к собственной инфраструктуре клубного формата. Обо всех преимуществах нового проекта — в экспертизе Новострой-М.
Примечание
В статье перечислены только факты о новостройке, собранные из открытых источников. В рубрике «Экспертиза проекта» Новострой-М решил отказаться от оценок и оценочных суждений: право делать выводы из описанных фактов о жилом комплексе мы предоставляем нашим читателям.
Кто строит?
Свою деятельность как застройщик компания Dominanta начала в 2016 году и на протяжении 6 лет работала в совместных объектах с другими девелоперами, приобретая опыт реализации проектов различного уровня и сложности. В 2022 году Dominanta заявляет о себе как о самостоятельном застройщике и выводит на рынок свой флагманский проект hideOUT.
Что строят?
ЖК hideOUT — это две башни высотой 34 и 49 этажей, соединенные парящим эксплуатируемым мостом на уровне 22-го этажа. Общая жилая площадь объекта — 48 664 кв. м. В мостовой части будут расположены квартиры и общественные пространства — SocialHUB. На подземном этаже разместятся паркинг и кладовые. Стоит отметить, что соотношение числа машино-мест к числу квартир составляет почти 1:1, что редкость для высотных новостроек, особенно вблизи от центра столицы.
Девелопер проекта делает акцент на богатой внутренней инфраструктуре для работы, отдыха и общения, которая будет доступна резидентам ЖК бесплатно. Также подчеркивается авторская архитектура, многоуровневое благоустройство и наличие редких форматов жилья.
ЖК hideOUT в цифрах*:
|
№ дома |
Лоты |
Энергоэффект. |
Машино-места |
Класс |
Срок ввода |
|
1 |
665 |
А |
557 |
Элитный |
II кв. 2028 |
*По данным проектной декларации
Архитектура и дизайн






hideOUT отличается футуристичной архитектурой от бюро Kamen Architects. Жилой комплекс состоит из двух полностью остекленных башен. Главной особенностью проекта является мост, перекинутый между башнями на высоте 80 метров и выступающий за их границы на несколько метров. Мост — это не декоративный элемент, а эксплуатируемое пространство с панорамным остеклением.













Идея «дома будущего» продолжается в интерьерах лобби и общественных пространств, оформленных в бионическом стиле: его приметы — это сложные изгибы, обтекаемые формы, дизайнерская мебель и предметы декора. Гранд-лобби отличается высокими потолками, панорамным остеклением и наличием центрального светового окна в потолке. Для отделки будут применены натуральные материалы. Изюминкой гранд-лобби станут живые деревья и камин. Для комфорта резидентов в доме предусмотрены отдельные входы для курьеров и персонала.
Благоустройство
На придомовой территории ЖК hideOUT будет реализовано 15 функциональных зон для комфортного времяпровождения резидентов разного возраста и с разным образом жизни. Во дворе продолжается идея «дома будущего», в котором органично сочетаются природа и инновации.









Кроме традиционных детских и спортивных площадок здесь появятся летние гостиные с барбекю, где можно будет приготовить еду на углях и устроить семейный ужин, места для отдыха и работы под открытым небом, амфитеатр, водопады, приподнятые над землей смотровые площадки, дорожки и мостики. Также будет выполнено комплексное озеленение территории, включающее благоустройство газонов, высадку деревьев и кустарников, организацию цветников.
Безопасность и технологии
ЖК hideOUT соответствует критериям «зелёного» строительства. Дом возводится с применением современных материалов и энергосберегающих технологий.
Для обеспечения безопасности жителей предусмотрена система контроля доступа на территорию. Во дворе, в лобби и лифтовых холлах будут установлены камеры видеонаблюдения, также за порядком и безопасностью круглосуточно будут следить сотрудники охраны. Доступ к камерам жители смогут получить через мобильное приложение.
Паркинг также отличается высокой технологичностью. Для беспрепятственного въезда резидентов предусмотрена система распознавания автомобильных номеров. В паркинге запланированы машино-места разной площади и формата, в том числе с возможностью подзарядки электромобилей.
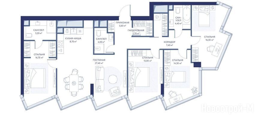
Планировки
Проект отличается богатой квартирографией, в которой продуманы варианты для разного состава семьи и образа жизни. Площадь квартир в ЖК hideOUT — от 35,5 до 280 кв. метров. Студий в проекте нет, зато есть большой выбор квартир с 1–4 спальнями, в том числе редких форматов.




Среди эксклюзивных предложений:
Высота потолков в квартирах — от 3,25 до 6,35 кв. метра.
Во всех квартирах будет выполнена отделка white box, которая включает в себя возведение перегородок, выравнивание и подготовку к финишной отделке поверхности стен, бетонную стяжку пола и его гидроизоляцию в мокрых зонах, шумоизоляцию, установку входных дверей с «умными» замками, разводку канализации, водоснабжения, электрики, установку внутрипольных конвекторов.
Где строят?
Строительство ведется в престижном районе Раменки на западе Москвы, но при этом комплекс будет расположен в уединенном и зеленом микрорайоне Потылиха. От оживленного проспекта Генерала Дорохова новостройку отделяют павильоны киностудии «Мосфильм», прямого выезда на эту магистраль нет. Зато будущие резиденты смогут быстро выехать на ТТК по 2-му Сетуньскому проезду, а также на Воробьевское шоссе.
От ЖК hideOUT можно за 15 минут доехать на машине до делового центра «Москва-сити», Садового кольца и Нового Арбата. Около 10 минут займет дорога до Воробьевых гор и главного здания МГУ.
Общественный транспорт в локации развит неплохо. В 3 минутах ходьбы есть автобусные остановки, с которых можно уехать в соседние районы. Ближайшая станция метро «Парк Победы» расположена в 22 минутах ходьбы. До станции МЦД-4 Поклонная гора можно дойти за 13 минут. Тем не менее, с учетом премиального статуса новостройки, ее резидентам гораздо важнее будет автомобильная доступность.
Экология
Раменки — район с комфортной для жизни экологией. Эксперты EcoStandard оценивают ситуацию здесь как «приемлемую», на 6 из 10 баллов (где 10 — это «неудовлетворительно»). В локации почти не ощущается влияние объектов промышленности. Основным фактором загрязнения воздуха являются многополосные автомобильные дороги.
Жилой комплекс hideOUT возводится в северной части района — близко к загруженному ТТК и в то же время рядом с несколькими обширными парковыми зонами. Ближайшим местом для прогулок и отдыха будет долина реки Сетунь — территория заповедника начинается за Шуваловской школой, в 200 метрах от новостройки. В 800 метрах находится Воробьевская набережная и протяженный парк «Воробьевы горы», переходящий в Нескучный сад. Менее чем в 2 км — Поклонная гора и Парк Победы. На машине можно доехать до Москворецкого заповедника или Матвеевского леса.
Инфраструктура
hideOUT — настоящее «укрытие» от городской суеты. Жилой комплекс отличается богатой внутренней инфраструктурой для работы и отдыха, расположенной преимущественно на парящем мосту. SocialHUB включает в себя 16 общественных зон, в числе которых кинотеатр, детская комната, общественная гостиная, лаунж-зона с видом на город, домашний ресторан и бар, библиотека-коворкинг, переговорные и кабинеты, пространства для занятий спортом и йогой, массажный кабинет и сауна.
На первых этажах разместится коммерция — магазины, кафе, салоны красоты. Часть средств от аренды будет направляться на содержание SocialHUB, поэтому для резидентов пользование клубной инфраструктурой будет бесплатным.
Социальных объектов на территории комплекса не предусмотрено, но их достаточно поблизости.
На расстояний 150 метров есть два детских сада: один при Шуваловской школе, второй — дошкольное отделение Московского образовательного комплекса «Запад». Несколько детских садов есть за рекой Сетунь (14–20 минут ходьбы), среди них дошкольное отделение школы №74 и частные учреждения «Бэби-клуб», English Nursery and Primary School, Монтессори сад «Смайлик», Smile Fish, «Утро». Также детские сады есть за просп. Генерала Дорохова и железной дорогой — дошкольное отделение школы №67 и частный сад «Новая история» — ехать до них придется порядка 20 минут.
Шуваловская школа №1448 и отделение Московского образовательного комплекса «Запад» расположены в 150 метрах от новостройки. До муниципальной школы №74 около 13 минут ходьбы. До частной школы «Мечтатели» — 15 минут. До школы №67 можно дойти за 21 минуту.
Ближайший продуктовый магазин «Авоська» находится через дорогу от новостройки. Дойти до сетевых супермаркетов «Пятерочка» и «ВкусВилл» можно за 15 минут. Свои супермаркеты, очевидно, откроются уже после ввода в эксплуатацию новостройки.
В пешей доступности есть детская поликлиника №30 — до нее 25 минут ходьбы. До филиала городской поликлиники №131 и детской поликлиники №38 можно доехать на машине за 10 минут.
Ближайшая взрослая поликлиника №220 находится в 26 минутах ходьбы. В 9 минутах езды на машине находится Объединенная больница с поликлиникой для взрослых.
Ближайшие спортивные клубы «Прометей», Anvil находятся в 15 минутах ходьбы. До сетевых клубов X-Fit и World Class можно доехать на машине за 10 минут. Также в 9 минутах езды на авто находится уникальный спортивный объект — Московский гольф-клуб. За 15 минут можно доехать на автомобиле до спортивного комплекса и стадиона «Лужники».
Безопасность
Раменки считается районом интеллигенции из-за обилия на его территории образовательных учреждений, посольств, объектов культуры и киноиндустрии. Здесь живут представители научной и театральной элиты, но также много студентов, в том числе приезжих из других регионов и стран.
На территории района в 2023 году было совершено 1384 преступления, что на 10,5% больше, чем в предыдущем отчетном периоде. Рост обусловлен увеличением числа мошенничеств и преступлений, связанных с оборотом запрещенных веществ, а ещё в районе стали чаще угонять автомобили. Зато преступлений, грабежей и вымогательств стало существенно меньше.
За безопасность резидентов и имущества в самом ЖК hideOUT будет отвечать охрана и системы круглосуточного видеонаблюдения и контроля доступа на территорию.
Ближайший участковый пункт находится буквально в 100 метрах от ЖК hideOUT, по адресу: 3-й Сетуньский пр., 3. Также участковый пункт есть в районе ул. Мосфильмовской — до него 1,9 км. Ещё несколько отделений полиции есть за проспектом Генерала Дорохова.
Цены и способы покупки
Открытые продажи недвижимости здесь стартовали в июне 2024 года с отметки в 23,2 млн руб. В августе стоимость квартир в ЖК hideOUT начинается от 23,5 млн и достигает 96,6 млн рублей, что обусловлено классом и расположением недвижимости в популярном и престижном районе.
Цены в ЖК HideOUT:
|
Тип жилья |
Метраж, кв. м |
Цена, руб. |
Цена за кв. м, тыс. руб. |
|
1-комнатные |
38.60 — 58.30 |
33 240 631 — 48 510 690 |
737.6 — 867.6 |
|
2-комнатные |
57.90 — 81.60 |
50 239 450 — 65 970 093 |
725.8 — 1080.6 |
|
3-комнатные |
89.90 — 129.10 |
69 989 460 — 90 178 200 |
655.2 — 794.9 |
|
4-комнатные |
139.30 — 143.40 |
98 234 360 — 101 283 420 |
705.1 — 706.3 |
Информации о том, возможно ли приобрести квартиру в ипотеку или рассрочку и на каких условиях, на сайте застройщика пока не представлено, зато есть информация для инвесторов. Те, кто планирует вложить средства в этот проект, смогут приобрести цифровые финансовые активы с банковской гарантией от ВТБ, минимальным порогом входа и возможностью следить за изменением стоимости активов по мере того, как квартиры в ЖК будут распродаваться.
Данные об условиях продаж действительны на момент публикации статьи. Актуальную информацию вы всегда можете найти в карточке проекта.
Конкуренты
Ближайший к hideOUT премиальный высотный ЖК Hide, который реализовывался совместно компаниями Dominanta и MR Group, полностью распродан. Помимо него по соседству с hideOUT возводятся ЖК NOVA и ЖК Victory Park Residences, в которых также предлагаются квартиры с интересными видовыми характеристиками и эксклюзивными планировочными решениями.
ЖК NOVA — первый проект в линейке Samolet Select. Комплекс отличается современной архитектурной концепцией, разработанной голландским бюро De Architekten Cie. В проекте 6 разновысотных зданий, которые будут возводиться в два этапа. Первые три дома будут высотой от 10 до 40 этажей. В них уже можно купить квартиры от студий до четырехкомнатных, а также квартиры с патио и двухуровневые пентхаусы. ЖК отличается удобным расположением непосредственно напротив Парка победы, рядом со станцией МЦД-4 и в 20 минутах ходьбы от метро «Минская». Стоимость лотов здесь начинается от 22,9 и достигает 88,7 млн рублей. Срок сдачи первых домов запланирован на IV квартал 2027 года.
Цены в ЖК NOVA:
|
Тип жилья |
Метраж, кв. м |
Цена, руб. |
Цена за кв. м, тыс. руб. |
|
студии |
29.39 — 30.00 |
27 924 823 — 32 790 610 |
950.1 — 1115.7 |
|
1-комнатные |
35.18 — 72.16 |
32 030 757 — 76 939 967 |
844.2 — 1226.9 |
|
2-комнатные |
53.35 — 96.64 |
45 484 463 — 108 922 638 |
844 — 1127.1 |
|
3-комнатные |
79.55 — 165.14 |
67 708 275 — 383 743 910 |
835.6 — 2432.8 |
ЖК Victory Park Residences — элитный дом от ANT Development, из окон квартир в котором откроются впечатляющие виды на Поклонную гору и Парк Победы. ЖК отличается футуристичной архитектурой от бюро Сергея Скуратова — в проекте 8 зданий высотой 10–11 этажей со скругленными углами, панорамными окнами и полностью стеклянными фасадами. Это один из немногих проектов в столице, где машино-мест почти в 2 раза больше, чем квартир. Жилой фонд Victory Park Residecnes составляют 455 квартир и 27 пентхаусов с террасами. Во всех лотах будет выполнена премиальная отделка. В жилом комплексе появится своя торговая и развлекательная инфраструктура, а также частный детский сад. Стоимость квартир в проекте начинается от 66,6 млн рублей. Срок сдачи объекта — IV квартал 2024 года.
Цены в ЖК Victory Park Residences:
|
Тип жилья |
Метраж, кв. м |
Цена, руб. |
Цена за кв. м, тыс. руб. |
|
2-комнатные |
66.50 — 67.30 |
123 580 000 — 150 290 000 |
1850 — 2260 |
|
3-комнатные |
102.20 — 152.50 |
172 260 000 — 279 180 000 |
1650 — 2250 |
|
4-комнатные |
149.80 — 231.40 |
269 640 000 — 532 220 000 |
1800 — 2300 |
|
многокомнатные |
266.00 — 528.50 |
518 700 000 — 1 722 910 000 |
1950 — 3260 |
Резюме
Жилой комплекс имеет несколько преимуществ, среди которых авторская архитектура и ландшафтный дизайн, широкий выбор планировочных решений, в том числе редких, предчистовая отделка, разнообразная клубная инфраструктура. Также к преимуществам можно отнести удобное расположение относительно ТТК и большое число мест в паркинге.
Из недостатков — соседство с железной дорогой и крупными автомагистралями.
Проект интересен как для собственного проживания, так и для инвестирования (в том числе с помощью инструмента ЦФА). Цены на старте продаж в ЖК hideOUT с учетом заявленного класса недвижимости и площадей квартир выглядят привлекательнее, чем в жилых комплексах по соседству.
Дата публикации 13 августа 2024