

















Проект бизнес-класса «Вест Тауэр» реализуется в Западном округе Москвы на Аминьевском шоссе.
Надежность застройщика
Застройщиком «Вест Тауэр» выступает холдинг Tashir Estate, который реализует недвижимость в сегментах «бизнес» и «премиум». Компания работает более 20 лет, её проекты есть в 25 городах России, а также за рубежом.
Описание ЖК
«Вест Тауэр» расположен на значительном удалении от центра Москвы, но у его локации есть другие преимущества. Первое — отличная транспортная доступность, которую обеспечивают Аминьевское шоссе и две станции метро. Дойти до метро «Давыдково» или «Аминьевская» можно за 17 минут, доехать на машине — за 6 минут. До Кутузовского проспекта — 5 минут на автомобиле, за 11 минут можно доехать до ТТК, за 15 минут — до Арбата. Второе преимущество — соседство с обширной зеленой зоной «Долина реки Сетунь». Близость парка компенсирует не самую благоприятную экологическую ситуацию в районе Очаково-Матвеевское.
Проект «Вест Тауэр» отличается смешанным форматом: здесь есть 6-этажная торговая галерея, на крыше которой расположен приватный парк (4 тыс. кв. метров) и места для отдыха. Галерея соединяет две 22-этажных башни «Вест Тауэр», в одной из которых расположены 277 апартаментов, во второй — бизнес-центр. Апарт-отель «Вест Тауэр» уже сдан и введен в эксплуатацию, а его резидентам предлагается полный комплекс услуг на уровне бизнес-класса, включая круглосуточный консьерж-сервис (доставка завтрака, бронирование билетов, вызов такси и др.).
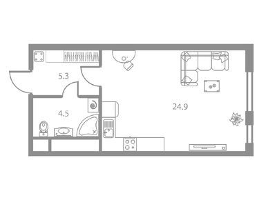
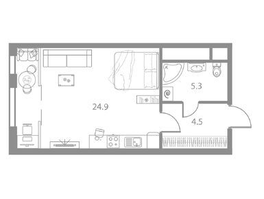
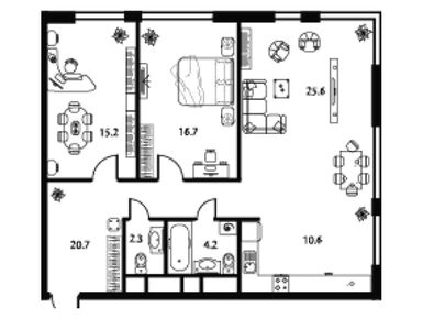
В продаже представлены лоты от 34-метровых студий до 214-метрового пентхауса. Пентхаусы в «Вест Тауэр» оборудованы террасами, мастер-спальнями, высота потолков достигает 4,2 метра. Можно выбрать как варианты с готовой дизайнерской отделкой, так и предчистовой. В новостройке есть предложения, окна которых выходят в сторону парка Долина реки Сетунь, Кутузовского проспекта, Поклонной горы. Из минусов нельзя не отметить плотное соседство с шоссе: ряд лотов будут неизбежно иметь виды на дорогу.
Инфраструктура
Всю необходимую торгово-развлекательную инфраструктуру можно найти в торговой галерее практически не выходя из дома: 150 магазинов, двухэтажный фитнес-клуб с бассейном, кинотеатр, салоны красоты, рестораны и многое другое.
До ближайшей школы 8 минут ходьбы, до детского сада — 5 минут.
Плюсы и минусы
«Вест Тауэр» — интересная альтернатива обычным ЖК. Проект отличается высоким уровнем комфорта и сервиса, широким выбором планировочных решений, парковым окружением и транспортной доступностью. Однако стоимость недвижимости, учитывая статус проекта, достаточно высокая — студия без отделки обойдется более чем в 13 млн рублей.
Метро «Мичуринский проспект» → Пройти пешком 620 метров (7 минут) → Остановка «Мичуринский проспект» → Автобусы № 688, 459 → Остановка «Матвеевская улица» → Пройти пешком 10 метров (1 минута).