Рейтинг@Mail.ru
Переверните экран
Новостройки Квартиры Ипотека Новостройки Москвы Новостройки Подмосковья Новостройки Новой Москвы Готовые новостройки Новостройки на карте Акции от застройщиков Коммерческие помещения Продавцы и застройщики Панорамы новостроек Видеообзор новостроек Экспертиза новостроек Экология Москвы и Подмосковья Студии 1-комнатные 2-комнатные 3-комнатные Квартиры на карте Ипотечный калькулятор Семейная ипотека Военная ипотека Банки и программы Медиа Новости недвижимости Мнение эксперта Аналитика рынка Покупателю Экспертиза новостроек Эксперты и авторы О проекте Контакты Реклама на сайте Vk Youtube Telegram Дзен Машиноместа Апартаменты #траншевая ипотека #рассрочка IT-ипотека Квартиры со скидками до 40% Видео 360° новостроек Субсидированная застройщиком Rutube Поиск дома в Москве Программа реновации в Москве Новостройки премиум-класса Новостройки бизнес-класса Рассрочка Траншевая ипотека Дома и коттеджи Бизнес-центры Бизнес-центры в Москве Бизнес-центры рядом с метро Строящиеся бизнес-центры Бизнес-центры класса A Бизнес-центры класса B
Данная квартира является лидером продаж среди двухкомнатных квартир в ЖК «Легенда Марусино» по данным Росреестра
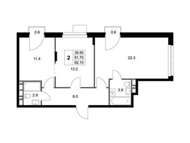
2-комн. квартира, 62.10 м2, 3 этаж
Срок сдачи 4 квартал 2026 года
13 537 800 
218 000 2
обновлено 5 февраля

Описание 2-комн. квартиры

Срок ГК
4 квартал 2026 года
Стадия строительства
монтаж верхних этажей
Общая площадь
62.10 м2
Жилая площадь
35.50 м2
Площадь кухни
11.40 м2
Этаж
3 / 7
Грузовой лифт
есть

Расположение 2-комн. квартиры

Метро
Ж/Д-станция
Дом
1.1
Адрес
ЖК «Легенда Марусино», корп. 1.1, секция 4

Способы покупки

Особенности

Продается двухкомнатная квартира в новостройке ЖК «Легенда Марусино» по адресу Московская область, Люберцы городской округ, Марусино деревня, ЖК «Легенда Марусино», корп. 1.1. Общая площадь квартиры - 62.1 кв. м. Тип проекта, по которому построен дом — Монолитно-кирпичный, компания-застройщик — Некрасовка Девелопмент, СЗ МАРУСИНО. Стоимость квартиры — 13 537 800 руб. Способы оплаты можно уточнить у продавца. Срок сдачи — 4 квартал 2026. Более подробная информация по телефону.
Инфоцентр новостроек
Инфоцентр новостроек
+7 (499) 705-91-41
Время работы 9:00 — 21:00

Похожие квартиры в ЖК «Легенда Марусино»

4 этаж
из 7 4 квартал 2026
Московская область, Люберцы городской округ
Некрасовка
13 мин.
1.1
Корпус
нет данных
Отделка
2.82 м
Потолки
ЖК «Легенда Марусино»
13 537 800
ВТБ, Альфа-Банк, Промсвязьбанк, СберБанк, Совкомбанк, Банк Санкт-Петербург, ДОМ.РФ, Абсолют Банк, Т-Банк, АК БАРС, Металлинвестбанк
6.00%
Ставка
40.10%
Первый взнос
от 81 166 /мес.
Все варианты
2 этаж
из 7 4 квартал 2026
Московская область, Люберцы городской округ
Некрасовка
13 мин.
1.1
Корпус
нет данных
Отделка
2.82 м
Потолки
ЖК «Легенда Марусино»
13 537 800
ВТБ, Альфа-Банк, Промсвязьбанк, СберБанк, Совкомбанк, Банк Санкт-Петербург, ДОМ.РФ, Абсолют Банк, Т-Банк, АК БАРС, Металлинвестбанк
6.00%
Ставка
40.10%
Первый взнос
от 81 166 /мес.
Все варианты
Посмотреть все спецпредложения
Этаж 4/7
МО, ЖК «Легенда Марусино»
Некрасовка
13 мин.
Строится
студия 23,40 м2 5 592 600
Этаж 6/7
МО, ЖК «Легенда Марусино»
Некрасовка
13 мин.
Строится
студия 23,70 м2 5 664 300
Этаж 6/7
МО, ЖК «Легенда Марусино»
Некрасовка
13 мин.
Строится
студия 24,50 м2 5 855 500
Этаж 2/6
МО, ЖК «Легенда Марусино»
Некрасовка
13 мин.
Строится
Посмотреть 10 квартир в ЖК «Легенда Марусино»
1-комн. квартира 38,40 м2 8 755 200
Этаж 1/6
МО, ЖК «Легенда Марусино»
Некрасовка
13 мин.
Строится
1-комн. квартира 39,50 м2 11 455 000
Этаж 3/7
МО, ЖК «Легенда Марусино»
Некрасовка
13 мин.
Строится
1-комн. квартира 39,70 м2 11 513 000
Этаж 3/4
МО, ЖК «Легенда Марусино»
Некрасовка
13 мин.
Строится
1-комн. квартира 39,80 м2 11 542 000
Этаж 2/6
МО, ЖК «Легенда Марусино»
Некрасовка
13 мин.
Строится
Посмотреть 17 квартир в ЖК «Легенда Марусино»
2-комн. квартира 38,90 м2 11 281 000
Этаж 1/4
МО, ЖК «Легенда Марусино»
Некрасовка
13 мин.
Строится
2-комн. квартира 43,10 м2 9 395 800
Этаж 6/7
МО, ЖК «Легенда Марусино»
Некрасовка
13 мин.
Строится
2-комн. квартира 45,80 м2 13 282 000
Этаж 2/6
МО, ЖК «Легенда Марусино»
Некрасовка
13 мин.
Строится
2-комн. квартира 52,10 м2 15 109 000
Этаж 5/6
МО, ЖК «Легенда Марусино»
Некрасовка
13 мин.
Строится
Посмотреть 23 квартиры в ЖК «Легенда Марусино»
3-комн. квартира 59,90 м2 12 698 800
Этаж 6/6
МО, ЖК «Легенда Марусино»
Некрасовка
13 мин.
Строится
3-комн. квартира 67,40 м2 19 546 000
Этаж 2/7
МО, ЖК «Легенда Марусино»
Некрасовка
13 мин.
Строится
3-комн. квартира 67,60 м2 19 604 000
Этаж 2/7
МО, ЖК «Легенда Марусино»
Некрасовка
13 мин.
Строится
3-комн. квартира 67,80 м2 19 662 000
Этаж 3/7
МО, ЖК «Легенда Марусино»
Некрасовка
13 мин.
Строится
Посмотреть 14 квартир в ЖК «Легенда Марусино»

Скидки и спецпредложения от застройщиков

ЖК «Легенда Марусино» на карте

Выгодные предложения на новостройки

Отзывы о ЖК «Легенда Марусино»

Самый полезный отзыв
А
20 января 2025
Оценка:
Транспортная доступность
Планировки
Расположение
С мужем приобрели тут квартиру для нашего сына - пока растет. Нравится прежде всего расположение и отличный застройщик. Видели его проекты - проблемных нет. Сдача в 2026 году. Продумана каждая мелочь. Жк комфорт плюс. Ждем с нетерпением ключиков
Ответить
Полезный отзыв?
Самый новый отзыв
Т
28 января
Оценка:
Даже не сомневался при покупке. Ну а что – застройщик уже закрыл ни один проект, продумано все грамотно, ценник на жилье тоже вполне себе норм. В итоге приобрел 2-комнатную 56 кв.м. во втором корпусе. Да, ждать придется чуть дальше, зато идеальная для меня планировка
Показать все комментарии
Ответить
Полезный отзыв?
Добавьте отзыв, заполнив личные данные, или сначала войдите на сайт, тогда информация будет автоматически взята из личного профиля.
Оценка*