Republic – жилой комплекс премиум-класса, который строится в центре Москвы, на месте бывших вагоноремонтных мастерских Московско-Брестской железной дороги. Новострой-М уже рассказывал об этом проекте, когда он только вышел на рынок. Как он изменился за это время, в чем его плюсы и минусы, что ждет новоселов — читайте в этом обзоре.
Примечание
В статье перечислены только факты о ЖК, собранные из открытых источников. В рубрике «Экспертиза проекта» Новострой-М решил отказаться от оценок и оценочных суждений: право делать выводы из описанных фактов о жилом комплексе мы предоставляем нашим читателям.
Кто строит?
ЖК Republic – это проект застройщика Forma. Девелопер специализируется на проектах премиум- и бизнес-класса с авторской архитектурой и входит в состав группы компаний ПИК (крупнейший застройщик России по объему ввода жилья по итогам 2023 года, по объему текущего строительства по данным на 1 апреля 2024 года занимает второе место в России).
Компания Forma была создана в 2021 году, тогда же застройщик анонсировал свой первый проект — ЖК Først. ЖК Republic стал вторым в портфеле девелопера. Всего у компании сейчас пять проектов премиум- и бизнес-класса в Москве.
Что строят?
ЖК Republic состоит из 10 жилых корпусов, которые получили названия: Silver, Brown, Green, Gold, Whites (две секции), Purple, Reds (две секции) и Platinum. Дома будут высотой 24–45 этажей и рассчитаны суммарно на 2651 квартиру. Сейчас девелопер возводит корпуса Reds (высотой 26 этажей) и Platinum (33 этажа), сдать их планируется в III квартале 2025 года.
Также в комплексе запроектирован паркинг на 1789 машино-мест, бизнес-центр и своя инфраструктура, которая разместится в исторических зданиях – бывших цехах Московско-Брестской железной дороги.
Мы посещали стройплощадку этого ЖК совсем недавно, в начале апреля 2024 года, и вы можете оценить ход строительства.





ЖК Republic в цифрах:
|
№ корпуса |
Лоты |
Энергоэффект. |
Машино-места |
Класс |
Срок ввода |
|
2.1, 2.2, 2.3 |
691 |
А++ |
388 |
Премиум |
III кв. 2025 |
Архитектура и дизайн
Проект двух секций корпуса Reds спроектировал лондонский архитектор Стив Браун. Здания выполнены в стилистике современной голландской архитектуры, а их кирпичные фасады созвучны историческим цехам, которые сохранились в этом квартале.










Башню Platinum спроектировали Ян Симпсон и Рейчел Хаф из архитектурного бюро в Манчестере, которое работает с 1987 года над проектами по всему миру. В основу архитектурного решения этого корпуса легла пластичность фасадов. Южный фасад будет плоским и образует зимний сад с теплыми лоджиями на всю длину, а северная сторона задана в волнообразном ритме, который формируется за счет эркерных окон. Конструкция восточного и западного фасадов будет рельефной, из окон со смещенным углом откроются обзорные ракурсы.
Проекты других зданий комплекса разрабатывали российские бюро «Меганом» и Wall, архитекторы Макс Дудлер (Швейцария) и Эйдан Поттер (Великобритания).
Благоустройство



Концепцию благоустройства разработало британское бюро ландшафтной архитектуры Gillespies. Благоустроенная территория с ландшафтным дизайном займет 6 гектаров (12 футбольных полей). Здесь будет приватный парк, бульвары и арт-галерея под открытым небом. На площади будет создан каскадный фонтан и обустроены зоны отдыха с тропинками и лавочками. На верхнем бульваре можно устраивать встречи с друзьями и бар-хоппинги. На сборной площади будут проводиться ярмарки, сезонные фестивали, будут работать рестораны и бары с террасами.
Безопасность и технологии
В каждой секции Reds будет по четыре лифта, в башне Platinum – пять. В них будут установлены усилители сигнала сотовой связи, и на каждом можно будет спуститься в прямо паркинг.
На придомовой территории, в лобби, паркинге, лифтовых холлах на этажах и выходах с лестничных клеток на этажи будет установлено видеонаблюдение.
Попасть на придомовую территорию, в паркинг или жилой корпус сможет попасть только обладатель специального ключа-карты, также можно будет зайти с помощью смартфона.
В каждом доме будут установлены датчики дыма, пожарная сигнализация, а в местах общего пользования – система автоматического пожаротущения.
Планировки
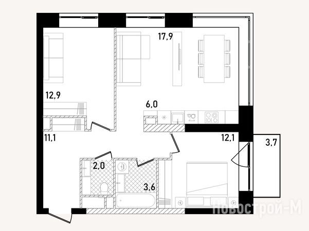
Во всех квартирах башни Platinum предусмотрены мастер-спальни с гардеробной и отдельным санузлом, а также отдельные помещения для постирочной зоны. Высота потолков – 3,1 м. В доме есть лоты с лоджиями, окнами в ванной, а в угловых квартирах есть варианты с просторными кухнями-гостиными с четырьмя окнами. Квартиры сдаются с черновой отделкой.
Сейчас (данные на середину апреля 2024 года) в предложении представлены 47 квартир в этом корпусе: с одной, двумя и тремя спальнями. Пентхаусы пока не поступили в продажу.
Площади квартир:



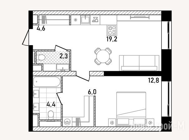
В корпусах Reds есть варианты, которые сдаются с отделкой white box или черновой. В зависимости от выбранного варианта инженерная комплектация отличается, но базовые инженерные параметры одинаковы для всех. В большинстве квартир предусмотрены мастер-спальни с гардеробной и отдельным санузлом, в том числе — ванные со стеклянной стеной. Есть варианты с балконами (и даже двумя) и лоджиями.





Сейчас в продаже имеются 27 квартир: от студий до четырехкомнатных.
Площади лотов в имеющемся предложении:

Где строят?
ЖК Republic строят на улице Пресненский Вал, на территории бывших вагоноремонтных мастерских. В этой локации находятся три станции метро, но ближе всех – «Белорусская». Дойти до нее можно за 9–15 минут, в перспективе от ЖК к ней будет проложен бульвар. Примерно за столько же можно дойти до Белорусского вокзала и станции МЦД «Белорусская».
Станции метро и МЦД, время в пути от ЖК Republic:
Рядом с комплексом также находятся несколько остановок общественного транспорта, откуда можно добраться на автобусе или маршрутке до Москва-сити, Савеловского и Рижского вокзалов или Филевского парка.
Дорога до ТТК на автомобиле займет около 8 минут, чуть меньше составит путь на машине до Садового кольца, до Манежной площади — 12 минут. До МКАДа можно доехать минут за 20. Конечно, время в пути будет зависеть от дорожной ситуации.
Экология
В рейтинге от компании EcoStandard Пресненский район набрал 9 баллов из 10 возможных. Экологическая обстановка здесь оценивается как «удовлетворительная», но максимально близка к «неблагоприятной». Из негативных факторов исследователи называют серьезную загруженность шоссе и, как следствие, сильную загазованность и небольшую площадь зеленых насаждений.
На территории района есть несколько парков: Красная Пресня, Декабрьского восстания, детский парк «Пресненский». К другим зеленым зонам можно отнести Тверской бульвар и сквер на Патриарших прудах.
ЖК Republic будет построен между улицей Пресненский Вал и ж/д путями. Вблизи новостройки нет обширных зеленых насаждений, однако территорию проекта благоустроят, здесь появится собственный обширный ландшафтный парк.
Инфраструктура
Кроме жилья в комплексе запланированы детский сад, фитнес-клуб с водно-термальным комплексом (бассейн и сауны), торговая аллея с бутиками и арт-пространством, гастрономический центр, которые разместятся в исторических зданиях. Также в квартале будет построен бизнес-центр, рассчитанный на 6 тыс. человек.
В жилых корпусах также запроектированы игровые и переговорные комнаты, фитнес-румы с саунами и душевыми зонами и коворкинги.
Рядом с комплексом расположено много частных и муниципальных детских садов. До частного английского детского сада Sun School (Средний Тишинский переулок, 5) переулке и частного детского сада Smile Fish на Малой Грузинской, 29 — не более 900 м, дойти до них можно за 9-10 минут.
Дошкольное отделение Романовской школы (Большой Кондратьевский переулок, 5) расположено в 1,1 км от ЖК Republic, дошкольное отделение школы №1241 «На Красной Пресне» (улица Зоологическая, 26 ст. 2) — в 1,5 км. Примерно на таком же расстоянии находится еще два корпуса дошкольного отделения Романовской школы (Новопресненский переулок, 6 и Зоологический переулок, 10Б). Дойти до них пешком можно минут за 15.
Со школами в этой локации тоже нет никаких проблем. Начальное отделение Романовской школы в Среднем Кондратьевском переулке находится в 720 м от новостройки, пройти это расстояние можно за 9 минут. Еще одно начальное отделение, на улице Климашкина, расположено в 1,1 км от ЖК. В Большом Кондратьевском переулке находится еще одно отделение этой школы. До него можно добраться за 13 минут пешком.
До школы №1950 (находится на улице Красина) — 1,55 км, до отделения той же школы на Зоологической — 1,76 км, до школы №1574 на Тверской-Ямской — 1,72 км. Кадетская школа №1784 с дошкольным отделением на улице Верхняя расположена почти в 2 км от Republic.
Ближайшие продуктовые магазины представлены магазинами в формате «у дома», сетями «Пятерочка», «Мираторг», «Магнолия», «Вкусвилл», «Азбука вкуса» и «Перекресток». Неподалеку от ЖК Republic также находится торгово-выставочный комплекс «Тишинка», легендарный «блошиный рынок», где проходят различные мероприятия. Дойти до него можно всего за 15 минут. А за 15 минут на автомобиле можно доехать до крупнейшего торгово-развлекательного комплекса «Авиапарк». 12–15 минут займет дорога до ТРЦ «Афимолл».
Ближайшая от комплекса взрослая поликлиника – это филиал №3 городской поликлиники №220 (Расторгуевский переулок, 3). До нее можно дойти пешком за минут 15 или минуты за 4 на машине. Детская районная поликлиника находится в полутора километрах от ЖК Republic (Зоологическая улица, 15).
Поблизости находятся и несколько частных медицинских центров, дойти до которых можно менее, чем за 10 минут: «Медси» (Грузинский переулок, 3а), Sarmedica (Малая Грузинская улица, 29), «Биопрестиж-медицина» (Большая Грузинская улица, 39).
Ближайшая студия фитнеса (если не считать того, что планируется в самом ЖК) находится буквально через дорогу от комплекса – Mostudio (улица Пресненский Вал, 38 ст1). На одинаковом расстоянии от ЖК Republic (10–13 минут пешком) работают сразу два премиальных фитнес-центра World Class с тренажерами, аквазоной, зонами боевых искусств и функционального тренинга. В семи минутах от комплекса находится студия пилатеса и йоги (Большой Тишинский переулок, 43/20 ст2), за 12 минут можно дойти до студии персональных тренировок Tao fitness (Большой Тишинский переулок, 10 ст1).
Безопасность
По итогам 2023 года в Пресненском районе было возбуждено 1,4 тыс. уголовных дел по поступившим сообщениям о преступлениях (всего таких обращений было почти 15,3 тыс.). По данным прокуратуры количество преступлений по сравнению с 2022 годом снизилось на 3,9%. При этом их раскрываемость выросла с 25,4% до 49%.
Чаще всего в полицию обращались по поводу краж (четыре из них — квартирные), полицейские раскрыли почти половину из них (47,4%). Также было зафиксировано 11 грабежей, все случаи были раскрыты. Все восемь разбойных нападений также были раскрыты сотрудниками полиции. На территории района ни одного убийства за 2023 год не произошло, говорится в данных прокуратуры.
Ближайший участковый пункт полиции находится на Малой Грузинской улице — до него около 900 метров, примерно столько же и до отделения на Грузинском Валу.
Цены и способы покупки
Продажи квартир в ЖК Republic стартовали в июле 2022 года. В апреле 2024 года цены на квартиры начинаются от 24,4 млн рублей. За эти деньги можно купить студию площадью 30,2 кв. м на третьем этаже первой секции корпуса Reds.
Самый дорогой лот среди имеющегося предложения – квартира с четырьмя спальнями площадью 130,1 кв. м. В ее планировке также два балкона, три санузла, гардеробная, постирочная и кухня площадью 31,4 кв. м. Расположена эта квартира на 25-м этаже первой секции корпуса Reds, а продается она за 106,05 млн рублей.
Цены в ЖК Republic:
|
Тип жилья |
Метраж, кв. м |
Цена, руб. |
Цена за кв. м, тыс. руб. |
|
студии |
26.86 — 31.47 |
27 339 400 — 42 221 800 |
999.2 — 1391.8 |
|
1-комнатные |
33.46 — 53.01 |
31 983 400 — 61 655 800 |
955.9 — 1163.1 |
|
2-комнатные |
32.03 — 65.16 |
30 521 400 — 65 673 800 |
855.2 — 1295.2 |
|
3-комнатные |
60.05 — 110.58 |
52 709 400 — 105 607 800 |
754.2 — 1245.8 |
|
4-комнатные |
78.24 — 138.57 |
68 189 400 — 218 111 800 |
747.1 — 1593.9 |
|
многокомнатные |
116.63 — 140.49 |
111 017 400 — 205 975 800 |
918.6 — 1493.9 |
Комплекс аккредитован в ряде крупнейших банков, среди которых – ВТБ, Сбербанк, Банк Дом.рф, Росбанк Дом, Альфа-Банк, Райффайзенбанк, Открытие, Газпромбанк и другие. Минимальная ставка по ипотеке составляет 3% (ипотека для IT), максимальная – 17,49%.
Также застройщик предлагает варианты рассрочки (40% при оформлении сделки, 20% – через год, оставшиеся 40% – не позднее апреля 2025 года) и покупку квартиры с помощью механизма трейд-ин.
Данные об условиях кредитования действительны на момент публикации статьи. Актуальную информацию вы всегда можете найти в карточке проекта.
Конкуренты
Сейчас рядом с локацией, где расположен ЖК Republic, строятся еще несколько высокобюджетных комплексов как с квартирами, так и с апартаментами.
Ближайший конкурент – это премиальный квартал Life Time от застройщика Sminex. Квартал будет состоять из шести жилых корпусов, четырех городских вилл, клубного дома и большой благоустроенной территории. Цены в ЖК стартуют от 51 млн рублей за однокомнатную квартиру площадью 56 кв. м. Сдать корпуса застройщик планирует во втором квартале 2026 года.
Цены в ЖК Life Time:
|
Тип жилья |
Метраж, кв. м |
Цена, руб. |
Цена за кв. м, тыс. руб. |
|
1-комнатные |
55.10 — 76.50 |
71 540 000 — 107 280 000 |
1158.7 — 1862.9 |
|
2-комнатные |
77.60 — 129.90 |
112 530 000 — 250 910 000 |
1112.5 — 2030.3 |
|
3-комнатные |
108.20 — 215.90 |
147 100 000 — 373 550 000 |
1084.4 — 1901.9 |
|
4-комнатные |
149.00 — 223.80 |
177 810 000 — 443 910 000 |
1191.8 — 2095.5 |
|
многокомнатные |
204.70 — 422.30 |
306 570 000 — 664 780 000 |
1413.7 — 1816.7 |
Еще один проект поблизости – клубный дом «GloraX Premium Белорусская». Сдать его планируется в третьем квартале 2024 года. Это премиальные апартаменты, цены на которые начинаются от 21,3 млн рублей. За эти деньги можно приобрести студию площадью 35,5 кв. м с отделкой white box.
Цены в ЖК «GloraX Premium Белорусская»:
|
Тип жилья |
Метраж, кв. м |
Цена, руб. |
Цена за кв. м, тыс. руб. |
|
студии |
35.20 |
23 099 999 |
656.2 |
|
1-комнатные |
52.60 — 53.40 |
29 749 999 — 30 779 999 |
565.6 — 576.4 |
|
2-комнатные |
67.80 — 97.00 |
38 049 999 — 54 569 999 |
501.9 — 666.8 |
|
3-комнатные |
89.90 — 97.00 |
45 619 999 — 56 909 999 |
504.1 — 601.2 |
Проект премиум-класса SLAVA на Ленинградском проспекте строит девелопер MR Group. Первая очередь квартала с апартаментами уже введена в эксплуатацию, а в сентябре прошлого года здесь стартовали продажи квартир. Второй этап Slava — это четыре башни высотой 36-37 этажей, объединенные стилобатом. Здания рассчитаны на 1 295 квартир, на подземных уровнях разместятся 782 машино-места и 158 кладовых. Все апартаменты в комплексе сдавались с отделкой white box, а вот для квартир такая опция не предусмотрена.
Цены в ЖК SLAVA:
|
Тип жилья |
Метраж, кв. м |
Цена, руб. |
Цена за кв. м, тыс. руб. |
|
студии |
28.10 — 34.40 |
26 958 870 — 33 326 558 |
894.3 — 1112.9 |
|
1-комнатные |
36.40 — 57.90 |
37 171 680 — 53 177 831 |
871.8 — 1231.9 |
|
2-комнатные |
60.80 — 86.40 |
54 518 832 — 86 974 923 |
837.1 — 1068.5 |
|
3-комнатные |
86.70 — 113.40 |
84 898 962 — 107 802 389 |
822.1 — 1101.1 |
|
4-комнатные |
125.20 — 127.30 |
103 043 606 — 124 599 712 |
823 — 978.8 |
|
многокомнатные |
201.00 |
136 138 104 — 136 526 436 |
677.3 — 679.2 |
Резюме
Плюсы проекта:
Минусы проекта:
ЖК Republic подойдет в первую очередь тем, кто хочет жить в центре Москвы. Расположение комплекса, бонусы для резидентов в виде общественных пространств и другие преимущества дорогой недвижимости – свидетельство высокого статуса. Однако нужно учесть, что квартиры здесь идут либо с отделкой white box, либо совсем без нее. А это значит, что придется потратить дополнительные средства на ремонт.
Здесь могут поселиться и большие семьи, и одиночки – варианты планировок позволяют выбрать подходящий вариант. Студии и «однушки» также могут быть интересны инвесторам, но нужно хорошо просчитать экономику – через какое время окупится недвижимость с учетом таких вложений – либо ждать старта продаж в следующих очередях этого амбициозного проекта.
Дата публикации 30 апреля 2024