ЖК Stories — это проект бизнес-класса в престижном районе Раменки на западе столицы. Дом-яхта, дом-история — так позиционирует свой проект застройщик. Комплекс действительно отличается выразительной архитектурой, эргономичными планировками, наличием редких форматов жилья — квартир с террасами и угловым остеклением. Кому подойдет такая «история» и кто сможет стать ее частью, разбирался «Новострой-М».
Примечание
В статье перечислены только факты о ЖК, собранные из открытых источников. В рубрике «Экспертиза проекта» Новострой-М решил отказаться от оценок и оценочных суждений: право делать выводы из описанных фактов о жилом комплексе мы предоставляем нашим читателям.
Кто строит?
Компания October Group ещё мало известна на рынке недвижимости, ЖК Stories — ее первый и довольно амбициозный проект. На официальном сайте компании обозначен ее главный приоритет — создавать не просто дома, а увлекательные сценарии, которые можно будет проживать по-разному. О том, насколько ответственно застройщик относится к срокам, качеству строительства и своим обязательствам, можно будет судить позднее. Однако финансовым партнером проекта выступает государственный банк ДОМ.РФ, что является дополнительной гарантией надежности.
Что строят?
ЖК Stories — дом бизнес-класса, состоящий из двух корпусов разной этажности, объединенных стилобатом. Первые два этажа займут офисы (65 помещений) и объекты стрит-ретейла (18 помещений), а также детский клуб для детей разных возрастов и с разными интересами — спорт, наука, творчество. В комплексе предусмотрены собственный подземный паркинг, благоустроенный двор-патио и эксплуатируемая кровля, на которой будет организована приватная зона отдыха для резидентов. Общая жилая площадь проекта – 23,2 тыс. кв. метров.
ЖК Stories в цифрах:
|
№ дома |
Лоты |
Энергоэффективн. |
Машино-места |
Класс |
Срок ввода |
|
1 |
429 |
А |
113 |
Бизнес |
I кв. 2026 |
Архитектура и дизайн
Проект разрабатывало международное бюро Nikken Sekkei (создатели мастер-плана реконструкции Южного порта и территории возле ТПУ «Ботанический сад»). Создавая Stories, архитекторы были вдохновлены образом яхты, рассекающей водные просторы. Так появился дом-яхта в океане мегаполиса.






ЖК Stories — это два жилых строения, объединенных стилобатом и общим приватным двором. Stories Tower — башня в 29 этажей, из которых 28 — жилые. На них расположатся 277 квартир (в том числе варианты с лоджиями) с высотой потолков до 3,1 метра на типовых этажах и до 3,25 метра – на премиальных.
Terrace House — дом в форме яхты, рассчитанный на 152 квартиры, в том числе с террасами. Площадь этажей постепенно увеличивается, отчего здание приобретает внешние очертания океанского лайнера. На этажах с 3 по 8 будут располагаться квартиры бизнес-класса, верхние этажи (на высоте 95 метров) займут пентхаусы и премиальные квартиры.
У корпуса Terrace House будет эксплуатируемая крыша, где предусмотрены зоны для отдыха, общения за чашкой кофе, занятий йогой.
В отделке домов будут использованы спокойные сдержанные тона, которые сочетаются с окружающим городским и природным пейзажем. Фасады отделают терракотой. Скругленное угловое остекление придаст зданиям мягкую обтекаемую форму, создаст ощущение плавности и текучести. Вертикальные деки сделают облик выразительным и запоминающимся.
Первые этажи зданий — коммерческие помещения. На первом этаже разместятся кафе, магазины, аптеки, отделения банков. На втором — полноценное офисное пространство с отдельной входной группой. Этаж разделен на блоки по 30–40 кв. м. При необходимости офисные блоки можно будет объединять.
Дизайнерские лобби имеют площадь 160 кв. метров (Terrace House) и 250 кв. метров (Stories Tower). Это светлое пространство с панорамным остеклением. В лобби будут зоны с для встреч и отдыха, библиотеки, кофе-пойнты. Эксклюзивная мебель, камины и элементы декора сделают пространство красивым и функциональным.
Благоустройство



Внутренний двор-патио — приватное пространство для отдыха и общения, которое является органичным продолжением архитектуры зданий. В оформлении повторяется цветовая палитра, плавность линий, спокойствие и уравновешенность. Рукотворный ландшафт двора — это уклоны, возвышенности. Удобное покрытие дорожек оптимально для прогулок. Тихие, скрытые от посторонних глаз за деревьями и кустарниками уголки со стульями и лавочками подойдут для работы на свежем воздухе и приватного общения. В зоне патио обеспечен доступ к беспроводному интернету.
Ещё одна зона для отдыха жителей комплекса — крыша Terrace House. Здесь можно будет заниматься йогой или пить кофе.
Безопасность и технологии
Управление комплексом доверят профессиональной команде October Service, которая будет оказывать целый ряд услуг для жителей и арендаторов. Ресепшн в лобби будет работать круглосуточно. К администратору можно будет обратиться с различными поручениями: от вызова такси и заказа еды до организации мелкого ремонта и заказа других услуг.
Для безопасного хранения транспортных средств предусмотрен подземный паркинг, в котором смогут разместиться до 113 автомобилей. Контроль въезда исключает попадание на его территорию посторонних, позволяя владельцам не переживать за сохранность имущества.
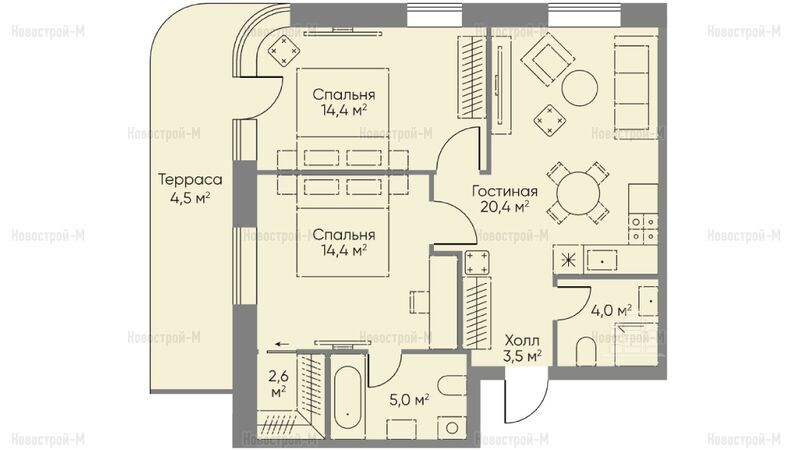
Планировки
В проекте ЖК Stories представлено более 20 вариантов планировок. Все с приставкой «евро», то есть с многофункциональной кухней-гостиной для всех членов семьи и гостей. Площади квартир по проекту – от 22,8 до 92,4 кв. м.




Самые компактные варианты пока не в продаже, в реализации представлены студии площадью 27,3 – 29,8 «квадратов». Такие квартиры прямоугольные в плане, имеют потенциал для комфортного зонирования, прихожую с местом под шкаф, совмещенный санузел с местом под полноразмерную ванную.
В однокомнатных квартирах (от 39,2 до 49,4 кв. м) в спальнях имеется гардеробная, а площадь холла составляет 5 кв. метров, благодаря чему есть дополнительное пространство для установки систем хранения.
В двух- и трехкомнатных квартирах предусмотрены мастер-спальни с обособленной гардеробной и санузлом. В Terrace House можно выбрать квартиры с собственной террасой, а в Stories Tower — варианты с остекленными лоджиями и угловыми панорамными окнами, из которых открывается обзор на 270°.




На типовых этажах располагается от 11 до 19 квартир. Высота потолков — 3,1 м. Вид из окон открывается во двор, на ул. Гайдая или Мосфильмовскую. Из окон верхних этажей Stories Towers видно деловой квартал «Москва-Сити».
Кроме обычных планировок, в проекте предполагаются премиум-квартиры и пентхаусы. Известно, что они займут верхние этажи обоих корпусов, их площадь будет варьироваться от 80 до 140 кв. м, а высота потолков – до 3,25 м.
Все квартиры реализуются без отделки.
Где строят?
Строительство ведется неподалеку от пересечения Аминьевского шоссе с проспектом Генерала Дорохова, благодаря чему подъезд на автомобиле возможен с нескольких сторон. Рядом находится еще несколько крупных автомобильных дорог: Мичуринский проспект, ул. Лобачевского, ул. Мосфильмовская, которые обеспечивают высокую доступность локации для автомобилистов.
С точки зрения общественного транспорта, место также удачное: в 5 минутах ходьбы находится станция метро «Аминьевская» (БКЛ) и одноименная железнодорожная станция, на которой останавливается аэроэкспресс, следующий в аэропорт Внуково. Остановки наземного транспорта находятся вдоль ул. Лобачевского, в 5 – 7 минутах ходьбы от новостройки.
Экология
Район Раменки привлекателен тем, что, несмотря на свою близость к центру столицы, отличается благоприятной экологической обстановкой. Уровень негативного влияния техногенных и антропогенных факторов по оценке специалистов EcoStandard здесь всего 4 балла. Самое сильное воздействие на качество воды и воздуха оказывают автомобильные дороги, которые загружены большую часть времени.
Но у жителей новостройки есть огромный выбор локаций, где они могут отдохнуть от шума и пыли городских улиц. В шаговой доступности находится несколько крупных парков. Живописный парк «Событие», где можно не только прогуляться, но и сделать прекрасные фотографии. Заказник «Долина реки Сетунь», где можно побродить среди вековых деревьев, послушать птиц и журчание воды. Ландшафтный заказник «Долина реки Раменки» раскинулся по обе стороны Мичуринского проспекта и граничит с несколькими парковыми зонами — Ботанический сад МГУ, Парк 50-летия Октября, Воробьевы горы. По соседству располагается и благоустроенная зеленая территория Олимпийской деревни с прудами. До любого из парков можно дойти пешком, потратив на это не более получаса.
Инфраструктура
В ЖК Stories будет создана собственная инфраструктура: магазины, кафе и детский центр, до которых можно дойти, просто спустившись вниз на лифте. Остальная инфраструктура есть в ближайших кварталах или в радиусе пары километров.
Частная школа и детский сад «Классический пансион МГУ им. М.В. Ломоносова» находится 10 минутах пешком. Детский сад «Космо Кидс» – в 2 минутах ходьбы.
Две частные общеобразовательные школы — «Новая школа» и ONE! International School — в получасе ходьбы от новостройки, на ул. Мосфильмовской.
Муниципальные школы района Раменки №1448 и №38, которые имеют при себе отделения для дошкольников, находятся за рекой. Путь к ним лежит через парк и мостик, поэтому пройти напрямую от ЖК Stories не получится. Расстояние в обход составит 2,5 км, пешком его можно преодолеть за полчаса, а на машине — за 10 минут.
Муниципальные образовательные учреждения Очаково-Матвеевского района расположены ближе, чем школы и сады Раменок. В 1,5 км, за Аминьевским шоссе, находятся две школы — №97 и №2025. При обеих школах есть детские сады. Идти до них 15-17 минут.
Ближайшие супермаркеты — «Пятерочка» и «Дикси» — находятся в 3 минутах ходьбы. До крупных ТРЦ «Филион» и «Афимолл Сити» можно доехать на автомобиле или метро. Время в пути — 25 – 30 минут.
Ближайшая городская поликлиника №209 находится за Мичуринским проспектом, в соседнем здании — детская поликлиника №131. Идти до этих учреждений пешком придется полчаса, доехать на автомобиле можно за 10 минут, на метро без пересадок 1 станция — 10 минут, далее 6-7 минут пешком. Путь до частной поликлиники «Семейный доктор» также займет полчаса, идти придется через парк или ехать по Аминьевскому шоссе — 10 минут.
Ближайший фитнес-центр Indoorfit находится в соседнем ЖК «Лобачевский» — на расстоянии 900 метров от ЖК Stories. Студия персонального тренинга Sunrise trainings расположена за Аминьевским шоссе, в 15 минутах ходьбы. До XFit на Мосфильмовской – 9 минут на авто. В районе метро «Раменки» также работают «Цезарь», Spirit Fitness, SK Fitness – до них удобнее всего также добираться на автомобиле, время в пути составит около 10-12 минут.
Пункты выдачи OZON и Wildberries находятся на расстоянии менее 1 км, в соседнем ЖК. Дойти до них пешком можно за 5 – 7 минут.
Безопасность
Из отчета начальника МВД за 2022 год видно, что в районе Раменки за прошедший период на 5% увеличилось число преступлений и настолько же возросла раскрываемость. Чаще всего в районе совершаются кражи и мошенничества, которых можно избежать, если проявлять осторожность и бдительность.
Ближайший к ЖК Stories полицейский участок – УВД по ЗАО, располагается в 15 минутах ходьбы. Участковый пункт №50 – в 10 минутах езды на машине.
Цены и способы покупки
Продажи квартир в ЖК Stories открылись совсем недавно. Сейчас можно выбирать недвижимость на типовых этажах обоих корпусов. Премиум-квартиры пока не выведены в реализацию. Минимальный бюджет начинается с 10,7 млн руб. За эту сумму можно приобрести квартиру-студию на 3 этаже дома-яхты. Стоимость однокомнатных квартир начинается от 16 млн руб.
Цены в ЖК «Stories»:
|
Тип жилья |
Метраж, кв. м |
Цена, руб. |
Цена за кв. м, тыс. руб. |
|
студии |
22.70 — 34.60 |
21 242 258 — 30 751 913 |
882.9 — 935.8 |
|
1-комнатные |
38.80 — 49.90 |
32 901 552 — 43 112 768 |
776 — 922.6 |
|
2-комнатные |
67.10 — 76.30 |
50 577 894 — 61 596 816 |
710.9 — 808.4 |
|
3-комнатные |
82.10 — 91.50 |
59 934 253 — 68 784 820 |
726 — 753.4 |
Продажа осуществляется через эскроу-счета в банке ДОМ.РФ, который выступает главным финансовым партнером проекта. Условия покупки в ипотеку пока неизвестны.
Для тех, кто приобретает квартиру в качестве вложений, девелопер разработал арендную модель «Инвестиции в будущее». Управляющая компания возьмет на себя все заботы о поиске и размещении жильцов, проконтролирует своевременную оплату. Арендаторы получат сервис, близкий к отельному: уборку, прачечную, заказ трансфера, организацию доставки еды, круглосуточную службу ресепшн.
Застройщик приводит прогноз доходности такого сотрудничества. С учетом всех расходов на подготовку квартиры к сдаче, а также оплаты 15% комиссии за управление недвижимостью, владелец будет получать не менее 8% чистой прибыли в год. А в случае продажи окажется в значительном плюсе, так как прогнозируемый рост цен на готовые квартиры в комплексе — 20%.
Конкуренты
Престижный запад Москвы — привлекательная локация для застройщиков, поэтому конкурентов у новостройки достаточно, причем как среди строящихся, так и среди уже готовых комплексов.
Ближайший сосед – ЖК «Вестердам» от компании «Интеко». На сегодняшний день все корпуса в нем введены в эксплуатацию, но в продаже остается еще много лотов. Квартиры в ЖК «Вестердам» отличаются эргономичными планировками, наличием дополнительных санузлов, лоджий, гардеробных, а также интересными видами из окон. Комплекс находится в 2 минутах от ст. м. «Аминьевская». Стоимость квартир здесь варьируется от 17,1 до 43,8 млн руб.
Цены в ЖК «Вестердам»:
|
Тип жилья |
Метраж, кв. м |
Цена, руб. |
Цена за кв. м, тыс. руб. |
Нет в продаже | |||
Рядом возведен также ЖК «Крылья», однако в нем почти не осталось квартир от застройщика. А вот в ЖК «Событие» от компании «Донстрой» на выбор покупателей представлен широкий ассортимент – от студий до многокомнатных. Продажи ведутся в 5 корпусах проекта. Минимальная стоимость – 14,1 млн руб. за студию площадью 22,5 кв. м без отделки. Комплекс соседствует с одноименным парком «Событие» и также расположен недалеко от метро «Аминьевская».
Цены в ЖК «Событие»:
|
Тип жилья |
Метраж, кв. м |
Цена, руб. |
Цена за кв. м, тыс. руб. |
|
студии |
31.50 — 37.30 |
24 564 276 — 28 791 124 |
718.5 — 870.3 |
|
1-комнатные |
38.80 — 59.10 |
25 294 572 — 36 736 704 |
550.2 — 766.4 |
|
2-комнатные |
59.80 — 78.80 |
33 278 976 — 50 321 700 |
518.9 — 716.7 |
|
3-комнатные |
75.40 — 114.20 |
44 608 960 — 65 923 704 |
485.8 — 701 |
|
4-комнатные |
120.70 — 132.80 |
64 405 520 — 96 030 336 |
515.2 — 723.1 |
Резюме
ЖК Stories по сумме характеристик больше подойдет для инвесторов. Престижный район, видовые просторные квартиры, высокий уровень сервиса делают проект привлекательным для сдачи квартир в аренду.
В числе преимуществ комплекса можно отметить:
Недостатком не столько новостройки, сколько самой локации, будет железная дорога, проходящая прямо под окнами, отсутствие рядом с домом городских детских садов и школ, большая плотность застройки — рядом ещё несколько высотных комплексов, небольшое количество парковочных мест.
Однако жилой комплекс имеет все шансы стать центром притяжения для активных творческих людей, молодых пар без детей, молодых специалистов и бизнесменов.
Дата публикации 21 марта 2023