Жилой комплекс комфорт-класса «Селигер Сити» возводится в САО Москвы, в районе Западное Дегунино. Этот проект MR Group по-настоящему масштабный: 11 монолитных домов от 6 до 45 этажей с собственной инфраструктурой. I очередь ЖК планируют ввести в эксплуатацию в ноябре 2019, II – в 2021. Летом этого года комплекс не раз входил в рейтинг самых популярных ЖК старой Москвы на основе данных Росреестра. Новострой-М рассказывает, чем хорош проект MR Group, а что в нем вызывает опасения.
Примечание
В статье перечислены только факты о ЖК, собранные из открытых источников. В рубрике «Экспертиза проекта» Новострой-М решил отказаться от оценок и оценочных суждений: право делать выводы из описанных фактов о жилом комплексе мы предоставляем нашим читателям.
Кто строит
В сентябре 2019 компания MR Group была официально признана девелопером года в восьмой раз. Также она входит в топ-3 крупнейших столичных девелоперов по объёмам строительства и продаж жилой недвижимости. Кроме того, ей присвоен высший среди московских застройщиков уровень надежности (А2).
В портфеле MR Group на сегодняшний день – 38 объектов в Москве, Московской области и Сочи. Увидеть жилые комплексы, которые компания возводит в столице, можно на сайте Новострой-М.
Что строят
ЖК «Селигер Сити» – многофункциональный комплекс из 11 монолитных зданий с собственной инфраструктурой в САО Москвы, в районе Западное Дегунино. Точный адрес новостройки: Ильменский проезд, 14.
Стройка и ввод в эксплуатацию осуществляются в 4 этапа. В настоящее время завершается первый из них: в ноябре этого года в эксплуатацию введут 3 корпуса – «Рембрант», «Баренц» и «Рубенс».
II очередь застройщик планирует завершить в 2021 году. Сроки готовности остальных очередей пока не озвучиваются.
Актуальный вид стройки с высоты птичьего полета вы можете оценить на сайте Новострой-М в разделе Аэротуры.
Съемка Новострой-М от 8 июля 2019 г.
Архитектура и дизайн. ЖК «Селигер Сити» – пример современного городского квартала, который, с одной стороны, благодаря собственной инфраструктуре, является абсолютно автономным, а с другой – гармонично вписывается в окружение.
Корпуса комплекса названы в честь известных российских и европейских художников, путешественников и деятелей науки: «Рембрант», «Баренц», «Рубенс», «Брюллов», «Беринг», «Репин», «Ван Гог», «Кандинский», «Ломоносов», «Левенгук» и флагманский корпус «Новая Голландия».
Высотные постройки будут «обрамлять» территорию ЖК, создавая уютное пространство внутри, в котором расположатся низкоэтажные корпуса и двор.
«Селигер Сити» возводят по монолитной технологии, отделка зданий – клинкерная плитка. Оконные проемы в квартирах увеличены – остекление будет панорамным. Лоджии отсутствуют, но в некоторых лотах есть французские балконы.
За архитектурную концепцию отвечает голландское бюро MLA+.





Придомовая территория. Это, несомненно, сильная сторона «Селигер Сити». Территория комплекса будет огорожена и зонирована. Здесь расположится зеленый парк с собственным водоемом и зонами для пикника, теннисный корт, беговые дорожки, детские и спортивные площадки, кафе с летними террасами.
Ландшафтным дизайном комплекса занимается известное бюро Wowhaus, которое работало над благоустройством набережной на Воробьевых горах, а также над множеством проектов для территорий Парка Горького и ВДНХ.
Безопасность. Как уже было сказано выше, на территории ЖК реализована концепция «двор без машин». Ведется круглосуточное виденаблюдения, вход в подъезд – по отпечатку пальца.
Нежилые метры. На первых этажах ЖК будут открыты магазины, аптеки и кафе. Что касается «детской» инфраструктуры», то в «Селигер Сити» откроют 2 детских сада с углубленным изучением английского языка – каждый из них на 75 мест. И собственную школу с интерактивными классами.
Для автомобилистов будет доступен паркинг. Правда, по меркам квартала небольшой: 780 машино-мест. Напомним, что в рамках только I очереди сдадут 2 корпуса на 1294 квартиры.
Квартиры и планировки
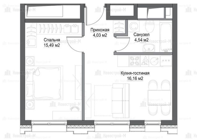
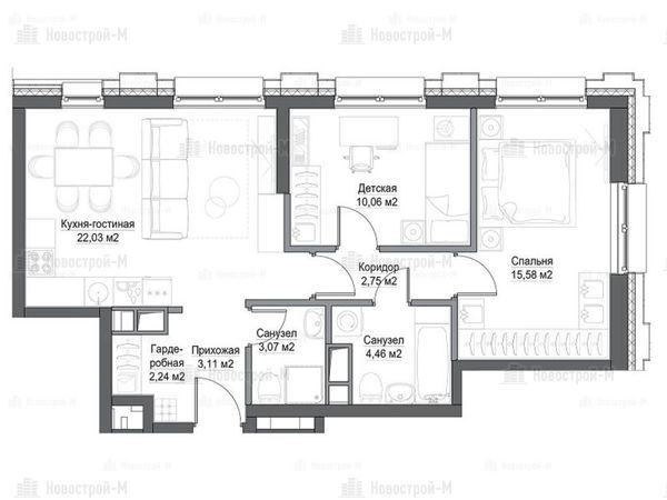
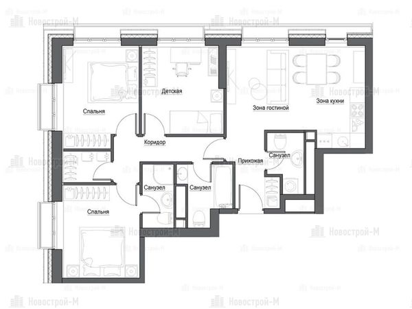
В ЖК «Селигер Сити» покупателям доступны квартиры от 26 до 108 кв. м. Это «однушки», 2-, 3- и 4-комнатные лоты. Высота потолков – 3 метра.
В продаже есть линейные и угловые варианты, а также «распашонки». Планировки как обыкновенные, так и европейские, кухня и гостиная в которых объединены.
Все комнаты изолированные, просторные, «бесполезных» метров практически нет. Большй плюс – наличие гардеробных.
Все доступные квартиры вы можете увидеть на поэтажных планах на сайте Новострой-М. Там же можно проверить виды из окон и уровень инсоляции в квартире, которая вам понравится.




Что касается отделки, то застройщик предлагает покупателям 2 варианта. Первый – отделка MR Base, которая включает в себя возведение межкомнатных перегородок, грунтовку, штукатурку и шпаклевку стен, напольную стужку, скрытую разводку инженерных коммуникаций, установку выключателей и розеток, инженерную подготовку под кондиционер и электрическую подготовку под кухню.
Второй вариант – отделка MR Ready с готовым ремонтом в трех видах: «Классический стиль», «Современный стиль» и «Эко-стиль».
Где строят
ЖК «Селигер Сити» расположен В ЗАО Москвы, в районе Западное Дегунино. Траспортная доступность здесь по московским меркам неплохая. В первую очередь стоит отметить, что до метро «Селигерская» идти от комплекса всего 5 минут. До железнодорожной платформы «Моссельмаш» – 16 минут. С нее можно за полчаса доехать до Ленинградского воказала.
Возле новостройки проходит Дмитровское шоссе, по нему до ТТК – 9 км, это около 15 минут без пробок. Чуть дальше (еще плюс 2 км) находится Садовое кольцо.
У автомобилистов могут возникнуть проблемы из-за пробок только в традиционные часы пик: с 8 до 10 утра и с 18 до 20 часов.
Экология
Согласно экологическому рейтингу от EcoStandard, у района Западное Дегунино 1 балл из 4 возможных. Другими словами, экологическая обстановка здесь неблагоприятная.
Удивительного в этом ничего нет – сам ЖК «Селигер Сити» строится на территории промышленной зоны №48 «Дегунино-Лихоборы», также рядом проходит железная дорога и располагается промзона №45 «Автомоторная».
Ситуацию немного смягчает наличие поблизости парка имени Святослава Федорова, Дегунинский пруд и экологический парк «Лихоборка».
Также не стоит забывать о том, что на территории самого ЖК появится полноценная зеленая зона с собственным водоемом.
Инфраструктура
Благодаря внутренней инфраструктуре комплекса, которая будет представлена магазинами, аптеками, спортивными объектами и кафе, жители «Селигер Сити» смогут не беспокоиться о том, что им придется далеко ходить за покупками и развлечениями.
Однако вопросы (как всегда) вызывает социальная инфраструктура. Двух небольших детских садов и одной школы будет явно недостаточно.
Но здесь на помощь придут районные учреждения. Поблизости есть несколько школ. Время в пути пешком до них составит от 10 до 20 минут.
Школы
Детских садов меньше, но они тоже есть. Идти придется недолго: около 10 минут.
Детские сады
Медицинские учреждения тоже практически «под боком». До взрослой поликлиники пешком 15 минут, до детской – 7.
Что касается покупок, то в 4 минутах ходьбы от ЖК находится крупный торговый центр XL с кинотеатром и различными детскими активностями. Помимо него, в районе много небольших магазинов и супермаркетов.
Если говорить о спортивной инфраструктуре, то и она в районе развита очень хорошо. В радиусе 1 км вокруг «Селигер Сити» есть более 5 спортивных клубов, включая специализированный для мам и малышей.
Безопасность
По данным московской прокуратуры, Северный округ находится на третьем месте по количеству совершенных преступлений в январе-июне этого года (всего 2 053). Опережают его ЦАО и ЮЗАО. Если говорить конкретно о ЖК «Селигер Сити», никаких потенциально опасных объектов рядом с ним нет.
Что касается охраны порядка, в 20 минутах ходьбы от комплекса находится отдел МВД по Району Бескудниковский и несколько участковых пунктов полиции.
Цены
Продажи в ЖК «Селигер Сити» стартовали в конце апреля 2017 года. Тогда самый недорогой лот здесь можно было приобрести за 3,9 млн рублей. Сейчас цены в комплексе начинаются от 5,7 млн рублей.
Цены в ЖК «Селигер Сити»
|
Тип жилья |
Метраж, кв. м |
Цена, руб. |
Цена за кв. м, тыс. руб. |
|
студии |
29.01 — 35.84 |
16 308 639 — 18 753 342 |
484.7 — 562.2 |
|
1-комнатные |
38.05 — 48.15 |
19 214 955 — 23 989 064 |
475.8 — 524.9 |
|
2-комнатные |
56.54 — 85.23 |
25 730 676 — 36 891 574 |
378.9 — 480.2 |
|
3-комнатные |
80.71 — 109.90 |
37 479 545 — 50 037 580 |
425.7 — 464.4 |
Корпуса, в которых продажи уже стартовали (это I и II очередь строительства), продаются по старым правилам – без использования счетов эскроу. Так что не лишним будет спросить у застройщика о наличии ЗОСК.
Проект акрредитован многими крупными банками, самые выгодные условия по ипотеке предлагает банк «Открытие» – 8,25%. По семейной ипотеке самое привлекательное предложение у «Газпробанка» – 4,9%.
Кроме того, покупателям доступна рассрочка. Тем, кто хочет приобрести квартиру в I очереди ЖК, предоставляется беспроцентная рассрочка с первоначальным взносом 50% сроком до 31 декабря 2019 года. Скидка на первоначальный взнос 6%.
Для тех, кто собирается покупать жилье во II очереди ЖК, предоставляется беспроцентная рассрочка с первоначальным взносом 20% сроком до 31 декабря 2020 года. На первоначальный взнос действует скидка 8%.
Конкуренты
Среди прямых конкурентов «Селигер Сити» – жилой комплекс «Тринити», который возводит ГК «Гранель». Он находится всего в получасе ходьбы от нашего ЖК, возле станции метро «Верхние Лихоборы».
Новостройка также относится к комфорт-классу, сдана она будет в III квартале 2021 года.
Цены здесь на некоторые лоты чуть выше, чем в ЖК «Селигер Сити», но метраж квартир при этом больше.
Цены в ЖК «Тринити»
|
Тип жилья |
Метраж, кв. м |
Цена, руб. |
Цена за кв. м, тыс. руб. |
|
студии |
25.75 — 29.88 |
14 588 786 — 16 569 904 |
536 — 574.8 |
|
2-комнатные |
38.25 — 43.96 |
16 585 878 — 22 229 500 |
429.5 — 536.3 |
|
3-комнатные |
60.37 — 71.90 |
20 250 060 — 28 097 171 |
329.2 — 432.4 |
|
4-комнатные |
86.20 — 86.30 |
31 775 744 — 32 286 882 |
368.2 — 374.1 |
Резюме
Плюсы ЖК «Селигер Сити»:
– надежный застройщик;
– проработанная архитектурная концепция;
– благоустройство придомовой территории;
– удобные планировки и панорамные окна;
– 5 минут до ближайшей станции метро («Селигерская»).
Минус у новостройки только один – экологическая обстановка в районе Западное Дегунино. Однако вполне возможно, что близлежащие промзоны в скором времени рекультивируют и застроят новым жильем и полезной инфраструктурой.
Комментирует Денис Бобков, генеральный директор аналитической и консалтинговой компании «Недвижимость-Профи»
Высотный жилой комплекс «Селигер Сити» возводится на севере Москвы, в отличной доступности к метро (5 минут пешком), и хорошей доступности (15 минут) до будущей станции МЦД-3 «Моссельмаш» (ориентировочно введут в 2021-2022).
Проект создавался именитым нидерландским архитектурным бюро, а над закрытым от машин двором поработало российское бюро, стяжавшее себе славу на таких известных объектах как «Парк Горького» (набережная, входная группа с Ленинского проспекта и т.п.), «Крымская набережная», благоустройство исторического центра Тулы и т.п.
В самом комплексе предусматриваются два детских сада и школа, кафе, магазины, супермаркет, пекарни и даже фитнес-центр с аптеками. Внешняя инфраструктура также достаточно развита – есть и образовательные учреждения, и большой торговый центр, и другие социальные и коммерческие объекты.
К недостаткам местоположения можно отнести экологию. Все-таки близость химзавода («Аурат» - менее 1 км по прямой), а также в целом Промзоны №45 с юго-западной стороны при соответствующем направлении ветра будет сильно влиять на свежесть воздуха. При этом компенсировать такое соседство можно только с помощью одного небольшого парка, расположенного в 10 минутах пешком.
Кстати о ветре. Известно, что чем выше здание, тем сильнее внизу у него ощущается ветер. Максимальная этажность в первой очереди – 38, а во второй очереди – 45 этажей. Это в два-три раза выше обычных панельных домов в спальных районах. Причём высотные дома образуют две стены, вдоль которых как раз и будет гулять ветер. Интересно, чем обосновано такое решение и была ли сделана какая-то продувка в аэродинамической трубе? Так или иначе, но несмотря на всю работу по ландшафту дворового пространства, с высокой вероятностью ветер будет внизу очень сильным.
Каждому корпусу присвоена фамилия известного художника или (почему-то) путешественника. Каким образом Виллем Баренц или Витус Беринг попали в разношёрстную компанию Ван Гога, Кандинского, Брюллова, Репина, Рубенса и Рембрандта, не очень понятно. А уж как ЖК может называться после всего этого «Селигер Сити» - вообще загадка.
Ассортимент квартир широкий, представлены все типы – от студий до пятикомнатных. Используется удобная и популярная европланировка с объединёнными кухнями-гостиными («классики» с отдельными кухнями осталось, видимо, немного). Рекомендую внимательно изучать планировки перед покупкой – например, гостевой санузел может оказаться в спальной зоне.
На выбор предлагаются квартиры в секциях без отделки или с предчистовой (так называемый whitebox). Опционально можно и договориться о полной отделке.
В целом, ввиду близости метро и неважной экологии проект больше подходит не для семейного, по крайней мере, долгосрочного проживания. А вот рассматривать приобретение здесь квартир для последующей сдачи в аренду – хороший вариант. За год продаж средняя цена во второй очереди выросла примерно на 23% и достигла 210 тыс. руб./кв.м , однако частично рост обусловлен решением девелопера уже после открытия продаж предложить часть квартир с отделкой whitebox, что отразилось на повышении средней цены. Ожидать столь же бурного роста до сдачи в эксплуатацию не стоит, тем более что рядом, на смежном участке, возводится комплекс ГК ПИК «Ильменский 17» со средней ценой 173 тыс. руб./кв.м за квартиры с полной отделкой, с теми же сроками сдачи, относительно небольшой этажностью (всего 23 этажа) и более разнообразной посадкой корпусов, в т.ч. направленной на создание благоприятного микроклимата в квартале.
Дата публикации 21 октября 2019