Жилой комплекс Rakurs строится в районе Щукино, в шаговой доступности от метро, МЦК и нескольких парков. В нем спроектированы просторные квартиры, необычные лоты и собственная инфраструктура для резидентов. О плюсах и минусах района, самого проекта и его прямых конкурентах – в разборе Новострой-М.
Примечание
В статье перечислены только факты о ЖК, собранные из открытых источников. В рубрике «Экспертиза проекта» Новострой-М решил отказаться от оценок и оценочных суждений: право делать выводы из описанных фактов о жилом комплексе мы предоставляем нашим читателям.
Кто строит?
Строительством жилого комплекса занимается девелопер Dar. Компания специализируется на проектах бизнес- и премиум-класса, а также офисной недвижимости. ЖК Rakurs – один из первых проектов застройщика на московском рынке недвижимости.
Компания Dar входит в инвестиционно-строительный холдинг Bestcon, который работает на рынке недвижимости более 20 лет и ввел в эксплуатацию 624 тысячи квадратных метров жилых и коммерческих проектов.
Что строят?
Rakurs – ЖК бизнес-класса, который строится в северо-западной части Москвы, в районе Щукино. В состав комплекса входят три башни высотой 18, 26 и 44 этажа, связанные между собой пятиэтажными строениями. Также в проекте планируется школа, детский сад и подземный паркинг на 374 автомобиля.
ЖК Rakurs в цифрах:
|
№ |
Лоты |
Энергоэффект. |
Машино-места |
Класс |
Срок ввода |
|
2 |
744 |
А |
182 |
Бизнес |
I кв. 2028 года |
|
3 |
171 |
А |
130 |
Бизнес |
II кв. 2026 года |
Архитектура и дизайн
Проект ЖК Rakurs был разработан архитектурным бюро СПИЧ. По задумке авторов концепции каждая из трех башен будет иметь свой силуэт: стопка книг, стеллаж и раскрытая книга.
Для отделки фасадов будут использоваться алюминий, клинкерная плитка и камень. Это должно подчеркнуть внешнюю индивидуальность корпусов. Фасады комплекса будут украшены изысканной архитектурной подсветкой. Каскадная архитектура позволит обеспечить улучшенную инсоляцию квартир большую часть дня.









Разработкой дизайна лобби занималась команда Rymar.Studio. Лобби должны продолжить стиль здания — строгость линий и геометричность пространства с плавными деталями в интерьере. Каждое пространство будет обладать чертами фасадов корпуса, в котором оно расположено. В интерьерах планируется использовать медные панели, керамику терракотового цвета, шпон, а также авторские освещение и мебель.
В лобби будет работать консьерж-сервис. Также на первом этаже разместятся колясочная и лапомойка.
Благоустройство
Проектом благоустройства комплекса занималось бюро Scape. На территории предусмотрены двухуровневая детская площадка и спортивная зона со стеклянным двухуровневым павильоном. На его верхнем этаже расположится площадка для йоги, а в нижней игровой зоне установят кикер и настольный хоккей.




По задумке авторов концепции, во внутреннем дворе все будет плавным и закругленным, чтобы смягчить строгую архитектуру самих корпусов ЖК.
На территории планируется высадить 50 видов растений: клен, липу, яблоню, рябину, иргу, сосну, можжевельник, дерен, спирею и другие.
На крыше одного из зданий для жителей создадут зеленую видовую террасу, где можно будет отдохнуть, выпить кофе, пообщаться или поработать на открытом воздухе.
Безопасность и технологии
На этажах, в лобби и паркинге будет установлено видеонаблюдение с прямой трансляцией, также во всем комплексе будут установлены усилители сотового сигнала и точки доступа к wi-fi. Управлять видеодомофоном можно будет со смартфона.
К квартирам будут подведены системы вентиляции и кондиционирования, в доме будет установлена индивидуальная система очистки воды.
Высокоскоростные лифты доставят жильцов комплекса на любой этаж: от подземного паркинга до крыши. Подземный паркинг в ЖК будет оборудован зарядными станциями для электромобилей. Там же будет размещена автомойка самообслуживания. Въезд в паркинг гостям и жителям будет доступен по номерам автомобилей.
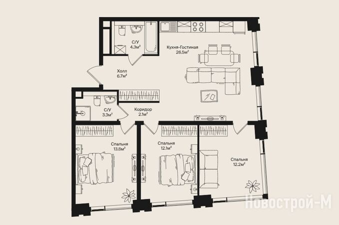
Планировки
В проекте представлены квартиры как классических, так и европланировок. Площадь лотов в проекте: от 28,7 кв. м до 152,5 кв. м. Есть варианты с террасами (в том числе студии), планировки с мастер-спальнями, с окном в ванной и с увеличенной высотой потолка (до 3,6 метра). Также застройщик предлагает возможность объединения соседних квартир.




Площади квартир в имеющемся предложении (все данные в статье актуальны на конец марта 2025 года):
Квартиры сдаются с предчистовой отделкой или без отделки, на выбор.
Где строят?
ЖК Rakurs строится в районе Щукино, на северо-западе Москвы. В шаговой доступности от жилого комплекса расположены станции метро и МЦК. Также рядом с комплексом находятся две остановки общественного транспорта «Курчатовская школа» и «Маршала Бирюзова, д.1», на которых можно сесть на автобус маршрута с339.
Время в пути до станций метро и МЦК:
До МКАД на автомобиле можно доехать за минут 12, до ТТК – за 10. Около 15 минут займет путь на машине до «Москва-Сити» или до Садового кольца. В зависимости от загруженности дорог время в пути может меняться.
Экология
Согласно рейтингу компании EcoStandard, экологическая обстановка в Щукино оценивается как «благоприятная». Район получил 5 баллов в рейтинге, где самая негативная оценка – 10. Одним из самых позитивных показателей исследователи выделили низкую загруженность автомобильных дорог (всего 2 из 10).
Рядом с жилым комплексом расположены несколько парков и скверов. Например, до сквера Берзарина и Октябрьского радиополя можно дойти меньше чем за 10 минут. Около 14 минут займет путь пешком до парка Березовая роща. За 20 минут можно дойти до мемориального парка Героев Первой Мировой войны, за 27 минут – до парка Ходынское поле.
Инфраструктура
Собственная инфраструктура ЖК будет включать в себя образовательный центр: детский сад на 75 мест и начальную школу для 200 учащихся. А на первых этажах разместятся различные магазины и заведения: аптека, фитнес-центр, салон красоты, ресторан, супермаркет, стоматология и т. д. Для резидентов будут доступны комьюнити-центр Knowledge Hub с лаундж-зоной, коворкингом, кофейней и частной библиотекой.
Менее чем в 10 минутах ходьбы расположены четыре муниципальных детских сада: «Маргаритка» (улица Берзарина, 6 к2), «Совенок» (улица Народного Ополчения, 42 к2), «Тигренок» (улица Маршала Бирюзова, 4 к2) и «Винни-Пух» (Тепличный переулок, 5 к1).
Также рядом есть несколько частных детских садов, ближайший из которых – «Милый домовенок» – работает в соседнем доме (улица Берзарина, 4).
Путь пешком до ближайшей школы займет около 6 минут. Это школа «Маршал» (улица Маршала Бирюзова, 6), которая входит в состав ГБОУ «Курчатовская школа». До еще одного отделения этой школы – «Вектор» (улица Маршала Конева, 11) – можно дойти пешком за 13 минут.
Путь пешком до филиала детской городской поликлиники №58 (Пехотная улица, 3 ст16) займет около 25 минут. Доехать до него на машине можно минут за 10. Взрослое отделение – Городская поликлиника №115 расположена немного ближе к ЖК на улице Маршала Бирюзова, 30. До нее можно доехать на машине за 7 минут, или дойти пешком за 17 минут.
Чтобы увидеть объекты, нажмите на соответствующую кнопку внизу карты:
В шаговой доступности от ЖК работают несколько продуктовых магазинов: от небольших заведений (Тепличный переулок, 4), до сетевых супермаркетов федеральных сетей «Пятерочка» (улица Маршала Малиновского, 3 и 3-я Хорошевская улица, 27 к1), «ВкусВилл» (3-я Хорошевская улица, 21а и ул. Маршала Малиновского, 8) и других. За 15-20 минут можно доехать до крупнейшего ТРЦ в Москве – «Авиапарка».
Менее чем в 10 минутах ходьбы от ЖК расположены фитнес-клубы «Паллада & Лакшми» (улица Маршала Бирюзова, 7), Self made (3-я Хорошевская улица, 12), спортклуб Fiji (3-я Хорошевская улица, 21а), студия йоги «Сангат», академия боевых искусств «12 раундов».
Безопасность
Криминогенную обстановку в районе Щукино нельзя назвать негативной. Согласно данным информационно-аналитической записки о результатах оперативно-служебной деятельности районного отдела МВД, количество преступлений на территории Щукино сокращается. В 2023 году, например, здесь было зарегистрировано 1169 преступлений общеуголовной направленности. Большинство из них приходятся на мошенничества и кражи.
Участковый пункт полиции расположен через три дома от жилого комплекса Rakurs (улица Ирины Левченко, 2). Путь до него пешком займет 3–5 минут.
Цены и способы покупки
Продажи квартир в ЖК Rakurs стартовали в октябре 2024 года. Сейчас, в середине марта 2025 года, на официальном сайте проекта доступны для покупки 114 вариантов, а цены начинаются от 15,35 млн рублей. За эти деньги можно приобрести студию площадью 29,7 кв. м. Она будет передаваться покупателю без отделки, а расположена – на втором этаже 44-этажного корпуса.
Самый дорогой лот в имеющемся предложении – квартира площадью 101,8 кв. м на 22 этаже 26-этажного второго корпуса ЖК. Высота потолков в ней – 3,6 м, сдается этот лот с предчистовой отделкой. В планировке этой квартиры: три санузла, три спальни, кабинет площадью 9,3 кв. м и кухня-гостиная площадью 33,8 кв. м. Стоимость – 53 млн рублей.
Цены в ЖК Rakurs:
|
Тип жилья |
Метраж, кв. м |
Цена, руб. |
Цена за кв. м, тыс. руб. |
|
1-комнатные |
28.70 — 41.80 |
19 218 295 — 29 787 807 |
563.8 — 837.6 |
|
2-комнатные |
51.90 — 92.10 |
26 700 840 — 47 498 457 |
479.4 — 668.4 |
|
3-комнатные |
76.90 — 126.50 |
36 453 443 — 59 255 510 |
450.6 — 527.1 |
|
4-комнатные |
101.80 — 106.90 |
49 208 472 — 55 494 890 |
482.4 — 535 |
Приобрести жилье можно в ипотеку (семейную и комбо), в том числе траншевую. Также застройщик предлагает различные варианты рассрочки сроком от 6 до 33 месяцев и вариант с покупкой квартиры в Trade-In.
Данные об условиях кредитования действительны на момент публикации статьи. Актуальную информацию вы всегда можете найти в карточке проекта.
Конкуренты
Сейчас рядом с ЖК Rakurs строится еще три комплекса бизнес-класса. На улице Куусинена Группа «Аквилон» возводит ЖК Indy Towers. Проект включает в себя пять башен высотой от 23 до 55 этажей и одноэтажный стилобат, который их соединяет. Сдать ЖК в эксплуатацию планируется в IV квартале 2026 года. Цены на квартиры в Indy Towers в конце марта 2025 года начинаются от 15,2 млн рублей. За эти деньги можно приобрести студию площадью 19,9 кв. м.
Актуальные цены в ЖК Indy Towers:
|
Тип жилья |
Метраж, кв. м |
Цена, руб. |
Цена за кв. м, тыс. руб. |
|
студии |
21.20 — 36.90 |
19 039 550 — 34 541 589 |
686.1 — 1311.1 |
|
1-комнатные |
31.70 — 74.90 |
21 421 018 — 68 414 770 |
511.4 — 1401.9 |
|
2-комнатные |
49.10 — 97.20 |
28 154 907 — 97 528 129 |
481.6 — 1225.9 |
|
3-комнатные |
65.00 — 118.60 |
34 937 564 — 102 908 743 |
470.5 — 1177.4 |
|
4-комнатные |
95.40 — 113.70 |
55 068 219 — 142 707 052 |
577.2 — 1255.1 |
Еще один проект бизнес-класса поблизости – ЖК «MYPRIORITY Мневники» от девелопера «Гранель». В проекте несколько разновысотных секций, от 2 до 39 этажей, организованных на стилобате. Строительство первых корпусов планируется завершить во II квартале 2028 года. Самый бюджетный лот в имеющемся предложении – студия без отделки площадью 28,03 кв. м. Купить ее можно за 14,6 млн рублей (данные на конец марта 2025 года).
Актуальные цены в ЖК «MYPRIORITY Мневники»:
|
Тип жилья |
Метраж, кв. м |
Цена, руб. |
Цена за кв. м, тыс. руб. |
|
студии |
28.02 — 30.36 |
16 031 423 — 18 923 788 |
571.5 — 646.3 |
|
1-комнатные |
31.47 — 52.18 |
17 600 025 — 25 725 382 |
470.8 — 600.3 |
|
2-комнатные |
55.49 — 78.23 |
27 591 179 — 37 208 997 |
436.3 — 533.2 |
|
3-комнатные |
58.53 — 96.92 |
27 843 879 — 44 239 816 |
451.7 — 514 |
|
4-комнатные |
89.14 |
42 398 185 |
475.6 |
|
многокомнатные |
116.97 |
61 804 350 |
528.4 |
ЖК «Дом на Зорге» будет состоять из двух 16-этажных монолитных башен, объединенных общим лобби. Застройщик – ГК «А101» – планирует сдать его в I квартале 2026 года. Цены в этом проекте начинаются от 18 млн рублей. За эти деньги продается студия с отделкой white box площадью 24,5 кв. м.
Актуальные цены в ЖК «Дом на Зорге»:
|
Тип жилья |
Метраж, кв. м |
Цена, руб. |
Цена за кв. м, тыс. руб. |
|
студии |
32.40 — 34.30 |
21 920 932 — 23 419 362 |
676.6 — 682.8 |
|
1-комнатные |
36.10 — 37.30 |
25 831 922 — 27 912 024 |
715.6 — 748.3 |
|
2-комнатные |
42.50 — 74.40 |
23 692 775 — 39 209 072 |
436.7 — 658.3 |
|
3-комнатные |
64.20 — 87.20 |
30 133 086 — 44 425 816 |
414.3 — 587.5 |
|
4-комнатные |
86.50 — 104.10 |
42 435 866 — 55 952 919 |
410.4 — 566.7 |
Резюме
ЖК Rakurs стоит рассмотреть в первую очередь семейным покупателям. Здесь просторные квартиры – даже самые компактные варианты будут комфортны для проживания не только одиночек, но и, например, молодых пар. Хороший благополучный район с развитой инфраструктурой и большим количеством парков и скверов поблизости. Детский сад и школа – прямо в жилом комплексе.
Плюсы:
Минусы:
Инвесторам этот ЖК тоже подойдет. Сейчас в районе активно строятся проекты бизнес-класса. Близость метро и хорошая транспортная доступность только добавляют плюсов местной недвижимости, делая ее высоколиквидной.
Дата публикации 25 марта