Жилой комплекс «Новая Ивантеевка» от компании «Профи-Инвест» расположен в городе Ивантеевка Пушкинского городского округа Московской области. Рядом с новостройкой — три парка, школа, поликлиника и другая инфраструктура для комфортной жизни. Подробнее о плюсах и минусах проекта — в обзоре «Новострой-М».
Примечание
В статье перечислены только факты о проекте, собранные из открытых источников. В рубрике «Экспертиза проекта» Новострой-М решил отказаться от оценок и оценочных суждений: право делать выводы из описанных фактов мы предоставляем нашим читателям.
ООО «Профи-Инвест» работает на рынке недвижимости Подмосковья уже более 15 лет. Застройщик зарекомендовал себя как надежный партнер, реализующий проекты различной сложности, включая жилые комплексы и коммерческие объекты. Компания акцентирует внимание на качестве строительства, соблюдении сроков, а также создании комфортной среды для жизни.
«Профи-Инвест» занимает шестую строчку в рейтинге Единого реестра застройщиков по объемам строительства в Московской области. В ее портфеле 9 готовых жилых комплексов и 6 — на разных стадиях реализации. ЖК «Новая Ивантеевка» является одним из ключевых текущих проектов. Со всеми актуальными ЖК компании можно ознакомиться на сайте Новострой-М.
«Новая Ивантеевка» представляет собой жилой комплекс комфорт-класса. На участке площадью 57,95 га будут построены монолитно-кирпичные многоквартирные дома, наземно-подземные и отдельно стоящие паркинги, объекты торговой и социальной инфраструктуры, собственная котельная. Всего планируется возвести 13 жилых домов переменной этажности — от 12 до 25 этажей.
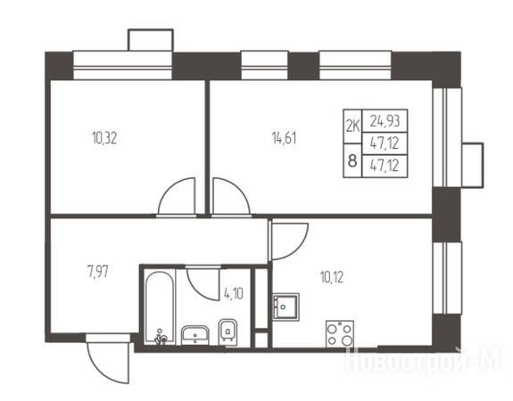
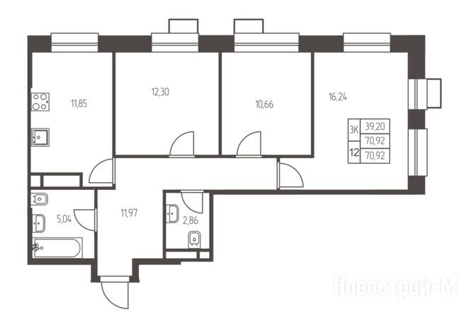
Квартирография проекта представлена различными планировочными решениями: студии, однокомнатные, двухкомнатные и трёхкомнатные квартиры общей площадью от 28,2 до 75,6 кв. м.
Проект реализуется в несколько этапов. Первые корпуса будут сданы во второй половине 2026 года.
ЖК «Новая Ивантеевка» в цифрах:
Архитектура комплекса отличается сдержанностью и эргономичностью. Это современные монолитно-кирпичные корпуса из 2-4 разновысотных секций. Переменная этажность (от 12 до 25 этажей) делает облик комплекса сбалансированным и динамичным. К тому же такой прием позволяет наполнить внутренние дворы солнечным светом и повысить инсоляцию квартир на нижних этажах.
Для оформления фасадов зданий будут использованы панели мягких оттенков белого, серого, оранжевого и коричневого. Первые этажи будут облицованы декоративным кирпичом.
Дизайн общественных зон (лобби, холлы) выполнен в современном стиле с использованием практичных материалов: керамогранита, декоративной штукатурки, металлических элементов и точечного освещения. Входные группы на уровне земли обеспечат комфорт для перемещения с колясками, велосипедами, чемоданами. Колясочные решат проблему размещения детского транспорта.





На территории жилого комплекса запланированы зоны для спокойного отдыха и активного времяпровождения: детские площадки с современным и безопасным игровым оборудованием, спортивные площадки, прогулочный бульвар и сквер, зоны с лавочками и озеленением. Работы по комплексному благоустройству выполняются по мере сдачи очередей.



Для обеспечения комфорта жителей квартала и безаварийной работы всех систем застройщик планирует модернизировать часть коммуникаций (сети водоснабжения, водоотведения, отопления и ливневую канализацию), а также проложить новые. Кроме того, на территории ЖК будут построены: газовая котельная мощностью 77 МВт, 14 трансформаторных подстанций, водозаборный узел и очистные сооружения.
Системы безопасности включают видеонаблюдение и контроль доступа. Также будет ограничен проезд автомобилей во дворы.
В жилом комплексе представлены квартиры с 1, 2, 3 комнатами и студии. Площади варьируются:
Планировочные решения разнообразные. Есть студии вытянутой и квадратной формы, с одним или двумя окнами. Среди однокомнатных есть варианты с раздельным и совмещенным санузлом, в некоторых квартирах в коридоре остается ниша для организации кладовой или небольшой гардеробной. В многокомнатных квартирах расположение комнат в основном линейное, но есть несколько лотов с проходной кухней, по обе стороны от которой расположены спальни.
Высота потолков — 2.7 м.
Отделка — white box.




Жилой комплекс строится в городе Ивантеевка на северо-востоке Московской области. Ключевой транспортной магистралью в этой локации является Ярославское шоссе, которое обеспечивает прямую связь с Москвой. Расстояние от новостройки до МКАД — 20 км. Выехать на Ярославское шоссе можно по Ивантеевскому шоссе или через ул. Пушкинское поле. Дорога до столицы на автомобиле занимает 25 мин., но в часы пик возможны задержки на выезде из города и на Ярославском шоссе.
Добраться до Москвы будущие жители комплекса смогут и на общественном транспорте. В получасе ходьбы расположена железнодорожная станция Ивантеевка-2 (2,8 км).
Остановки автобусов расположены на небольшом удалении от ЖК — на Заводской ул., (10 мин. пешком) и на Ивантеевском шоссе (18 мин. пешком). Через остановку на Ивантеевском шоссе следует прямой автобус (№316) до ВДНХ, время в дороге — 40-45 мин. На той же остановке можно сесть в автобус до соседнего города Пушкино.
На электричке доехать до Ярославского вокзала Москвы можно за 1 час (или за 40 мин. на экспрессе). Интервал в движении поездов в утренние и вечерние часы составляет 20-30 мин., днем — 1-1,5 часа.
Ивантеевка — город с развитой промышленной историей, однако многие производства в настоящее время неактивны. Основные источники потенциального загрязнения воздуха — автомобильная трасса (Ярославское шоссе) и промзона на окраине города.
У расположения жилого комплекса «Новая Ивантеевка» есть как плюсы, так и минусы. С одной стороны новостройка граничит с Ивантеевским дендрологическим парком имени академика А.С. Яблокова, с другой — с действующими предприятиями по производству металлоконструкций (ЗМК МАМИ и Стальинтекс Трейд). В 20 мин. ходьбы находится большая зеленая зона — Ивантеевский лес. А за полчаса можно дойти до благоустроенного Городского парка, где есть каток, кафе, набережная, фонтаны и даже пляж на реке Уча.
В планах застройщика создать в новом жилом комплексе полноценную инфраструктуру — построить спортивный комплекс, две школы (на 1100 мест каждая) и три детских сада (на 300, 320 и 330 мест). На первых этажах жилых домов разместятся магазины, кафе парикмахерские и другие сервисы.
Кроме того, новоселам будет доступна развитая городская инфраструктура Ивантеевки.
Детские сады
Ближайшее к новостройке дошкольное учреждение — детский сад № 5 Ромашка (Задорожная ул., 13), расстояние до него — 1,5 км, 20 мин. спокойным шагом. Еще два детских сада находятся на ул. Адмирала Жильцова — в 22 мин. ходьбы. За 23 мин. можно дойти до образовательного центра №7 (дошкольное отделение «Улыбка») и частного детского центра «Вершина». Временный присмотр за детьми осуществляют в частном центре «МегаНяня» на Первомайской ул., в 20 мин. ходьбы от ЖК.
В пешей доступности также находятся дошкольные отделения образовательного центра № 8 «Радуга» и «Солнышко», детский сад №11 «Планета детства», детский сад №17 «Петушок», частный детский сад «Возрождение».
Школы
Ближайшими к новостройке школами будут образовательный центр №7 на Задорожной ул., 18 (около 17 мин. пешком) и образовательный центр №5 на ул. Дзержинского, 7 (23 мин. пешком).
Поликлиники
До взрослой и детской поликлиники жители новостройки смогут дойти за 19 мин. Взрослая поликлиника №9 находится в здании Пушкинской клинической больницы имени профессора В.Н. Розанова на ул. ул. Адмирала Жильцова, 3А, детская поликлиника №2 — в соседнем корпусе.
Супермаркеты
В пешей доступности от ЖК большой выбор продовольственных магазинов, в том числе популярных сетей: «Пятерочка», «Магнит», «Верный», «Дикси», «Чижик» — до любого можно дойти за 10-15 мин. В получасе ходьбы — «Ашан», «ВкусВилл» и «Перекресток», а также торговые центры «Кубик», «Советский», «Гагарин».
Чтобы увидеть объекты, нажмите на соответствующую кнопку внизу карты.
Фитнес-центры
Заниматься спортом новоселы смогут на свежем воздухе — в собственном дворе или в одном из ближайших парков. Кроме того, в пешей доступности есть спортивный клуб для любителей джампинга JumpFit на ул. Заводской (в 10 мин. ходьбы), спорткомплекс «Динамо» с секциями для детей и взрослых (16 мин. пешком).
В 25 мин. ходьбы, на Ивантеевском шоссе, находится ФОК «Олимп», в составе которого работают фитнес-клуб с большим плавательным бассейном «Фитнес Волна», школа спортивной гимнастики Андрея Перевозникова, школа плавания «Торпеда», студия йоги Ирины Кучеровой, секция бокса Ryzhikov Team. Здесь же находится стадион «Труд», лыжная база и теннисный клуб «Олимпик-теннис».
В центре города Ивантеевка работают клубы «Мой Фит Элит» и DDX Fitness. До них можно дойти за полчаса или доехать на автобусе.
Безопасность
Криминогенная обстановка в Ивантеевке стабильная. По данным местных органов правопорядка, уровень преступности ниже среднего по региону, что делает район безопасным для жизни.
Отдел полиции по городскому округу Ивантеевка находится в центральной части города — на ул. Трудовая, 16. Доехать до него от ЖК «Новая Ивантеевка» на машине можно за 13 мин., путь на общественном транспорте займет около 40 мин.
В ЖК «Новая Ивантеевка» покупателям предлагается большой выбор квартир по цене от 4,8 до 13,7 млн руб. Продажи стартовали зимой 2025 года, с тех пор средняя стоимость квадратного метра изменилась незначительно.
В настоящее время самые доступные лоты в проекте — 28-метровые студии. Такая квартира обойдется в 4,8 млн руб. Цены на однокомнатные квартиры начинаются от 5,8 млн руб. Самая недорогая из двухкомнатных квартир обойдется почти в 8 млн руб., а трехкомнатная — в 10,9 млн руб.
Актуальные цены в ЖК «Новая Ивантеевка»:
|
Тип жилья |
Метраж, кв. м |
Цена, руб. |
Цена за кв. м, тыс. руб. |
|
студии |
28.60 — 35.00 |
4 796 139 — 6 991 280 |
159.4 — 224.8 |
|
1-комнатные |
34.70 — 47.40 |
5 774 347 — 9 228 148 |
150.2 — 221.4 |
|
2-комнатные |
55.40 — 71.00 |
8 986 349 — 15 179 800 |
148.5 — 217 |
|
3-комнатные |
70.90 — 75.60 |
10 850 760 — 15 162 696 |
153 — 213.9 |
Покупка жилья возможна в ипотеку, в рассрочку или через полный расчет. Условия зависят от выбранного способа: ипотека предоставляется через партнерские банки со ставками от 6% годовых и первоначальным взносом — от 20%. Доступны специальные программы для семей с детьми, военных, льготных категорий граждан. Рассрочка предлагается на индивидуальных условиях. В качестве первоначального взноса можно использовать средства материнского капитала.
Также в продаже имеются кладовые помещения площадью от 2,4 до 9,3 кв. м. Их стоимость — от 189,6 до 742,4 тыс. руб.
Данные об условиях кредитования действительны на момент публикации статьи. Актуальную информацию вы всегда можете найти в карточке проекта.
Близость к Москве и развитая инфраструктура Ивантеевки делает этот небольшой подмосковный город привлекательным для проживания. Ближайший конкурент нашей новостройки — ЖК «Западная Ивантеевка» от того же застройщика — ООО «Профи-Инвест».
Проект очень удачно расположен относительно объектов инфраструктуры. В 5 мин. ходьбы — ФОК, больница с поликлиническими отделениями для детей и взрослых, образовательный центр. До городского парка — всего 12 мин. пешком. В составе проекта — один корпус из четырех секций переменной этажности (16-24 этажа).
Актуальные цены в ЖК «Западная Ивантеевка»:
|
Тип жилья |
Метраж, кв. м |
Цена, руб. |
Цена за кв. м, тыс. руб. |
|
студии |
29.00 — 31.90 |
5 624 113 — 6 355 799 |
183.8 — 201.1 |
|
1-комнатные |
32.00 — 43.60 |
6 027 343 — 8 453 638 |
174.2 — 198.5 |
|
2-комнатные |
37.80 — 61.10 |
6 802 354 — 11 518 562 |
173.8 — 195 |
|
3-комнатные |
51.80 — 56.90 |
9 506 568 — 10 741 632 |
177.8 — 188.8 |
Покупателям предлагаются функциональные квартиры площадью от 29 до 56,90 кв. м., с одной или двумя спальнями, а также студии. Все квартиры реализуются с предчистовой отделкой. Планируемы срок ввода дома в эксплуатацию — 4 квартал 2026 года.
Резюме
ЖК «Новая Ивантеевка» — современный жилой комплекс комфорт-класса, удачно расположенный в зеленой зоне подмосковного города. Благодаря развитой инфраструктуре, функциональным планировкам и комфортным условиям проживания он подходит для семей с детьми, молодых специалистов и пенсионеров. Проект может представлять интерес как тех, кто переезжает в собственное жилье из Москвы и других городов, так и для жителей Ивантеевки.
К плюсам проекта можно отнести близость к парку, оптимальную этажность, богатую внутреннюю инфраструктуру (в будущем здесь будут магазины, школы, детские сады, спортивный комплекс), предчистовую отделку, доступные цены.
Отдельно стоит отметить готовность застройщика модернизировать инженерные коммуникации, а также прокладывать новые: строить котельную, ВЗУ, очистные сооружения.
В силу этажности и плотности застройки комплекс менее подходит для тех, кто ищет малоэтажное жилье или приватность.
Дата публикации 17 февраля