Премиальный квартал «МИRА» строится недалеко от ВДНХ. Фонтан во дворе, огромные квартиры с террасами и современные технологии – чем еще готов удивлять потенциальных покупателей этот проект, какие у него преимущества и недостатки — разбирался Новострой-М.
Примечание
В статье перечислены только факты о ЖК, собранные из открытых источников. В рубрике «Экспертиза проекта» Новострой-М решил отказаться от оценок и оценочных суждений: право делать выводы из описанных фактов о жилом комплексе мы предоставляем нашим читателям.
Кто строит?
ЖК «МИRА» – проект девелоперской компании MR Group (непосредственно возведением комплекса занимается специализированный застройщик «ПМ-Девелопмент»). Девелопер работает на рынке с 2003 года. В портфеле компании 52 проекта общей площадью 9,5 млн кв. м. Кроме жилых проектов разных классов, девелопер также строит бизнес-центры, МФК, реализовал проект индустриального парка.
По данным Единого ресурса застройщиков на 1 декабря 2024 года, холдинг занимает четвертое место в Москве в рейтингах по объему текущего строительства и шестое – по объему ввода жилья. По России MR Group занимает 12-е место по объему текущего строительства и 15-е – по объему ввода жилья в 2024 году.
Что строят?
«МИRА» – квартал премиум-класса, состоящий из трех корпусов высотой от 17 до 24 этажей. ЖК строится в Алексеевском районе на северо-востоке Москвы, недалеко от ВДНХ. Суммарно в ЖК «МИRА» будет 762 квартиры. Также в комплексе появится двухуровневый подземный паркинг на 330 машино-мест со станциями для подкачки шин и местами для электрокаров.
Премиум-квартал «МИRА» в цифрах:
|
№ дома |
Лоты |
Класс энергоэффективности |
Машино-места |
Класс |
Срок ввода |
|
1 |
153 |
А+ |
330* |
Премиум |
II кв. 2027 года |
|
2 |
275 |
А+ |
- |
Премиум |
II кв. 2027 года |
|
3 |
334 |
А+ |
- |
Элитный |
II кв. 2027 года |
*Общий подземный паркинг для всех корпусов
Архитектура и дизайн
Архитектурную концепцию ЖК разработало бюро Kleinewelt Architekten, она отражает идею единства в разнообразии. Перед проектировщиками также стояла задача аккуратно вписать ЖК в окружающую застройку.










В отделке фасада 23-этажного корпуса используется пепельно-розовый камень. Корпус, выходящий на проспект Мира, продолжает существующую историческую застройку. У его фасада волнообразная форма и заданный полукруглыми колоннами ритм. 24-этажный корпус будет перекликаться с фасадом и балконами соседнего советского «Дома на ножках» своим динамичным остеклением.
Дизайн двухуровневого лобби для ЖК «МИRА» разработало бюро Gaag Studio. Отделка будет выполнена в теплых оттенках корицы и охры. Лобби второго корпуса займет два этажа. На первом будет гардеробная, кухня и закрытая зона переговорной. На втором – лаундж-зона с библиотекой.
В каждом лобби будет два холла с выходами во двор и на улицу, стойка ресепшн, зоны ожидания, почтовая зона, колясочные, лапомойка для питомцев, гостевой санузел и помещение для курьеров.
Благоустройство
Внутреннее пространство также было разработано специально для этого проекта. Автором концепции стало бюро «Дружба».






Во дворе разместятся: детская площадка; спортивная зона, расположенная в отдалении от зон отдыха и прогулочных маршрутов; центральная площадь с фонтаном; уединенные уголки с гамаком под навесом, скамейками и креслами для работы и отдыха. Также во дворе планируется установить чайный домик, в котором можно будет находиться в любое время года. Это будет отапливаемый павильон, а летом его стены будут раздвигаться, и он будет трансформироваться в открытую веранду.
Безопасность и технологии
В корпусах ЖК будут установлены скоростные лифты для жильцов с интеллектуальной системой обслуживания и распределением пассажиропотока. Также будут отдельные сервисные лифты. В лифтах и на парковке установят усилители сигнала мобильной связи.
На всей территории ЖК будут работать wi-fi и система видеонаблюдения. Попасть в комплекс посторонним не получится. Жильцы круглосуточно смогут связаться с охраной через приложение или по телефону.
В первом и втором корпусах будет установлена центральная система кондиционирования, в корпусе №3 – сплит-система.
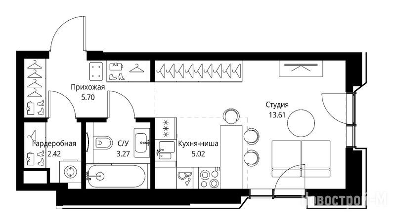
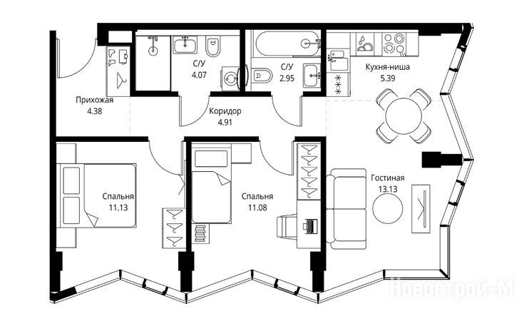
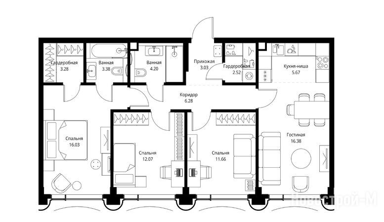
Планировки
Помимо классических вариантов, в ЖК «МИRА» запроектированы квартиры с террасами и функциональными балконами, а также пентхаусы. Сейчас в продаже имеются 145 квартир в ЖК (все данные в тексте актуальны на середину декабря 2024 года). Это студии, одно-, двух-, трех- и четырехкомнатные варианты.





Площади квартир в имеющемся предложении:
Квартиры сдаются как без отделки, так и с предчистовой отделкой. Можно выбрать жилье с видом на окружающие парки, акведук XIX века и Останкинскую телебашню. Высота потолков – от 3 до 4,5 метра.
Где строят?
ЖК «МИRА» строится в северной части Алексеевского района, недалеко от ВДНХ. Ближайшая станция метро – «ВДНХ» – находится в 1,5 км от комплекса, и путь до нее пешком составит 14 минут. Станция МЦК Ростокино находится в 2 км от ЖК, до нее дойти можно за 21 минуту, как и до платформы Яуза Ярославского направления электричек. Ближе всего к нашей новостройке расположена станция монорельсовой дороги «Улица Сергея Эйзенштейна». До нее идти пешком 9 минут (около 800 м).
Рядом с комплексом также расположены остановки общественного транспорта, через которые проходят несколько автобусных и трамвайных маршрутов.
ЖК находится на проспекте Мира, по которому (а далее по Ярославскому шоссе) на автомобиле можно доехать до МКАД примерно за 12 минут. Примерно такое же расстояние – около 7 км – и до Садового кольца, но время в пути займет больше – около 14 минут, если не будет пробок. На ТТК можно выехать за 10–15 минут, в зависимости от дорожной обстановки.
Экология
Согласно рейтингу компании EcoStandard, экологическая обстановка в Алексеевском районе оценивается как «удовлетворительная». У района 9 баллов в рейтинге, где самая негативная оценка – 10. Эксперты отмечают, что здесь очень высокая плотность населения и мало зеленых зон. А больше всего на экологию района влияет загруженность автомобильных дорог.
В Алексеевском районе есть несколько небольших зеленых зон – пара скверов, Ракетный бульвар и парк Алексеевская горка. Дойти до них можно минут за 15.
При этом нужно отметить, что совсем рядом с ЖК протекает река Яуза, а за ней расположен парк Ростокинский акведук. Дойти до него от ближайшего корпуса можно минут за 5, но территориально находится он уже в другом районе.
Рядом также находится парк Сокольники, до которого можно дойти за минут 25. До ВДНХ с его зеленым массивом путь пешком займет около 15 минут, до парка Останкино – чуть больше получаса. За 20 минут можно дойти также до национального парка Лосиный остров.
Инфраструктура
В самом комплексе не планируется строительство социальных объектов. Но проект предполагает, что в ЖК откроются два ресторана с видом на парк, три кафе и фитнес-студия.
В шаговой доступности от комплекса расположены несколько муниципальных детских садов. Дошкольные отделения и детский сад при школе №293 им. А. Т. Твардовского: улица Ярославская, 19к1; улица Космонавтов, 5; улица Касаткина, 16. Добраться до них пешком можно за 10–13 минут. До дошкольного отделения школы №1499 им. героя Советского Союза И. А. Докукина (Малахитовая улица, 4) путь пешком займет около 11 минут. На пару минут дольше займет дорога до детского сада «Чудесная лужайка» (проезд Кадомцева, 15) при этой же школе и еще одного дошкольного отделения, расположенного по адресу: Малахитовая улица, 12 к1.
Со школами поблизости тоже нет никаких проблем. В шаговой доступности несколько корпусов школы №293 и школы №1499. А ближайшая – школа №293 им. А. Т. Твардовского находится в соседнем доме (Ярославская улица, 27).
Рядом с ЖК есть множество супермаркетов различных сетей: «Магнит» (проспект Мира, 182 и улица Бажова, 4), «Дикси» (проспект Мира, 133 и улица Бориса Галушкина, 12), «Пятерочка» (улица Касаткина, 8), «ВкусВилл» (проспект Мира, 182). Дойти до них можно за 5–10 минут.
Ближайшая детская поликлиника находится менее, чем в километре от ЖК. Это детская поликлиника №99 на улице Касаткина, 9 ст2. Рядом же находится Консультативно-диагностический центр №2. В соседнем доме расположена клиника репродукции «Эко-Содействие» (проспект Мира, 184 к1), в пяти минутах ходьбы: медицинская лаборатория «Гемотест» (улица Бориса Галушкина, 3), стоматологический центр «Дентал Визит» (улица Бориса Галушкина, 3 к1) и медицинский центр «Дружба» (улица Касаткина, 3 ст2). Рядом есть и другие частные клиники и медицинские центры.
Если фитнес-студии, которая откроется в самом ЖК, резидентам будет недостаточно, то можно сходить в фитнес-клуб, по соседству есть сразу несколько спортивных точек, ближайшая – Bodyes (Улица Бориса Галушкина, 3), он находится в 500 метрах от комплекса. Не далее 1 км расположен также фитнес-клуб World Class (проспект Мира, 188Б к2). Неподалеку есть также другие спортивные секции и залы, например школа плавания «Триумф» (улица Касаткина, 23). До нее можно дойти за 18 минут.
Безопасность
Алексеевский район не входит в список самых криминогенных мест столицы. В целом здесь довольно спокойно и безопасно. К тому же территория комплекса всегда будет находиться под наблюдением и охраной.
Ближайший участковый пункт полиции расположен по адресу: улица Бориса Галушкина, 17. Это примерно в 900 м от квартала «МИRА». Время в пути пешком – около 10 минут.
Цены и способы покупки
Открытые продажи квартир в комплексе стартовали в конце ноября 2024 года с отметки в 17 млн руб. за лот без отделки. Сейчас цены начинаются от 17,3 млн рублей. За эти деньги можно купить студию без ремонта площадью 28,22 кв. м.
Самый дорогой вариант в имеющемся предложении – квартира площадью 107,33 кв. м с тремя спальнями, мастер-спальней (с гардеробной и своим санузлом), еще двумя санузлами и двумя гардеробными и просторной гостиной с кухней-нишей. Стоит она 63,3 млн рублей.
Цены в ЖК «МИRА»:
|
Тип жилья |
Метраж, кв. м |
Цена, руб. |
Цена за кв. м, тыс. руб. |
|
студии |
28.01 — 30.14 |
21 329 279 — 23 666 864 |
738.9 — 809.7 |
|
1-комнатные |
33.26 — 50.18 |
23 498 760 — 34 574 560 |
611.4 — 821.8 |
|
2-комнатные |
54.24 — 75.97 |
33 469 931 — 59 764 232 |
596 — 948.1 |
|
3-комнатные |
75.66 — 101.82 |
49 507 463 — 77 561 266 |
595.7 — 823.4 |
|
4-комнатные |
94.30 — 135.59 |
65 625 501 — 132 998 740 |
617.1 — 980.9 |
Купить квартиру в ЖК «МИRА» можно по 100% оплате, в рассрочку или ипотеку (доступны как стандартные программы, так и с господдержкой – семейная, военная, IT-ипотека). Также застройщик предлагает Trade-In. Проведение сделки возможно онлайн.
Данные об условиях кредитования действительны на момент публикации статьи. Актуальную информацию вы всегда можете найти в карточке проекта.
Конкуренты
Северо-восток Москвы постепенно начинает застраиваться высокобюджетным жильем. Рядом с ЖК «МИRА» находится еще один премиальный проект – квартал юности и здоровья «СОЮЗ». Его возводит «Группа Родина». Он будет состоять из шести домов высотой в 23–24 этажа. Проект позиционируется как «жилой спортивно-оздоровительный кластер», поэтому большой упор здесь делается на спортивную инфраструктуру. В проекте планируется строительство ФОКа, появление площадок для тенниса, волейбола и баскетбола, футбольное поле, поле для мини-футбола, площадки для йоги, единоборств и воркаута. Цены в этом проекте начинаются от 16,2 млн рублей. За эти деньги можно купить студию площадью 28,2 кв. м. Сдать все корпуса планируется в I квартале 2026 года.
Цены в ЖК «СОЮЗ»:
|
Тип жилья |
Метраж, кв. м |
Цена, руб. |
Цена за кв. м, тыс. руб. |
|
студии |
25.00 — 39.80 |
19 031 560 — 28 192 960 |
640.1 — 780.2 |
|
1-комнатные |
40.30 — 54.50 |
27 547 580 — 66 226 085 |
573.7 — 1221 |
|
2-комнатные |
59.60 — 82.70 |
38 497 190 — 88 102 625 |
578.9 — 1215.2 |
|
3-комнатные |
77.90 — 163.00 |
53 971 100 — 212 540 100 |
582.9 — 1303.9 |
|
4-комнатные |
94.70 — 190.90 |
90 337 600 — 248 503 630 |
705.8 — 1302.1 |
Еще один премиальный ЖК неподалеку – «Режиссер» – уже введен в эксплуатацию. Его строительством занималась группа компаний ФСК. Этот комплекс состоит из трех корпусов высотой от 28 до 48 этажей. В продаже представлено 63 лота, а самый бюджетный в декабре 2024 года стоит 22,8 млн рублей. Это однокомнатная квартира с лоджией и отделкой white box. Ее площадь составляет 39,1 кв. м.
Цены в ЖК «Режиссер»:
|
Тип жилья |
Метраж, кв. м |
Цена, руб. |
Цена за кв. м, тыс. руб. |
|
2-комнатные |
65.90 |
41 926 239 |
636.2 |
|
3-комнатные |
69.40 — 83.20 |
39 977 523 — 41 632 864 |
500.4 — 576 |
|
4-комнатные |
100.10 — 135.80 |
60 623 063 — 105 910 420 |
605.6 — 779.9 |
Резюме
Жилой комплекс премиум-класса «МИRА» будет достроен во II квартале 2027 года, сегодня квартиры в нем можно купить по стартовым ценам.
Среди плюсов проекта:
Минусы:
Одним из основных плюсов ЖК «МИRА» является его расположение. Рядом ВДНХ, практически во дворе парк, недалеко Сокольники. Для автомобилистов организован удобный выезд на магистраль, по которой можно быстро добраться как до центра, так, при необходимости, и до МКАД. С другой стороны, оживленная загруженная автодорога рядом с домом не лучший объект с точки зрения экологии.
Так как комплекс реализуется в старом развитом московском районе, в самом ЖК предлагается относительно небольшой набор инфраструктуры: кафе, рестораны, фитнес-студия. В ЖК будет авторский двор с интересным дизайном и приятными местами для отдыха, детскими площадками и спортивными зонами. Но своего детского сада или школы не предусмотрено, так как эти объекты есть в шаговой доступности.
ЖК «МИRА» подойдет инвесторам – этот район очень востребован, и здесь строятся в основном объекты премиум- и бизнес-класса. Квартира в этом комплексе может стать хорошим вариантом для сдачи в аренду или перепродажи.
Комплекс подойдет и тем, кто ищет квартиру для себя или своей семьи: застройщик предлагает различные планировки – от довольно просторных студий до четырехкомнатных квартир.
Дата публикации 31 декабря 2024