Жилой комплекс бизнес-класса «Интонация» строится в районе Щукино на северо-западе Москвы. Новостройка представляет собой две 21-этажные башни на общем стилобате. Камерность проекта, высокие потолки и большие окна в квартирах, свободные планировки — чем еще отличается новый ЖК от других новостроек, изучил Новострой-М.
Примечание
В статье перечислены только факты о ЖК, собранные из открытых источников. В рубрике «Экспертиза проекта» Новострой-М решил отказаться от оценочных суждений: право делать выводы из описанных фактов о жилом комплексе мы предоставляем нашим читателям.
Кто строит
Девелоперская компания «Мангазея Девелопмент» присутствует на рынке с 2012 года и специализируется на строительстве жилой и коммерческой недвижимости сегментов «бизнес» и «комфорт». В столичном портфеле девелопера — три сданных проекта и два строящихся.
Что строят
Жилой комплекс бизнес-класса «Интонация» — это два 21-этажных монолитных здания башенного типа, объединенных стилобатом. Плановый срок сдачи проекта — IV квартал 2023 года.
ЖК «Интонация» в цифрах
|
№ объекта |
Квартиры |
Энергоэффективность |
Количество машино-мест |
Класс |
Срок сдачи |
|
1 |
308 |
А+ |
186 |
бизнес |
IV квартал 2023 г. |
Архитектура и дизайн
Новостройка гармонично впишется в облик «старой» Москвы. Фасады корпусов будут облицованы отделочными материалами натуральных оттенков: крупноформатным керамогранитом коричневого цвета и натуральным светло-серым камнем. Предусмотрены декоративные короба для внешних блоков кондиционеров в индивидуальном дизайнерском исполнении. Также застройщик обещает эксплуатируемую кровлю.








Придомовая территория
Благоустройство безопасного внутреннего двора, закрытого от автомобилей, включает три игровые площадки для детей разного возраста, спортивные площадки с workout, прогулочные дорожки и места для тихого отдыха с беседками. Разграничивать функциональные зоны будут деревья и кустарники: растения подберут так, чтобы обеспечить практически непрерывное цветение. Здесь высадят гортензии, сирень, барбарис, розы и др. Предусмотрена гостевая парковка.






Безопасность
Закрытая территория комплекса находится под круглосуточным видеонаблюдением, входы контролируются видеодомофонами с системой распознавания лиц и возможностью открывать калитки и двери подъездов с помощью электронного ключа или мобильного приложения.
Дополнительную безопасность обеспечат противопожарные системы.
Нежилые метры
В стилобатной части запроектированы коммерческие помещения. Для автомобилей предусмотрен двухуровневый подземный паркинг на 186 машино-мест, среди которых имеются семейные места увеличенной площади. На каждом уровне есть входы в лифт, рядом с которыми расположены вместительные кладовые — келлеры площадью от 3,7 до 16 кв. м. В лобби разместятся стойки ресепшн и помещения для консьержа, колясочные и места для отдыха и ожидания.
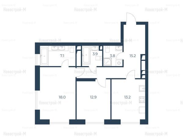
Квартиры и планировки
Квартирография ЖК «Интонация» представлена вариантами с количеством спален от одной до трех, сейчас в продаже находятся лоты площадью от 47,6 до 98,1 кв. м. По проекту площади варьируются от 39 до 130 кв. метров, которые могут выйти на продажу позднее. Все планировки в новостройке — свободные, квартиры продаются без отделки. Стоит отметить увеличенную площадь остекления: высота окон достигает 2,1 метра.



1-комнатные квартиры отличаются наличием двух санузлов, один из которых расположен в мастер-спальне, и просторной кухней-гостиной, то есть фактически это «евродвушки». Планировки прихожих позволяют выделить отдельную гардеробную. Причем в некоторых «однушках» окна выходят на две стороны.
В некоторых 2-комнатных лотах также имеются мастер-спальни. Есть квартиры с двумя окнами в угловой комнате и с двумя окнами в кухне-гостиной.
Предложение квартир с тремя спальнями включает варианты с двумя или даже тремя окнами в угловых помещениях, лоты с мастер-спальнями. Квартиры предлагаются без отделки, однако можно ознакомиться с визуализацей различных вариантов дизайна, чтобы понять, как жилье может выглядеть после ремонта.








Те, кто предпочитают необычный формат, могут выбрать квартиры на первых этажах с потолками высотой до 5,2 м, в них можно организовать второй уровень. В квартирах на последних этажах можно установить камин, высота потолков — 3,4 м.
Где строят
ЖК «Интонация» строится в районе Щукино на северо-западе Москвы. Станция метро «Щукинская» находится в 980 метрах от нашей новостройки, дойти до нее можно за 12 минут. До МЦД-2 «Щукинская» — почти 1,5 км пути. До станции МЦК «Стрешнево» — 1 км, до станции МЦД-2 «Стрешнево» — около 2 км.
Станции метро, МЦК и МЦД, время в пути от ЖК «Интонация»:
Основные автомобильные дороги района — улица Маршала Бирюзова, Волоколамское шоссе, ул. Народного Ополчения. От ЖК «Интонация» имеется прямой выезд на Волоколамское шоссе, далее — на Ленинградский проспект. Выезд в область также обеспечен Волоколамским шоссе.
Дорожная ситуация достаточно стандартна для Москвы — в часы пик отмечаются заторы на некоторых участках дорог. В 2015 году здесь был открыт Алабяно-Балтийский тоннель, после чего дорожная ситуация улучшилась.
Экология
В экологическом рейтинге от EcoStandard району Щукино присвоено 7 баллов из 10 возможных, экологическая обстановка в этой локации удовлетворительная. На территории района имеются парки и скверы, недалеко находятся лесопарк Серебряный бор и Большой Строгинский затон. Промзона в Щукино одна — «Октябрьское поле», при этом большая ее часть находится в ведении Курчатовского института. Около трети промзоны подлежит реорганизации.
В пешей доступности от ЖК «Интонация» расположены Щукинский парк и Всехсвятская роща, в 1 км — обширный парк Покровское-Стрешнево с пляжем, велодорожками, местами для пикника.
Инфраструктура
Собственная инфраструктура проекта включает детский сад на 50 мест, строительства школы на территории ЖК не предусмотрено.
В пешей доступности от ЖК «Интонация» расположены несколько детских садов. Дошкольные отделения Курчатовской школы находятся в 6-8 минутах ходьбы, до детского сада №331 — 8 минут пешком. Кроме того, недалеко есть детские бассейны — «Аквадемия» и «Аквакласс».
Недалеко от новостройки находятся два корпуса Курчатовской школы, дорога до них займет не больше 15 минут пешком. Школа №1252 им. Сервантеса с углубленным изучением испанского языка расположена в 17 минутах ходьбы от ЖК. До школы №149 можно дойти за 20 минут, до школы №1210 — примерно за полчаса.
Ближайшая детская поликлиника расположена на улице Пехотная — это филиал №3 поликлиники №58. Пешком до нее можно дойти примерно за 17 минут, дорога на автобусе займет на 1-2 минуты меньше. Филиал №2 поликлиники №133 на улице Зои и Александра Космодемьянских находится в 32 минутах ходьбы или в 18 минутах езды на трамвае.
Филиал №4 поликлиники для взрослых №115 на Пехотной находится в 15 минутах ходьбы от ЖК, филиал №3 этой же поликлиники во Врачебном проезде — в 22 минутах. До поликлиники №45 можно дойти за 23 минуты. Дорога на общественном транспорте займет столько же времени.
Также в пределах 3 км от ЖК «Интонация» имеются здравпункт поликлиники ФГБУ ГНЦ ФМБЦ им. А.И. Бурназяна ФМБА России, медцентр Курчатовского института, центр оториноларингологии, Центр восстановительной медицины и реабилитации, «Медси» на Авиационной и несколько других частных клиник, в том числе стоматологических.
Недалеко от новостройки есть несколько торговых центров: большой ТРК «Щука», «Сфера» и «Пятая Авеню». Продуктовые магазины представлены сетями «Магнит», «ВкусВилл», «Перекресток», «Пятерочка» и небольшими магазинчиками формата «у дома».
Фитнес-центров и спортзалов в окружении ЖК «Интонация» тоже достаточно. Клуб Spirit.Fitnes находится в 16 минутах от нашей новостройки, до СК МАИ — около 20 минут. В получасе ходьбы расположен спортклуб «Легион Кудо», фитнес-клуб «Дон-Спорт» на улице Маршала Бирюзова — в 23 минутах. На улице Маршала Новикова есть студия растяжки и фитнеса (15 минут пешком).
Для любителей поплавать: фитнес-клуб с бассейном World Class — в 25 минутах езды на автобусе или 8 минутах на автомобиле, практически у дома расположен банный комплекс «Загородный» с бассейном (5 минут пешком). Детский спорткомплекс для обучения плаванию «Аквадемия» находится в 15 минутах от ЖК «Интонация».
Безопасность
Район Щукино можно назвать одним из самых безопасных в Москве — на его территории находятся несколько научно-исследовательских институтов, до сих пор довольно большую часть населения составляют научные сотрудники с семьями.
На расстоянии 1 км от ЖК «Интонация» расположены участковые пункты полиции на улицах Панфилова, Академика Александрова и Маршала Василевского. До круглосуточного ОМВД по району Щукино — около 2 км.
Цены
Продажи в ЖК «Интонация» начались в сентябре 2021 года, цены на старте начинались от 15 млн рублей. К середине февраля 2022 года минимальная стоимость достигла 17,4 млн рублей.
Цены в ЖК «Интонация»:
|
Тип жилья |
Метраж, кв. м |
Цена, руб. |
Цена за кв. м, тыс. руб. |
|
2-комнатные |
72.00 — 79.00 |
41 324 031 — 42 589 670 |
523.1 — 591.5 |
|
3-комнатные |
98.90 |
66 416 115 |
671.5 |
|
4-комнатные |
124.10 — 129.20 |
82 664 747 — 84 685 561 |
655.5 — 666.1 |
Купить квартиру в ЖК «Интонация» можно в ипотеку, новостройка аккредитована в следующих банках: ВТБ, Сбербанк, Газпромбанк, ЮниКредит, Уралсиб, Россельхозбанк, Промсвязьбанк, Росбанк Дом, Московский кредитный банк, Открытие, Райффайзенбанк, Металлинвестбанк, СМП Банк, Альфа-Банк, МТС Банк. Ставки по семейной ипотеке и госпрограмме субсидирования — от 0,1%. Также предложение включает ипотеку без первого взноса и снижение базовой ставки до 2,1% по программе субсидирования.
Также квартиру можно приобрести в рассрочку до 1 года под 0% годовых. Условия: первоначальный взнос от 50%, оставшуюся часть стоимости можно выплатить с помощью ипотеки.
Конкуренты
Ближайший сосед ЖК «Интонация» — премиальный проект Trend возле Всехсвятской рощи. Новостройка уже сдана в эксплуатацию, она представляет собой 27-этажный дом с подземным паркингом. В продаже осталось несколько 1-, 2- и 4-комнатных квартир по цене от 18 млн рублей за 40-метровую «однушку».
Цены в ЖК Trend:
|
Тип жилья |
Метраж, кв. м |
Цена, руб. |
Цена за кв. м, тыс. руб. |
Нет в продаже | |||
Более бюджетные варианты в этой локации — апарт-комплексы B`aires и «Волоколамское 24».
Цены в ЖК B`aires:
|
Тип жилья |
Метраж, кв. м |
Цена, руб. |
Цена за кв. м, тыс. руб. |
Нет в продаже | |||
B`aires расположен тоже вблизи Всехсвятской рощи — а также недалеко от станции МЦК «Стрешнево» и Волоколамского шоссе. До метро «Щукинская» — 20 минут пешком, объекты инфраструктуры также находятся неблизко. Проект будет сдан к концу этого года, самый доступный вариант — 1-комнатный лот площадью 27,5 кв. м за 9,6 млн рублей.
Цены в ЖК «Волоколамское 24»:
|
Тип жилья |
Метраж, кв. м |
Цена, руб. |
Цена за кв. м, тыс. руб. |
Нет в продаже | |||
Комплекс с апартаментами «Волоколамское 24» от ПИК строится на Волоколамском шоссе, недалеко от парка Покровское-Стрешнево. Станции МЦК и МЦД «Стрешнево» находятся в двух минутах ходьбы от новостройки, до метро придется идти 20-25 минут. Объектов инфраструктуры в пешей доступности мало. Сдача корпусов запланирована на 2022 и 2023 годы, апартаменты реализуются с отделкой, цены — от 7,6 млн рублей за студию площадью 26,4 кв. м.
Резюме
Плюсы ЖК «Интонация»:
Сомнительным плюсом проекта можно назвать его соседство со множеством медицинских учреждений. Так, совсем рядом с жилым комплексом находятся Центр трансплантологии, Центр медицины катастроф, ГКБ №52 с роддомом, Центр крови.
Выезд на Волоколамское шоссе возможен только по улице Щукинская с односторонним движением, что может создать неудобства для автовладельцев.
ЖК «Интонация» можно назвать семейным проектом — студий нет совсем, даже в 1-комнатных квартирах запроектированы по два санузла, во многих лотах имеются мастер-спальни. Близость парков, объектов социальной инфраструктуры делает проект привлекательным для тех, кто ищет жилье для собственного проживания или сдачи в аренду. Для инвестирования с целью перепродажи цены уже высоковаты плюс довольно сильна конкуренция со стороны соседних апарт-комплексов.