Жилой комплекс «Интонация» расположен в районе Щукино на северо-западе Москвы. Его ввели в эксплуатацию в конце 2023 года, но он по-прежнему заслуживает внимания: авторская архитектура и интерьеры, приватный внутренний двор, видовые квартиры с возможностью установки каминов и богатая инфраструктура района. Обо всех особенностях проекта и его окружения – в подробном разборе от редакции Новострой-М.
Примечание
В статье перечислены только факты о проекте, собранные из открытых источников. В рубрике «Экспертиза проекта» Новострой-М решил отказаться от оценок и оценочных суждений: право делать выводы из описанных фактов мы предоставляем нашим читателям.
Возведением жилого комплекса занимался специализированный застройщик «Активдевелопмент», который входит в группу компаний «Мангазея». У холдинга есть различные направления деятельности, в 2012 году было открыто девелоперское, оно отвечает за строительство жилой и коммерческой недвижимости в Москве.
Компания сдала три жилых комплекса, в числе которых и «Интонация». Еще три сейчас находятся в стадии строительства. Всего же, согласно данным на официальном сайте, с 2012 года было построено 2,2 млн кв. м недвижимости. Все проекты «Мангазеи» вы найдете по ссылке.
ЖК «Интонация» – клубный дом бизнес-класса на северо-западе Москвы, расположенный в окружении парков в районе Щукино. Он состоит из двух корпусов, объединенных одноэтажным стилобатом с приватным ландшафтным садом и коммерческими помещениями. Дом был сдан в четвертом квартале 2023 года.
ЖК «Интонация» в цифрах:
Разработкой архитектурного проекта занималось бюро Apex. Фасады двух жилых корпусов выполнены из крупноформатного керамогранита. Сочетание темно-коричневых и светло-серых оттенков подчеркивает интересную колористическую композицию. По задумке авторов проекта, клубных дом гармонично вписался в окружающую застройку благодаря выверенной геометрии и спокойной цветовой гамме.



Оформлением гранд-лобби занималось дизайн-бюро AIYA. В нем использовались спокойные пастельные оттенки и натуральные материалы. Дизайн остальных лобби разрабатывало архитектурное бюро DBA-Group. Они выполнены в стиле современной классики: панорамные окна и двери, декорирование пространства стальными элементами под латунь и дизайнерская стойка ресепшн из натурального камня. В лобби расположены мягкие зоны ожидания, лапомойки для питомцев и колясочные.



Закрытый внутренний двор ЖК разделен на две части. В одной расположены детские и спортивные площадки, в другой – авторский ландшафтный сад на террасе. Его разработкой занималось бюро BUGAEV Parks & Gardens. Во внутреннем дворе предусмотрены места для удаленной работы с розетками и USB-разъемами. Также здесь расположены зоны для пикников с уличной мебелью.



В каждом корпусе установлены три грузовых лифта с системами усиления мобильной связи и интернета и обеззараживателями воздуха. На каждом из лифтов можно спуститься на любой этаж подземного паркинга.
Двухуровневый паркинг рассчитан на 159 мест. Здесь установлены зарядки для электромобилей, а на его втором уровне расположено помещение для хранения велосипедов. В паркинге также усиливается сотовая связь и мобильный интернет.
Все данные инженерного оборудования автоматически собирает система управления, которая в случае необходимости сообщает диспетчеру о проблемах. В систему входит: электро- и водоснабжение, освещение, вентиляция, отопление, кондиционирование, пожаротушение и безопасность.
Для резидентов дома создано специальное мобильное приложение, с помощью которого можно оформить гостевой пропуск, принять вызов домофона, получить показания счетчиков, оплатить услуги или вызвать мастера. Также есть возможность воспользоваться услугами консьерж-сервиса: его работник может принять посылку, отсканировать документы, оформить пропуск или забронировать зону для пикника в саду на террасе.
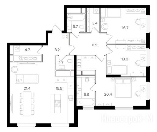
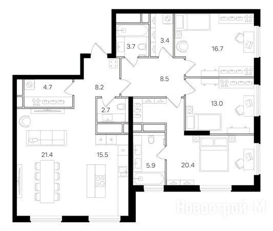
В жилом комплексе 308 квартир, на каждом этаже расположены от пяти до восьми. В проекте представлены 42 планировочных решения: есть классические варианты и квартиры евроформата с кухней-гостиной. Есть варианты с мастер-спальней, окном в ванной, отдельными постирочными или кладовыми. В видовых квартирах, расположенных на последнем этаже каждого из корпусов, можно установить камин.
Площадь квартир в проекте: от 39 до 175 кв. м.
Высота потолков: от 3,1 до 5,1 м.
Высота окон: 2,1 м.
Сейчас в продаже представлены 34 квартиры (все данные в статье актуальны на конец мая 2025 года): одно-, двух-, трех- и четырехкомнатные.
Площади квартир в имеющемся предложении:




Жилой комплекс «Интонация» расположен на северо-западе столицы, в районе Щукино. Рядом проходит Волоколамское шоссе по которому можно без труда доехать до МКАД. Время в пути займет от 10 до 15 минут в зависимости от маршрута.
До ТТК на машине можно добраться за 7 минут по тому же Волоколамскому шоссе, до Садового кольца – минут за 13.
До станции метро «Щукинская» можно дойти за 12 минут. До одноименной станции МЦД-2 – за 18. Станция МЦК «Стрешнево» располагается в 900 метрах от ЖК, до нее можно дойти за 9 минут.
Станции метро, МЦК и МЦД, время в пути от ЖК «Интонация»:
Согласно рейтингу компании EcoStandard, экологическая обстановка в Щукино оценивается как «благоприятная». Район получил 5 баллов в рейтинге, где самая негативная оценка – 10. Одним из самых позитивных показателей эксперты назвали низкую загруженность автомобильных дорог (всего 2 из 10).
ЖК «Интонация» практически окружен парками. С востока расположен Щукинский лесопарк, дойти до которого пешком можно меньше, чем за 5 минут. С запада и севера – Всехсвятская роща, путь до которой займет примерно столько же. Чуть дальше, примерно в километре от комплекса, находится лесопарк Покровское-Стрешнево с каскадом Иваньковских прудов.
Менее 30 минут займет дорога пешком до берега Москвы-реки с пляжами, скейтпарком и организованными местами отдыха.
Ближайшие два корпуса детских садов расположены в 6-8 минутах ходьбы от жилого комплекса. Это дошкольные корпуса ГБОУ Курчатовская школа «Ромашка» (Щукинская улица, 16/18) и «Колокольчик» (Авиационная улица, 23).
Чуть дальше есть еще детский сад школы №1212 (3-й Волоколамский проезд, 14 к3) и детский сад №1043 (3-й Волоколамский проезд, 4). Дойти до них можно за 13 и 16 минут соответственно.
Рядом также есть частный английский детский сад Sun School (Щукинская улица, 2) и частная школа «Ювенес» (Сосновая улица, 3). До них можно дойти менее чем за 5 минут.
Школы
Со школами поблизости тоже все в порядке. Учебный корпус «Пятый элемент» Курчатовской школы расположен по адресу 1-й Пехотный переулок, 4. Путь до него пешком займет 8 минут. Дорога до физико-математического корпуса школы (улица Маршала Василевского, 9 к1) займет 13 минут. Столько же до школы №1874 (улица Маршала Василевского, 3 к2) и ее корпуса начальной школы (улица Маршала Василевского, 11 к2).
Супермаркеты
На первом этаже жилого комплекса работают два супермаркета: «Магнолия» и «ВкусВилл». Если этого недостаточно, за 8 минут можно дойти до «Магнита» и «Пятерочки», которые расположены по адресу Волоколамское шоссе, 24 к1. Еще один супермаркет «Пятерочка» находится по адресу улица Маршала Василевского, 3 к1, до него можно дойти за 11 минут.
Поликлиники
Ближайшая взрослая поликлиника находится в 13 минутах ходьбы от ЖК (Пехотная улица, 3 ст16), рядом расположен Главный клинический военный госпиталь, а также различные отделения городской клинической больницы №52.
Филиал детской городской поликлиники также находится неподалеку – по адресу Пехотная улица, 3 ст16. Дойти до него от жилого комплекса можно за 13 минут.
Чтобы увидеть объекты, нажмите на соответствующую кнопку внизу карты.
Фитнес-центры
В шаговой доступности от ЖК есть несколько фитнес-клубов. Например, DDX Fitness, расположенный в ТРК «Щука» (Щукинская улица, вл42). До него можно дойти за 13 минут. Путь пешком до фитнес-клуба Fitts (1-й Волоколамский проезд, 10 ст1) займет около 10 минут, до Fitnation (улица Маршала Бирюзова, 32) – 16 минут. В 15 минутах ходьбы от ЖК находится студия растяжки и аэростретчинга Nogravity (улица Маршала Новикова, 2 к2).
Безопасность
Согласно данным информационно-аналитической записки о результатах оперативно-служебной деятельности районного отдела МВД, количество преступлений на территории Щукино сокращается. Поэтому обстановку в локации можно назвать вполне спокойной.
Ближайший от жилого комплекса участковый пункт полиции находится по адресу улица Маршала Василевского, 1 к2. Путь пешком до него займет около 14 минут, на машине – 5 минут.
Строительство клубного дома завершили в конце 2023 года, а продажи квартир в нем стартовали еще в сентябре 2021 года. Тогда цены на них начинались от 15 млн рублей. К середине февраля 2022 года минимальная стоимость достигла 17,4 млн рублей.
Сейчас, согласно данным на официальном сайте застройщика, для покупки доступны 34 квартиры. Цены стартуют от 26,9 млн рублей. Столько стоит однокомнатная квартира без отделки площадью 48 кв. м.
Самый дорогой вариант в имеющемся предложении – четырехкомнатная квартира без отделки площадью 129,7 кв. м. Расположена она на последнем (21-ом) этаже корпуса №2. Ее стоимость – 88 млн рублей.
Актуальные цены в ЖК «Интонация»:
|
Тип жилья |
Метраж, кв. м |
Цена, руб. |
Цена за кв. м, тыс. руб. |
|
2-комнатные |
72.00 — 79.00 |
38 383 800 — 43 315 200 |
511.8 — 601.6 |
|
3-комнатные |
98.10 — 98.90 |
55 077 410 — 63 335 560 |
556.9 — 640.6 |
|
4-комнатные |
124.10 |
73 303 512 |
590.7 |
Квартиры в ЖК можно приобрести в ипотеку, в том числе с использованием льготных программ или субсидированием ипотеки со ставкой от 0,11%. Также застройщик предлагает вариант приобретения недвижимости по схеме trade-in.
Данные об условиях кредитования действительны на момент публикации статьи. Актуальную информацию вы всегда можете найти в карточке проекта.
Поблизости от «Интонации» есть еще один проект бизнес-класса – ЖК Moments. Он сейчас находится в процессе строительства. Ближайший срок сдачи жилого корпуса в нем – I квартал 2026 года. Это проект застройщика Forma. Жилой квартал будет состоять из восьми башен высотой от 14 до 47 этажей. Построят их в три очереди.
Актуальные цены в ЖК Moments:
|
Тип жилья |
Метраж, кв. м |
Цена, руб. |
Цена за кв. м, тыс. руб. |
|
студии |
24.80 — 28.10 |
19 653 870 — 23 923 200 |
701.8 — 890 |
|
1-комнатные |
36.50 — 44.60 |
23 889 558 — 33 173 088 |
536.8 — 797 |
|
2-комнатные |
56.70 — 87.80 |
32 064 873 — 48 237 092 |
481.9 — 682.6 |
|
3-комнатные |
64.60 — 128.80 |
39 023 908 — 74 987 360 |
461.5 — 654.6 |
|
4-комнатные |
93.80 — 113.93 |
43 325 282 — 89 093 260 |
461.9 — 782 |
Кроме жилья в проекте планируется и социальная инфраструктура: например, в первой очереди будут построены детский сад на 175 мест и школа на 350 мест. Цены на квартиры здесь стартуют от 13,4 млн рублей. За эти деньги можно купить студию с отделкой white box площадью 26,4 кв. м.
ЖК «Театральный квартал» от концерна «КРОСТ» – это новостройка премиум-класса, которая также расположена в этой локации. Комплекс будет состоять из четырех башен высотой от 19 до 24 этажей. Две из них – дом «Щусев» и дом «Жолтовский» – уже сданы. Еще один корпус – «Фомин» – планируется к сдаче во II квартале 2025 года.
Актуальные цены в ЖК «Театральный квартал»:
|
Тип жилья |
Метраж, кв. м |
Цена, руб. |
Цена за кв. м, тыс. руб. |
|
1-комнатные |
37.10 |
27 268 500 |
735 |
|
2-комнатные |
55.50 — 69.10 |
34 410 000 — 47 679 000 |
590 — 690 |
|
3-комнатные |
78.50 — 95.00 |
49 795 400 — 65 481 000 |
614 — 700 |
|
4-комнатные |
105.40 — 127.40 |
63 240 000 — 86 632 000 |
600 — 680 |
|
многокомнатные |
126.20 |
77 613 000 |
615 |
Стоимость квартир в ЖК начинается от 19,3 млн рублей. Такая цена указана за однокомнатную квартиру без отделки площадью 29 кв. м.
Резюме
Плюсы проекта:
Одним из главных плюсов проекта является его расположение. ЖК с трех сторон окружен лесом, а в шаговой доступности есть метро и станции МЦД и МЦК.
В районе все в порядке с социальной и коммерческой инфраструктурой, да и в самом комплексе первый этаж отведен под коммерцию, где есть все необходимое.
Правда, «Интонацию» нельзя назвать лучшим вариантом для инвестиций: комплекс давно сдан, продажи в проекте стартовали еще в 2021 году, с тех пор цены существенно изменились.
Этот ЖК – хороший вариант для семейных покупателей: большие квартиры, варианты с мастер-спальнями, чистый воздух и разнообразная детская инфраструктура в шаговой доступности.
Дата публикации 30 мая