Жилой комплекс бизнес-класса Foriver расположен в Даниловском районе (ЮАО) вблизи метро «Автозаводская». Проект состоит из 11 готовых корпусов на первой линии реки. Близость к воде и центру Москвы, собственная набережная, спортивный кластер в пешей доступности, видовые квартиры с ключами — чем еще интересен проект Sminex, расскажем в этом обзоре.
Примечание
В статье перечислены только факты о ЖК, собранные из открытых источников. В рубрике «Экспертиза проекта» Новострой-М решил отказаться от оценок и оценочных суждений: право делать выводы из описанных фактов о жилом комплексе мы предоставляем нашим читателям.
Проект Foriver был создан и выведен на рынок ГК «Инград», разрешение на строительство было получено в июне 2020 года. Ingrad была основана в 2012 году и уже в 2017 году стала третьей по выводу объектов в продажу в Москве и Новой Москве, а в 2019 году вошла в топ-10 самых надежных российских застройщиков по версии Forbes. Однако в октябре 2024 года компания была приобретена другим девелопером — Sminex. Часть проектов Ingrad продолжили развиваться под брендом прежнего застройщика, другие (в том числе Foriver) вошли в число ЖК, реализуемых непосредственно Sminex, который специализируется прежде всего на высокобюджетных жилых комплексах.
Foriver — жилой комплекс бизнес-класса, строящийся на Симоновской набережной недалеко от спорткомплекса им. Э.А. Стрельцова (стадион «Торпедо»). Он входит в масштабный проект редевелопмента, включающий строительство жилых кварталов RiverSky, Foriver и Foriver Residence.
Жилой комплекс Foriver состоит из 11 монолитных корпусов высотой до 22 этажей (надземная часть — 19 этажей), объединенных стилобатом, все дома уже введены в эксплуатацию и заселяются. Подземный паркинг рассчитан на 1 540 машино-мест, предусмотрены также наземные парковочные места на территории ЖК и за его периметром.
Мы посещали стройплощадку этого жилого комплекса в июне 2025 года.






ЖК Foriver в цифрах*:
* По данным проектной декларации
Архитектурная концепция ЖК Foriver разработана шведским бюро Semren & Mansson и компанией APEX. Образ зданий определен близостью Москвы-реки: фасады трех акцентных башен выполнены в виде речных волн, морских брызг и кильватера корабля, в оформлении типовых корпусов использованы горизонтальные скобы, которые создают ощущение «колышущихся» на ветру стен. Наружные стены отделаны клинкерной и бетонной плиткой, фиброцементными панелями спокойных природных оттенков.







В дизайнерских лобби с 5-метровыми потолками предусмотрены помещения для консьержей и зоны ожидания гостей с мягкой мебелью, клубные гостиные по фирменному стандарту Frind's Lab, а также колясочные, санузлы и лапомойки.
На первых этажах корпусов запроектированы нежилые помещения, в которых откроются магазины, кафе и детские сады.
Двор, размещенный на стилобате (высота 6 м), разделен на несколько функциональных зон: детские и спортивные площадки для разных возрастов, места для отдыха и прогулок, газоны и прогулочные аллеи. С шестиметровой высоты стилобата можно любоваться панорамами Москвы, резиденты также могут посетить видовые площадки для отдыха с шезлонгами и навесами, для любителей спорта созданы зоны воркаута и столы для настольного тенниса.














На пешеходной набережной протяженностью 1 километр расположатся городская площадь, летние веранды и павильоны. Здесь продуманы разные сценарии отдыха: променад с кафе и ресторанами, городская площадь с авторской детской площадкой, тихие места на ступенчатой террасе-амфитеатре, велосипедные и беговые дорожки.
Безопасность жителей обеспечивают системы контроля и управления доступом, видеонаблюдения, охранно-тревожной сигнализации, автоматической пожарной сигнализации, оповещения и управления эвакуацией.
Двухуровневый подземный паркинг рассчитан на 1 540 машино-мест, включая зависимые места. Кроме того, на подземных этажах разместятся келлеры (от 2,5 до 14 кв. м), автомойка, возможность установки зарядки для электрокара.
Для удобства резидентов установлены автоматизированные системы учета потребления электроэнергии, воды и тепла, современные домофоны с системой распознавания лиц. Для управления ЖК действует собственное мобильное приложение. Эксплуатация комплекса передана в ведение собственной службы комфорта, которая действует по стандарту Sminex Premium Srevice.
На конеч июля 2025 года в ЖК Foriver в продаже представлены квартиры площадью от 41,5 до 417 кв. м — от 1-комнатных до пентхаусов с каминами. Жилье продается без отделки. Высота потолков — от 3 до 6,2 м.
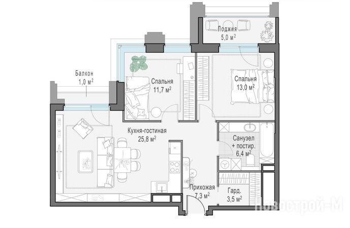
Квартиры в ЖК Foriver отличаются большим количеством лоджий, во многих квартирах такие помещения есть в каждой комнате. Есть варианты с угловым и панорамным остеклением, а также террасами.






В 1-комнатные квартирах площадь комнаты и кухни примерно одинакова. В большинстве из них предусмотрены постирочные, есть лоты с террасами и гардеробными, с раздельным санузлом.
Планировки 2- и 3-комнатных квартир — классические и евроформат. Некоторые варианты включают террасы, лоджии, гардеробные, несколько санузлов, постирочные, кухни-гостиные с несколькими окнами, мастер-спальни. Планировки — линейные, распашонки и угловые, есть квартиры неправильной формы.
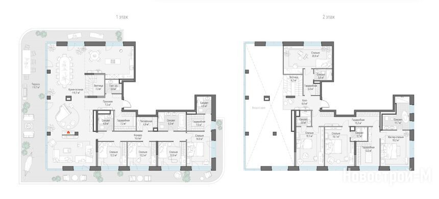
Пентхаусы также представлены в классических и европейских планировках. В них есть мастер-спальни, несколько санузлов, гостиные с несколькими окнами, террасы и лоджии, гардеробные, камины, постирочные. В экспозиции также представлен один двухуровневый лот.
ЖК Foriver расположен в Даниловском районе между ТТК и Садовым кольцом, рядом с Москвой-рекой. Ближайшая станция метро — «Автозаводская», до нее от 700 м до 1,3 км (в зависимости от корпуса).
Станции метро, время в пути от ЖК Foriver:
Остановок наземного общественного транспорта рядом с нашей новостройкой сейчас нет. Однако, с учетом класса проекта и стоимости квартир в ЖК Foriver, можно предположить, что резиденты предпочтут ездить на автомобилях. Дорога на машине до ТТК займет 3 минуты, до Садового кольца — 5 минут, до Кремля — 6 минут.
Также в июне 2025 года рядом с новостройкой (в 160 метрах от домов), на Симоновской набережной, открылся причал «Торпедо» для речных трамвайчиков. Пассажирская зона пристани рассчитана на вместимость в 40 человек одновременно.
В экологическом рейтинге от компании EcoStandard Даниловскому району присвоено 8 баллов из 10 возможных, экологическая обстановка здесь оценивается как удовлетворительная. Основной недостаток района — дефицит зеленых насаждений, большое количество автодорог.
ЖК Foriver расположен на берегу Москвы-реки. Ближайшее окружение комплекса - это спорткомплекс им. Эдуарда Стрельцова, площадка для вождения ДОСААФ, торговые помещения, ТЦ.
В пешей доступности от ЖК находятся детский парк Липки и живописный Симонов монастырь.
На первых этажах корпусов ЖК Foriver будут работать магазины и другие объекты инфраструктуры, два частных детских сада, рядом построят частную поликлинику. Почти всё необходимое есть и в окружении нашей новостройки, в том числе в соседнем ЖК RiverSky.
Именно на территории RiverSky находится ближайший детский сад — частный английский детсад Sun School. Дорога пешком до него займет 8-10 минут. Еще один частный детский сад — Smile Fish — расположен на улице Велозаводская, до него 1,6 км или 19 минут ходьбы, дорога на авто займет 7 минут.
Что касается муниципальных детских садов, то ближайший находится в 1,4 км от нашей новостройки — это дошкольный корпус «Кроха» школы №463 на Симоновском Валу. Примерно на таком же расстоянии расположены дошкольные отделения «Алые паруса» и «Росинка» школы №1272 на Автозаводской улице. Этот путь лучше проделать на автомобиле, пешком с маленьким ребенком осилить такое расстояние сложно.
Школ в окружении новостройки несколько, но все они находятся на почтительном расстоянии:
Новая поликлиника рядом с ЖК Foriver будет очень кстати, поскольку муниципальных поликлиник в пешей доступности нет. Ближайшая — филиал №3 поликлиники №67 на Автозаводской улице — находится в 2,5 км от нашей новостройки. Детская поликлиника (филиал №4) расположена там же по соседству.
Чтобы увидеть объекты, нажмите на соответствующую кнопку внизу карты.
Недалеко от нашей новостройки есть несколько сетевых супермаркетов, в том числе круглосуточный Eurospar в ТЦ «Глобал Молл», и небольших продуктовых магазинов. На другом берегу Москвы-реки находится Даниловский рынок, доехать до него на авто можно меньше чем за 20 минут.
Недалеко от ЖК Foriver расположен уникальный спортивный кластер: стадион «Торпедо», спортивный комплекс, открытые тренировочные поля и площадки.
Также в пешей доступности имеются бизнес-центры «Симонов Плаза», «Куликовский», «Слободской» и «Омега Плаза», гастрономический кластер StrEAT, мебельный центр Roomer и культурный центр ЗИЛ.
Безопасность района
Даниловский район не входит в число ни самых криминальных, ни самых безопасных районов Москвы. Согласно информационно-аналитической записке «Об итогах оперативно-служебной деятельности Отдела МВД России по Даниловскому району г. Москвы за 12 месяцев 2024 года», в прошлом году количество зарегистрированных преступных посягательств незначительно выросло на 0,6% (с 1204 до 1211).
Уменьшилось число преступлений небольшой тяжести (-11,1%), а вот тяжких и особо тяжких выросло (+30,6%). Произошло два хищения транспортных средств.
Ближайший к ЖК Foriver участковый пункт полиции расположен на улице Ленинская Слобода, 4, до него 1,4 км или 17 минут пешком.
Продажи ЖК Foriver стартовали в 2020 году. Сейчас, когда строительство завершено и идет заселение ЖК, цены на квартиры варьируются от 31,3 до 313 млн рублей.
Актуальные цены в ЖК Foriver:
|
Тип жилья |
Метраж, кв. м |
Цена, руб. |
Цена за кв. м, тыс. руб. |
|
1-комнатные |
40.00 — 88.10 |
24 170 000 — 47 180 000 |
504.6 — 896.1 |
|
2-комнатные |
57.70 — 117.40 |
40 700 000 — 99 840 000 |
534.1 — 917.7 |
|
3-комнатные |
79.70 — 202.73 |
52 670 000 — 231 750 000 |
480.5 — 1143.1 |
|
4-комнатные |
123.40 — 208.70 |
73 400 000 — 175 680 000 |
544.5 — 930 |
|
многокомнатные |
183.00 — 416.90 |
112 600 000 — 244 440 000 |
586.3 — 686.5 |
Купить квартиру в ЖК Foriver можно в ипотеку со ставкой от 20,5% годовых.
Кредиты на покупку квартир в ЖК Foriver предоставляют банки ВТБ, Московский кредитный банк, банк Дом.рф, Альфа-Банк, Уралсиб, Промсвязьбанк, Совкомбанк и другие.
Также действует программа беспроцентной рассрочки: на 6 месяцев или на 2 квартала.
Данные об условиях кредитования действительны на момент публикации статьи. Актуальную информацию вы всегда можете найти в карточке проекта.
Вблизи ЖК Foriver есть еще несколько проектов, предлагающих недвижимость с видом на реку. Это уже сданные комплексы RiverSky и Fоrst, строящийся Insider и новый ЖК «А22».
ЖК RiverSky — это восемь корпусов бизнес-класса, в 2023 году на территории ЖК открылся детский сад. На первых этажах домов работают кофейни, салоны красоты, ПВЗ популярных маркетплейсов, магазины. На конец июля 2025 года в этом жилом комплексе продаются 75 квартир, отделка не предусмотрена.
Актуальные цены в ЖК RiverSky:
|
Тип жилья |
Метраж, кв. м |
Цена, руб. |
Цена за кв. м, тыс. руб. |
|
1-комнатные |
— |
от 24 170 000 |
|
|
2-комнатные |
— |
от 28 140 000 |
|
|
3-комнатные |
— |
от 52 670 000 |
|
|
4-комнатные |
— |
от 59 210 000 |
|
|
без планировки |
— |
от 97 310 000 |
|
Также на Симоновской набережной, но вблизи ТТК и Автозаводского моста, находится ЖК бизнес-класса Først от компании Forma. Все секции введены в эксплуатацию. Помимо коммерческих помещений на первых этажах, на территории ЖК работает детский сад Discovery English preschool. В 3 и 4 секциях комплекса квартиры сдаются с предчистовой отделкой white box MAX. Среди планировок можно выбрать варианты с гардеробной и патио, также в реализации представлены пентхаусы.
Актуальные цены в ЖК Først:
|
Тип жилья |
Метраж, кв. м |
Цена, руб. |
Цена за кв. м, тыс. руб. |
|
1-комнатные |
64.60 |
25 006 660 |
387.1 |
|
2-комнатные |
60.70 — 65.10 |
28 325 655 — 32 148 508 |
466.7 — 493.8 |
|
4-комнатные |
135.20 — 140.40 |
67 918 500 — 72 207 616 |
483.8 — 534.1 |
Самый новый проект в этой локации — высотный ЖК «А22» от девелопера «Консоль». Он находится не на первой линии набережной, однако за счет большой этажности (до 43 этажей) ряд квартир будут иметь виды на реку. Два небоскреба будут объединены стилобатом, в котором разместится вся необходимая инфраструктура. Квартиры площадью от 28,7 до 101,5 кв. м продаются без отделки. Заявленный срок ввода домов — IV кв. 2028 года.
Актуальные цены в ЖК «А22»:
|
Тип жилья |
Метраж, кв. м |
Цена, руб. |
Цена за кв. м, тыс. руб. |
|
студии |
28.70 — 33.80 |
19 883 200 — 26 230 500 |
687 — 798 |
|
1-комнатные |
35.20 — 52.90 |
22 528 000 — 35 050 000 |
598 — 718 |
|
2-комнатные |
49.60 — 71.60 |
34 171 500 — 47 900 400 |
617 — 746 |
|
3-комнатные |
76.00 — 101.50 |
55 556 000 — 75 211 500 |
715 — 786 |
Рядом с ЖК Først строится апарт-комплекс бизнес-класса Insider от «РКС Девелопмент». Ввод всех корпусов запланирован на I квартал 2026 года, недвижимость сдается с чистовой дизайнерской отделкой. Есть варианты помещений с панорамными окнами.
Актуальные цены в МФК Insider:
|
Тип жилья |
Метраж, кв. м |
Цена, руб. |
Цена за кв. м, тыс. руб. |
|
студии |
22.08 — 37.28 |
14 621 953 — 21 827 363 |
452.5 — 678.7 |
|
1-комнатные |
36.61 — 79.01 |
18 040 408 — 31 920 040 |
404 — 668.4 |
|
2-комнатные |
58.22 — 81.22 |
24 520 517 — 41 570 343 |
401.5 — 596.4 |
|
3-комнатные |
69.74 — 102.96 |
30 534 613 — 60 849 360 |
437.8 — 594.9 |
Резюме
Плюсы ЖК Foriver:
Минусом проекта можно назвать отдаленность от метро, однако жители ЖК Foriver, скорее всего, предпочтут пользоваться не общественным, а личным транспортом, тем более что машино-мест в подземном паркинге достаточно. В то же время возросшее число автомобилистов в этой локации со временем повысит нагрузку на дороги, к этому нужно быть готовым.
Для инвесторов проект уже не подходит, а вот тем, кто хочет жить рядом с рекой и недалеко от центра, стоит присмотреться к этому жилому комплексу: выбор планировок устроит даже самого требовательного покупателя, как и расположение ЖК в активно развивающейся локации и в отдалении от шумных магистралей.
Дата публикации 25 июля