Жилой комплекс Symphony 34 строится в Савеловском районе на севере Москвы. Новаторство и диалектичность — эти принципы, свойственные торжественной «Симфонии №34 до мажор» Вольфганга Амадея Моцарта, легли в основу архитектурной концепции новостройки. Стильные небоскребы с видовыми квартирами в районе с хорошо развитой инфраструктурой и транспортной доступностью — за какие еще достоинства покупателю следует выбрать именно этот ЖК, разбирался Новострой-М.
Примечание
В статье перечислены только факты о ЖК, собранные из открытых источников. В рубрике «Экспертиза проекта» Новострой-М решил отказаться от оценок и оценочных суждений: право делать выводы из описанных фактов о жилом комплексе мы предоставляем нашим читателям.
Кто строит
MR Group работает на российском рынке недвижимости с 2003 года и входит в десятку крупнейших застройщиков страны, является лауреатом премий RREF Awards, Urban Awards, CRE Awards, Move Realty Awards и «Рекорды рынка недвижимости». В портфеле компании — 44 объекта в Московском регионе и Сочи.
В Москве MR Group строит проекты преимущественно бизнес- и премиум-классов: жилые и апарт-комплексы. 16 из них введены в эксплуатацию. Познакомиться с проектами компании можно на сайте Новострой-М.
Что строят
Жилой комплекс бизнес-класса Symphony 34 представляет собой четыре башни высотой от 36 до 54 этажей с объектами инфраструктуры.
|
№ объекта |
Квартиры |
Энергоэффективность |
Класс |
Машино-места |
Срок сдачи |
|
1 |
1862 |
А |
бизнес |
662 |
II квартал 2025 г. |
Архитектура и дизайн
Дома возводятся по монолитно-кирпичной технологии, концепция проекта разработана бюро Kleinewelt Architekten. Для фасадов каждого здания выбраны разные визуальные решения, разнообразие материалов подчеркивает сложность и одновременно целостность проекта.
Жилые небоскребы будут облицованы медью, железом, стеклом и алюминием — оттенки этих материалов дали названия корпусам (Graphite/Графит, Crystal/Кристалл, Silver/Серебро, Sienna/Охра). Каждый из домов опоясывает лента прозрачных этажей, что визуально объединяет здания.
Расположение корпусов напоминает танец, что также передает основную идею проекта — легкое и естественное взаимодействие между человеком и его окружением, взаимное дополнение друг друга.
В отделке лобби предпочтение также отдано натуральным материалам: камень, стекло, металл. Сочетание фактур в центральном лобби, крафтовые элементы освещения, панно в авангардистском стиле придают помещениям изысканный вид и роскошь.
Придомовая территория
Через всю территорию ЖК Symphony 34 проходит пешеходный бульвар. Больше половины площади дворов отведены под зеленые насаждения и ландшафтный дизайн, деревья и кустарники разделяют территорию комплекса на функциональные зоны: для спокойного отдыха (в том числе – площадка для пикника и секретный сад в японском стиле с небольшим прудом), детские игровые комплексы и спортивные площадки. На всей территории ЖК будет работать сеть wi-fi.






Безопасность
Территория жилого комплекса будет закрыта от посторонних и свободна от автомобилей.
Также безопасность жителей обеспечивают:
• система контроля входа на территорию ЖК и входные группы, биометрия;
• система «Умный дом» на платформе Ujin;
• видеонаблюдение на территории ЖК, в местах общего пользования и на парковке;
• датчики контроля энергопотребления, защита от протечек, пожарная и охранная сигнализации;
• системы пожарной вентиляции и автоматического пожаротушения;
• круглосуточная связь через приложение или телефон с консьержем и охраной.
Нежилые метры
Собственная инфраструктура включает продуктовые магазины, пекарню, несколько кафе, ресторан, аптеки, фитнес-центры, бассейн для малышей, салоны красоты, зоомагазин. Коммерческие и сервисные объекты разместятся в центральном лобби.
В холлах корпусов имеются лаунж-зоны, колясочные, помещения для мытья лап домашним животным, гостевые санузлы.
Подземный паркинг рассчитан на 662 машино-места, имеются места для мотоциклов и электрокаров, посты для подкачки шин. Доступ в паркинг — с помощью системы распознавания номеров. Также в подземной части предусмотрено 114 кладовых, еще 540 кладовых разместятся на этажах.
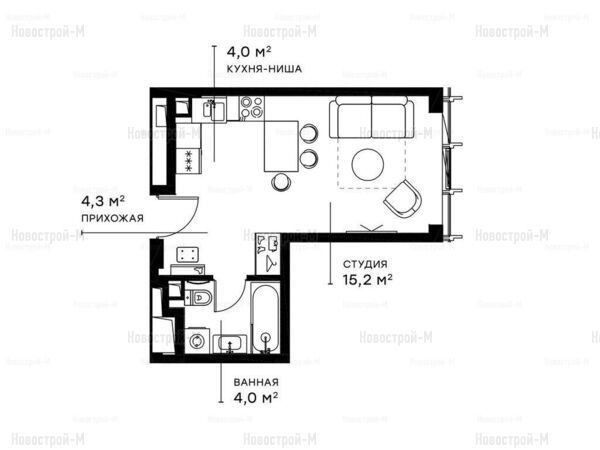
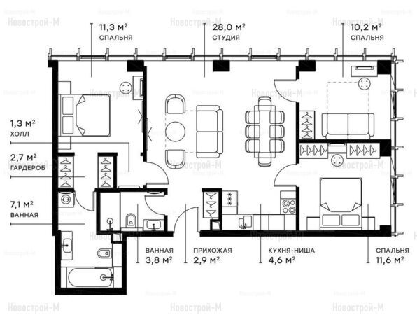
Квартиры и планировки
В ЖК Symphony 34 запроектированы квартиры с различными планировками: от небольших 1-комнатных квартир до лотов с тремя спальнями и панорамных пентхаусов. В разных корпусах представлены варианты с предчистовой отделкой MR Base (white box) и с чистовой отделкой MR Ready.




В квартирах с предчистовой отделкой строители установят выключатели и розетки, конвекторы, сделают стяжку пола. Также предусмотрены вводы под домофон, оптоволоконный кабель для интернета и IP-телевидения, выводы горячей и холодной воды.
Готовая дизайнерская отделка разработана в светлом (Harmony Soft) и темном (Harmony Dark) цветовых решениях. Дизайн-проекты созданы бюро Jaime Beriestain.
В MR Ready включены:
• покраска стен и потолков; покрытие пола (в жилых помещениях — паркетная доска, в холле — керамогранит);
• установка межкомнатных дверей, откосов, пилонов и плинтусов;
• отделка стен и полов в санузлах керамогранитом, установка теплого пола и сантехники;
• электрика: розетки, встроенные потолочные светильники.




Все предложенные планировки относятся к евроформату — с объединенной кухней-гостиной. Предусмотрены ниши под гардеробы и прачечные, во многих квартирах с двумя спальнями — по два санузла, есть мастер-спальни. В квартирах с тремя спальнями также имеются мастер-спальни с собственными санузлом и гардеробной. Окна — панорамные, часть планировок представлена с эркерными окнами.
Из окон квартир открываются виды на «Москву-Сити» и Кремль, Тимирязевский парк, Останкинскую телебашню.
Где строят
ЖК Symphony 34 возводится на 2-й Хуторской улице в Савеловском районе Северного административного округа. Это один из самых небольших по площади районов столицы, он отличается плотной застройкой, характерной для спальных кварталов.
На границе района расположены станции метро «Дмитровская» и «Савеловская», МЦД-2 «Гражданская» и «Дмитровская». Вдоль южной границы проходит участок ТТК, неподалеку расположен Савеловский вокзал.
Ближе всех от ЖК Symphony 34 находится станция метро «Дмитровская» — 760 м.
Станции метро, время в пути от ЖК Symphony 34:
Для автомобилистов имеются выезды на ТТК и Дмитровское шоссе, дорога до центра займет 10 минут. Однако из-за близости Дмитровского шоссе движение по соседним улицам нередко затруднено.
Экология
В экологическом рейтинге от EcoStandard Савеловскому району присвоено 6 баллов. На территории района нет крупных зеленых зон, из небольших парков можно выделить Автомобилист и Савеловский, однако соседство с обширным Тимирязевским парком обеспечивает неплохую экологию. В радиусе 1,5 км от новостройки находятся также парки Савеловский, Гончаровский, Дубки.
С XIX века на территории современного Савеловского района работали несколько предприятий, сейчас функционирует косметическая фабрика «Свобода».
70% территории ЖК Symphony 34 займут зеленые насаждения и ландшафтный дизайн, благоустройство будет выполнено с учетом всесезонности. Вопросы вызывает близость железной дороги (МЦД-2), которая находится всего в 56 м от домов. Кроме того, между будущим ЖК и железнодорожными путями в настоящее время находятся гаражи.
Инфраструктура
Ближе других от нашей новостройки находится дошкольное отделение школы №1601 на 1-й Хуторской — до него 360 м. Дошкольное отделение этой же школы в 4-м Вятском переулке находится в 1 км от ЖК Symphony 34, а до детсада школы №218 на ул. Костякова — 930 м.
Также в окружении много частных детских садов: до детсада Happy-Sadik на Башиловской — всего 330 м, до «Бэби-клуба» — 760 м, до садика «Солнышко» в проезде Соломенной Сторожки — 1 км.
Одно из зданий школы №1601 расположено в 500 м — на 2-й Хуторской. Школа №218 на ул. Костякова находится в 1 км от ЖК.
Ближайшая детская поликлиника — филиал №3 поликлиники №39 на 2-й Хуторской, до нее 890 м, это расстояние можно пройти за 11 минут. До поликлиники №15 на ул. Всеволода Вишневского — около 1,3 км.
Поликлиники для взрослых также имеются в пешей доступности: филиал №2 поликлиники №62 на улице Юннатов расположен в 1,2 км от ЖК Symphony 34, до поликлиники №6 на ул. Вучетича — чуть меньше 1,5 км.
На территории жилого комплекса будет несколько продуктовых магазинов, кроме того, поблизости имеются супермаркеты «Магнолия», «Пятерочка» и «Перекресток». Кроме того, меньше чем в полукилометре находится центр мебели и ремонта «Парк 11», а примерно в 1 км — ТЦ «Вятский». Также в радиусе 3 км имеются крупные ТЦ «Савеловский», «Арена Плаза», «Динамо», «Палладиум», «Авиапарк» и другие.
Помимо собственных фитнес-центров, жителям ЖК Symphony 34 для занятия спортом будут доступны спортзалы недалеко от дома — так, на ул. Тимирязевская, 1с2 расположены сразу два фитнес-центра и две школы танцев, до них можно дойти за 7 минут.
Отметим, что в 15 минутах ходьбы от ЖК находятся такие модные пространства, как дизайн-завод «Флакон» и «Хлебозавод №9», где проводятся различные лекции, выставки, концерты, мастер-классы, фестивали и перформансы. Здесь расположено множество магазинчиков, кофеен, ресторанов и кафе.
Безопасность
Сам по себе Савеловский район считается безопасным в плане уровня преступности, но опасения вызывает разве что Савеловский вокзал, находящийся в соседнем Бутырском районе (до него от нашей новостройки – около 2,5 километров). Ближайший к нашему ЖК участковый пункт полиции находится на улице Бутырская, д. 93, это в 680 м от ЖК Symphony 34, до него можно дойти за 8 минут.
Цены
Продажи квартир в ЖК Symphony 34 начались в июле 2021 года. Сейчас минимальная стоимость предложения в проекте – 11,7 млн рублей.
Цены в ЖК Symphony 34
|
Тип жилья |
Метраж, кв. м |
Цена, руб. |
Цена за кв. м, тыс. руб. |
|
студии |
27.10 — 27.80 |
23 194 890 — 23 919 120 |
855.9 — 860.4 |
|
1-комнатные |
29.10 — 42.90 |
22 597 605 — 34 940 160 |
623.1 — 922.5 |
|
2-комнатные |
54.20 — 71.00 |
32 463 200 — 44 816 850 |
521.7 — 733.5 |
|
3-комнатные |
81.50 — 93.10 |
44 500 872 — 52 408 941 |
518.9 — 621.9 |
|
4-комнатные |
132.60 — 153.20 |
85 672 860 — 103 164 880 |
646.1 — 673.4 |
Квартиры в ЖК Symphony 34 реализуются с применением эскроу-счетов. Ипотеку предоставляют следующие банки: Сбербанк, ВТБ, Альфа-Банк, Промсвязьбанк, Банк Дом.рф, «Открытие», Россельхозбанк, Райффайзенбанк, Росбанк, Газпромбанк, Металлинвестбанк, Совкомбанк, Абсолют Банк, Уралсиб. Минимальная ипотечная ставка — 4,2% (семейные программы).
Конкуренты
В ближайшем окружении ЖК Symphony 34 нет строящихся ЖК. Тем, кто готов приобрести жилье подороже, чтобы поселиться в уже сданной новостройке, можно присмотреться к ЖК D1 — это также проект MR Group возле метро «Дмитровская». Здесь построены три небоскреба бизнес-класса высотой 30-60 этажей, локация отличается хорошей транспортной доступностью, рядом расположены три парка: Тимирязевский, Дубки и Гончаровский. В продаже от застройщика осталось чуть больше 20 квартир, в том числе пентхаусы. В квартирах выполнена отделка MR Base, пентхаусы реализуются без отделки. Цены на последние лоты в этом ЖК начинаются от 23,7 млн рублей за 2-комнатную квартиру площадью 58,6 кв. м.
Цены в ЖК D1
|
Тип жилья |
Метраж, кв. м |
Цена, руб. |
Цена за кв. м, тыс. руб. |
Нет в продаже | |||
Еще одна готовая высокобюджетная новостройка поблизости — дом «Дыхание» около метро «Тимирязевская». 28-этажный ЖК с подземным паркингом сдан в эксплуатацию, но в продаже от застройщика еще имеются несколько квартир с минимальной стоимостью 28,7 млн рублей. Жилье в этом проекте сдается с чистовой дизайнерской отделкой.
Цены в доме «Дыхание»
|
Тип жилья |
Метраж, кв. м |
Цена, руб. |
Цена за кв. м, тыс. руб. |
Нет в продаже | |||
Более бюджетное жилье относительно недалеко от ЖК Symphony 34 строит компания ПИК — это ЖК «Руставели 14» на территории Бутырского района возле станции метро «Бутырская». Здесь будут возведены 16 корпусов высотой от 14 до 33 этажей с паркингом и кладовыми, два детских сада и школа. Недалеко находится Гончаровский парк. В квартирах будет выполнена предчистовая отделка, самый доступный вариант — студия площадью 19,8 кв. м по цене 7,3 млн рублей.
Цены в ЖК «Руставели 14»
|
Тип жилья |
Метраж, кв. м |
Цена, руб. |
Цена за кв. м, тыс. руб. |
|
студии |
28.20 — 29.10 |
16 831 440 — 17 653 200 |
578.4 — 626 |
|
1-комнатные |
29.40 — 48.60 |
18 078 060 — 23 289 120 |
463.1 — 679.2 |
|
2-комнатные |
45.60 — 61.40 |
25 121 340 — 29 809 820 |
469.1 — 575.5 |
|
3-комнатные |
71.90 — 83.30 |
32 781 600 — 37 951 480 |
426.5 — 496.4 |
Резюме
Первый куб бетона в фундамент ЖК Symphony 34 залили 16 декабря 2021 года, небоскребы планируется сдать в эксплуатацию во II квартале 2025 года. Большинство проектов MR Group строятся с соблюдением сроков, так что следует ожидать, что Symphony 34 будет построен вовремя.
Плюсы ЖК Symphony 34:
Минусы — близость железной дороги, мало зеленых зон в окружении, хотя этот недостаток застройщик обещает компенсировать обширным озеленением внутренней территории жилого комплекса.
Новый проект известного девелопера можно назвать действительно удачным: комплекс строится в сложившемся районе недалеко от станции метро, вся необходимая социальная инфраструктура имеется в пешей доступности. Разнообразие планировок, богатая собственная инфраструктура, продуманное зонирование придомовой территории делают ЖК Symphony 34 интересным и для покупателей-одиночек, и для семей с детьми.
Для инвесторов проект может стать привлекательным в связи с отсутствием поблизости конкурентов в этом ценовом диапазоне — к тому же продажи в Symphony 34 стартовали относительно недавно, к завершению строительства цены еще подрастут.
Дата публикации 23 декабря 2021