«GloraX Premium Белорусская» – это проект в центре Москвы с авторской архитектурой, дизайнерским лобби и продуманным внутренним пространством, над которыми работали международные бюро. Новострой-М уже писал об этом клубном доме в январе 2023 года. Как изменились цены, ситуация в районе, какие у него за это время появились конкуренты на рынке и как обстоят дела с предложением за месяц до официального срока сдачи объекта – читайте в новой экспертизе.
Примечание
В статье перечислены только факты о проекте, собранные из открытых источников. В рубрике «Экспертиза проекта» Новострой-М решил отказаться от оценок и оценочных суждений: право делать выводы из описанных фактов мы предоставляем нашим читателям.
Кто строит?
Строительством «GloraX Premium Белорусская» занимается девелоперская компания GloraX. Этот холдинг работает на рынке с 2014 года. Компания стартовала в Санкт-Петербурге, но сейчас география ее проектов насчитывает 16 регионов присутствия среди которых: Ленинградская, Свердловская, Омская, Самарская, Волгоградская, Мурманская области, Красноярский и Пермский край, Татарстан и другие регионы.
В московском регионе у компании семь площадок в Подмосковье и две новостройки в самой столице. «GloraX Premium Белорусская» – первый проект компании в историческом центре Москвы.
Что строят?
«GloraX Premium Белорусская» – клубный дом, который строится в районе Беговой в Северном административном округе Москвы. Это будет здание переменной этажности, максимальная высота которого будет 24 этажа (включая подземные этажи).
В комплексе будет трехуровневый подземный паркинг на 136 машино-мест, собственный фитнес-зал, коворкинг с переговорными, а первые этажи займут коммерческие помещения: различные магазины и рестораны.
Сейчас (в статье приводятся данные, актуальные на конец августа 2024 года), как следует из информации на официальном сайте проекта, дом готов уже на 90%. Ввести его в эксплуатацию застройщик планирует в III квартале 2024 года.
«GloraX Premium Белорусская» в цифрах:
|
№ дома |
Лоты |
Энергоэффект. |
Машино-места |
Класс |
Срок ввода |
|
1 |
183 |
А |
136 |
Премиум |
III кв. 2024 года |
Архитектура и дизайн
Архитектурную концепцию проекта разрабатывало международное бюро MLA+. Благодаря минималистичному стилю комплекс гармонично вписывается в сложившуюся историческую застройку района.







Нижняя часть здания облицована гранитными плитами, верхняя – глянцевым кирпичом. Образ дома будет дополнять многоуровневая подсветка в теплых тонах. Увеличенные оконные проемы (высота от 2,1 до 2,4 метра) и эркерные окна должны подчеркнуть легкость и воздушность здания. Для остекления будут использованы шумопоглощающие стеклопакеты.
Все входные зоны будут безбарьерными и на уровне земли. В лобби предусмотрена лаундж-зона с камином и мини-баром, гостевой санузел, колясочная и ресепшн.
Дизайн парадного лобби разрабатывало бюро Aedas, основанное специалистами из Англии, Австралии и Гонконга. Внутреннее пространство здесь будет оформлено камнем и мрамором, а медные элементы декора и декоративная подсветка добавят благородных акцентов. Благодаря высоким панорамным окнам в лобби будет всегда много света и открывается вид на зеленую территорию внутреннего двора.
Благоустройство
В закрытом внутреннем дворе будет много зелени, водопад, wi-fi на всей территории удобные скамьи с USB-зарядками. Концепция внутреннего пространства продумывалась ландшафтными дизайнерами бюро Aedas.







Территория будет разделена на функциональные зоны: для работы и деловых встреч, для детских игр и тихого отдыха. В деревянных перголах будут установлены мягкие лаундж-диваны. Вечером создавать атмосферу уюта будут декоративные светильники и многоуровневая подсветка.
Безопасность и технологии
Попасть на территорию дома можно будет с помощью системы распознавания лиц. Въезд в подземный паркинг – по номеру автомобиля. В общественных местах застройщик планирует установить систему видеонаблюдения.
В квартирах планируется установить систему «Умный дом», что позволит управлять розетками, дистанционно включать чайник или задергивать шторы. Показания счетчиков будут передаваться автоматически, а датчики энергопотребления сообщат о перерасходе. В случае необходимости аварийная система автоматически перекроет воду.
В домах будут установлены домофоны с системой распознавания лиц, а в паркинг можно спуститься прямо со своего этажа на одном из трех бесшумных скоростных лифтов. Также подземная парковка будет обеспечена усилителями сигнала сотовой связи.
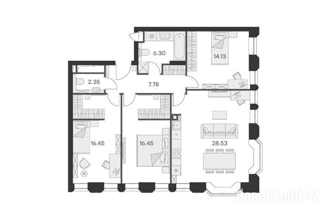
Планировки
В доме запроектированы апартаменты разных планировок. Сейчас в продаже имеются студии, одно-, двух-, трех- и четырехкомнатные варианты – всего 73 юнита. Их площадь варьируется от 34,2 до 122,7 кв. м. Почти четверть имеющихся апартаментов отличаются хорошим видом на город.





В предложении есть варианты с отдельными гардеробными (и даже двумя), с двумя санузлами, панорамным остеклением в кухне-гостиной и эркерными окнами в спальнях. Также есть имеется двухуровневые апартаменты площадью 102,3 кв. м с двумя спальнями и санузлом на первом уровне и большой кухней-гостиной (36,46 кв. м) и санузлом – на втором.
Площади апартаментов в имеющемся предложении (август 2024 года):
Все помещения получатся светлыми и просторными благодаря огромным окнам и панорамным эркерам. Все апартаменты сдаются с отделкой white box.
Где строят?
«GloraX Premium Белорусская» расположен на 1-й улице Ямского Поля в Беговом районе САО, примерно на равном расстоянии от ТТК и Садового кольца. До них на машине можно добраться за 3–5 минут. До Красной площади можно доехать на автомобиле за 16–19 минут. Примерно столько же времени займет дорога до «Москва-Сити». До аэропорта Шереметьево на машине можно добраться минут за 40.
Нужно отметить, что из-за того, что локация находится близко к центру города, дороги здесь довольно загружены. От этого время в пути может сильно увеличиться.
В пешей доступности находятся несколько станций метро, Белорусский и Савеловский вокзалы.
Станции метро и МЦД, время в пути от «GloraX Premium Белорусская»:
Экология
Согласно данным рейтинга экспертов EcoStandard за 2023 год, экологическая обстановка в районе Беговой оценивается как «удовлетворительная» (на 9 из 10, где 10 – самый негативный результат). Такую оценку специалисты дали из-за высокой загруженности дорог в районе и небольшой площади зеленых насаждений. В рейтинге также отмечается отсутствие водоемов, небольшое количество велосипедных парковок и спортивных площадок.
В прошлый раз экологическая обстановка в районе застройки оценивалась как «приемлемая» (на 5 из 10), но тут нужно отметить, что у EcoStandard немного изменилась методика расчета рейтинга.
Что осталось без изменений, так это отсутствие зеленых насаждений. В пешей доступности расположены только два небольших сквера – Миусский (до него можно добраться минут за 19) и Новослободский (до него можно дойти за 13 минут). Этот недостаток испытывают многие локации в центре Москвы.
В Беговом районе нет собственных парков, ближайшие – Петровский и Динамо в районе Аэропорт (путь до них пешком займет около получаса), Ходынское поле и Березовая роща в Хорошевском районе (час пешком), Фестивальный и Екатерининский – в Мещанском (примерно полчаса пешком).
Инфраструктура
В «GloraX Premium Белорусская» не планируется размещение детского сада или строительство школы, но в районе нет проблем с социальной инфраструктурой. Буквально через дом от новостройки (1-я улица Ямского Поля, 24а) находится дошкольное отделение школы №1570. Еще одно расположено в 8 минутах ходьбы (3-я улица Ямского Поля, 17а). В шаговой доступности расположены еще несколько муниципальных детских садов.
Есть здесь и частные, например, Smile Fish (Ленинградский проспект, 26 к2). Дойти до него можно за 13 минут. Еще два – Leaders International School и Sun school – расположены по другую сторону Ленинградского проспекта, дойти до них можно за 15 минут, дорога на автомобиле займет не более 5 минут.
Со школами поблизости тоже нет никаких проблем. До начальной школы №1570 (Переулок Расковой, 14а) можно дойти за 12 минут, примерно столько же времени потребуется, чтобы дойти до основного корпуса школы (5-я улица Ямского Поля, 28), 14 минут займет путь пешком до школы №1574 (4-й Лесной переулок, 6).
В 15 минутах от дома расположена частная бизнес-школа для детей и подростков Businessfox. Кстати, за 12 минут можно дойти пешком до Государственного училища циркового и эстрадного искусства им. М. Н. Румянцева (5-я улица Ямского Поля, 24).
В шаговой доступности от дома расположены различные супермаркеты, в том числе сетевые «ВкусВилл», «Пятерочка», «Лента» и «Дикси». Ближайший – «ВкусВилл» – в пяти минутах ходьбы (3-я улица Ямского Поля, 9).
Детская и взрослая поликлиники находятся в одном здании по адресу Ленинградский проспект, 18а. Оно расположено в 900 метрах от «GloraX Premium Белорусская», пешком можно дойти не более чем за 10 минут.
Буквально через дорогу от новостройки находится частная клиника «Орис» (1-я улица Ямского Поля, 17 ст1). Еще один медицинский центр «Клиника доктора Мясникова» (улица Правды, 24 ст. 11) находится в 4 минутах ходьбы от дома. До «Европейского медицинского центра» (улица Правды, 15 ст.1) можно дойти за 9 минут.
На первом этаже комплекса разместится фитнес-зал только для резидентов клубного дома. Здесь будет зал для йоги, антигравити и пилатеса и сайклинг-студия. Для тех, кому этого окажется недостаточно, в шаговой доступности есть еще несколько фитнес-центров: Fitland (3-я улица Ямского Поля, 2 к4), студия Alex ballet (3-я улица Ямского Поля, 24), студия растяжки Stretching by glayne (3-я улица Ямского Поля, 2 к19), студия персонального фитнеса 42club (3-я улица Ямского Поля, 9 к7). Путь до них займет 5–7 минут.
Безопасность
Беговой район не входит в список самых неблагополучных районов Москвы. Он довольно близко расположен к центру, здесь нет промзон, хотя по соседству есть и вокзалы, и рынки.
Согласно информационно-аналитической записке местного участкового, за 2023 год здесь было зарегистрировано всего 45 преступлений, среди которых нет ни убийств, ни грабежей, ни квартирных краж, ни угонов автомобилей.
Отдел МВД России по Беговому району находится в 9 минутах езды от нашей новостройки, на Скаковой улице, 18А.
Цены и способы покупки
Продажи апартаментов в клубном доме «GloraX Premium Белорусская» начались еще в декабре 2021 года. Тогда цены здесь составляли порядка 24,6 млн руб. за студию. К январю 2022 года минимальная цена снизилась до 16,7 млн руб.
Сейчас цены начинаются от 20,7 млн рублей. За эти деньги можно приобрести студию площадью 34,2 кв. м на втором этаже.
Самый дорогой лот в имеющемся предложении – апартаменты площадью 122,7 кв. м на 18 этаже дома. В планировке: четыре комнаты, большая кухня-гостиная (36,59 кв. м), два санузла и две гардеробные. В кухне и одной из спален установлены по два эркерных окна. Продаются эти апартаменты за 75,6 млн рублей.
Цены в «GloraX Premium Белорусская»:
|
Тип жилья |
Метраж, кв. м |
Цена, руб. |
Цена за кв. м, тыс. руб. |
|
студии |
35.20 |
23 099 999 |
656.2 |
|
1-комнатные |
52.60 — 53.40 |
29 749 999 — 30 779 999 |
565.6 — 576.4 |
|
2-комнатные |
67.80 — 97.00 |
38 049 999 — 54 569 999 |
501.9 — 666.8 |
|
3-комнатные |
89.90 — 97.00 |
45 619 999 — 56 909 999 |
504.1 — 601.2 |
Квартиру можно купить по 100% оплате либо в ипотеку. Есть стандартная ипотека от 17,7%. Также на сайте проекта предлагаются варианты ипотеки от застройщика под 11,99% на весь срок или 0,01% на 1 год с дальнейшим повышением ставки, после чего ежемесячный платеж будет более 1 млн рублей.
Также застройщик предлагает вариант с trade-in, где можно воспользоваться сервисом по выкупу автомобиля или мотоцикла и использовать эти средства в качестве первоначального взноса.
Данные об условиях кредитования действительны на момент публикации статьи. Актуальную информацию вы всегда можете найти в карточке проекта.
Конкуренты
Сейчас недалеко от «GloraX Premium Белорусская» строятся еще несколько проектов премиум- и элит-класса. Это и жилые дома, и апартаменты.
Ближайший «сосед» – ЖК SLAVA от MR Group. Часть корпусов здесь уже введены в эксплуатацию, еще четыре дома будут сданы во II кв. 2027 года. Эта новостройка также относится к премиум-классу. Площади квартир в продаже варьируются от 29,3 до 103,3 кв. м, в башнях высотой до 37 этажей будут располагаться видовые лоты.
|
Тип жилья |
Метраж, кв. м |
Цена, руб. |
Цена за кв. м, тыс. руб. |
|
студии |
28.10 — 34.40 |
26 958 870 — 33 326 558 |
894.3 — 1112.9 |
|
1-комнатные |
36.40 — 57.90 |
37 171 680 — 53 177 831 |
871.8 — 1231.9 |
|
2-комнатные |
60.80 — 86.40 |
54 518 832 — 86 974 923 |
837.1 — 1068.5 |
|
3-комнатные |
86.70 — 113.40 |
84 898 962 — 107 802 389 |
822.1 — 1101.1 |
|
4-комнатные |
125.20 — 127.30 |
103 043 606 — 124 599 712 |
823 — 978.8 |
|
многокомнатные |
201.00 |
136 138 104 — 136 526 436 |
677.3 — 679.2 |
Verdi – это клубный дом элит-класса девелоперской компании Glincom, расположенный в соседнем Савеловском районе. В нем будет 107 апартаментов и двухуровневых пентхаусов. Цены здесь начинаются от 18,9 млн рублей за однокомнатный юнит площадью 37,8 кв. м. Дом планируется сдать в III квартале 2024 года, хотя сроки ввода в эксплуатацию уже переносились.
Цены в доме Verdi:
|
Тип жилья |
Метраж, кв. м |
Цена, руб. |
Цена за кв. м, тыс. руб. |
Нет в продаже | |||
Премиальный жилой комплекс Republic от застройщика Forma возводится недалеко от Белорусского вокзала. Он будет состоять из 10 жилых корпусов высотой от 25 до 45 этажей. Также на территории проекта сохранят несколько памятников промышленной архитектуры, в них разместятся общественные пространства и гастрономический центр. Во дворе будет создан ландшафтный парк. Цены на жилье здесь начинаются от 20,2 млн рублей за студию площадью 27,36 кв. м. Корпус, в котором она находится, планируют сдать во II квартале 2028 года.
Цены в ЖК Republic:
|
Тип жилья |
Метраж, кв. м |
Цена, руб. |
Цена за кв. м, тыс. руб. |
|
студии |
26.86 — 31.47 |
27 339 400 — 42 221 800 |
999.2 — 1391.8 |
|
1-комнатные |
33.46 — 53.01 |
31 983 400 — 61 655 800 |
955.9 — 1163.1 |
|
2-комнатные |
32.03 — 65.16 |
30 521 400 — 65 673 800 |
855.2 — 1295.2 |
|
3-комнатные |
60.05 — 110.58 |
52 709 400 — 105 607 800 |
754.2 — 1245.8 |
|
4-комнатные |
78.24 — 138.57 |
68 189 400 — 218 111 800 |
747.1 — 1593.9 |
|
многокомнатные |
116.63 — 140.49 |
111 017 400 — 205 975 800 |
918.6 — 1493.9 |
Первые корпуса элитного квартала «Тишинский бульвар» (застройщик Sminex) введут в эксплуатацию в IV квартале 2027 года. Всего в четыре очереди планируется построить 14 корпусов. Цены на квартиры здесь начинаются от 61,41 млн рублей. За эти деньги можно купить квартиру площадью 56 кв. м с мастер-спальней и большой кухней-гостиной, двумя балконами, гардеробной и двумя санузлами.
Цены в ЖК «Тишинский бульвар»:
|
Тип жилья |
Метраж, кв. м |
Цена, руб. |
Цена за кв. м, тыс. руб. |
|
1-комнатные |
44.90 — 69.20 |
77 360 000 — 141 620 000 |
1412.7 — 2195.7 |
|
2-комнатные |
72.30 — 125.20 |
117 690 000 — 282 470 000 |
1418 — 2266.2 |
|
3-комнатные |
96.20 — 176.80 |
145 090 000 — 450 270 000 |
1319.2 — 2844.7 |
|
4-комнатные |
126.90 — 193.30 |
209 580 000 — 529 280 000 |
1370.7 — 3150.1 |
|
многокомнатные |
176.10 — 246.20 |
265 010 000 — 664 530 000 |
1433.1 — 2699.1 |
На сопоставимом расстоянии от Савеловского вокзала, в Марьиной Роще, сейчас строится еще один премиальный проект – жилой квартал Pride («Прайд») от ГК «Пионер». Цены здесь стартуют от 17,2 млн рублей за студию площадью 31,2 кв. м. Ввод корпусов ЖК запланирован на IV квартал 2025 года.
Цены в ЖК Pride:
|
Тип жилья |
Метраж, кв. м |
Цена, руб. |
Цена за кв. м, тыс. руб. |
|
1-комнатные |
30.60 — 37.70 |
22 123 320 — 25 364 560 |
672.8 — 772.9 |
|
2-комнатные |
44.20 — 59.10 |
30 629 900 — 49 353 500 |
633.7 — 900.9 |
|
3-комнатные |
67.70 — 108.50 |
36 171 760 — 82 198 800 |
454.3 — 825.3 |
|
4-комнатные |
99.50 — 141.20 |
51 607 307 — 125 967 600 |
432.2 — 954.3 |
Резюме
Плюсы проекта:
Минусы проекта:
Проект скорее подойдет для инвестиций или молодым семьям без детей. Нужно помнить, что в новостройке нет готовой отделки, а значит придется потратить дополнительные деньги и время на ремонт.
Еще один недостаток – отсутствие парков и скверов поблизости. Ситуацию исправит внутренний двор дома, продуманный ландшафтными дизайнерами международного бюро. Здесь планируется много зелени, водопад и приятные зоны отдыха, что должно скрасить досуг резидентов.
В остальном с инфраструктурой вокруг нет никаких проблем: магазины, кафе, спортивные центры, социальные объекты. Близость к центру также дает хорошую транспортную инфраструктуру, а станции метро здесь находятся в шаговой доступности.
Дата публикации 27 августа 2024