Переверните экран
Новостройки
Квартиры
Ипотека
Новостройки Москвы
Новостройки Подмосковья
Новостройки Новой Москвы
Готовые новостройки
Новостройки на карте
Акции от застройщиков
Коммерческие помещения
Продавцы и застройщики
Панорамы новостроек
Видеообзор новостроек
Экспертиза новостроек
Экология Москвы и Подмосковья
Студии
1-комнатные
2-комнатные
3-комнатные
Квартиры на карте
Ипотечный калькулятор
Семейная ипотека
Военная ипотека
Банки и программы
Медиа
Новости недвижимости
Мнение эксперта
Аналитика рынка
Покупателю
Экспертиза новостроек
Эксперты и авторы
О проекте
Контакты
Реклама на сайте
Vk
Youtube
Telegram
Дзен
Машиноместа
Апартаменты
#траншевая ипотека
#рассрочка
ИТ-ипотека
Квартиры со скидками до 40%
Видео 360° новостроек
Субсидированная застройщиком
Rutube
Поиск дома в Москве
Программа реновации в Москве
Новостройки премиум-класса
Новостройки бизнес-класса
Рассрочка
Траншевая ипотека
Дома и коттеджи
Бизнес-центры
Бизнес-центры в Москве
Бизнес-центры рядом с метро
Строящиеся бизнес-центры
Бизнес-центры класса A
Бизнес-центры класса B
Ипотека со ставкой 0,1%
Посмотреть
3153
ЖК
0 новостроек
Удобный поиск новостроек
Доп. параметры
0
Поиск
новостроек
Скрыть поиск
Закрыть
Самые популярные за неделю
Люблинский парк
Левел Академическая
«ФизтехСити»
ЖК «Татум»
Расположение
Регион
Москва
Московская область
Новая Москва
Метро
МЦД
Ж/Д-станции
Шоссе
Районы
Районы
Города МО
Районы МО
До метро не более
Выбрать
Пешком
Транспортом
До МКАД не более
Цена за квартиру
Комнатность
Студии
1
2
3
4+
Срок сдачи
Выберите
Дом сдан
2026
2027
2028
2029
2030
2031
2032
Отделка
Любая
Без отделки
Под чистовую
Чистовая
Есть скидки
Ипотека
Материнский капитал
Эскроу-счет
Старт продаж
Семейная ипотека 6%
Рассрочка
Панорамные окна
Рядом парк
Системообразующий застройщик
Кол-во квартир на этаже
не больше 6
не больше 4
Помещения и квартиры
Только квартиры
Только апартаменты/помещения
Больше параметров
Посмотреть
3153
ЖК
0 новостроек
Novostroy-M.ru
•
База новостроек
•
Москва
•
ЦАО
•
«Чкалов»
•
Планировки
Описание
Помещения
21
Ход строительства
Планировки
Ипотека
Акции
Отзывы
125
Вопрос - ответ
11
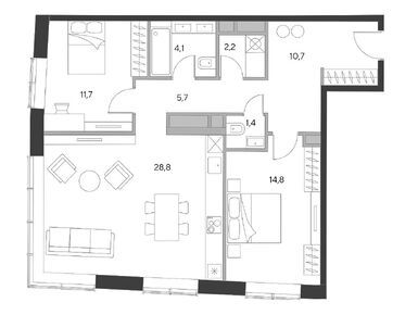
Планировки в Chkalov
Москва, ЦАО, Басманный
от 31.2 до 187 млн
₽
Цены за помещения
от
29 марта по данным официального сайта
Поделиться на страницах
Копировать ссылку
Поделиться на страницах
Копировать ссылку
Описание
Помещения
21
Ход строительства
Планировки
Ипотека
Акции
Отзывы
125
Вопрос - ответ
11
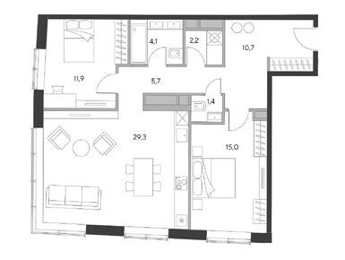
Планировки студий (помещений) в Chkalov
студия, 150.90 м
2
181 080 000 руб.
студия, 132.40 м
2
185 360 000 руб.
студия, 124.90 м
2
187 350 000 руб.
Инфоцентр новостроек
9:00 — 21:00
Задать вопрос
Как сюда попасть?
Посмотреть все спецпредложения
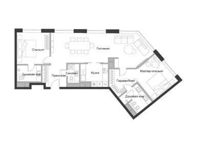
Планировки однокомнатных помещений в Chkalov
1-комн. помещение, 34.60 м
2
34 600 000 руб.
1-комн. помещение, 33.00 м
2
33 000 000 руб.
1-комн. помещение, 32.20 м
2
32 200 000 руб.
1-комн. помещение, 31.20 м
2
31 200 000 руб.
Скидки и спецпредложения от застройщиков
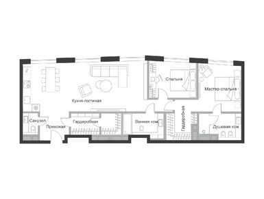
Планировки двухкомнатных помещений в Chkalov
2-комн. помещение, 137.50 м
2
178 750 000 руб.
2-комн. помещение, 113.90 м
2
148 070 000 руб.
2-комн. помещение, 103.60 м
2
134 680 000 руб.
2-комн. помещение, 79.90 м
2
71 858 061 руб.
2-комн. помещение, 79.00 м
2
62 133 998 руб.
2-комн. помещение, 76.80 м
2
52 945 841 руб.
2-комн. помещение, 73.30 м
2
53 731 256 руб.
2-комн. помещение, 72.10 м
2
51 070 979 руб.
2-комн. помещение, 72.10 м
2
51 484 653 руб.
2-комн. помещение, 68.80 м
2
55 646 532 руб.
Выгодные предложения на новостройки
Планировки трехкомнатных помещений в Chkalov
3-комн. помещение, 115.10 м
2
99 287 296 руб.
3-комн. помещение, 96.20 м
2
80 939 275 руб.
3-комн. помещение, 94.40 м
2
81 511 150 руб.
3-комн. помещение, 94.40 м
2
82 519 952 руб.
Квартиры от застройщиков с акциями
Отзывы
Посмотреть все 125 отзывов
Самый полезный отзыв
Р
Рита
23 апреля 2019
Оценка
Узнала в офисе, сообщаю: начались продажи машиномест от 3,3 до 3,5 млн рублей. Думаю, надо покупать сейчас.
0
0
Ответить
Самый новый отзыв
В
Вася
24 марта
Оценка
Мы оба работаем удаленно, искали пространство где можно не мешать друг другу. В Chkalov планировка позволяет, организовали два рабочих места у окон.
0
0
Ответить
Оставить отзыв
Добавьте отзыв, заполнив личные данные, или сначала
войдите на сайт
, тогда информация будет автоматически взята из личного профиля.
Оценка
*
Транспортная доступность
Экология
Социальная инфраструктура
Планировки
Готовность
Способы покупки
Скорость строительства
Внешний вид фасада
Входные группы
Подземный паркинг
Двор, окружение
Расположение
Транспортная доступность
Экология
Социальная инфраструктура
Планировки
Готовность
Способы покупки
Скорость строительства
Внешний вид фасада
Входные группы
Подземный паркинг
Двор, окружение
Расположение
Рейтинг от Новострой-М
4.2
Как составляется наш рейтинг?
Рейтинг от посетителей
5,0
115
6
0
0
0
Сайт использует ваши куки и прочие метаданные.
Подробнее
Принять
0