Рейтинг@Mail.ru
Переверните экран
Новостройки Квартиры Ипотека Новостройки Москвы Новостройки Подмосковья Новостройки Новой Москвы Готовые новостройки Новостройки на карте Акции от застройщиков Коммерческие помещения Продавцы и застройщики Панорамы новостроек Видеообзор новостроек Экспертиза новостроек Экология Москвы и Подмосковья Студии 1-комнатные 2-комнатные 3-комнатные Квартиры на карте Ипотечный калькулятор Семейная ипотека Военная ипотека Банки и программы Медиа Новости недвижимости Мнение эксперта Аналитика рынка Покупателю Экспертиза новостроек Эксперты и авторы О проекте Контакты Реклама на сайте Vk Youtube Telegram Дзен Машиноместа Апартаменты #траншевая ипотека #рассрочка ИТ-ипотека Квартиры со скидками до 40% Видео 360° новостроек Субсидированная застройщиком Rutube Поиск дома в Москве Программа реновации в Москве Новостройки премиум-класса Новостройки бизнес-класса Рассрочка Траншевая ипотека Дома и коттеджи Бизнес-центры Бизнес-центры в Москве Бизнес-центры рядом с метро Строящиеся бизнес-центры Бизнес-центры класса A Бизнес-центры класса B Ипотека со ставкой 0,1%
1-комн. помещение, 34.60 м2, 21 этаж
Сдан
34 600 000 
1 000 000 2
обновлено 29 марта

Описание 1-комн. помещения

Новостройка
Застройщик
Срок ГК
Дом сдан
Стадия строительства
выдача ключей + заселение
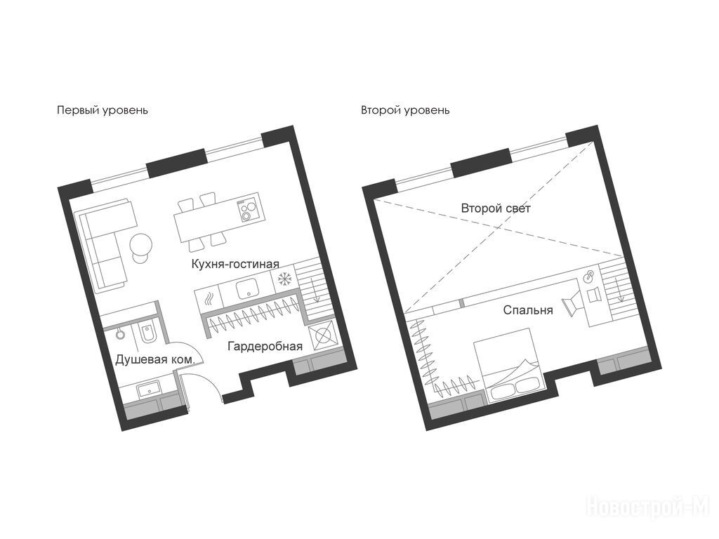
Общая площадь
34.60 м2
Площадь кухни
5.00 м2
Этаж
21 / 21
Отделка
чистовая

Расположение 1-комн. помещения

Локация
Метро
Станция МЦД
Дом
Башня Б
Адрес
ул. Земляной вал., д. 37, секция Б

Способы покупки

Особенности

Продается однокомнатное помещение в новостройке «Чкалов» по адресу Москва, ЦАО, Басманный, ул. Земляной вал., д. 37. Общая площадь помещения - 34.6 кв. м. Тип проекта, по которому построен дом — Монолит,Монолитно-кирпичный, компания-застройщик — IKON-Development. Стоимость помещения — 34 600 000 руб. Способы оплаты можно уточнить у продавца. Более подробная информация по телефону.
Инфоцентр новостроек
Инфоцентр новостроек
Время работы 9:00 — 21:00
Выбирайте помещения в «Чкалов» по ценам от застройщика
Этаж 21/21
Москва, «Чкалов»
Чкаловская
2 мин.
Сдан
Этаж 21/21
Москва, «Чкалов»
Чкаловская
2 мин.
Сдан
помещение-студия 150,90 м2 181 080 000
Этаж 21/21
Москва, «Чкалов»
Чкаловская
2 мин.
Сдан
1-комн. помещение 31,20 м2 31 200 000
Этаж 21/21
Москва, «Чкалов»
Чкаловская
2 мин.
Сдан
Этаж 21/21
Москва, «Чкалов»
Чкаловская
2 мин.
Сдан
1-комн. помещение 33,00 м2 33 000 000
Этаж 21/21
Москва, «Чкалов»
Чкаловская
2 мин.
Сдан
2-комн. помещение 68,80 м2 55 646 532
Этаж 20/21
Москва, «Чкалов»
Чкаловская
2 мин.
Сдан
2-комн. помещение 72,10 м2 51 070 979
Этаж 18/21
Москва, «Чкалов»
Чкаловская
2 мин.
Сдан
2-комн. помещение 73,30 м2 53 731 256
Этаж 7/21
Москва, «Чкалов»
Чкаловская
2 мин.
Сдан
2-комн. помещение 76,80 м2 52 945 841
Этаж 7/21
Москва, «Чкалов»
Чкаловская
2 мин.
Сдан
Посмотреть 10 помещений в Chkalov
3-комн. помещение 94,40 м2 81 511 150
Этаж 18/21
Москва, «Чкалов»
Чкаловская
2 мин.
Сдан
3-комн. помещение 96,20 м2 80 939 275
Этаж 17/21
Москва, «Чкалов»
Чкаловская
2 мин.
Сдан
3-комн. помещение 115,10 м2 99 287 296
Этаж 19/21
Москва, «Чкалов»
Чкаловская
2 мин.
Сдан

Скидки и спецпредложения от застройщиков

«Чкалов» на карте

Выгодные предложения на новостройки

Самый полезный отзыв
Р
23 апреля 2019
Оценка:
Узнала в офисе, сообщаю: начались продажи машиномест от 3,3 до 3,5 млн рублей. Думаю, надо покупать сейчас.
Ответить
Самый новый отзыв
В
24 марта
Оценка:
Мы оба работаем удаленно, искали пространство где можно не мешать друг другу. В Chkalov планировка позволяет, организовали два рабочих места у окон.
Ответить

Оставить отзыв

Добавьте отзыв, заполнив личные данные, или сначала войдите на сайт, тогда информация будет автоматически взята из личного профиля.
Оценка*